Vue avant - MODÈLE DE BASE - Maison moderne 2 chambre, cuisine et salle de séjour à l'arrière, fondation rez-de-jardin pour espace ++ - Zenia

Vue avant - MODÈLE DE BASE

Rez-de-chaussée - Maison moderne 2 chambre, cuisine et salle de séjour à l'arrière, fondation rez-de-jardin pour espace ++ - Zenia

Rez-de-chaussée

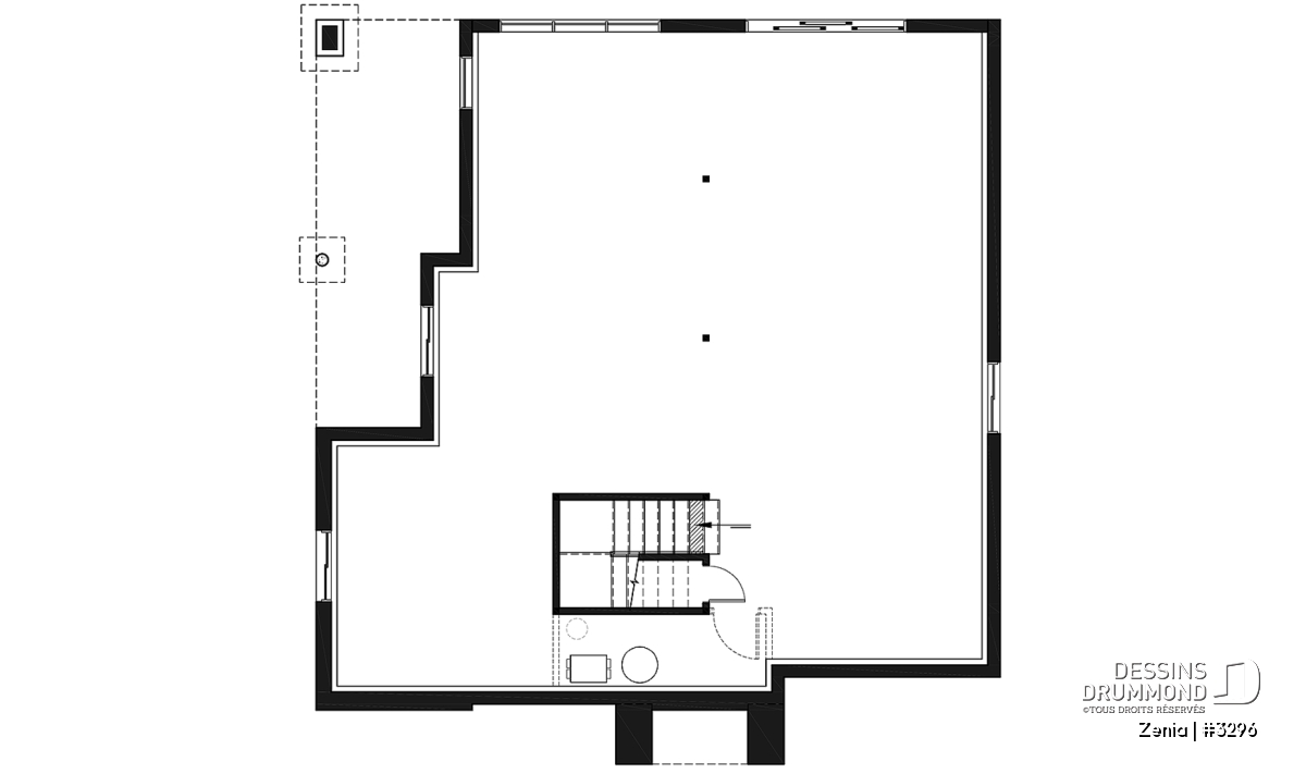
Sous-sol aménageable - Maison moderne 2 chambre, cuisine et salle de séjour à l'arrière, fondation rez-de-jardin pour espace ++ - Zenia

Sous-sol aménageable

Élévation avant - Zenia

Élévation avant

Élévation arrière - Zenia

Élévation arrière

Vue intérieure - Zenia

Vue intérieure

Zenia Plan de maison 3296

Maison moderne 2 chambre, cuisine et salle de séjour à l'arrière, fondation rez-de-jardin pour espace ++

À partir de

1440$

Fiche technique sommaire Plan #3296
Estimation ($) 383,498$
Surface habitable 1269 pi² Chambre 2
Salle de Bain 1 Salle d'eau -
Fondation incluse Sous-sol aménageable + sortie extérieure (Rez-de-jardin) Garage -
Largeur 38'0" Profondeur 38'0"

Besoin d’aide ?

Nos experts vous guident dans votre projet grâce à plus de 30 bureaux au Québec.

Joignez-nous

Consultez notre guide utilisateur

Un outil conçu pour vous simplifier la vie.

Ouvrir le guide

Un accompagnement sur mesure

De la modification de plans au design d’intérieur, nous vous guidons à chaque étape.

Découvrir nos services

Photos du plan Zenia

Les photos de cette maison peuvent différer du plan d'origine, duquel elles proviennent. Pour toute modification, veuillez contacter l’un de nos 30 bureaux.

Détails supplémentaires

Estimation

Spécifications générales

Surface aménagée totale
1269 pi²
Rez-de-chaussée
1269 pi²
Sous-sol aménageable
1269 pi²
Largeur
38'0"
Profondeur
38'0"
Hauteur dessus fondations au faite
15'8"
Murs extérieurs
2 X 6
Murs extérieurs
2 X 6
Sous-sol aménageable + sortie extérieure (Rez-de-jardin)
Autres fondations disponibles (des frais peuvent s'appliquer)
Sous-sol aménageable, Dalle flottante, Vide sanitaire, Dalle monolithique
Code Entrepreneur
C

Spécifications sur les pièces

Chambre(s)
2
Salle(s) de bain complète(s)
1
Demi Salle(s) de Bain
-
Type de garage
-
Superficie balcon et/ou perron abrité
-

Rez-de-chaussée

Pièces
Dimensions
Plafond
Chambre à coucher
12'0" x 14'0"
~ 9'0"
Walk-in
4'8" x 4'4"
~ 9'0"
Chambre à coucher
10'6" x 11'0"
~ 9'0"
Garde-robe
2'0" x 5'4"
~ 9'0"
Cuisine
15'6" x 9'4"
~ 9'0"
Entrée ou vestibule
6'0" x 10'11"
~ 9'0"
Garde-robe
2'0" x 5'0"
~ 9'0"
Lingerie
2'0" x 1'10"
~ 9'0"
Lingerie
2'0" x 1'10"
~ 9'0"
Salle à manger
13'4" x 13'0"
~ 9'0"
Salle de séjour
15'4" x 14'6"
~ 9'0"
Salle de bain
10'4" x 9'0"
~ 9'0"
Terrasse
8'0" x 22'8"
~ 9'0"

Sous-sol aménageable

Plan maison moderne 2 chambres, foyer central, terrasse abritée, sous-sol en rez-de-jardin pour chambres additionnelles

Plan de maison contemporaine cubique proposant des revêtements et couleurs extérieurs très tendance comme le bois sur deux tons et la pierre grise.

La maison attire les regards de par sa forme originale de type cubique, et aussi pour la grande quantité de commodités qu'elle offre, une fois à l'intérieur.

Tout d'abord tout le rez-de-chaussée propose un plafond de 9', ce qui ajoute de l'amplitude aux espaces, principalement aux chambres.

Le plancher inclut deux chambres dont celle des parents avec une garde-robe de type walk-in, et avec accès direct à la terrasse abritée latérale. La grande salle de bain familiale inclut un bain et douche séparés ainsi que deux lavabos. La cuisine avec îlot central est ouverte sur la salle à manger. Cette dernière est adjacente et séparée du salon par un foyer central.

Une belle terrasse latérale couverte est proposée, permettant l'aménagement futur d'une petite cuisine extérieure ou d'un coin détente pour les jours plus cléments.

Éléments distinctifs

Plan de maison moderne cubique.
Plafond à 9' sur tout le rez-de-chaussée.
Entrée avec mobilier intégré.
Galerie avant couverte.
2 chambres.
Grande salle de bain avec 2 lavabos, bain et douche séparés..
Îlot à la cuisine.
Moderne et économique.
Chambre maîtres avec walk-in.
Secteur activité vers l'arrière et recevant beaucoup de lumière naturelle.
Foyer central.
Terrasse couverte sur le côté.

Particularité(s) du plan

Aire ouverte, Vue paronamique, Foyer, Ilôt, Meuble(s) encastré(s), Plafond à plus de 8', Terrasse abritée, Walk-in ch. maîtres, Bain et douche séparés, Lavabo double, Accès au sous-sol de l'extérieur

Style(s) architectural du plan

Moderne, Contemporain / Zen, Chalet, Moderne rustique, Vacances, bordure de lac

Ventilation Maximum
Ventilation Maximum
Anti-rafale

Entreprise manufacturière qui vends des ventilateurs de toiture, des clapets muraux et des entrées d'air.

Plans similaires
Logo Dessins Drummond image Dessins Drummond
Le modèle Zenia est protégé par la loi sur les droits d'auteur.

Les illustrations présentées peuvent différer du plan détaillé que vous recevrez, car ces derniers sont régulièrement ajustés afin de respecter les normes de construction en vigueur.

En savoir plus

Une question ou un commentaire sur ce plan ?

Information de contact

Votre demande

Ajouter vos images ou photos

Pour ajouter une ou des photos, veuillez cliquer ou glisser vos fichiers dans la zone ci-bas. Vous pouvez ajouter jusqu'à huit photos JPG ou JPEG. Cette opération n'est pas obligatoire.

Désolé, votre navigateur ne supporte pas l'envoi de fichier.