Vue avant - MODÈLE DE BASE - Plan de petite maison contemporaine 2 étages, 3 chambres, salle de lavage à l'étage, garde-manger - Cubika

Vue avant - MODÈLE DE BASE

Rez-de-chaussée - Plan de petite maison contemporaine 2 étages, 3 chambres, salle de lavage à l'étage, garde-manger - Cubika

Rez-de-chaussée

Étage - Plan de petite maison contemporaine 2 étages, 3 chambres, salle de lavage à l'étage, garde-manger - Cubika

Étage

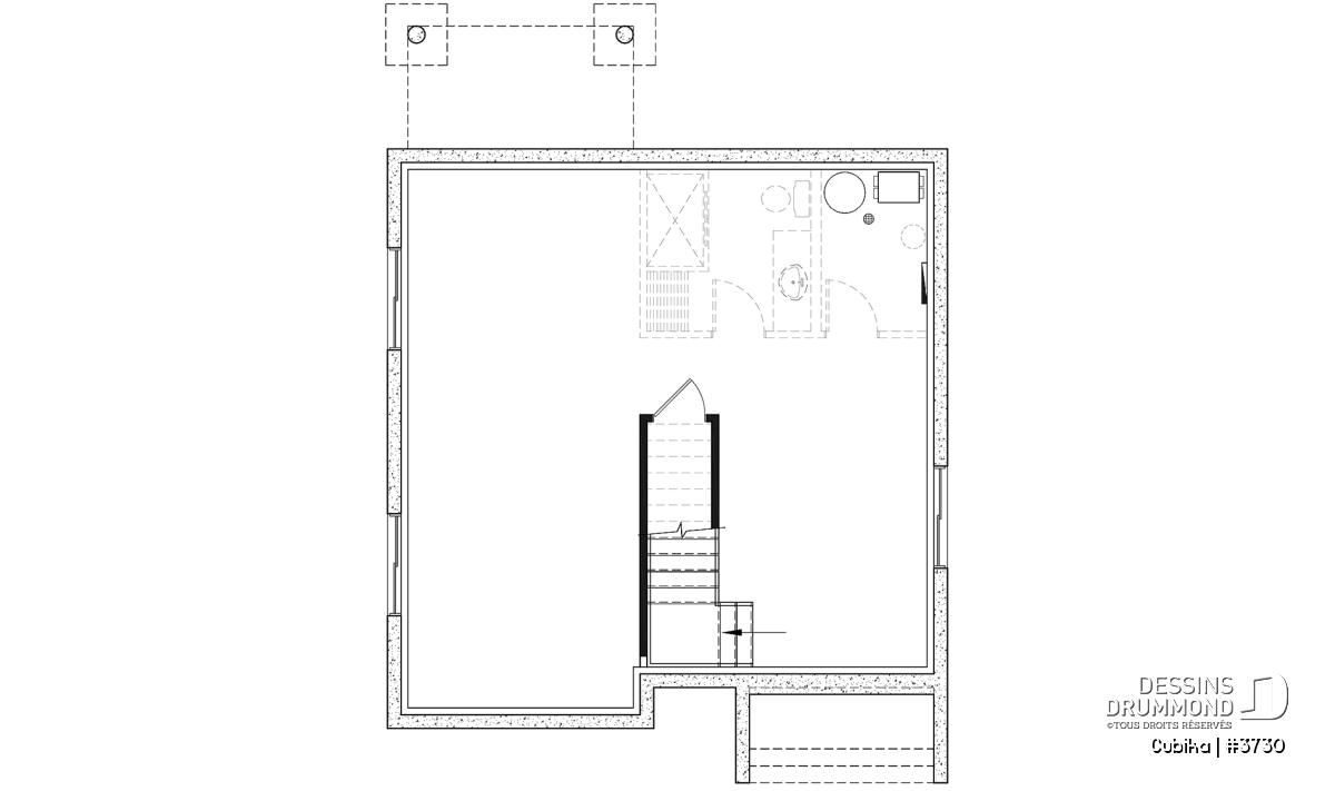
Sous-sol - Plan de petite maison contemporaine 2 étages, 3 chambres, salle de lavage à l'étage, garde-manger - Cubika

Sous-sol

Élévation arrière - Cubika

Élévation arrière

Vue intérieure - Cubika

Vue intérieure

Cubika Plan de maison 3730

Plan de petite maison contemporaine 2 étages, 3 chambres, salle de lavage à l'étage, garde-manger

À partir de

1440$

Fiche technique sommaire Plan #3730
Estimation ($) 352,120$
Surface habitable 1454 pi² Chambre 3
Salle de Bain 1 Salle d'eau 1
Fondation incluse Sous-sol aménageable Garage -
Largeur 27'4" Profondeur 28'4"

Besoin d’aide ?

Nos experts vous guident dans votre projet grâce à plus de 30 bureaux au Québec.

Joignez-nous

Consultez notre guide utilisateur

Un outil conçu pour vous simplifier la vie.

Ouvrir le guide

Un accompagnement sur mesure

De la modification de plans au design d’intérieur, nous vous guidons à chaque étape.

Découvrir nos services

Détails supplémentaires

Estimation

Spécifications générales

Surface aménagée totale
1454 pi²
Rez-de-chaussée
727 pi²
Étage
727 pi²
Sous-sol
727 pi²
Largeur
27'4"
Profondeur
28'4"
Hauteur dessus fondations au faite
23'1"
Murs extérieurs
2 X 6
Murs extérieurs
2 X 6
Sous-sol aménageable
Autres fondations disponibles (des frais peuvent s'appliquer)
Dalle flottante, Vide sanitaire, Dalle monolithique
Code Entrepreneur
C

Spécifications sur les pièces

Chambre(s)
3
Salle(s) de bain complète(s)
1
Demi Salle(s) de Bain
1
Type de garage
-
Superficie balcon et/ou perron abrité
42 pi²

Sous-sol

Rez-de-chaussée

Pièces
Dimensions
Plafond
Cuisine
11'6" x 12'4"
~ 8'0"
Garde-manger
3'2" x 7'3"
~ 8'0"
Vestiaire
5'0" x 5'2"
~ 8'0"
Entrée ou vestibule
8'10" x 4'4"
~ 8'0"
Salle de bain
7'3" x 5'2"
~ 8'0"
Lingerie
2'2" x 1'4"
~ 8'0"
Salle de séjour
11'8" x 14'8"
~ 8'0"
Salle à manger
11'0" x 12'4"
~ 8'0"
Patio
12'0" x 6'0"
N/D
Perron
10'4" x 4'8"
~ 8'4"

Étage

Pièces
Dimensions
Plafond
Chambre à coucher
11'8" x 12'6"
~ 8'0"
Walk-in
8'0" x 4'6"
~ 8'0"
Chambre à coucher
9'4" x 9'4"
~ 8'0"
Garde-robe
2'0" x 5'2"
~ 8'0"
Chambre à coucher
10'2" x 12'0"
~ 8'0"
Garde-robe
4'4" x 2'0"
~ 8'0"
Salle de bain complète
7'10" x 12'6"
~ 8'0"
Lingerie
1'2" x 4'0"
~ 8'0"
Douche
4'0" x 3'0"
~ 8'0"
Salle de lavage
5'8" x 9'4"
~ 8'0"

Plan de maison moderne, de forme cubique, offrant 3 chambres et salle de lavage à l'étage!


Le plan de maison CUBIKA(#3730), offre une maison de forme cubique qui au style très moderne et contemporain. De plus, le fait que le plan soit de cette forme diminue les coûts de construction. Trois chambres, une salle de bain et une salle d’eau se retrouvent dans les 1 454 Pieds de ce plan. En plus de la salle de séjour, la cuisine et la salle à manger, un sous-sol est aménageable.

De l’extérieur, l’aménagement du revêtement donne un look très prestigieux et moderne. Avec plusieurs textures et couleurs, comme le toit de la galerie foncé et carré, des contours de fenêtres noirs, la porte double vitrée, l’ajout d’une touche de blanc et d’un pan de mur en bois décoratif, le look est parfait. Veuillez noter qu’ici aussi, de l’économie est créée, en priorisant d’autres matériaux tout aussi intéressants que la maçonnerie et un toit complexe. Ceux-ci sont plus dispendieux, en les remplaçant avec cette option, la maison devient plus abordable.

Une fois entrée dans la maison, une aire spacieuse avec une banquette et une garde-robe walk-in fait office de vestibule. Un peu plus loin sur la droite, nous retrouvons la salle d’eau, avant l’espace cuisine et salle à manger. La cuisine, comprenant un ilot central et un évier double, possède également un garde-manger de type walk-in se rend très fonctionnelle et à aire ouverte sur l’espace de salle à manger. Cette dernière laisse entrer beaucoup de luminosité grâce à une grande fenêtre d’un côté, et une porte patio sur le mur perpendiculaire, donnant accès à la terrasse extérieure. Pour compléter le rez-de-chaussée, la salle de séjour se trouve au-devant de la maison. Aussi très éclairé grâce entre autres à l'une des grandes fenêtres de la façade.

Les trois chambres, dont celles des maîtres avec la deuxième grande fenêtre de la façade et un walk-in, se trouvent à l’étage. Les deux autres chambres sont de bonne dimension, pouvant aisément servir de chambre d’enfants et/ou chambre d’amis. De plus, une salle de bain avec une douche séparée du bain, avec un évier double et la salle de lavage sont sur le même étage.

CUBIKA, une maison moderne avec un coût abordable pour autant de commodité et espace.

Éléments distinctifs

Plan de maison moderne cubique.
Plancher offrant 3 chambre.
Grand vestiaire d'entrée.
Salle de lavage à l'étage.
Cuisine avec garde-manger et îlot.
Salle d'eau au rez-de-chaussée.
Chambre des parents avec garde-robe de type walk-in.
Salle de lavage à l'étage.
Sous-sol non fini, à aménager selon vos besoins.

Particularité(s) du plan

Garde-manger, Vue paronamique, Salle de lavage à l'étage, Ilôt, Walk-in ch. maîtres, Vestiaire, Aire ouverte, Banquette, Bain et douche séparés, Lavabo double

Style(s) architectural du plan

Moderne, Contemporain / Zen, Transitionnel

Maibec
Maibec
Moderne
À partir de 6,25$/pi².

Spécialiste des systèmes de revêtement

Ventilation Maximum
Ventilation Maximum
Anti-rafale

Entreprise manufacturière qui vends des ventilateurs de toiture, des clapets muraux et des entrées d'air.

Plans similaires
Logo Dessins Drummond image Dessins Drummond
Le modèle Cubika est protégé par la loi sur les droits d'auteur.

Les illustrations présentées peuvent différer du plan détaillé que vous recevrez, car ces derniers sont régulièrement ajustés afin de respecter les normes de construction en vigueur.

En savoir plus

Une question ou un commentaire sur ce plan ?

Information de contact

Votre demande

Ajouter vos images ou photos

Pour ajouter une ou des photos, veuillez cliquer ou glisser vos fichiers dans la zone ci-bas. Vous pouvez ajouter jusqu'à huit photos JPG ou JPEG. Cette opération n'est pas obligatoire.

Désolé, votre navigateur ne supporte pas l'envoi de fichier.