Vue avant - MODÈLE DE BASE - Plan contemporain 3 chambres, îlot & garde-manger, buanderie, chute linge, vestibule fermé, bureau à domicile - Essex 3

Vue avant - MODÈLE DE BASE

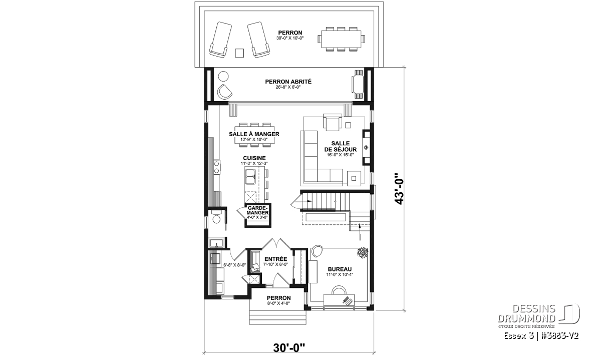
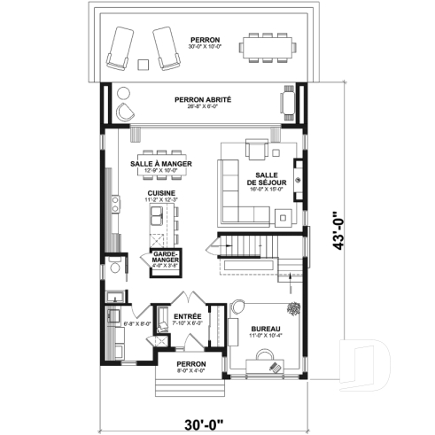
Rez-de-chaussée - Plan contemporain 3 chambres, îlot & garde-manger, buanderie, chute linge, vestibule fermé, bureau à domicile - Essex 3

Rez-de-chaussée

Étage - Plan contemporain 3 chambres, îlot & garde-manger, buanderie, chute linge, vestibule fermé, bureau à domicile - Essex 3

Étage

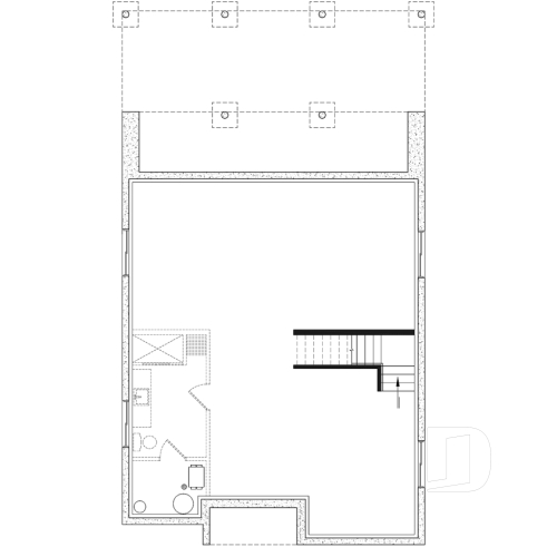
Sous-sol - Plan contemporain 3 chambres, îlot & garde-manger, buanderie, chute linge, vestibule fermé, bureau à domicile - Essex 3

Sous-sol

Vue arrière - MODÈLE DE BASE - Essex 3

Vue arrière - MODÈLE DE BASE

Vue arrière - MODÈLE DE BASE - Essex 3

Vue arrière - MODÈLE DE BASE

Vue intérieure - Essex 3

Vue intérieure

Version couleur no. 1 - Vue avant - Essex 3

Version couleur no. 1 - Vue avant

Version couleur no. 2 - Vue avant - Essex 3

Version couleur no. 2 - Vue avant

Essex 3 Plan de maison 3883-V2

Plan contemporain 3 chambres, îlot & garde-manger, buanderie, chute linge, vestibule fermé, bureau à domicile

À partir de

1655$

Fiche technique sommaire Plan #3883-V2
Estimation ($) 593,842$
Surface habitable 2063 pi² Chambre 3
Salle de Bain 2 Salle d'eau 1
Fondation incluse Sous-sol aménageable Garage -
Largeur 30'0" Profondeur 43'0"

Besoin d’aide ?

Nos experts vous guident dans votre projet grâce à plus de 30 bureaux au Québec.

Joignez-nous

Consultez notre guide utilisateur

Un outil conçu pour vous simplifier la vie.

Ouvrir le guide

Un accompagnement sur mesure

De la modification de plans au design d’intérieur, nous vous guidons à chaque étape.

Découvrir nos services

Détails supplémentaires

Estimation

Spécifications générales

Surface aménagée totale
2063 pi²
Rez-de-chaussée
1056 pi²
Étage
1007 pi²
Sous-sol
1056 pi²
Largeur
30'0"
Profondeur
43'0"
Hauteur dessus fondations au faite
22'8"
Murs extérieurs
2 X 6
Murs extérieurs
2 X 6
Sous-sol aménageable
Autres fondations disponibles (des frais peuvent s'appliquer)
Dalle flottante, Vide sanitaire, Dalle monolithique
Code Entrepreneur
E

Spécifications sur les pièces

Chambre(s)
3
Salle(s) de bain complète(s)
2
Demi Salle(s) de Bain
1
Type de garage
-
Superficie balcon et/ou perron abrité
197 pi²

Étage

Pièces
Dimensions
Plafond
Suite des maîtres
16'0" x 15'0"
~ 8'0"
Walk-in
6'0" x 15'0"
~ 8'0"
Salle de douche
6'0" x 10'0"
~ 8'0"
Chambre à coucher
11'0" x 11'0"
~ 8'0"
Garde-robe
6'0" x 2'0"
~ 8'0"
Chambre à coucher
11'4" x 10'2"
~ 8'0"
Garde-robe
2'0" x 6'2"
~ 8'0"
Balcon
26'8" x 6'0"
N/D
Salle de bain complète
14'8" x 7'8"
~ 8'0"

Rez-de-chaussée

Pièces
Dimensions
Plafond
Salle de séjour
16'0" x 15'0"
~ 9'0"
Bureau à domicile
11'1" x 10'0"
~ 9'0"
Entrée ou vestibule
7'7" x 6'0"
~ 9'0"
Garde-robe
2'0" x 6'0"
~ 9'0"
Salle de lavage
7'1" x 8'0"
~ 9'0"
Cuisine/salle à manger
12'9" x 17'4"
~ 9'0"
Perron abrité
26'8" x 6'0"
N/D
Perron abrité
9'4" x 4'0"
N/D
Coin toilette/lavabo
3'0" x 7'0"
~ 9'0"
Garde-manger
4'0" x 3'8"
~ 9'0"
Patio
30'0" x 10'0"
N/D

Sous-sol

Modèle de maison de style cubique, avec 3 à 4 chambres.

Le style épuré de ce modèle cubique plaira à notre clientèle avant-gardiste avec budget restreint qui cherche à se distinguer en s’offrant une maison tendance aux multiples commodités. Offrant 3 à 4 chambres dont une pièce versatile au rez-de-chaussée, ce plancher plaira aussi aux familles avec plusieurs enfants (possibilité de 4 chambres et aussi d’aménager le sous-sol) ainsi qu’aux familles recomposées qui ont besoin de beaucoup d’espace.

Le plafond du rez-de-chaussée est à 9’ partout. L’entrée propose un vestibule fermé avec grand garde-robe. Un bureau à domicile est planifié près de l’entrée principale avant de la maison, mais pourra aussi aisément être converti en pouponnière, en chambre #5 ou en salle de jeux, selon le statut de votre famille. La suite des maîtres, localisée à l’étage, plaira aux familles dont les enfants sont plus jeunes, pour une bonne proximité avec ces derniers. Elle comporte l’accès à un balcon privé couvert, et offre aussi un grand walk-in. La salle de bain des maîtres privée propose une vanité, une grande douche, et une toilette.

La cuisine offre beaucoup d’espace comptoir ainsi qu’un îlot et un garde-manger attenant, et localisée près de la buanderie et de la salle d’eau. Cette dernière est tout de même intime et suffisamment en retrait de la cuisine pour plus de confort.

La salle de séjour propose un plafond à 9 pieds ainsi qu’un foyer. De plus, des portes patio rétractables sont accessibles de la salle à dîner et salle familiale et donne accès à une grande terrasse couverte à l’arrière de la maison. Idéal pour recevoir famille et amis!

Deux chambres secondaires de bon format à l’étage se partagent une grande salle de bain offrant bain, grande douche, vanité, chute à linge et toilette.

Le sous-sol est à aménager et permettra l’ajout de chambres supplémentaires, de rangement, de cinéma maison, etc.

Deux versions avec garage existent de ce modèle, svp consultez nos plans 3883 et 3883-V1 si vous recherchez ce type de plan.

Éléments distinctifs

Maison moderne de style cubique.
Plafond de 9' au rez-de-chaussée.
Beaucoup de lumière naturelle venant de l'arrière de la maison, autant pour le rez-de-chaussée, que pour la chambre des maîtres à l'étage.
Vestibule fermé avec garde-robe.
Bureau à domicile ou salle de jeux ou chambre no. 4.
Suite chambre des maîtres avec balcon privé et walk-in. Salle de bain des maîtres privée avec grande douche.
Cuisine avec beaucoup d'espace comptoir, un îlot et un garde-manger. Salle de séjour avec foyer.
Portes patio rétractables au secteur salle à dîner et salle de séjour, menant à une terrasse abritée à l'arrière de la maison.
Salle d'eau et buanderie avec chute à linge localisée près de la cuisine, mais en retrait.
2 chambres secondaires de bon format se partagent une très grande salle de bain avec douche, bain, chute à linge et toilette.
Sous-sol à aménager pour chambres supplémentaires, rangement, cinéma maison, etc.

Particularité(s) du plan

Salle de lavage au rez-de-chaussée, Chute à linge, Bureau / Salle étude, Foyer, Ilôt, Garde-manger, Plafond à plus de 8', Suite des maîtres à l'étage, Terrain étroit, Terrasse abritée

Style(s) architectural du plan

Contemporain / Zen, Moderne

Plans similaires
Logo Dessins Drummond image Dessins Drummond
Le modèle Essex 3 est protégé par la loi sur les droits d'auteur.

Les illustrations présentées peuvent différer du plan détaillé que vous recevrez, car ces derniers sont régulièrement ajustés afin de respecter les normes de construction en vigueur.

En savoir plus

Une question ou un commentaire sur ce plan ?

Information de contact

Votre demande

Ajouter vos images ou photos

Pour ajouter une ou des photos, veuillez cliquer ou glisser vos fichiers dans la zone ci-bas. Vous pouvez ajouter jusqu'à huit photos JPG ou JPEG. Cette opération n'est pas obligatoire.

Désolé, votre navigateur ne supporte pas l'envoi de fichier.