Alternative - Plan de maison moderne compacte avec aire ouverte, suite à l’étage et grande terrasse - Joshua

Alternative

Rez-de-chaussée - Plan de maison moderne compacte avec aire ouverte, suite à l’étage et grande terrasse - Joshua

Rez-de-chaussée

Étage - Plan de maison moderne compacte avec aire ouverte, suite à l’étage et grande terrasse - Joshua

Étage

Rez-de-chaussée (Optionel $) - Plan de maison moderne compacte avec aire ouverte, suite à l’étage et grande terrasse - Joshua

Rez-de-chaussée (Optionel $)

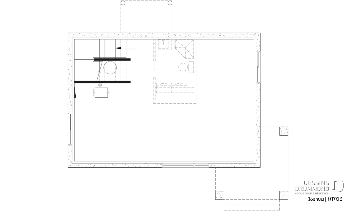
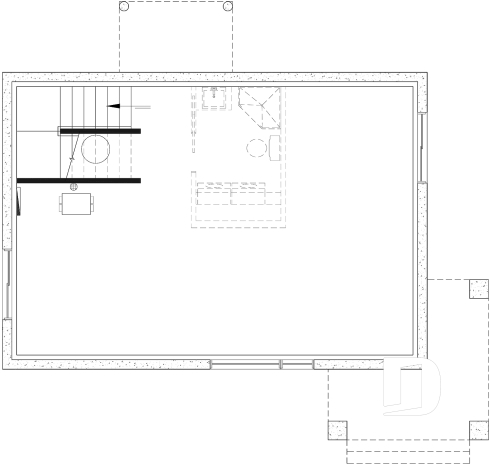
Sous-sol aménageable (Optionel $) - Plan de maison moderne compacte avec aire ouverte, suite à l’étage et grande terrasse - Joshua

Sous-sol aménageable (Optionel $)

Vue avant - MODÈLE DE BASE - Joshua

Vue avant - MODÈLE DE BASE

Vue avant - MODÈLE DE BASE - Joshua

Vue avant - MODÈLE DE BASE

Élévation arrière - Joshua

Élévation arrière

Alternative - Joshua

Alternative

Vue intérieure - Joshua

Vue intérieure

Version couleur no. 3 - Vue avant - Joshua

Version couleur no. 3 - Vue avant

Version couleur no. 4 - Vue avant - Joshua

Version couleur no. 4 - Vue avant

Version couleur no. 5 - Vue avant - Joshua

Version couleur no. 5 - Vue avant

Joshua Plan de maison 1703

Plan de maison moderne compacte avec aire ouverte, suite à l’étage et grande terrasse

À partir de

1215$

Fiche technique sommaire Plan #1703
Estimation ($) 264,664$
Surface habitable 924 pi² Chambre 1, 2
Salle de Bain 2 Salle d'eau -
Fondation incluse Dalle flottante Garage -
Largeur 30'0" Profondeur 21'0"

Besoin d’aide ?

Nos experts vous guident dans votre projet grâce à plus de 30 bureaux au Québec.

Joignez-nous

Consultez notre guide utilisateur

Un outil conçu pour vous simplifier la vie.

Ouvrir le guide

Besoin d’une assurance habitation ?

Pour obtenir votre prix, c’est juste ici

Obtenir une soumission

Les photos de cette maison peuvent différer du plan d'origine, duquel elles proviennent. Pour toute modification, veuillez contacter l’un de nos 30 bureaux.

Détails supplémentaires

Estimation

Spécifications générales

Surface aménagée totale
924 pi²
Rez-de-chaussée
630 pi²
Étage
294 pi²
Rez-de-chaussée (Optionel $)
630 pi²
Sous-sol aménageable (Optionel $)
630 pi²
Largeur
30'0"
Profondeur
21'0"
Hauteur dessus fondations au faite
20'11"
Murs extérieurs
2 X 6
Murs extérieurs
2 X 6
Autres fondations disponibles (des frais peuvent s'appliquer)
Sous-sol aménageable, Vide sanitaire, Dalle monolithique
Code Entrepreneur
A

Spécifications sur les pièces

Chambre(s)
1, 2
Salle(s) de bain complète(s)
2
Demi Salle(s) de Bain
-
Type de garage
-
Superficie balcon et/ou perron abrité
125 pi²

Rez-de-chaussée

Pièces
Dimensions
Plafond
Cuisine/dinette
13'4" x 9'0"
~ 8'0"
Salle de bain
5'0" x 9'0"
~ 8'0"
Entrée ou vestibule
4'4" x 6'4"
~ 8'0"
Garde-robe
2'0" x 4'6"
~ 8'0"
Salle de séjour
11'10" x 10'8"
~ 8'0"
Chambre à coucher
9'8" x 10'8"
~ 8'0"
Garde-robe
6'6" x 2'0"
~ 8'0"
Garde-robe
2'0" x 1'4"
~ 8'0"
Coin laveuse/sécheuse
6'0" x 5'2"
~ 8'0"
Perron abrité
11'4" x 11'4"
N/D

Étage

Pièces
Dimensions
Plafond
Suite des maîtres
12'10" x 11'6"
~ 8'0"
Garde-robe
2'0" x 5'6"
~ 8'0"
Salle de douche
5'4" x 6'4"
~ 8'0"
Terrasse
16'0" x 21'0"
N/D

Sous-sol aménageable (Optionel $)

Rez-de-chaussée (Optionel $)

Plan de maison moderne compacte et lumineuse au design contemporain et chaleureux

Cette maison moderne séduit dès le premier regard par son design moderne et équilibré, où la simplicité des lignes se marie à la chaleur des matériaux. Compacte, mais pensée dans les moindres détails, elle offre un style architectural intemporel qui allie esthétisme, fonctionnalité et confort.

Sa façade élégante combine la pierre naturelle, les colonnes décoratives et des garnitures soignées, créant un cachet unique qui s’harmonise aussi bien en milieu urbain qu’en campagne. À l’avant, une galerie couverte accueillante invite à profiter des saisons tout en ajoutant un charme indéniable à l’extérieur.

Dès l’entrée, le vestibule fermé avec sa grande garde-robe permet un rangement pratique et bien organisé, un détail essentiel pour un quotidien sans encombre. Cet espace mène vers un vaste espace familial à aire ouverte, où la lumière naturelle occupe une place de choix grâce à une fenestration abondante. Le salon, la salle à manger et la cuisine s’enchaînent harmonieusement, créant un environnement convivial et aéré.

La cuisine fonctionnelle séduit par sa disposition efficace et sa porte-patio donnant sur la cour arrière, parfaite pour accéder à la terrasse ou au jardin. Tout près, un coin salle de lavage discret accueille laveuse et sécheuse superposées, maximisant ainsi l’espace disponible.

Au rez-de-chaussée se trouve également une chambre polyvalente pouvant servir de bureau à domicile, de chambre d’amis ou d’espace pour un adolescent, selon les besoins des occupants. Une salle de bain complète vient compléter cet étage, alliant praticité et design contemporain.

À l’étage, la suite principale s’impose comme un véritable refuge privé. Occupant tout le niveau, elle propose une salle de douche élégante et un accès direct à une grande terrasse extérieure grâce à une porte-patio. Cet espace extérieur devient rapidement un lieu de détente privilégié, parfait pour un café matinal ou un moment de lecture au soleil.

Reposant sur une fondation de type dalle flottante, ce plan est idéal pour les terrains sans sous-sol ou pour ceux qui recherchent une maison compacte, simple à entretenir et écoénergétique.

Alliant style contemporain, luminosité et confort intelligent, cette maison de petite dimension offre tout ce qu’il faut pour vivre pleinement, sans compromis sur le charme ni sur la fonctionnalité.

Éléments distinctifs

Maison contemporaine compacte et lumineuse.
Design aux lignes épurées et aux matériaux chaleureux combinant pierre, colonnes décoratives et garnitures soignées.
Galerie couverte à l’avant, idéale pour profiter des saisons et rehausser le charme de la façade.
Entrée pratique avec vestibule fermé et grande garde-robe pour un rangement optimal.
Espace familial à aire ouverte, baigné de lumière naturelle grâce à une fenestration abondante.
Cuisine fonctionnelle avec porte-patio donnant sur l’extérieur et coin buanderie adjacent, prévu pour laveuse/sécheuse superposées.
Chambre secondaire ou bureau polyvalent au rez-de-chaussée, accompagné d’une salle de bain complète.
Suite principale à l’étage, occupant tout l’espace, avec salle de douche privée et accès direct à une grande terrasse via porte-patio.
Fondation incluse au plan: *dalle flottante.
---
*Sous-sol aménageable (optionnel $):
Si vous souhaitez acheter l’option du plan de sous-sol aménageable (le plan de la maison vous sera livré avec un plan de sous-sol non fini), veuillez sélectionner cette option dans le panier d'achat, dans la section "Sélectionner votre fondation". Si vous ne sélectionnez pas cette option, vous recevrez une dalle flottante comme fondation, sans frais additionnel.

Particularité(s) du plan

Balcon à l'étage, Salle de lavage au rez-de-chaussée, Aire ouverte, Suite des maîtres à l'étage

Style(s) architectural du plan

Contemporain / Zen, Moderne, Moderne rustique, Chalet, Mid-century

Maibec
Maibec
Ridgewood D-5
À partir de 2,75$/pi².

Spécialiste des systèmes de revêtement

Maibec
Maibec
Ridgewood D-5
À partir de 2,75$/pi².

Spécialiste des systèmes de revêtement

Willki
Willki

Les panneaux de pierre vissés Willki transforment vos projets en un clin d'œil. Faciles à installer, durables et écoresponsables, ils offrent le look naturel de la pierre pour une fraction du coût. *Peut nécessiter une modification au plan

Willki
Willki

Les panneaux de pierre vissés Willki transforment vos projets en un clin d'œil. Faciles à installer, durables et écoresponsables, ils offrent le look naturel de la pierre pour une fraction du coût. *Peut nécessiter une modification au plan

Plans similaires
Logo Dessins Drummond image Dessins Drummond
Le modèle Joshua est protégé par la loi sur les droits d'auteur.

Les illustrations présentées peuvent différer du plan détaillé que vous recevrez, car ces derniers sont régulièrement ajustés afin de respecter les normes de construction en vigueur.

En savoir plus

Une question ou un commentaire sur ce plan ?

Information de contact

Votre demande

Ajouter vos images ou photos

Pour ajouter une ou des photos, veuillez cliquer ou glisser vos fichiers dans la zone ci-bas. Vous pouvez ajouter jusqu'à huit photos JPG ou JPEG. Cette opération n'est pas obligatoire.

Désolé, votre navigateur ne supporte pas l'envoi de fichier.