Vue avant - MODÈLE DE BASE - Petite maison moderne 2 chambres, vestiaire, garde manger, salle de lavage, 2 terrasses dont une à l'étage - Joshua 2

Vue avant - MODÈLE DE BASE

Rez-de-chaussée - Petite maison moderne 2 chambres, vestiaire, garde manger, salle de lavage, 2 terrasses dont une à l'étage - Joshua 2

Rez-de-chaussée

Étage - Petite maison moderne 2 chambres, vestiaire, garde manger, salle de lavage, 2 terrasses dont une à l'étage - Joshua 2

Étage

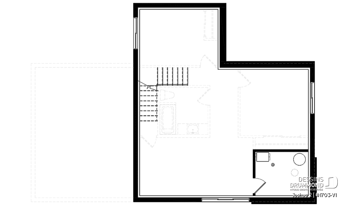
Sous-sol aménageable - Petite maison moderne 2 chambres, vestiaire, garde manger, salle de lavage, 2 terrasses dont une à l'étage - Joshua 2

Sous-sol aménageable

Élévation arrière - Joshua 2

Élévation arrière

Vue intérieure - Joshua 2

Vue intérieure

Version couleur no. 1 - Vue avant - Joshua 2

Version couleur no. 1 - Vue avant

Version couleur no. 2 - Vue avant - Joshua 2

Version couleur no. 2 - Vue avant

Joshua 2 Plan de maison 1703-V1

Petite maison moderne 2 chambres, vestiaire, garde manger, salle de lavage, 2 terrasses dont une à l'étage

À partir de

1380$

Fiche technique sommaire Plan #1703-V1
Estimation ($) 390,723$
Surface habitable 1188 pi² Chambre 2
Salle de Bain 2 Salle d'eau -
Fondation incluse Sous-sol aménageable Garage 1 voiture
Largeur 47'0" Profondeur 33'8"

Besoin d’aide ?

Nos experts vous guident dans votre projet grâce à plus de 30 bureaux au Québec.

Joignez-nous

Consultez notre guide utilisateur

Un outil conçu pour vous simplifier la vie.

Ouvrir le guide

Besoin d’une assurance habitation ?

Pour obtenir votre prix, c’est juste ici

Obtenir une soumission

Détails supplémentaires

Estimation

Spécifications générales

Surface aménagée totale
1188 pi²
Rez-de-chaussée
843 pi²
Étage
345 pi²
Sous-sol aménageable
843 pi²
Largeur
47'0"
Profondeur
33'8"
Hauteur dessus fondations au faite
29'5"
Murs extérieurs
2 X 6
Murs extérieurs
2 X 6
Sous-sol aménageable
Autres fondations disponibles (des frais peuvent s'appliquer)
Sous-sol aménageable + sortie extérieure (Rez-de-jardin), Dalle flottante, Vide sanitaire, Dalle monolithique
Code Entrepreneur
B

Spécifications sur les pièces

Chambre(s)
2
Salle(s) de bain complète(s)
2
Demi Salle(s) de Bain
-
Type de garage
1 voiture (348 pi²)
Superficie balcon et/ou perron abrité
51 pi²

Sous-sol aménageable

Rez-de-chaussée

Pièces
Dimensions
Plafond
Chambre à coucher
11'4" x 10'0"
~ 8'0"
Garde-robe
2'0" x 7'4"
~ 8'0"
Cuisine
8'0" x 12'10"
~ 8'0"
Garde-manger
7'8" x 2'8"
~ 8'0"
Entrée ou vestibule
5'4" x 5'5"
~ 8'0"
Garde-robe
2'0" x 5'5"
~ 8'0"
Garage
16'4" x 21'4"
~ 12'5"
Galerie
12'9" x 4'0"
~ 8'4"
Salle à manger
8'8" x 8'10"
~ 8'0"
Lingerie
2'0" x 2'0"
~ 8'0"
Terrasse
15'0" x 10'4"
N/D
Vestiaire
7'4" x 8'8"
~ 8'0"
Salle de séjour
12'10" x 12'10"
~ 8'0"
Salle de bain complète
8'0" x 5'0"
~ 8'0"

Étage

Pièces
Dimensions
Plafond
Chambre à coucher
13'8" x 12'0"
~ 11'10"
Salle de douche
4'10" x 9'8"
~ 11'10"
Walk-in
5'0" x 8'0"
N/D
Terrasse
15'0" x 23'0"
N/D

Plan de maison moderne originale offrant 2 terrasses, et une superbe chambre des parents à l'étage!

Le plan de maison Joshua 2 (1703-V1) propose une surface habitable de 1188pi2. La hauteur des plafonds du rdc sont d’une hauteur standard de 8pi. En entrant dans cette maison moderne, un vestibule nous sépare de la salle de séjour, de la cuisine et la salle à manger qui sont à aires ouvertes.

La cuisine, possède un grand îlot ainsi qu’un garde manger de style walk-in. Elle donne sur la salle à manger à air ouverte et cette dernière est illuminée par la porte patio qui donne sur la première terrasse, d’une grandeur intéressante pour recevoir plusieurs convives et profiter de l’extérieur.

En terme de commodité, un vestiaire comprenant l’espace pour une laveuse et sécheuse se trouve au rdc, près de l’accès pour le garage. Ce dernier, d’une grandeur simple, reste d’une dimension intéressante pour y installer un atelier et du rangement supplémentaire.

La chambre du rdc se trouve à l’arrière de la maison. Les dimensions permettent plusieurs utilités, comme une chambre standard ou bien un bureau pour le télétravail.

A l’étage, se trouve la suite des parents. Avec les plafonds de 10pi. Comprenant une salle de bain complète, d’une chambre de 13-8 x 12, donnant sur la deuxième (et non la moindre!) terrasse d’une grandeur spectaculaire de 15 x 23.

Éléments distinctifs

Maison moderne originale offrant un plancher différent efficace et avec grande terrasse à l'étage.
Superbe chambre des parents avec salle de bain privée et garde-robe de type walk-in.
Rez-de-chaussée à aire ouverte.
Grand garde-manger de type walk-in à la cuisine.
Espace versatile de la chambre #2 qui peut être utilisée en bureau ou salle de jeux.
Belle terrasse au premier, près de la cuisine.
Grande buanderie au premier avec coin vestiaire.
Garage une voiture.

Particularité(s) du plan

Aire ouverte, Vestiaire, Salle de lavage au rez-de-chaussée, Garde-manger, Ilôt, Balcon à l'étage, Suite des maîtres à l'étage, Plafond en pente, Walk-in ch. maîtres, Vestibule, Lavabo double

Style(s) architectural du plan

Moderne, Contemporain / Zen, Moderne rustique, Chalet, Chalet de ski, Mid-century

Maibec
Maibec
Moderne
À partir de 7,00$/pi².

Spécialiste des systèmes de revêtement

Maibec
Maibec
Moderne
À partir de 7,00$/pi².

Spécialiste des systèmes de revêtement

Ventilation Maximum
Ventilation Maximum
Anti-rafale

Entreprise manufacturière qui vends des ventilateurs de toiture, des clapets muraux et des entrées d'air.

Willki
Willki
*Peut nécessiter une modification au plan

Les panneaux de pierre vissés Willki transforment vos projets en un clin d'œil. Faciles à installer, durables et écoresponsables, ils offrent le look naturel de la pierre pour une fraction du coût. *Peut nécessiter une modification au plan

Boiseries Raymond
Boiseries Raymond
Porte Innovia 4

Chef de file dans le préassemblage de portes intérieures au Québec. Cette force nous permet de vous fournir une variété de modèles préassemblées selon vos spécifications et selon le volume de production requis.

Plans similaires
Logo Dessins Drummond image Dessins Drummond
Le modèle Joshua 2 est protégé par la loi sur les droits d'auteur.

Les illustrations présentées peuvent différer du plan détaillé que vous recevrez, car ces derniers sont régulièrement ajustés afin de respecter les normes de construction en vigueur.

En savoir plus

Une question ou un commentaire sur ce plan ?

Information de contact

Votre demande

Ajouter vos images ou photos

Pour ajouter une ou des photos, veuillez cliquer ou glisser vos fichiers dans la zone ci-bas. Vous pouvez ajouter jusqu'à huit photos JPG ou JPEG. Cette opération n'est pas obligatoire.

Désolé, votre navigateur ne supporte pas l'envoi de fichier.