Vue avant - MODÈLE DE BASE - Plan de maison contemporaine et éco-responsable proposant 3 chambres, une serre et un garage - PUR 4

Vue avant - MODÈLE DE BASE

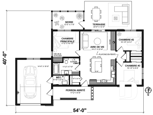
Rez-de-chaussée - Plan de maison contemporaine et éco-responsable proposant 3 chambres, une serre et un garage - PUR 4

Rez-de-chaussée

Vue arrière - MODÈLE DE BASE - PUR 4

Vue arrière - MODÈLE DE BASE

Élévation arrière - PUR 4

Élévation arrière

PUR 4 Plan de maison 90101-V3

Plan de maison contemporaine et éco-responsable proposant 3 chambres, une serre et un garage

À partir de

1380$

Fiche technique sommaire Plan #90101-V3
Estimation ($) 322,768$
Surface habitable 1048 pi² Chambre 2, 3
Salle de Bain 1 Salle d'eau -
Fondation incluse Dalle flottante Garage 1 voiture
Largeur 54'2" Profondeur 40'0"

Besoin d’aide ?

Nos experts vous guident dans votre projet grâce à plus de 30 bureaux au Québec.

Joignez-nous

Consultez notre guide utilisateur

Un outil conçu pour vous simplifier la vie.

Ouvrir le guide

Un accompagnement sur mesure

De la modification de plans au design d’intérieur, nous vous guidons à chaque étape.

Découvrir nos services

Détails supplémentaires

Estimation

Spécifications générales

Surface aménagée totale
1048 pi²
Rez-de-chaussée
1048 pi²
Largeur
54'2"
Profondeur
40'0"
Hauteur dessus fondations au faite
15'3"
Murs extérieurs
2 X 6
Murs extérieurs
2 X 6
Autres fondations disponibles (des frais peuvent s'appliquer)
Dalle monolithique
Code Entrepreneur
B

Spécifications sur les pièces

Chambre(s)
2, 3
Salle(s) de bain complète(s)
1
Demi Salle(s) de Bain
-
Type de garage
1 voiture (319 pi²)
Superficie balcon et/ou perron abrité
87 pi²

Rez-de-chaussée

Pièces
Dimensions
Plafond
Chambre à coucher
11'2" x 10'10"
~ 12'6"
Chambre à coucher
10'10" x 8'2"
~ 10'6"
Chambre à coucher
10'10" x 9'6"
~ 7'0"
Jardin intérieur
13'0" x 7'6"
~ 12'6"
Perron
17'2" x 5'8"
N/D
Pièce de mécanique
6'10" x 4'0"
~ 8'0"
Salle de bain
11'2" x 7'0"
~ 10'0"
Lingerie
3'0" x 1'4"
N/D
Terrasse abritée
20'0" x 12'0"
N/D
Garage
14'6" x 18'8"
~ 9'8"
Garde-robe
4'4" x 1'10"
~ 9'0"
Vestiaire
4'0" x 4'0"
~ 8'0"
Secteur activités
15'2" x 22'8"
~ 12'6"

Plan de maison éco-responsable pour un mode de vie minimaliste et évolutif

Créée pour une orientation au nord, la mini maison Pur 4 (#90101-V3) a tout pour satisfaire tes besoins minimalistes! La base de cette maison correspond à la mini maison Pur 3 (#90101-V2) qui contient une cuisine et salle à manger, un salon, 3 chambres, une salle de bain, une pièce mécanique et même une serre. Cette maison chaleureuse correspond à un petit budget tout en comprenant tous les éléments essentiels d’une maison.

À ce modèle, nous avons ajouté un garage comme on peut le voir dans la maison. Ton auto pourra donc dormir au chaud ou tu pourras utiliser cet espace pour bricoler de petits projets et entretenir ta serre. En même temps que d’ajouter le garage, tu peux aussi ajouter des panneaux solaires sur le toit de la serre afin d’être plus autonome en énergie.

Évidemment, tu peux ajouter les différentes évolutions dans l’ordre qui te plait et au moment que tu voudras. Le concept évolutif des différentes versions de la maison Pur est parfait pour évoluer selon tes besoins et ton budget. Ce concept te permet alors de construire ta maison de rêve avec le temps et d’éviter beaucoup d’erreurs et de compromis puisque tout est pensé d’avance!

Maison écologiquePLAN DE MAISON ÉCO-RESPONSABLE

Ce modèle fait partie de notre collection de "Plans éco-responsables" et voici ce qui distingue tous les plans inclus dans cette compilation:

Soleil: L'orientation de la maison planifiée en fonction de la course quotidienne du soleil, jumelée à la captation thermique des rayons du soleil par l'utilisation d'une fenestration optimale, afin de minimiser les frais de chauffage et maximiser la présence de la lumière naturelle.

Simplicité: Une maison aux volumes modestes assurant une construction simplifiée, tout en favorisant la maximisation des espaces intérieurs, afin de réduire le nombre de pied carrés et le coût de construction.

Saine: Une habitation pensée pour favoriser le bien-être et la santé de ses occupants en étant bien ventilée, en utilisant des matériaux durables (acier, bois, revêtement léger, fibrociment, entre autres) et non toxiques et en maximisant la luminosité naturelle.

Éléments distinctifs

**Plan de petite maison éco-responsable de style contemporain proposant 3 chambres et un garage.
La fondation prévue est une dalle flottante, mais autres options également disponibles via notre service de modification.
Belle serre donnant sur la chambre, et accessible par la terrasse arrière.
*Coût approx. de la serre inclus dans le coût de construction
***Le coût des poutres de bois illustrées en photos intérieures n'est pas inclus dans nos coûts approx. de construction.
Plancher à aire ouverte prévoyant un coin bureau.
Foyer au salon.
Salle de bain compète avec coin laveuse/sécheuse superposée.

-----
**Ce modèle fait partie de notre collection de "Plans éco-responsables" et voici ce qui distingue tous les plans inclus dans cette compilation:
SOLEIL :
L’orientation de la maison planifiée en fonction de la course quotidienne du soleil, jumelée à la captation thermique des rayons du soleil par l’utilisation d’une fenestration optimale, afin de minimiser les frais de chauffage et maximiser la présence de la lumière naturelle.
SIMPLICITÉ :
Une maison aux volumes modestes assurant une construction simplifiée, tout en favorisant la maximisation des espaces intérieurs, afin de réduire le nombre de pied carrés et le coût de construction.
SAINE :
Une habitation pensée pour favoriser le bien-être et la santé de ses occupants en étant bien ventilée, en utilisant des matériaux durables (acier, bois, revêtement léger, fibrociment, entre autres) et non toxiques et en maximisant la luminosité naturelle.

Particularité(s) du plan

Coin bureau, Foyer, Plafond en pente, Serre, Aire ouverte, Meuble(s) encastré(s)

Style(s) architectural du plan

Moderne, Chalet, Mid-century, Contemporain / Zen, Ranch

Plans similaires
Logo Dessins Drummond image Dessins Drummond
Le modèle PUR 4 est protégé par la loi sur les droits d'auteur.

Les illustrations présentées peuvent différer du plan détaillé que vous recevrez, car ces derniers sont régulièrement ajustés afin de respecter les normes de construction en vigueur.

En savoir plus

Une question ou un commentaire sur ce plan ?

Information de contact

Votre demande

Ajouter vos images ou photos

Pour ajouter une ou des photos, veuillez cliquer ou glisser vos fichiers dans la zone ci-bas. Vous pouvez ajouter jusqu'à huit photos JPG ou JPEG. Cette opération n'est pas obligatoire.

Désolé, votre navigateur ne supporte pas l'envoi de fichier.