Vue droite - Plan de petite maison scandinave éco-responsable, 1 à 4 chambres, bureau, finition sous-sol optionnel ($) - Rive

Vue droite

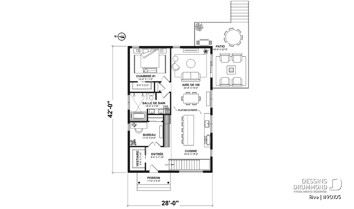
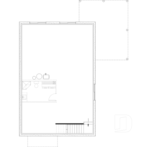
Rez-de-chaussée - Plan de petite maison scandinave éco-responsable, 1 à 4 chambres, bureau, finition sous-sol optionnel ($) - Rive

Rez-de-chaussée

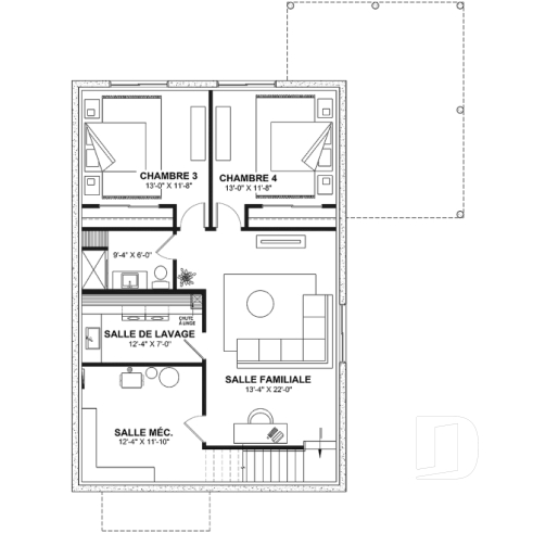
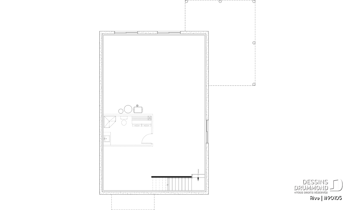
Sous-sol aménageable - Plan de petite maison scandinave éco-responsable, 1 à 4 chambres, bureau, finition sous-sol optionnel ($) - Rive

Sous-sol aménageable

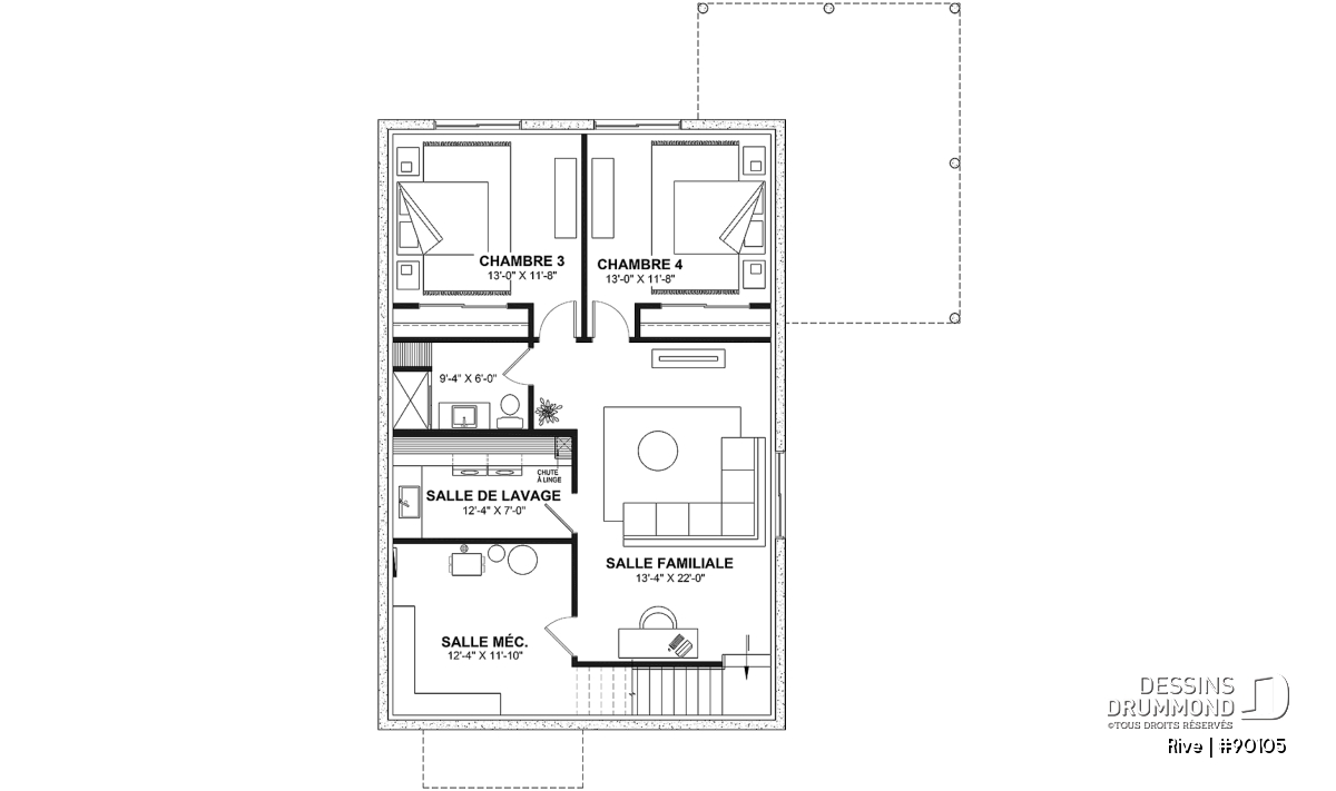
Sous-sol aménagé (Optionel $) - Plan de petite maison scandinave éco-responsable, 1 à 4 chambres, bureau, finition sous-sol optionnel ($) - Rive

Sous-sol aménagé (Optionel $)

Vue avant - MODÈLE DE BASE - Rive

Vue avant - MODÈLE DE BASE

Élévation arrière - Rive

Élévation arrière

Rive Plan de maison 90105

Plan de petite maison scandinave éco-responsable, 1 à 4 chambres, bureau, finition sous-sol optionnel ($)

À partir de

1380$

Fiche technique sommaire Plan #90105
Estimation ($) 299,439$ (Sous-sol non-fini) | 354,838$ (Sous-sol fini)
Surface habitable 1176 pi² Chambre 1, 2, 3, 4
Salle de Bain 2 Salle d'eau -
Fondation incluse Sous-sol aménageable Garage -
Largeur 28'0" Profondeur 42'0"

Besoin d’aide ?

Nos experts vous guident dans votre projet grâce à plus de 30 bureaux au Québec.

Joignez-nous

Consultez notre guide utilisateur

Un outil conçu pour vous simplifier la vie.

Ouvrir le guide

Un accompagnement sur mesure

De la modification de plans au design d’intérieur, nous vous guidons à chaque étape.

Découvrir nos services

Détails supplémentaires

Estimation

Spécifications générales

Surface aménagée totale
1176 pi²
Rez-de-chaussée
1176 pi²
Sous-sol aménageable
1176 pi²
Sous-sol aménagé (Optionel $)
1176 pi²
Largeur
28'0"
Profondeur
42'0"
Hauteur dessus fondations au faite
18'6"
Murs extérieurs
2 X 6
Murs extérieurs
2 X 6
Sous-sol aménageable
Autres fondations disponibles (des frais peuvent s'appliquer)
Sous-sol aménagé, Dalle flottante, Vide sanitaire, Dalle monolithique
Code Entrepreneur
B

Spécifications sur les pièces

Chambre(s)
1, 2, 3, 4
Salle(s) de bain complète(s)
2
Demi Salle(s) de Bain
-
Type de garage
-
Superficie balcon et/ou perron abrité
44 pi²

Rez-de-chaussée

Pièces
Dimensions
Plafond
Perron
11'0" x 4'0"
N/D
Entrée ou vestibule
8'4" x 7'10"
~ 9'0"
Garde-robe
4'3" x 8'6"
~ 8'0"
Cuisine
15'4" x 15'2"
~ 13'2"
Garde-manger
3'3" x 5'3"
~ 8'0"
Cellier
8'0" x 1'6"
~ 8'0"
Îlot
10'0" x 3'4"
N/D
Patio
18'0" x 8'0"
N/D
Chambre à coucher
13'4" x 11'0"
~ 9'0"
Garde-robe
8'0" x 3'2"
~ 9'0"
Salle de bain complète
13'4" x 7'0"
~ 9'0"
Douche
5'8" x 9'4"
N/D
Lingerie
1'8" x 1'8"
N/D
Toilette en cabine
5'0" x 3'0"
~ 8'0"
Bureau à domicile
11'0" x 8'0"
~ 9'0"
Garde-robe
5'0" x 2'0"
~ 9'0"
Patio
14'0" x 12'0"
N/D
Salle de séjour/salle à manger
22'4" x 13'0"
~ 13'2"
Garde-robe
3'2" x 1'5"
~ 9'0"
Vestiaire
7'10" x 5'0"
~ 9'0"

Sous-sol aménagé (Optionel $)

Pièces
Dimensions
Plafond
Chambre à coucher
13'0" x 11'8"
~ 8'0"
Garde-robe
9'4" x 2'0"
~ 8'0"
Pièce de mécanique
12'4" x 11'10"
~ 8'0"
Salle de bain
9'4" x 6'0"
~ 8'0"
Lingerie
1'8" x 2'8"
N/D
Douche
4'0" x 2'8"
N/D
Toilette en cabine
3'4" x 6'6"
~ 8'0"
Salle de lavage
12'4" x 7'0"
~ 8'0"
Garde-robe
5'3" x 2'0"
~ 8'0"
Salle familiale
13'4" x 22'0"
~ 8'0"
Chambre à coucher
13'0" x 11'8"
~ 8'0"
Garde-robe
9'0" x 2'0"
~ 8'0"

Sous-sol aménageable

Optimisation et ouverture pour de plan éco-responsable d'inspiration scandinave!

Le plan de la maison RIVE (#90105) a été conçu pour n’avoir aucun corridor et donc aucune perte d’espace! Chaque pied carré de Rive a été optimisé et une fonction lui a été attribuée.

En entrant dans la maison, on retrouve un « walk-in » fermé, ce qui permet de toujours avoir une entrée propre, ainsi qu’un bureau accessible par l’entrée qui est très pratique si vous devez recevoir des clients à la maison.

Du côté droit de la maison, il y a toutes les aires communes dans un espace ouvert avec un plafond cathédrale. Il y a d’abord la cuisine avec son îlot, la salle à manger et un grand salon très lumineux avec sa porte-patio.

De l’autre côté, il y a une salle de bain complète avec un bain dans la douche, deux lavabos et une chute à linge, et la chambre des maîtres avec walk-in.

Au sous-sol aménagé (optionnel $), vous retrouverez une grande salle familiale, 2 chambres, une salle de bain isolée de la salle de lavage et une salle mécanique accessible pour un grand rangement.

La maison RIVE (#90105) vous permettra de profiter de la lumière naturelle provenant du sud dans toute la maison. Compacte, mais efficace, cette maison vous apportera tout ce dont vous avez besoin!

*Si vous souhaitez acheter le plan du sous-sol aménagé, veuillez sélectionner cette option dans le panier d'achat, dans la section "Sélectionner votre fondation". Si vous ne sélectionnez pas cette option, vous recevrez le sous-sol non fini, sans frais additionnel.

Maison écologiquePLAN DE MAISON ÉCO-RESPONSABLE

Ce modèle fait partie de notre collection de "Plans éco-responsables" et voici ce qui distingue tous les plans inclus dans cette compilation:

Soleil: L'orientation de la maison planifiée en fonction de la course quotidienne du soleil, jumelée à la captation thermique des rayons du soleil par l'utilisation d'une fenestration optimale, afin de minimiser les frais de chauffage et maximiser la présence de la lumière naturelle.

Simplicité: Une maison aux volumes modestes assurant une construction simplifiée, tout en favorisant la maximisation des espaces intérieurs, afin de réduire le nombre de pied carrés et le coût de construction.

Saine: Une habitation pensée pour favoriser le bien-être et la santé de ses occupants en étant bien ventilée, en utilisant des matériaux durables (acier, bois, revêtement léger, fibrociment, entre autres) et non toxiques et en maximisant la luminosité naturelle.

Éléments distinctifs

**Plan de maison de petit format avec pensée éco-responsable!
Style contemporain et scandinave à la fois.
Belle entrée avec vestiaire et accès à un bureau.
Cuisine avec cellier et grand îlot.
Salle a manger avec banquette permettant une économie d'espace.
Plafond cathédrale à la cuisine, salle à manger et au salon.
Salle de lavage avec chute à linge.
Coût du patio arrière non inclus dans notre estimation du coût de construction.

*Sous-sol aménagé (optionnel $):
2 chambres, salle familiale, salle de douche, salle de lavage, rangement et salle mécanique.

---
*Si vous souhaitez acheter le plan du sous-sol aménagé, veuillez sélectionner cette option dans le panier d'achat, dans la section "Sélectionner votre fondation". Si vous ne sélectionnez pas cette option, vous recevrez le sous-sol non fini, sans frais additionnel.
---
**Ce modèle fait partie de notre *collection de "Plans éco-responsables" et voici ce qui distingue tous les plans inclus dans cette compilation:
SOLEIL :
L’orientation de la maison planifiée en fonction de la course quotidienne du soleil, jumelée à la captation thermique des rayons du soleil par l’utilisation d’une fenestration optimale, afin de minimiser les frais de chauffage et maximiser la présence de la lumière naturelle.
SIMPLICITÉ :
Une maison aux volumes modestes assurant une construction simplifiée, tout en favorisant la maximisation des espaces intérieurs, afin de réduire le nombre de pied carrés et le coût de construction.
SAINE :
Une habitation pensée pour favoriser le bien-être et la santé de ses occupants en étant bien ventilée, en utilisant des matériaux durables (acier, bois, revêtement léger, fibrociment, entre autres) et non toxiques et en maximisant la luminosité naturelle.

Particularité(s) du plan

Bureau / Salle étude, Vestiaire, Garde-manger, Lavabo double, Ilôt, Chute à linge, Plafond en pente, Aire ouverte, Plafond à plus de 8', Bain dans la douche, Walk-in ch. maîtres

Style(s) architectural du plan

Scandinave, Contemporain / Zen, Moderne, Moderne rustique

Plans similaires
Logo Dessins Drummond image Dessins Drummond
Le modèle Rive est protégé par la loi sur les droits d'auteur.

Les illustrations présentées peuvent différer du plan détaillé que vous recevrez, car ces derniers sont régulièrement ajustés afin de respecter les normes de construction en vigueur.

En savoir plus

Une question ou un commentaire sur ce plan ?

Information de contact

Votre demande

Ajouter vos images ou photos

Pour ajouter une ou des photos, veuillez cliquer ou glisser vos fichiers dans la zone ci-bas. Vous pouvez ajouter jusqu'à huit photos JPG ou JPEG. Cette opération n'est pas obligatoire.

Désolé, votre navigateur ne supporte pas l'envoi de fichier.