Vue avant - MODÈLE DE BASE - Plan de maison Farmhouse plain-pied moderne avec garage, foyer et sous-sol optionnel - Longpré 2

Vue avant - MODÈLE DE BASE

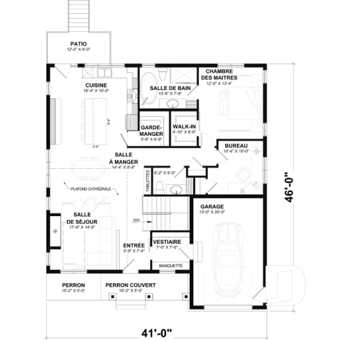
Rez-de-chaussée - Plan de maison Farmhouse plain-pied moderne avec garage, foyer et sous-sol optionnel - Longpré 2

Rez-de-chaussée

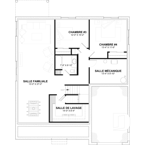
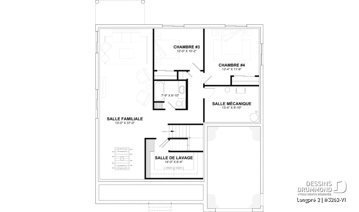
Sous-sol aménageable - Plan de maison Farmhouse plain-pied moderne avec garage, foyer et sous-sol optionnel - Longpré 2

Sous-sol aménageable

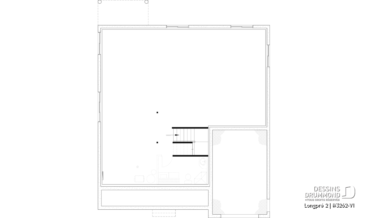
Sous-sol aménagé (Optionel $) - Plan de maison Farmhouse plain-pied moderne avec garage, foyer et sous-sol optionnel - Longpré 2

Sous-sol aménagé (Optionel $)

Vue avant - MODÈLE DE BASE - Longpré 2

Vue avant - MODÈLE DE BASE

Élévation arrière - Longpré 2

Élévation arrière

Vue intérieure - Longpré 2

Vue intérieure

Vue intérieure - Longpré 2

Vue intérieure

Longpré 2 Plan de maison 3262-V1

Plan de maison Farmhouse plain-pied moderne avec garage, foyer et sous-sol optionnel

À partir de

1440$

Fiche technique sommaire Plan #3262-V1
Estimation ($) 381,006$ (Sous-sol non-fini) | 421,805$ (Sous-sol fini)
Surface habitable 1407 pi² Chambre 1, 2, 3, 4
Salle de Bain 2 Salle d'eau 1
Fondation incluse Sous-sol aménageable Garage 1 voiture
Largeur 41'0" Profondeur 46'0"

Besoin d’aide ?

Nos experts vous guident dans votre projet grâce à plus de 30 bureaux au Québec.

Joignez-nous

Consultez notre guide utilisateur

Un outil conçu pour vous simplifier la vie.

Ouvrir le guide

Un accompagnement sur mesure

De la modification de plans au design d’intérieur, nous vous guidons à chaque étape.

Découvrir nos services

Les photos de cette maison peuvent différer du plan d'origine, duquel elles proviennent. Pour toute modification, veuillez contacter l’un de nos 30 bureaux.

Détails supplémentaires

Estimation

Spécifications générales

Surface aménagée totale
1407 pi²
Rez-de-chaussée
1407 pi²
Sous-sol aménageable
1407 pi²
Sous-sol aménagé (Optionel $)
1407 pi²
Largeur
41'0"
Profondeur
46'0"
Hauteur dessus fondations au faite
25'3"
Murs extérieurs
2 X 6
Murs extérieurs
2 X 6
Sous-sol aménageable
Autres fondations disponibles (des frais peuvent s'appliquer)
Sous-sol aménagé, Dalle flottante, Vide sanitaire, Dalle monolithique
Code Entrepreneur
C

Spécifications sur les pièces

Chambre(s)
1, 2, 3, 4
Salle(s) de bain complète(s)
2
Demi Salle(s) de Bain
1
Type de garage
1 voiture (282 pi²)
Superficie balcon et/ou perron abrité
134 pi²

Sous-sol aménagé (Optionel $)

Pièces
Dimensions
Plafond
Salle de lavage
14'3" x 9'6"
~ 8'0"
Lingerie
9'6" x 2'0"
N/D
Salle familiale
12'9" x 36'2"
~ 8'0"
Salle de bain complète
7'5" x 6'10"
~ 8'0"
Lingerie
1'6" x 2'0"
N/D
Pièce de mécanique
13'4" x 8'10"
~ 8'0"
Chambre à coucher
13'11" x 13'10"
~ 8'0"
Garde-robe
6'7" x 2'0"
~ 8'0"
Chambre à coucher
11'8" x 10'2"
~ 8'0"
Garde-robe
5'3" x 2'0"
~ 8'0"

Rez-de-chaussée

Pièces
Dimensions
Plafond
Salle de séjour
17'0" x 14'4"
~ 8'0"
Salle à manger
17'6" x 9'0"
~ 14'6"
Cuisine
16'4" x 14'4"
~ 8'0"
Garde-manger
6'6" x 5'6"
~ 8'0"
Îlot
8'6" x 4'0"
N/D
Salle de bain
6'2" x 5'0"
~ 8'0"
Lingerie
1'4" x 1'10"
N/D
Patio
12'0" x 6'0"
N/D
Bureau à domicile
10'4" x 10'0"
~ 8'0"
Garde-robe
3'2" x 2'0"
~ 8'0"
Suite des maîtres
12'0" x 13'4"
~ 8'0"
Walk-in
6'6" x 4'10"
N/D
Salle de bain complète
10'8" x 7'10"
~ 8'0"
Douche
5'0" x 3'0"
N/D
Lingerie
2'0" x 1'6"
N/D
Vestiaire
7'0" x 7'0"
~ 8'0"
Garage
13'0" x 20'0"
~ 9'8"
Perron abrité
16'6" x 5'0"
~ 7'8"
Perron
10'2" x 5'0"
N/D

Sous-sol aménageable

Plan de maison Farmhouse plain-pied moderne avec garage, foyer et sous-sol optionnel

Le superbe plain-pied de style Farmhouse LONGPRÉ 2 (3262-V1) séduit au premier regard avec son garage intégré et son vaste perron avant abrité, parfait pour accueillir vos invités ou profiter des saisons québécoises à l’abri. L’entrée par le garage se distingue par un vestiaire pratique avec banquette intégrée, pensé pour faciliter la vie de famille au quotidien et garder la maison bien organisée.

Dès l’entrée, on découvre une aire ouverte lumineuse où la cuisine, la salle à manger et le salon se rencontrent sous un magnifique plafond cathédrale. Cet espace central, baigné de lumière naturelle, devient immédiatement le cœur chaleureux de la maison. La salle à manger, stratégiquement placée, profite d’une abondance de fenestration qui crée une ambiance conviviale et accueillante.

La cuisine fonctionnelle ne manque pas d’attraits avec son garde-manger et son grand îlot central, idéal pour cuisiner en famille, partager un repas rapide ou discuter entre amis tout en préparant le souper. Le foyer au salon apporte une touche de confort et d’élégance, créant une atmosphère propice aux soirées douillettes.

La maison propose aussi une petite salle d’eau pratique pour les invités, évitant ainsi d’empiéter sur l’espace privé. La suite des parents se démarque par sa tranquillité, comprenant une salle de bain privée et un walk-in spacieux, véritable havre de détente pour terminer la journée. Un bureau polyvalent complète l’étage, pouvant facilement être transformé en pouponnière, chambre d’appoint ou espace de télétravail selon vos besoins.

Pour les familles ou ceux qui recherchent davantage d’espace, le *sous-sol aménageable (optionnel $) représente une valeur ajoutée considérable. On y retrouve deux chambres supplémentaires, une salle de bain complète, une salle de lavage dédiée, une salle mécanique ainsi qu’une vaste salle familiale et une salle de jeux, offrant mille possibilités pour accueillir amis, enfants ou créer un espace de loisirs unique.

Avec son style Farmhouse à la fois authentique et contemporain, ce plain-pied allie esthétisme, fonctionnalité et confort. Que vous rêviez d’une maison chaleureuse pour votre famille ou d’un pied-à-terre invitant en pleine nature, ce modèle coche toutes les cases d’un style de vie moderne, pratique et inspirant.
---
*Si vous souhaitez acheter le plan du sous-sol aménagé, tel que présenté sur la page de ce plan, veuillez sélectionner cette option dans le panier d'achat, dans la section "Sélectionner votre fondation". Si vous ne sélectionnez pas cette option, vous recevrez le sous-sol non fini, sans frais additionnel.

Éléments distinctifs

Plain-pied de style Farmhouse avec garage et vaste perron avant abrité.
Entrée du garage avec vestiaire pratique et banquette intégrée.
ire ouverte avec plafond cathédrale au secteur cuisine, salle à manger et salon.
Salle à manger baignée de lumière naturelle, au cœur de la maison.
Cuisine fonctionnelle avec garde-manger et grand îlot central.
Foyer chaleureux à la salle de séjour.
Petite salle d'eau, idéale pour recevoir vos invités.
Suite des parents avec salle de bain privée et walk-in spacieux.
Bureau polyvalent pouvant se transformer en pouponnière ou autre espace selon vos besoins.
---
*Sous-sol aménagé (optionnel $) :
2 chambres supplémentaires
Salle de bain complète
Salle de lavage dédiée
Salle mécanique
Grande salle familiale
Salle de jeux
---
*Si vous souhaitez acheter le plan du sous-sol aménagé, tel que présenté sur la page de ce plan, veuillez sélectionner cette option dans le panier d'achat, dans la section "Sélectionner votre fondation". Si vous ne sélectionnez pas cette option, vous recevrez le sous-sol non fini, sans frais additionnel.

Particularité(s) du plan

Plafond cathédrale, Foyer, Bain et douche séparés, Bar à café, Garde-manger, Suite des maîtres au rdc, Bureau / Salle étude, Vestiaire, Aire ouverte, Banquette, Walk-in ch. maîtres, Meuble(s) encastré(s), Ilôt

Style(s) architectural du plan

Farmhouse moderne, Nordique Moderne, Américain, Ranch, Farmhouse, Transitionnel

Maibec
Maibec
Planche & couvre-joint
À partir de 6,25$/pi².

Spécialiste des systèmes de revêtement

Oceania
Oceania
Bain Romy

Depuis notre fondation en 1995, Bains Oceania est engagé à offrir à ses clients une expérience unique et raffinée dans leur environnement spa résidentiel. Grâce à notre savoir-faire et à notre passion pour l’innovation, nous fabriquons ici, des produits de grande qualité, pour vous.

Willki
Willki

Les panneaux de pierre vissés Willki transforment vos projets en un clin d'œil. Faciles à installer, durables et écoresponsables, ils offrent le look naturel de la pierre pour une fraction du coût. *Peut nécessiter une modification au plan

Plans similaires
Logo Dessins Drummond image Dessins Drummond
Le modèle Longpré 2 est protégé par la loi sur les droits d'auteur.

Les illustrations présentées peuvent différer du plan détaillé que vous recevrez, car ces derniers sont régulièrement ajustés afin de respecter les normes de construction en vigueur.

En savoir plus

Une question ou un commentaire sur ce plan ?

Information de contact

Votre demande

Ajouter vos images ou photos

Pour ajouter une ou des photos, veuillez cliquer ou glisser vos fichiers dans la zone ci-bas. Vous pouvez ajouter jusqu'à huit photos JPG ou JPEG. Cette opération n'est pas obligatoire.

Désolé, votre navigateur ne supporte pas l'envoi de fichier.