Vue avant - MODÈLE DE BASE - Plain-pied avec 3 chambres au rez-de-chaussée et possible 2 chambres suppl. au sous-sol (optionnel $) - Charlotte

Vue avant - MODÈLE DE BASE

Rez-de-chaussée - Plain-pied avec 3 chambres au rez-de-chaussée et possible 2 chambres suppl. au sous-sol (optionnel $) - Charlotte

Rez-de-chaussée

Sous-sol aménageable - Plain-pied avec 3 chambres au rez-de-chaussée et possible 2 chambres suppl. au sous-sol (optionnel $) - Charlotte

Sous-sol aménageable

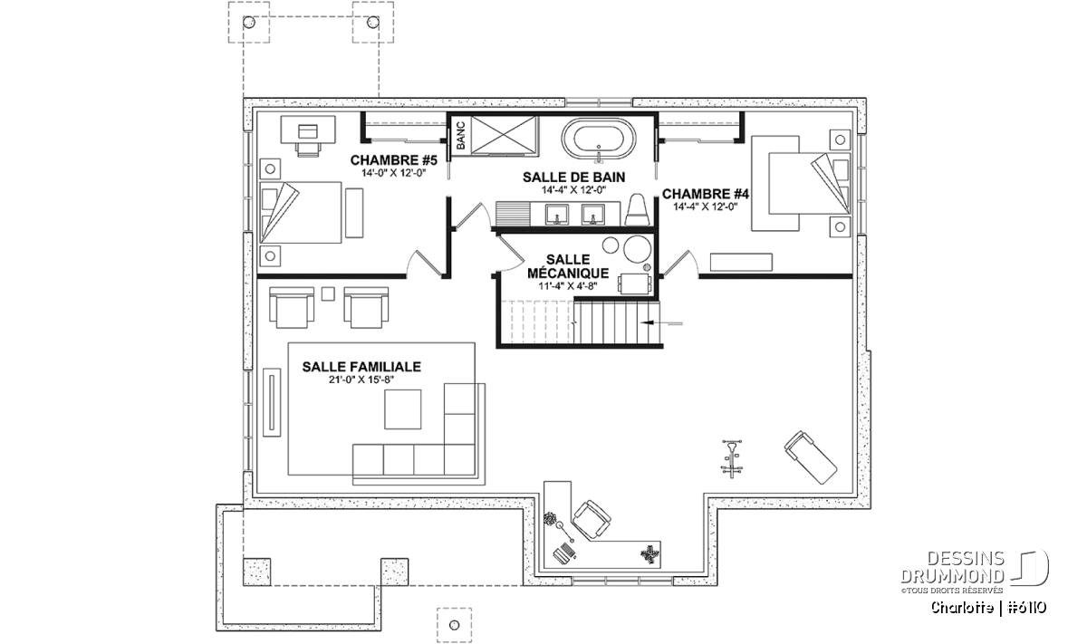
Sous-sol aménagé (Optionel $) - Plain-pied avec 3 chambres au rez-de-chaussée et possible 2 chambres suppl. au sous-sol (optionnel $) - Charlotte

Sous-sol aménagé (Optionel $)

Vue avant - MODÈLE DE BASE - Charlotte

Vue avant - MODÈLE DE BASE

Vue arrière - MODÈLE DE BASE - Charlotte

Vue arrière - MODÈLE DE BASE

Élévation arrière - Charlotte

Élévation arrière

Vue intérieure - Charlotte

Vue intérieure

Charlotte Plan de maison 6110

Plain-pied avec 3 chambres au rez-de-chaussée et possible 2 chambres suppl. au sous-sol (optionnel $)

À partir de

1440$

Fiche technique sommaire Plan #6110
Estimation ($) 378,023$ (Sous-sol non-fini) | 419,976$ (Sous-sol fini)
Surface habitable 1463 pi² Chambre 3, 4, 5
Salle de Bain 2 Salle d'eau -
Fondation incluse Sous-sol aménageable Garage -
Largeur 46'0" Profondeur 30'0"

Besoin d’aide ?

Nos experts vous guident dans votre projet grâce à plus de 30 bureaux au Québec.

Joignez-nous

Consultez notre guide utilisateur

Un outil conçu pour vous simplifier la vie.

Ouvrir le guide

Un accompagnement sur mesure

De la modification de plans au design d’intérieur, nous vous guidons à chaque étape.

Découvrir nos services

Les photos de cette maison peuvent différer du plan d'origine, duquel elles proviennent. Pour toute modification, veuillez contacter l’un de nos 30 bureaux.

Détails supplémentaires

Estimation

Spécifications générales

Surface aménagée totale
1463 pi²
Rez-de-chaussée
1463 pi²
Sous-sol aménageable
1463 pi²
Sous-sol aménagé (Optionel $)
1463 pi²
Largeur
46'0"
Profondeur
30'0"
Hauteur dessus fondations au faite
29'6"
Murs extérieurs
2 X 6
Murs extérieurs
2 X 6
Sous-sol aménageable
Autres fondations disponibles (des frais peuvent s'appliquer)
Sous-sol aménagé, Dalle flottante, Vide sanitaire, Dalle monolithique
Code Entrepreneur
C

Spécifications sur les pièces

Chambre(s)
3, 4, 5
Salle(s) de bain complète(s)
2
Demi Salle(s) de Bain
-
Type de garage
-
Superficie balcon et/ou perron abrité
126 pi²

Rez-de-chaussée

Pièces
Dimensions
Plafond
Perron abrité
21'0" x 6'0"
~ 8'8"
Entrée ou vestibule
7'8" x 6'0"
~ 9'0"
Vestiaire
5'4" x 5'8"
~ 9'0"
Cuisine
13'0" x 11'8"
~ 9'0"
Îlot
8'0" x 3'2"
N/D
Garde-manger
7'0" x 5'8"
~ 9'0"
Chambre à coucher
12'8" x 12'0"
~ 9'0"
Walk-in
11'4" x 4'6"
~ 9'0"
Chambre à coucher
10'8" x 10'10"
~ 9'0"
Walk-in
5'2" x 3'0"
~ 9'0"
Chambre à coucher
9'0" x 10'10"
~ 9'0"
Walk-in
5'2" x 3'0"
~ 9'0"
Salle de lavage
5'4" x 10'8"
~ 9'0"
Salle de bain complète
7'10" x 10'8"
~ 9'0"
Douche
5'0" x 3'0"
N/D
Lingerie
2'0" x 1'6"
N/D
Salle de séjour
11'6" x 11'0"
~ 9'0"
Salle à manger
10'0" x 11'0"
~ 9'0"
Patio
10'0" x 6'0"
N/D

Sous-sol aménagé (Optionel $)

Pièces
Dimensions
Plafond
Salle familiale
21'0" x 15'8"
~ 8'0"
Chambre à coucher
14'4" x 12'0"
~ 8'0"
Garde-robe
6'0" x 2'0"
~ 8'0"
Chambre à coucher
14'0" x 12'0"
~ 8'0"
Garde-robe
6'0" x 2'0"
~ 8'0"
Pièce de mécanique
11'4" x 4'8"
~ 8'0"
Salle de bain communicante
14'4" x 12'0"
~ 8'0"
Douche
5'0" x 3'0"
N/D
Lingerie
2'6" x 1'10"
N/D

Sous-sol aménageable

Maison avec planchers parfaits pour grandes familles!

Le plan de maison Farmhouse CHARLOTTE (#6110) propose 1463 pi.ca. aménagés au rez-de-chaussée, et la possibilité (*optionnel) d'un autre 1463 pi.ca. aménagés au sous-sol. Ce dernier est d'ailleurs sorti de terre ce qui amène une belle lumière naturelle à ce plancher.

Ce plain-pied de style Farmhouse conviendra parfaitement aux familles ayant de jeunes enfants. En effet le rez-de-chaussée prévoit 3 chambres dans le même secteur, permettant aux parents de garder un oeil sur leurs plus jeunes. De plus cette maison est pensée dans ces moindres racoins, à preuve le beau et pratique vestiaire à l'entrée avec banc, la cuisine avec garde-manger et grand îlot central, ainsi que la salle de lavage qui est judicieusement localisée au rez-de-chaussée. De plus les 3 chambres du rez-de-chaussée possèdent chacune un walk-in. Tout le secteur familial est à aire ouverte et baigné de beaucoup de lumière naturelle provenant d'une fenestration abondante dans cet espace.

La proposition du sous-sol (*optionnel $) vous permettrait d'obtenir jusqu'à 6 chambres, selon la finition que vous en ferez. En effet, déjà 2 chambres sont prévues avec salle de bain communicante, mais la salle familiale pourrait aussi aisément se convertir en chambre #6, selon vos besoins. Vous ne seriez pas en reste car il y a aussi un coin bureau et gym à aire ouverte qui pourrait aussi devenir une salle de jeux ou salle familiale.

Beaucoup de versatilité pour cette chaleureuse maison destinée aux grandes familles! Elle vous plaît?

*Si vous souhaitez acheter le plan du sous-sol aménagé, veuillez sélectionner cette option dans le panier d'achat, dans la section "Sélectionner votre fondation". Si vous ne sélectionnez pas cette option, vous recevrez le sous-sol non fini, sans frais additionnel.

Éléments distinctifs

Plan de maison chaleureuse de style nordique.
Idéale pour famille avec jeunes enfants car 3 chambres au rez-de-chaussée.
Belle grande galerie avant couverte.
Entrée avec vestiaire de type walk-in et banc.
Cuisine avec garde-manger et espace cellier suggéré à l'îlot.
Aire ouverte aux aires familiales.
Chambre des parents avec grand walk-in.
Walk-in aux deux chambres secondaires.
Salle de bain complète avec 2 lavabos, bain et douche séparés.
Salle de lavage au rez-de-chaussée.

*Sous sol aménagé (optionnel $):
2 chambres avec salle de bain communicante.
Salle familiale.
Grand espace versatile pour bureau, gym ou autres.
Plusieurs types de fondation disponibles pour chacun de nos modèles.

*Si vous souhaitez acheter le plan du sous-sol aménagé, veuillez sélectionner cette option dans le panier d'achat, dans la section "Sélectionner votre fondation". Si vous ne sélectionnez pas cette option, vous recevrez le sous-sol non fini, sans frais additionnel.

Particularité(s) du plan

Salle de lavage au rez-de-chaussée, Walk-in ch. maîtres, Lavabo double, Bain et douche séparés, Vestiaire, Garde-manger, Cellier, Aire ouverte, Ilôt, Banquette, Salle de bain communicante, Plafond à plus de 8', Salle de jeux, Coin bureau, Entrepreneur, Auto-Construction

Style(s) architectural du plan

Nordique, Nordique Moderne, Farmhouse, Rustique, Champêtre, Américain, Ranch, Transitionnel, Moderne rustique, Traditionnelle

Ventilation Maximum
Ventilation Maximum

Entreprise manufacturière qui vends des ventilateurs de toiture, des clapets muraux et des entrées d'air.

Oceania
Oceania
Bain Sikome

Depuis notre fondation en 1995, Bains Oceania est engagé à offrir à ses clients une expérience unique et raffinée dans leur environnement spa résidentiel. Grâce à notre savoir-faire et à notre passion pour l’innovation, nous fabriquons ici, des produits de grande qualité, pour vous.

Willki
Willki

Les panneaux de pierre vissés Willki transforment vos projets en un clin d'œil. Faciles à installer, durables et écoresponsables, ils offrent le look naturel de la pierre pour une fraction du coût. *Peut nécessiter une modification au plan

Plans similaires
Logo Dessins Drummond image Dessins Drummond
Le modèle Charlotte est protégé par la loi sur les droits d'auteur.

Les illustrations présentées peuvent différer du plan détaillé que vous recevrez, car ces derniers sont régulièrement ajustés afin de respecter les normes de construction en vigueur.

En savoir plus

Une question ou un commentaire sur ce plan ?

Information de contact

Votre demande

Ajouter vos images ou photos

Pour ajouter une ou des photos, veuillez cliquer ou glisser vos fichiers dans la zone ci-bas. Vous pouvez ajouter jusqu'à huit photos JPG ou JPEG. Cette opération n'est pas obligatoire.

Désolé, votre navigateur ne supporte pas l'envoi de fichier.