Vue avant - MODÈLE DE BASE - Plan de maison nordique Craftsman 3 chambres sur un étage – espace idéal pour famille - Nordika 4

Vue avant - MODÈLE DE BASE

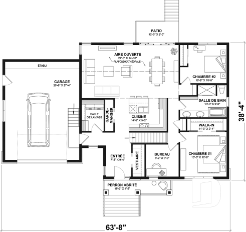
Rez-de-chaussée - Plan de maison nordique Craftsman 3 chambres sur un étage – espace idéal pour famille - Nordika 4

Rez-de-chaussée

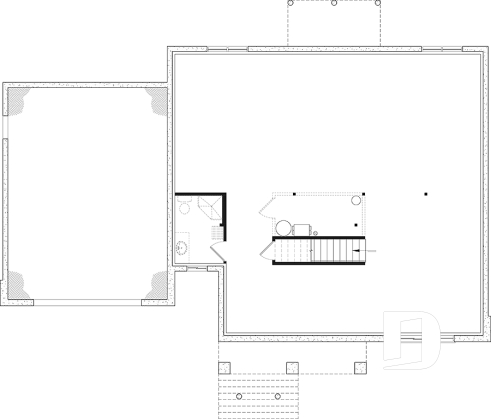
Sous-sol - Plan de maison nordique Craftsman 3 chambres sur un étage – espace idéal pour famille - Nordika 4

Sous-sol

Élévation arrière - Nordika 4

Élévation arrière

Vue intérieure - Nordika 4

Vue intérieure

Vue intérieure - Nordika 4

Vue intérieure

Version couleur no. 1 - Vue avant - Nordika 4

Version couleur no. 1 - Vue avant

Nordika 4 Plan de maison 6102-V3

Plan de maison nordique Craftsman 3 chambres sur un étage – espace idéal pour famille

À partir de

1600$

Fiche technique sommaire Plan #6102-V3
Estimation ($) 471,851$
Surface habitable 1583 pi² Chambre 2, 3
Salle de Bain 1 Salle d'eau -
Fondation incluse Sous-sol aménageable Garage 2 voitures
Largeur 63'8" Profondeur 38'4"

Besoin d’aide ?

Nos experts vous guident dans votre projet grâce à plus de 30 bureaux au Québec.

Joignez-nous

Consultez notre guide utilisateur

Un outil conçu pour vous simplifier la vie.

Ouvrir le guide

Besoin d’une assurance habitation ?

Pour obtenir votre prix, c’est juste ici

Obtenir une soumission

Photos du plan Nordika 4

Les photos de cette maison peuvent différer du plan d'origine, duquel elles proviennent. Pour toute modification, veuillez contacter l’un de nos 30 bureaux.

Détails supplémentaires

Estimation

Spécifications générales

Surface aménagée totale
1583 pi²
Rez-de-chaussée
1583 pi²
Sous-sol
1583 pi²
Largeur
63'8"
Profondeur
38'4"
Hauteur dessus fondations au faite
27'2"
Murs extérieurs
2 X 6
Murs extérieurs
2 X 6
Sous-sol aménageable
Code Entrepreneur
D

Spécifications sur les pièces

Chambre(s)
2, 3
Salle(s) de bain complète(s)
1
Demi Salle(s) de Bain
-
Type de garage
2 voitures (624 pi²)
Superficie balcon et/ou perron abrité
77 pi²

Sous-sol

Pièces
Dimensions
Plafond
Pièce de mécanique
6'8" x 9'2"
~ 8'0"

Rez-de-chaussée

Pièces
Dimensions
Plafond
Salle de lavage
6'2" x 8'8"
~ 9'0"
Salle de séjour/salle à manger
27'0" x 14'10"
~ 12'4"
Chambre à coucher
13'0" x 12'6"
~ 9'0"
Walk-in
11'0" x 3'4"
~ 9'0"
Chambre à coucher
10'8" x 10'8"
~ 9'0"
Garde-robe
2'0" x 5'10"
~ 9'0"
Entrée ou vestibule
7'2" x 12'4"
~ 9'0"
Vestiaire
4'0" x 9'0"
~ 9'0"
Cuisine
14'6" x 9'2"
~ 9'0"
Garde-manger
2'4" x 8'10"
~ 9'0"
Lingerie
1'8" x 3'4"
~ 9'0"
Chambre à coucher
9'2" x 9'0"
~ 9'0"
Galerie
19'2" x 4'2"
~ 13'8"
Patio
12'0" x 6'0"
N/D
Garage
20'8" x 27'4"
~ 12'2"
Salle de bain complète
9'0" x 13'0"
~ 9'0"
Lingerie
5'0" x 0'10"
~ 9'0"
Douche
5'0" x 3'0"
N/D

Plan de maison nordique Craftsman 3 chambres sur un étage – espace idéal pour famille

Découvrez ce superbe plan de maison de style nordique Craftsman, imaginé pour répondre aux besoins d’une famille moderne tout en offrant un cadre chaleureux et raffiné. Avec ses trois chambres situées sur le même niveau, il facilite la vie quotidienne et favorise la proximité entre parents et enfants. Ce concept pratique et convivial assure confort et sécurité, en particulier pour les jeunes familles qui souhaitent tout avoir à portée de main.

Dès l’entrée, on est séduit par la galerie avant abritée, parfaite pour s’installer à l’extérieur et profiter des saisons en toute quiétude. À l’intérieur, le rez-de-chaussée bénéficie de plafonds de 9 pieds partout, procurant une sensation d’espace et de luminosité. La salle à manger et le salon sont sublimés par un plafond cathédrale, créant un volume spectaculaire et une atmosphère aérée qui invite à la détente et aux moments partagés.

La cuisine spacieuse est le cœur de la maison. Elle est dotée d’un garde-manger de type walk-in permettant un rangement optimal et un îlot convivial où préparer les repas en famille. La chambre principale bénéficie également de son propre walk-in, ajoutant une touche de luxe et de praticité au quotidien.

La grande salle de bain familiale a été pensée pour répondre aux besoins d’une vie active. Elle propose deux lavabos, un bain et une douche séparée, permettant à chacun de gagner du temps tout en conservant son intimité. Une salle de lavage spacieuse au rez-de-chaussée complète l’ensemble, rendant les tâches ménagères plus simples et efficaces.

Le garage double offre un accès direct à la maison, pratique pour rentrer avec les enfants ou les courses sans se soucier des intempéries. Un coin établi a été prévu dans le garage pour bricoler, réparer ou organiser les équipements sportifs.

Ce plan de maison combine à merveille esthétique nordique et style Craftsman. Sa conception harmonieuse, ses grands espaces lumineux et ses aménagements fonctionnels en font un choix idéal pour les familles qui recherchent à la fois confort, praticité et élégance. Un lieu où chaque membre de la famille peut s’épanouir et créer de beaux souvenirs.

Éléments distinctifs

Superbe plan de maison de style nordique Craftsman.
Maison proposant 3 chambres au même niveau.
Garage double.
Plafond à 9 pieds partout au rez-de-chaussée, et plafond cathédrale à la salle à manger et salon.
Grande cuisine avec garde-manger de type walk-in.
Walk-in à la chambre des parents.
Grande salle de bain avec 2 lavabos et bain et douche séparés.
Grande salle de lavage au rez-de-chaussée.
Accès direct à la maison via le garage.
Coin établi dans le garage.
Galerie avant abritée.

Particularité(s) du plan

Ilôt, Vestiaire, Salle de lavage au rez-de-chaussée, Walk-in ch. maîtres, Bureau / Salle étude, Garde-manger, Plafond cathédrale

Style(s) architectural du plan

Nordique, En montagne, Farmhouse, Ranch, Rustique, Transitionnel, Champêtre, Moderne rustique

Maibec
Maibec
Moderne
À partir de 6,25$/pi².

Spécialiste des systèmes de revêtement

Willki
Willki

Les panneaux de pierre vissés Willki transforment vos projets en un clin d'œil. Faciles à installer, durables et écoresponsables, ils offrent le look naturel de la pierre pour une fraction du coût. *Peut nécessiter une modification au plan

Boiseries Raymond
Boiseries Raymond
Porte Héritage

Chef de file dans le préassemblage de portes intérieures au Québec. Cette force nous permet de vous fournir une variété de modèles préassemblées selon vos spécifications et selon le volume de production requis.

Boiseries Raymond
Boiseries Raymond
Porte Héritage

Chef de file dans le préassemblage de portes intérieures au Québec. Cette force nous permet de vous fournir une variété de modèles préassemblées selon vos spécifications et selon le volume de production requis.

Boiseries Raymond
Boiseries Raymond
Porte Héritage

Chef de file dans le préassemblage de portes intérieures au Québec. Cette force nous permet de vous fournir une variété de modèles préassemblées selon vos spécifications et selon le volume de production requis.

Plans similaires
Logo Dessins Drummond image Dessins Drummond
Le modèle Nordika 4 est protégé par la loi sur les droits d'auteur.

Les illustrations présentées peuvent différer du plan détaillé que vous recevrez, car ces derniers sont régulièrement ajustés afin de respecter les normes de construction en vigueur.

En savoir plus

Une question ou un commentaire sur ce plan ?

Information de contact

Votre demande

Ajouter vos images ou photos

Pour ajouter une ou des photos, veuillez cliquer ou glisser vos fichiers dans la zone ci-bas. Vous pouvez ajouter jusqu'à huit photos JPG ou JPEG. Cette opération n'est pas obligatoire.

Désolé, votre navigateur ne supporte pas l'envoi de fichier.