Vue avant - MODÈLE DE BASE - Plan de maison avec superbe terrasse abritée, aire ouverte, 3 chambres avec sous-sol aménagé - Auburn

Vue avant - MODÈLE DE BASE

Rez-de-chaussée - Plan de maison avec superbe terrasse abritée, aire ouverte, 3 chambres avec sous-sol aménagé - Auburn

Rez-de-chaussée

Sous-sol aménagé (Optionel $) - Plan de maison avec superbe terrasse abritée, aire ouverte, 3 chambres avec sous-sol aménagé - Auburn

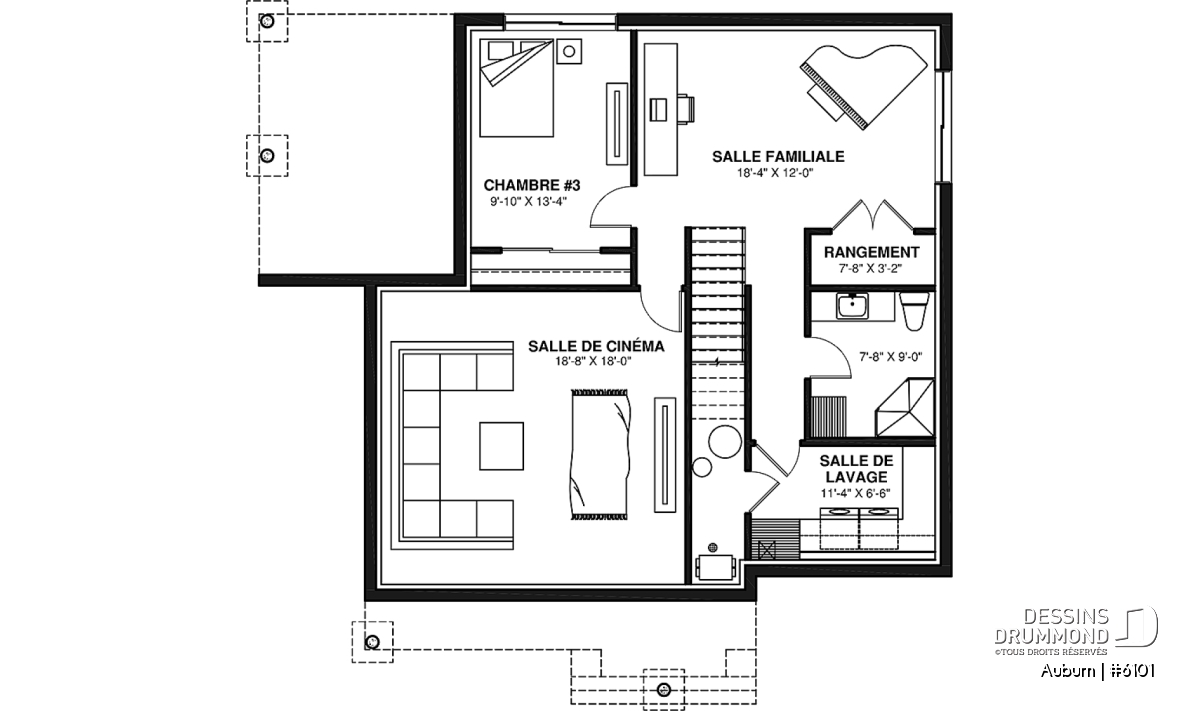
Sous-sol aménagé (Optionel $)

Vue avant - MODÈLE DE BASE - Auburn

Vue avant - MODÈLE DE BASE

Vue avant - MODÈLE DE BASE - Auburn

Vue avant - MODÈLE DE BASE

Vue arrière - MODÈLE DE BASE - Auburn

Vue arrière - MODÈLE DE BASE

Élévation arrière - Auburn

Élévation arrière

Alternative - Auburn

Alternative

Auburn Plan de maison 6101

Plan de maison avec superbe terrasse abritée, aire ouverte, 3 chambres avec sous-sol aménagé

À partir de

1380$

Fiche technique sommaire Plan #6101
Estimation ($) - (Sous-sol non-fini) | 385,639$ (Sous-sol fini)
Surface habitable 1190 pi² Chambre 2, 3
Salle de Bain 2 Salle d'eau -
Fondation incluse Sous-sol aménageable Garage -
Largeur 36'0" Profondeur 36'0"

Besoin d’aide ?

Nos experts vous guident dans votre projet grâce à plus de 30 bureaux au Québec.

Joignez-nous

Consultez notre guide utilisateur

Un outil conçu pour vous simplifier la vie.

Ouvrir le guide

Un accompagnement sur mesure

De la modification de plans au design d’intérieur, nous vous guidons à chaque étape.

Découvrir nos services

Les photos de cette maison peuvent différer du plan d'origine, duquel elles proviennent. Pour toute modification, veuillez contacter l’un de nos 30 bureaux.

Détails supplémentaires

Estimation

Spécifications générales

Surface aménagée totale
1190 pi²
Rez-de-chaussée
1190 pi²
Sous-sol aménagé (Optionel $)
1190 pi²
Largeur
36'0"
Profondeur
36'0"
Hauteur dessus fondations au faite
20'8"
Murs extérieurs
2 X 6
Murs extérieurs
2 X 6
Sous-sol aménageable
Autres fondations disponibles (des frais peuvent s'appliquer)
Sous-sol aménagé, Dalle flottante, Vide sanitaire, Dalle monolithique
Code Entrepreneur
B

Spécifications sur les pièces

Chambre(s)
2, 3
Salle(s) de bain complète(s)
2
Demi Salle(s) de Bain
-
Type de garage
-
Superficie balcon et/ou perron abrité
84 pi²

Sous-sol aménagé (Optionel $)

Pièces
Dimensions
Plafond
Salle de cinéma
18'8" x 18'0"
~ 8'0"
Chambre à coucher
9'10" x 13'4"
~ 8'0"
Garde-robe
9'10" x 2'0"
~ 8'0"
Salle familiale
18'4" x 12'0"
~ 8'0"
Rangement
7'8" x 3'2"
~ 8'0"
Salle de bain
7'8" x 9'0"
~ 8'0"
Douche
3'8" x 3'8"
~ 8'0"
Lingerie
2'6" x 2'2"
N/D
Salle de lavage
11'4" x 6'6"
~ 8'0"
Lingerie
3'0" x 2'6"
N/D
Rangement
3'4" x 12'0"
~ 8'0"

Rez-de-chaussée

Pièces
Dimensions
Plafond
Entrée ou vestibule
10'8" x 6'6"
~ 8'0"
Rangement
4'0" x 4'2"
~ 8'0"
Suite des maîtres
11'2" x 14'0"
~ 8'0"
Walk-in
4'0" x 5'0"
~ 8'0"
Salle de bain complète
12'0" x 9'0"
~ 8'0"
Douche
4'0" x 3'0"
~ 8'0"
Lingerie
1'10" x 1'6"
N/D
Chambre à coucher
11'8" x 10'0"
~ 8'0"
Garde-robe
4'4" x 2'0"
~ 8'0"
Cuisine
13'10" x 12'4"
~ 8'0"
Îlot
6'4" x 3'2"
N/D
Garde-manger
5'2" x 5'4"
~ 8'0"
Salle à manger
13'10" x 9'0"
~ 8'0"
Salle de séjour
13'8" x 13'6"
~ 8'0"
Perron abrité
11'4" x 4'8"
~ 8'0"
Terrasse abritée
12'0" x 18'0"
~ 11'6"
Perron abrité
12'8" x 3'0"
~ 8'0"

Sous-sol aménageable

Superbe plancher convivial et grande terrasse abritée!

Le plan de maison AUBURN (#6101) propose une tonne de surprise dans ses 1 190 pieds carrés. Avec 3 chambres et deux salles de bain, cette maison peut accueillir une grande famille ou une famille reconstituée aisément.
De l’extérieur, la maison attire l’œil grâce à son revêtement à la verticale, ajoutée de brique et de superbes pignons de bois, donnant un style champêtre chic. En entrant, un espace de style vestiaire est offert, ainsi qu’un coin rangement séparé par une porte coulissante.
Les deux premières chambres et la salle de bain se trouvent à l’avant. La chambre des maîtres est très lumineuse, avec trois fenêtres, dont deux de chaque côté du lit. De plus, l’espace est libéré grâce au walk-in. La deuxième chambre, quant à elle, peut contenir un lit de grandeur queen. Dans la salle de bain complète, se trouve un bain et une douche séparée. Une chute à linge y est aussi installée. Un petit plus bien apprécié!
En continuant, nous débouchons sur la cuisine, qui est à aire ouverte sur la salle à manger et la salle de séjour. On y retrouve un grand ilot parfait pour les soirées entre amis. Un garde-manger de style walk-in peut contenir tout le nécessaire pour nourrir une très grande famille!
Un des éléments principaux de cette maison est sans aucun doute le foyer central double face qui sépare la salle de séjour, de la salle à manger. Cette dernière donne accès au deuxième élément principal du rez-de-chaussée, la terrasse couverte munie d’un toit cathédral. L’effet de continuité est très intéressant, surtout par de belles soirées d’été.
Au sous-sol, une salle familiale de bonne dimension, avec une garde-robe pour du rangement, permet plusieurs fonctions. De plus, pour une expérience maximale avec toute la famille, la salle de cinéma de 18x18 en épatera plusieurs! On y retrouve également la troisième chambre et la deuxième salle de bain, comprenant les électroménagers de buanderie avec la chute à linge et un grand comptoir pratique ainsi qu’une douche en coin.
Cette maison cache plusieurs avantages très intéressants, qui permet chacun à leurs manières, d’y vivre de merveilleuses années remplies de convivialité.

Éléments distinctifs

Superbe aménagement du plancher à aire ouverte sur l'arrière de la maison.
Grande cuisine avec garde-manger et îlot.
Salle à manger ouverte sur la cuisine et la salle de séjour.
Foyer à double face, central.
Terrasse abritée avec plafond cathédral.
La chambre des parents avec walk-in.
L'entrée avant avec vestiaire incluant tablettes et banquette.
Le sous-sol aménagé propose la chambre #3, une salle familiale, un cinéma maison, la salle de lavage avec chute à linge provenant du rez-de-chaussée ainsi qu'une salle de douche.
Si vous souhaitez un aménagement différent pour le sous-sol, vous pouvez contacter l'un de nos bureaux afin de faire réaliser la modification souhaitée au plan.

Particularité(s) du plan

Chute à linge, Terrasse abritée, Vestiaire, Walk-in ch. maîtres, Garde-manger, Ilôt, Aire ouverte, Foyer, Cinema maison, Coin bureau, Banquette, Tablettes

Style(s) architectural du plan

Nordique, Américain, Ranch, Rustique, Traditionnelle, Chalet, Champêtre, Vacances, bordure de lac, Moderne, Moderne rustique

Plans similaires
Logo Dessins Drummond image Dessins Drummond
Le modèle Auburn est protégé par la loi sur les droits d'auteur.

Les illustrations présentées peuvent différer du plan détaillé que vous recevrez, car ces derniers sont régulièrement ajustés afin de respecter les normes de construction en vigueur.

En savoir plus

Une question ou un commentaire sur ce plan ?

Information de contact

Votre demande

Ajouter vos images ou photos

Pour ajouter une ou des photos, veuillez cliquer ou glisser vos fichiers dans la zone ci-bas. Vous pouvez ajouter jusqu'à huit photos JPG ou JPEG. Cette opération n'est pas obligatoire.

Désolé, votre navigateur ne supporte pas l'envoi de fichier.