Plan de rénovation en ligne

Concevez votre projet de rénovation à distance, avec l’expertise Dessins Drummond.

Service de plan de rénovation en ligne

Un accompagnement professionnel, à distance, pour concevoir votre projet de rénovation en toute confiance.

Idéal pour les régions éloignées ou pour éviter les déplacements, sans compromis sur la qualité.

Économies

Réduction des frais de déplacement et du temps de relevés.

Expertise

Plus de 20 ans d’expérience en rénovation résidentielle.

Flexibilité

Échanges par courriel ou téléphone, selon votre horaire.

Les 9 étapes de votre plan de rénovation

01

Vérification des normes

Validation du budget et des exigences municipales : zonage, marges, parements, hauteur.

Guide de préparation (PDF)
02

Prise de photos

Photos de l’existant ou rencontre possible dans l’un de nos 30 points de vente.

03

Formulaire de rénovation

Accéder au formulaire
04

Transmission des documents

Envoi des photos, croquis et plans existants. Services complémentaires disponibles.

05

Réception de l’estimé

Estimé détaillé transmis dans les 48 heures ouvrables.

06

Prise des mesures

Mesures guidées à l’aide de nos documents explicatifs.

07

Plan préliminaire

Production, validation et ajustements avec vous.

08

Approbation finale

Lancement de la production du plan final.

09

Livraison du plan final

Réception du plan final prêt pour les soumissions.

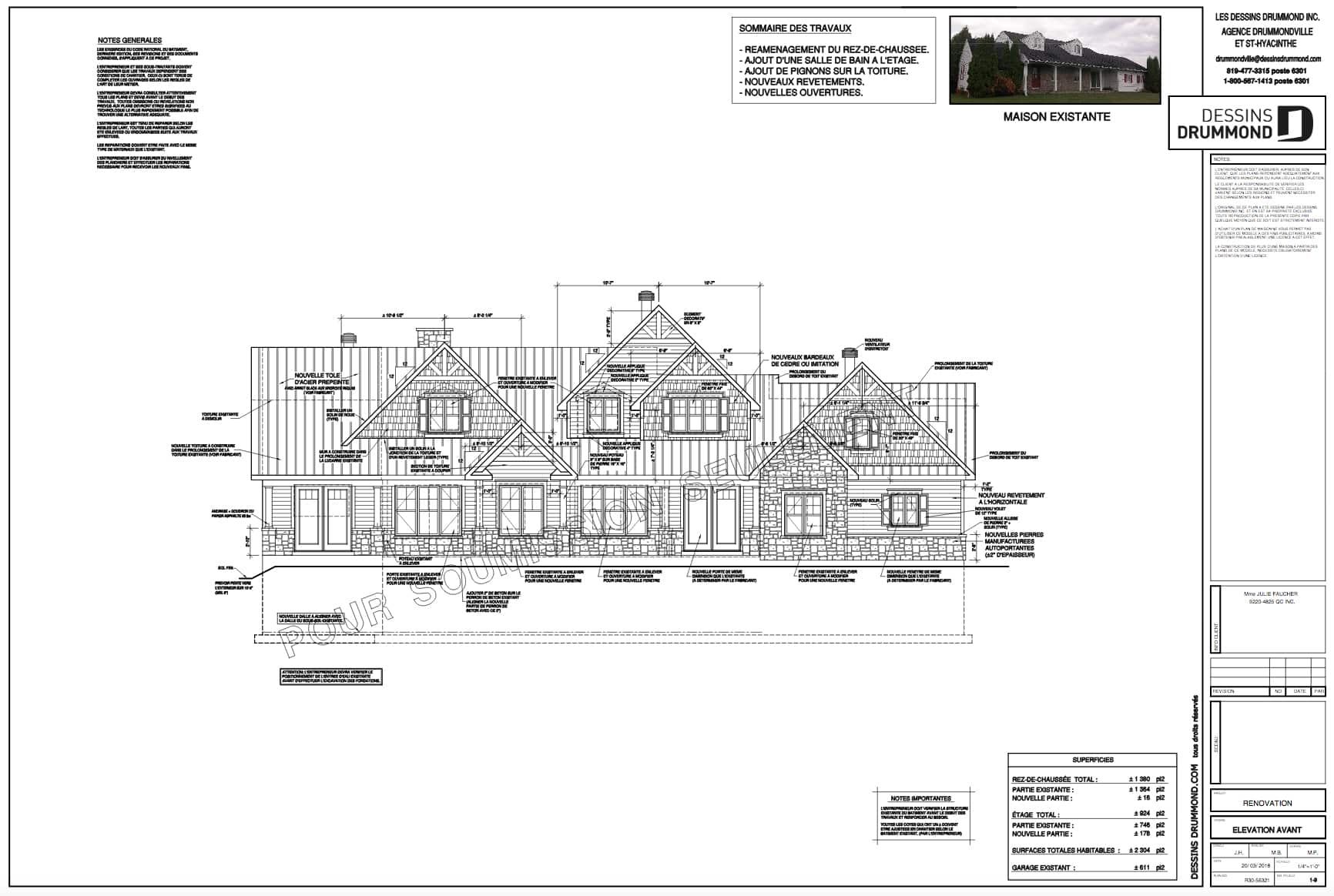
Exemple de plan final