Vue avant - MODÈLE DE BASE - Maison Farmhouse à étage avec garage double, 3 chambres et magnifique vue panoramique à l'arrière de la maison - Sophia

Vue avant - MODÈLE DE BASE

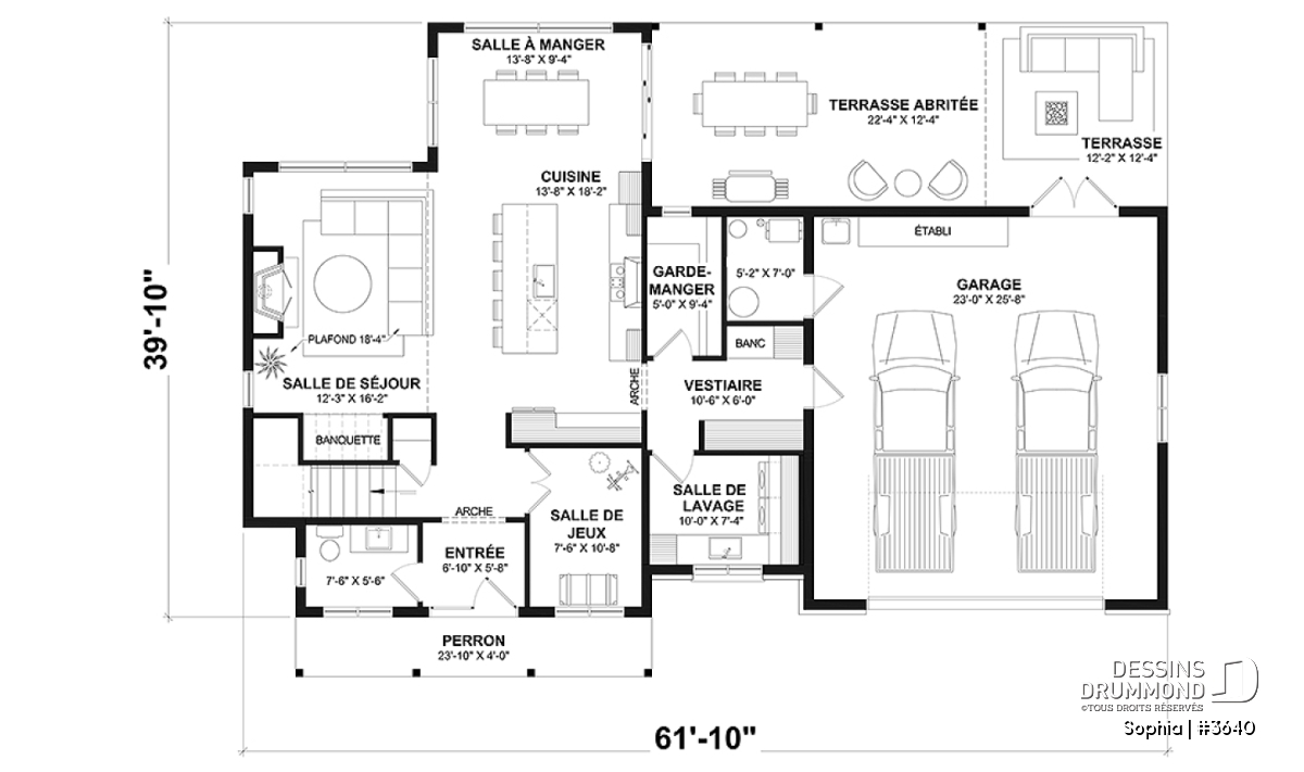
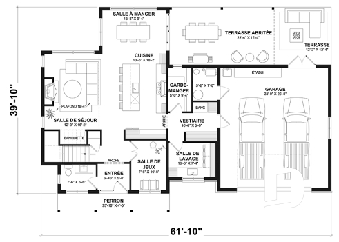
Rez-de-chaussée - Maison Farmhouse à étage avec garage double, 3 chambres et magnifique vue panoramique à l'arrière de la maison - Sophia

Rez-de-chaussée

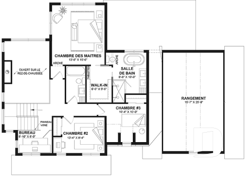
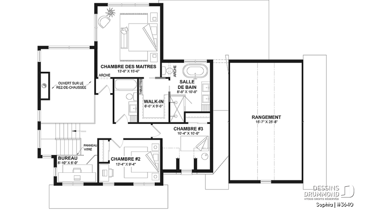
Étage - Maison Farmhouse à étage avec garage double, 3 chambres et magnifique vue panoramique à l'arrière de la maison - Sophia

Étage

Vue avant - MODÈLE DE BASE - Sophia

Vue avant - MODÈLE DE BASE

Vue avant - MODÈLE DE BASE - Sophia

Vue avant - MODÈLE DE BASE

Vue arrière - MODÈLE DE BASE - Sophia

Vue arrière - MODÈLE DE BASE

Élévation arrière - Sophia

Élévation arrière

Vue intérieure - Sophia

Vue intérieure

Sophia Plan de maison 3640

Maison Farmhouse à étage avec garage double, 3 chambres et magnifique vue panoramique à l'arrière de la maison

À partir de

1655$

Fiche technique sommaire Plan #3640
Estimation ($) 657,478$
Surface habitable 2174 pi² Chambre 3
Salle de Bain 2 Salle d'eau 1
Fondation incluse Dalle flottante Garage 2 voitures
Largeur 61'10" Profondeur 39'10"

Besoin d’aide ?

Nos experts vous guident dans votre projet grâce à plus de 30 bureaux au Québec.

Joignez-nous

Consultez notre guide utilisateur

Un outil conçu pour vous simplifier la vie.

Ouvrir le guide

Besoin d’une assurance habitation ?

Pour obtenir votre prix, c’est juste ici

Obtenir une soumission

Photos du plan Sophia

Les photos de cette maison peuvent différer du plan d'origine, duquel elles proviennent. Pour toute modification, veuillez contacter l’un de nos 30 bureaux.

Détails supplémentaires

Estimation

Spécifications générales

Surface aménagée totale
2174 pi²
Rez-de-chaussée
1224 pi²
Étage
950 pi²
Largeur
61'10"
Profondeur
39'10"
Hauteur dessus fondations au faite
29'7"
Murs extérieurs
2 X 6
Murs extérieurs
2 X 6
Autres fondations disponibles (des frais peuvent s'appliquer)
Sous-sol aménageable, Vide sanitaire, Dalle monolithique
Code Entrepreneur
E

Spécifications sur les pièces

Chambre(s)
3
Salle(s) de bain complète(s)
2
Demi Salle(s) de Bain
1
Type de garage
2 voitures (665 pi²)
422 pi²
Superficie balcon et/ou perron abrité
95 pi²

Rez-de-chaussée

Pièces
Dimensions
Plafond
Perron abrité
23'10" x 4'0"
~ 9'4"
Entrée ou vestibule
6'10" x 5'8"
~ 9'0"
Salle de jeux
7'6" x 10'8"
~ 9'0"
Rangement
2'7" x 2'10"
~ 9'0"
Coin toilette/lavabo
7'6" x 5'6"
~ 9'0"
Salle de lavage
10'4" x 7'4"
~ 9'0"
Lingerie
1'10" x 2'0"
N/D
Garage
23'0" x 25'8"
~ 9'6"
Pièce de mécanique
5'2" x 7'0"
~ 9'6"
Vestiaire
6'8" x 8'4"
~ 9'0"
Garde-manger
3'1" x 5'10"
~ 9'0"
Cuisine
13'9" x 16'2"
~ 9'0"
Îlot
10'0" x 3'8"
N/D
Salle à manger
13'8" x 9'4"
~ 9'0"
Salle de séjour
12'4" x 16'2"
~ 18'4"
Terrasse abritée
22'4" x 12'4"
~ 9'4"
Terrasse
12'2" x 12'4"
N/D

Étage

Pièces
Dimensions
Plafond
Chambre à coucher
13'4" x 9'4"
~ 8'0"
Garde-robe
4'10" x 2'0"
~ 8'0"
Salle de bain
5'0" x 9'6"
~ 8'0"
Lingerie
1'6" x 1'6"
N/D
Bureau à domicile
8'10" x 6'0"
~ 8'0"
Chambre à coucher
10'4" x 10'0"
~ 8'0"
Garde-robe
5'4" x 2'0"
~ 8'0"
Suite des maîtres
13'8" x 15'6"
~ 8'0"
Salle de bain complète
8'8" x 13'0"
~ 8'0"
Walk-in
6'6" x 9'6"
~ 8'0"
Douche
6'0" x 3'0"
N/D
Lingerie
1'6" x 1'10"
N/D

Maison lumineuse 3 chambres + bureau avec une superbe terrasse abritée et une grande suite parentale!

La maison SOPHIA (plan #3640) propose 2174 pi.ca de surface habitable, aménagés sur deux étages. Le garage double de 23' x 25'8'' est assez grand pour y ajouter un établi ou coin jardinage. La terrasse arrière propose une secteur couvert de 22'4 x 12'4'' et une portion "non-couverte" de 12'2'' x 12'4''. Plusieurs possibilités d'aménagement y sont donc possibles. La fondation de base que vous recevrez (incluse au plan) est une dalle flottante. Si vous souhaitez un autre type de fondation, simplement la sélectionner dans le panier d'achat ou nous contacter.

Le rez-de-chaussée est à aire ouverte et plusieurs jolis éléments architecturaux y sont aménagés tels qu'une banquette sous l'escalier menant à l'étage, des arches aux deux secteurs entrées et un plafond ouvert sur deux étages au salon. De plus, une pratique salle de jeux, non loin de la cuisine, fera l'envie de plusieurs. Aussi, l'entrée du garage est près du garde-manger, du vestiaire et de la salle de lavage, ce qui est pratique pour les arrivés de l'épicerie et/ou de la garderie!

À l'étage, du corridor, vous avez une vue plombante sur la salle de séjour, amenant ainsi une belle amplitude à ce secteur. Le bureau propose un mur de panneaux vitrés, vous permettant de garder un oeil sur les allées et venues de chacun. La chambre des parents reçoit de la belle lumière naturelle de la fenêtre arrière. De plus, le walk-in et la superbe (et bien aménagée) salle de bain privée vous permettra de relaxer, la soirée venue.

Cette maison a tout pour plaire car aucun détail n'a été oublié! Tout a été pensé, chaque coin de plancher a été maximisé afin que chacun de ses occupants en retire beaucoup de satisfaction! Les photos intérieures incluses à cette fiche en sont la preuve, bonne découverte!

Éléments distinctifs

Superbe modèle de style classique recevant beaucoup de lumière naturelle à l'arrière de la maison, autant au rez-de-chaussée qu'à l'étage.
Le plafond du rez-de-chaussée est à 9' de hauteur, à l'exception de celui de la salle de séjour qui est à 18'4''.
Trois jolies arches architecturale sont aménagées, l'une à l'entrée avant et l'autre à l'entrée par le vestiaire et la dernière au secteur toilette de la salle de bain privée des parents.
Le garde-manger, le vestiaire et la salle de lavage sont à proximité de l'entrée du garage.
La cuisine est ouverte autant sur la salle de séjour que sur la salle à manger et propose un grand îlot et un garde-manger. Ce dernier a un format de 5' x 9'4''.
La salle de séjour est ouverte sur 2 étages et propose un foyer et un joli coin banquette aménagé sous l'escalier qui monte vers l'étage (voir photo).
La chambre des parents, la salle de séjour et la salle à manger reçoivent beaucoup de lumière naturelle.
La terrasse abritée est accessible de la salle à dîner et est assez grande pour y recevoir un secteur lounge et un coin table et chaises.
Une portion de la terrasse est non-abritée, au secteur salon (voir petit plancher, portion avec foyer décoratif et sectionnel).
La chambre des parents est à l'étage et propose un walk-in et une grande salle de bain privée avec 2 lavabos, ainsi qu'une douche et un bain séparés.
Les 2 chambres additionnelles de l'étage se partage une salle de bain.
Le petit bureau en haut des escaliers propose un panneau vitré tenant lieu de mur permettant ainsi une belle vue vers la salle de séjour.
Le garage double est assez grand pour recevoir un coin établi. Un rangement peut être aménagé à l'étage du garage.
La fondation principale de cette maison est sur dalle flottante, mais n'oubliez pas que tous nos plans sont disponibles avec plusieurs options de fondation, et ils sont tous modifiables dans nos bureau régionaux.


Particularité(s) du plan

Arche, Foyer, Garage spacieux, Garde-manger, Ilôt, Plafond à plus de 8', Salle de jeux, Salle de lavage au rez-de-chaussée, Suite des maîtres à l'étage, Vestiaire, Vue paronamique, Walk-in ch. maîtres, Aire ouverte, Banquette, Terrasse abritée, Mezzanine, Lavabo double, Bain et douche séparés

Style(s) architectural du plan

Farmhouse, Américain, Farmhouse moderne, Traditionnelle, Transitionnel, Champêtre, Vacances, bordure de lac, Tendance

Oceania
Oceania
Bain Loft

Depuis notre fondation en 1995, Bains Oceania est engagé à offrir à ses clients une expérience unique et raffinée dans leur environnement spa résidentiel. Grâce à notre savoir-faire et à notre passion pour l’innovation, nous fabriquons ici, des produits de grande qualité, pour vous.

Oceania
Oceania
Bain Loft

Depuis notre fondation en 1995, Bains Oceania est engagé à offrir à ses clients une expérience unique et raffinée dans leur environnement spa résidentiel. Grâce à notre savoir-faire et à notre passion pour l’innovation, nous fabriquons ici, des produits de grande qualité, pour vous.

Boiseries Raymond
Boiseries Raymond
Porte 151

Chef de file dans le préassemblage de portes intérieures au Québec. Cette force nous permet de vous fournir une variété de modèles préassemblées selon vos spécifications et selon le volume de production requis.

Boiseries Raymond
Boiseries Raymond
Porte 151

Chef de file dans le préassemblage de portes intérieures au Québec. Cette force nous permet de vous fournir une variété de modèles préassemblées selon vos spécifications et selon le volume de production requis.

Boiseries Raymond
Boiseries Raymond
Porte 151

Chef de file dans le préassemblage de portes intérieures au Québec. Cette force nous permet de vous fournir une variété de modèles préassemblées selon vos spécifications et selon le volume de production requis.

Boiseries Raymond
Boiseries Raymond
Porte 151

Chef de file dans le préassemblage de portes intérieures au Québec. Cette force nous permet de vous fournir une variété de modèles préassemblées selon vos spécifications et selon le volume de production requis.

Maibec
Maibec
CanExel Planche & couvre-joint noir

Spécialiste des systèmes de revêtement

Maibec
Maibec
Anna Couleur Stonehenge

Spécialiste des systèmes de revêtement

Plans similaires
Logo Dessins Drummond image Dessins Drummond
Le modèle Sophia est protégé par la loi sur les droits d'auteur.

Les illustrations présentées peuvent différer du plan détaillé que vous recevrez, car ces derniers sont régulièrement ajustés afin de respecter les normes de construction en vigueur.

En savoir plus

Une question ou un commentaire sur ce plan ?

Information de contact

Votre demande

Ajouter vos images ou photos

Pour ajouter une ou des photos, veuillez cliquer ou glisser vos fichiers dans la zone ci-bas. Vous pouvez ajouter jusqu'à huit photos JPG ou JPEG. Cette opération n'est pas obligatoire.

Désolé, votre navigateur ne supporte pas l'envoi de fichier.