Vue avant - MODÈLE DE BASE - Maison split-level 1 à 3 chambres, superbe fenestration à l'arrière, sous-sol aménagé optionnel ($) - Newland

Vue avant - MODÈLE DE BASE

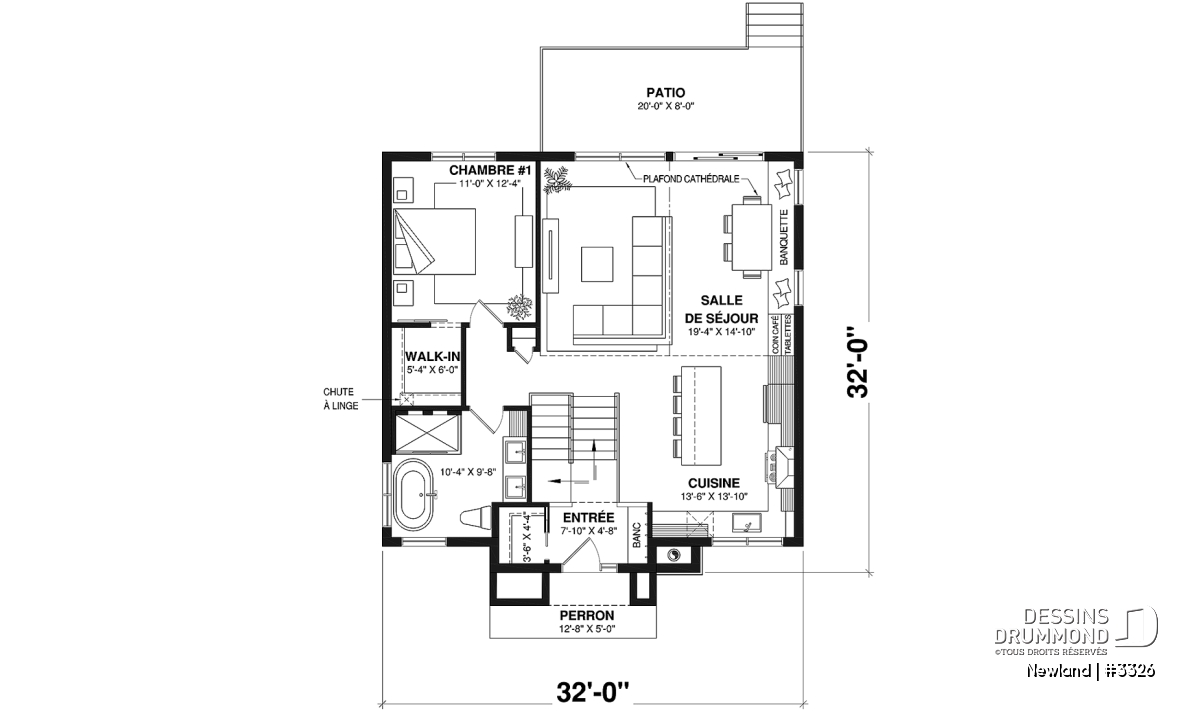
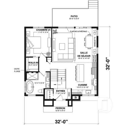
Rez-de-chaussée - Maison split-level 1 à 3 chambres, superbe fenestration à l'arrière, sous-sol aménagé optionnel ($) - Newland

Rez-de-chaussée

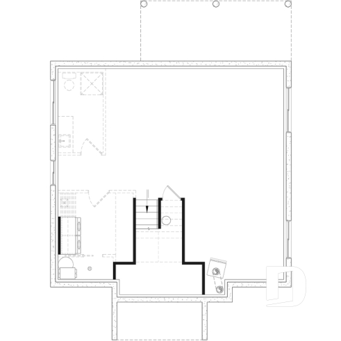
Sous-sol aménageable - Maison split-level 1 à 3 chambres, superbe fenestration à l'arrière, sous-sol aménagé optionnel ($) - Newland

Sous-sol aménageable

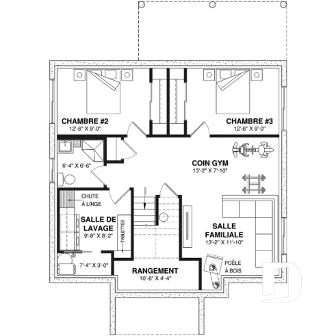
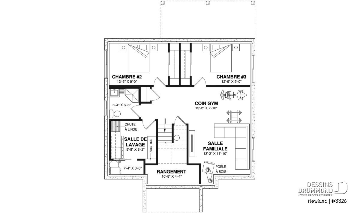
Sous-sol aménagé (Optionel $) - Maison split-level 1 à 3 chambres, superbe fenestration à l'arrière, sous-sol aménagé optionnel ($) - Newland

Sous-sol aménagé (Optionel $)

Vue avant - MODÈLE DE BASE - Newland

Vue avant - MODÈLE DE BASE

Vue avant - MODÈLE DE BASE - Newland

Vue avant - MODÈLE DE BASE

Vue arrière - MODÈLE DE BASE - Newland

Vue arrière - MODÈLE DE BASE

Élévation arrière - Newland

Élévation arrière

Vue intérieure - Newland

Vue intérieure

Newland Plan de maison 3326

Maison split-level 1 à 3 chambres, superbe fenestration à l'arrière, sous-sol aménagé optionnel ($)

À partir de

1215$

Fiche technique sommaire Plan #3326
Estimation ($) 269,637$ (Sous-sol non-fini) | 299,429$ (Sous-sol fini)
Surface habitable 985 pi² Chambre 1, 2, 3
Salle de Bain 2 Salle d'eau -
Fondation incluse Sous-sol aménageable Garage -
Largeur 32'0" Profondeur 32'0"

Besoin d’aide ?

Nos experts vous guident dans votre projet grâce à plus de 30 bureaux au Québec.

Joignez-nous

Consultez notre guide utilisateur

Un outil conçu pour vous simplifier la vie.

Ouvrir le guide

Besoin d’une assurance habitation ?

Pour obtenir votre prix, c’est juste ici

Obtenir une soumission

Les photos de cette maison peuvent différer du plan d'origine, duquel elles proviennent. Pour toute modification, veuillez contacter l’un de nos 30 bureaux.

Détails supplémentaires

Estimation

Spécifications générales

Surface aménagée totale
985 pi²
Rez-de-chaussée
985 pi²
Sous-sol aménageable
985 pi²
Sous-sol aménagé (Optionel $)
985 pi²
Largeur
32'0"
Profondeur
32'0"
Hauteur dessus fondations au faite
23'11"
Murs extérieurs
2 X 6
Murs extérieurs
2 X 6
Sous-sol aménageable
Autres fondations disponibles (des frais peuvent s'appliquer)
Sous-sol aménagé, Dalle flottante, Vide sanitaire, Dalle monolithique
Code Entrepreneur
A

Spécifications sur les pièces

Chambre(s)
1, 2, 3
Salle(s) de bain complète(s)
2
Demi Salle(s) de Bain
-
Type de garage
-
Superficie balcon et/ou perron abrité
63 pi²

Sous-sol aménagé (Optionel $)

Pièces
Dimensions
Plafond
Salle familiale
13'2" x 11'10"
~ 8'0"
Gym
13'2" x 7'10"
~ 8'0"
Chambre à coucher
12'6" x 9'0"
~ 8'0"
Garde-robe
9'0" x 2'0"
~ 8'0"
Chambre à coucher
12'6" x 9'0"
~ 8'0"
Garde-robe
9'0" x 2'0"
~ 8'0"
Salle de douche
6'4" x 6'6"
~ 8'0"
Lingerie
1'0" x 1'0"
N/D
Douche
3'0" x 3'0"
N/D
Salle de lavage
9'8" x 8'2"
~ 8'0"
Pièce de mécanique
7'4" x 3'0"
~ 8'0"
Rangement
10'8" x 4'4"
~ 4'3"
Garde-robe
3'2" x 2'0"
~ 8'0"

Rez-de-chaussée

Pièces
Dimensions
Plafond
Chambre à coucher
11'0" x 12'4"
~ 9'0"
Walk-in
5'4" x 6'0"
~ 9'0"
Lingerie
1'10" x 1'6"
~ 9'0"
Salle de bain complète
10'4" x 9'8"
~ 9'0"
Douche
5'0" x 3'0"
N/D
Lingerie
2'0" x 1'4"
N/D
Perron
12'8" x 5'0"
N/D
Entrée ou vestibule
7'10" x 4'8"
~ 12'0"
Garde-robe
3'6" x 4'4"
~ 12'0"
Cuisine
13'6" x 13'10"
~ 9'0"
Îlot
7'6" x 3'0"
N/D
Salle de séjour/salle à manger
19'4" x 14'10"
~ 14'3"
Patio
20'0" x 8'0"
N/D

Sous-sol aménageable

Luminosité incroyable pour cette petite farmhouse moderne, aménagée sur 2 niveaux!

Le plan de maison NEWLAND (plan #3326) propose 1970 pi.ca. aménagés sur deux planchers. Bien qu'offrant de prime abord des lignes et une architecture simple, la présence de pierre en façade ainsi que de bois à l'entrée avant extérieure, sauront en charmer plus d'un(e)! Et que dire de l'arrière de la maison... WOW!!! Entrons-y donc...

L'entrée split à l'avant est ouverte sur 12' de plafond et inclut une garde-robe de type walk-in ainsi qu'un pratique banc, idéal pour enfiler les chaussures ou y déposer les paquets au retour de vos courses. Puis, après avoir franchi la volée d'escalier vers le rez-de-chaussée, vous êtes accueillis par un espace à aire ouverte regroupant la cuisine, la salle de séjour et le coin salle à dîner. Les clients pour qui ce plan a été conçu ont voulu investir le plus gros de leur budget dans l'espace commun du rez-de-chaussée. Ce faisant, bien que la maison soit de format compact, le plafond cathédrale au secteur de la salle de séjour et le plafond à 9' sur la balance du rez-de-chaussée, vous donnera un sentiment d'ampleur. Un sympathique coin "bar à café" est prévu entre la cuisine et la salle à dîner. Cette dernière, quoi que compacte, offre suffisamment d'espace pour y accueillir 6 personnes grâce à sa banquette qui donne tout un style à ce secteur!

La chambre des parents est également située au plancher principale et propose une garde-robe walk-in dans laquelle nous avons intégré une chute à linge vers la salle de lavage, localisée au sous-sol, question de vous éviter quelques pas. Une salle de bain complète, près de la chambre principale, propose une grande douche et un bain, ainsi que deux lavabos et une lingerie.

*Sous-sol aménagé optionnel ($):
Au sous-sol on retrouve une salle familiale, où les soirées froides seront davantage appréciées grâce au poêle à bois qui y est aménagé, rien de moins! Puis, deux chambres secondaires dont les vocations pourront varier selon vos besoins, se partagent une salle de douche. Un espace flexible est aussi prévu soit pour y installer quelques accessoires d'entrainement ou un coin bureau, ou autres. La salle de lavage et un coin rangement (plafond bas) terminent ce niveau qui fera le bonheur de vos enfants, petits ou grands!

*Si vous souhaitez acheter le plan du sous-sol aménagé, veuillez sélectionner cette option dans le panier d'achat, dans la section "Sélectionner votre fondation". Si vous ne sélectionnez pas cette option, vous recevrez le sous-sol non fini, sans frais additionnel.

Joli prix et style intemporel pour cette magnifique maison farmhouse moderne admirablement aménagée!!




Éléments distinctifs

Maison de style farmhouse moderne, idéale comme première maison.
Pieds carrés maximisés autant au rez-de-chaussée qu'à l'étage.
Coût de construction intéressant compte tenu de ce que cette maison a à offrir.
Placher à 9' sur tout le rez-de-chaussée, sauf à l'entrée split (12') et à la salle de séjour/dîner (cathédrale de 14'3'').
Entrée avec petit walk-in et banc.
Cuisine avec îlot et ouverte sur la salle de séjour.
Coin café aménagé entre la cuisine et la salle à dîner.
La chambre principale comporte un walk-in dans lequel on a aménagé une chute à linge vers la salle de lavage.
Une grande salle de bain au rdc propose une armoire de rangement, un bain et une douche séparés ainsi que 2 lavabos.


*Sous-sol aménagé optionnel ($):
2 chambres, salle familiale, salle de douche, salle de lavage, espace pour gym ou salle de jeux, rangement.
Une poêle à bois est aménagé au sous-sol, dans la salle familiale.
Le secteur entre la salle familiale et la chambre #3 du sous-sol peut être utilisé comme petit gym, coin bureau ou salle de jeux.

*Si vous souhaitez acheter le plan du sous-sol aménagé, veuillez sélectionner cette option dans le panier d'achat, dans la section "Sélectionner votre fondation". Si vous ne sélectionnez pas cette option, vous recevrez le sous-sol non fini, sans frais additionnel.

Particularité(s) du plan

Vue paronamique, Plafond cathédrale, Bar à café, Aire ouverte, Banquette, Bain et douche séparés, Lavabo double, Walk-in ch. maîtres, Chute à linge, Tablettes, Poêle à bois, Auto-Construction

Style(s) architectural du plan

Farmhouse moderne, Transitionnel, Champêtre, Farmhouse, Tendance

Oceania
Oceania
Bain Muskoka

Depuis notre fondation en 1995, Bains Oceania est engagé à offrir à ses clients une expérience unique et raffinée dans leur environnement spa résidentiel. Grâce à notre savoir-faire et à notre passion pour l’innovation, nous fabriquons ici, des produits de grande qualité, pour vous.

Willki
Willki

Les panneaux de pierre vissés Willki transforment vos projets en un clin d'œil. Faciles à installer, durables et écoresponsables, ils offrent le look naturel de la pierre pour une fraction du coût. *Peut nécessiter une modification au plan

Boiseries Raymond
Boiseries Raymond
Porte 151

Chef de file dans le préassemblage de portes intérieures au Québec. Cette force nous permet de vous fournir une variété de modèles préassemblées selon vos spécifications et selon le volume de production requis.

Boiseries Raymond
Boiseries Raymond
Porte 151

Chef de file dans le préassemblage de portes intérieures au Québec. Cette force nous permet de vous fournir une variété de modèles préassemblées selon vos spécifications et selon le volume de production requis.

Boiseries Raymond
Boiseries Raymond
Porte 151

Chef de file dans le préassemblage de portes intérieures au Québec. Cette force nous permet de vous fournir une variété de modèles préassemblées selon vos spécifications et selon le volume de production requis.

Plans similaires
Logo Dessins Drummond image Dessins Drummond
Le modèle Newland est protégé par la loi sur les droits d'auteur.

Les illustrations présentées peuvent différer du plan détaillé que vous recevrez, car ces derniers sont régulièrement ajustés afin de respecter les normes de construction en vigueur.

En savoir plus

Une question ou un commentaire sur ce plan ?

Information de contact

Votre demande

Ajouter vos images ou photos

Pour ajouter une ou des photos, veuillez cliquer ou glisser vos fichiers dans la zone ci-bas. Vous pouvez ajouter jusqu'à huit photos JPG ou JPEG. Cette opération n'est pas obligatoire.

Désolé, votre navigateur ne supporte pas l'envoi de fichier.