Vue avant - MODÈLE DE BASE - Maison de type split-level, champêtre, proposant 4 chambres, 2 salles de bain et 2 salons - Sunny Hill

Vue avant - MODÈLE DE BASE

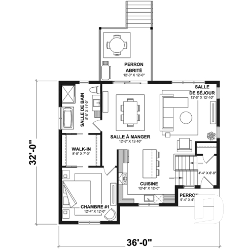
Rez-de-chaussée - Maison de type split-level, champêtre, proposant 4 chambres, 2 salles de bain et 2 salons - Sunny Hill

Rez-de-chaussée

Sous-sol - Maison de type split-level, champêtre, proposant 4 chambres, 2 salles de bain et 2 salons - Sunny Hill

Sous-sol

Vue avant - MODÈLE DE BASE - Sunny Hill

Vue avant - MODÈLE DE BASE

Élévation arrière - Sunny Hill

Élévation arrière

Sunny Hill Plan de maison 6119

Maison de type split-level, champêtre, proposant 4 chambres, 2 salles de bain et 2 salons

À partir de

1655$

Fiche technique sommaire Plan #6119
Estimation ($) 314,458$
Surface habitable 2050 pi² Chambre 4
Salle de Bain 2 Salle d'eau -
Fondation incluse Sous-sol aménagé Garage -
Largeur 36'0" Profondeur 32'0"

Besoin d’aide ?

Nos experts vous guident dans votre projet grâce à plus de 30 bureaux au Québec.

Joignez-nous

Consultez notre guide utilisateur

Un outil conçu pour vous simplifier la vie.

Ouvrir le guide

Besoin d’une assurance habitation ?

Pour obtenir votre prix, c’est juste ici

Obtenir une soumission

Les photos de cette maison peuvent différer du plan d'origine, duquel elles proviennent. Pour toute modification, veuillez contacter l’un de nos 30 bureaux.

Détails supplémentaires

Estimation

Spécifications générales

Surface aménagée totale
2050 pi²
Rez-de-chaussée
1025 pi²
Sous-sol
1025 pi²
Largeur
36'0"
Profondeur
32'0"
Hauteur dessus fondations au faite
23'2"
Murs extérieurs
2 X 6
Murs extérieurs
2 X 6
Autres fondations disponibles (des frais peuvent s'appliquer)
Dalle flottante, Vide sanitaire, Dalle monolithique
Code Entrepreneur
E

Spécifications sur les pièces

Chambre(s)
4
Salle(s) de bain complète(s)
2
Demi Salle(s) de Bain
-
Type de garage
-
Superficie balcon et/ou perron abrité
181 pi²

Rez-de-chaussée

Pièces
Dimensions
Plafond
Perron
9'4" x 4'0"
N/D
Cuisine
12'8" x 12'0"
~ 8'0"
Îlot
6'4" x 3'0"
N/D
Entrée ou vestibule
4'4" x 6'8"
~ 12'4"
Garde-robe
4'6" x 2'6"
~ 12'4"
Chambre à coucher
12'4" x 12'0"
~ 8'0"
Walk-in
8'8" x 7'0"
~ 8'0"
Salle à manger
12'8" x 12'10"
~ 8'0"
Salle de séjour
13'0" x 12'10"
~ 8'0"
Salle de bain complète
8'8" x 11'0"
~ 8'0"
Lingerie
1'6" x 1'4"
N/D
Douche
4'0" x 3'0"
N/D
Perron abrité
12'0" x 12'0"
~ 8'4"

Sous-sol

Pièces
Dimensions
Plafond
Chambre à coucher
11'8" x 9'6"
~ 8'0"
Garde-robe
8'0" x 2'0"
~ 8'0"
Salle de lavage
7'8" x 5'0"
~ 8'0"
Chambre à coucher
13'0" x 12'6"
~ 8'0"
Garde-robe
12'6" x 2'0"
~ 8'0"
Salle de bain
6'0" x 12'2"
~ 8'0"
Lingerie
2'0" x 1'6"
N/D
Chambre à coucher
12'0" x 12'6"
~ 8'0"
Garde-robe
6'0" x 2'0"
~ 8'0"
Petit salon
9'0" x 9'8"
~ 8'0"

Maison split level économique offrant 4 chambres, 2 salles de bain et 2 salons!

Le plan de maison Sunny Hill (#6119) vous plaira pour son total de 2050 pi.ca. aménagés sur 2 niveaux et son style d'inspiration Farmhouse Moderne.

Le sous-sol fini offre une belle lumière naturelle à chacune des 3 chambres qui y sont aménagées. Ces dernières se partagent une salle de bain complète, ainsi qu'un petit salon central, pouvant aussi servir de salle de jeux ou petit bureau. Un secteur rangement sous les escaliers est aussi offert.

Le rez-de-chaussée s'ouvre sur la cuisine, la salle à manger et la salle de séjour qui sont à aire ouverte. L'accès à la terrasse abritée se fait par le secteur salle à dîner. La chambre des parents inclut un coin lecture, ainsi qu'une garde-robe de type walk-in. De plus une salle de bain avec bain et douche séparés, complètent se niveau.

Voilà une petite maison bien pensée et à bon prix qui pourra suivre l'évolution de votre famille!

Éléments distinctifs

Split level d'inspiration farmhouse moderne.
Total de 4 chambres à coucher et 2 salles de bain complète.
Aire ouverte à la cuisine, salle à manger et salon.
Cuisine avec îlot central.
Suite des parents avec garde-robe de type walk-in et accès à la salle de bain complète du rez-de- chaussée.
Belle terrasse abritée à l'arrière.
Beaucoup de lumière naturelle au sous-sol aménagé.
Petit salon ou salle de jeux prévu au sous-sol.

Particularité(s) du plan

Walk-in ch. maîtres, Ilôt, Suite des maîtres au rdc, Terrasse abritée, Aire ouverte, Bain et douche séparés, Entrepreneur, Auto-Construction

Style(s) architectural du plan

Farmhouse moderne, Farmhouse

Ventilation Maximum
Ventilation Maximum

Entreprise manufacturière qui vends des ventilateurs de toiture, des clapets muraux et des entrées d'air.

Oceania
Oceania
Bain Primrose

Depuis notre fondation en 1995, Bains Oceania est engagé à offrir à ses clients une expérience unique et raffinée dans leur environnement spa résidentiel. Grâce à notre savoir-faire et à notre passion pour l’innovation, nous fabriquons ici, des produits de grande qualité, pour vous.

Plans similaires
Logo Dessins Drummond image Dessins Drummond
Le modèle Sunny Hill est protégé par la loi sur les droits d'auteur.

Les illustrations présentées peuvent différer du plan détaillé que vous recevrez, car ces derniers sont régulièrement ajustés afin de respecter les normes de construction en vigueur.

En savoir plus

Une question ou un commentaire sur ce plan ?

Information de contact

Votre demande

Ajouter vos images ou photos

Pour ajouter une ou des photos, veuillez cliquer ou glisser vos fichiers dans la zone ci-bas. Vous pouvez ajouter jusqu'à huit photos JPG ou JPEG. Cette opération n'est pas obligatoire.

Désolé, votre navigateur ne supporte pas l'envoi de fichier.