Vue avant - MODÈLE DE BASE - Plan de plain-pied, 2 à 5 chambres, 1 ou 2 sdb, cuisine avec îlot, sous-sol aménagé optionnel ($) - Mayfair

Vue avant - MODÈLE DE BASE

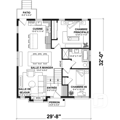
Rez-de-chaussée - Plan de plain-pied, 2 à 5 chambres, 1 ou 2 sdb, cuisine avec îlot, sous-sol aménagé optionnel ($) - Mayfair

Rez-de-chaussée

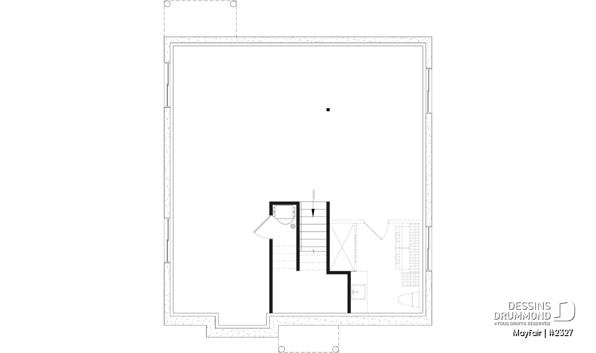
Sous-sol aménageable - Plan de plain-pied, 2 à 5 chambres, 1 ou 2 sdb, cuisine avec îlot, sous-sol aménagé optionnel ($) - Mayfair

Sous-sol aménageable

Sous-sol aménagé (Optionel $) - Plan de plain-pied, 2 à 5 chambres, 1 ou 2 sdb, cuisine avec îlot, sous-sol aménagé optionnel ($) - Mayfair

Sous-sol aménagé (Optionel $)

Vue avant - MODÈLE DE BASE - Mayfair

Vue avant - MODÈLE DE BASE

Vue avant - MODÈLE DE BASE - Mayfair

Vue avant - MODÈLE DE BASE

Élévation arrière - Mayfair

Élévation arrière

Vue intérieure - Mayfair

Vue intérieure

Mayfair Plan de maison 2327

Plan de plain-pied, 2 à 5 chambres, 1 ou 2 sdb, cuisine avec îlot, sous-sol aménagé optionnel ($)

À partir de

1215$

Fiche technique sommaire Plan #2327
Estimation ($) 261,891$ (Sous-sol non-fini) | 291,177$ (Sous-sol fini)
Surface habitable 960 pi² Chambre 2, 3, 4, 5
Salle de Bain 2 Salle d'eau -
Fondation incluse Sous-sol aménageable Garage -
Largeur 29'8" Profondeur 33'4"

Besoin d’aide ?

Nos experts vous guident dans votre projet grâce à plus de 30 bureaux au Québec.

Joignez-nous

Consultez notre guide utilisateur

Un outil conçu pour vous simplifier la vie.

Ouvrir le guide

Besoin d’une assurance habitation ?

Pour obtenir votre prix, c’est juste ici

Obtenir une soumission

Les photos de cette maison peuvent différer du plan d'origine, duquel elles proviennent. Pour toute modification, veuillez contacter l’un de nos 30 bureaux.

Détails supplémentaires

Estimation

Spécifications générales

Surface aménagée totale
960 pi²
Rez-de-chaussée
960 pi²
Sous-sol aménageable
960 pi²
Sous-sol aménagé (Optionel $)
960 pi²
Largeur
29'8"
Profondeur
33'4"
Hauteur dessus fondations au faite
19'7"
Murs extérieurs
2 X 6
Murs extérieurs
2 X 6
Sous-sol aménageable
Autres fondations disponibles (des frais peuvent s'appliquer)
Sous-sol aménagé, Dalle flottante, Vide sanitaire, Dalle monolithique
Code Entrepreneur
A

Spécifications sur les pièces

Chambre(s)
2, 3, 4, 5
Salle(s) de bain complète(s)
2
Demi Salle(s) de Bain
-
Type de garage
-
Superficie balcon et/ou perron abrité
20 pi²

Rez-de-chaussée

Pièces
Dimensions
Plafond
Salle de bain complète
10'8" x 7'10"
~ 8'0"
Douche
2'8" x 4'0"
N/D
Lingerie
1'0" x 1'2"
N/D
Cuisine
13'0" x 11'4"
~ 8'0"
Îlot
6'0" x 3'0"
N/D
Salle à manger
13'0" x 8'0"
~ 8'0"
Salle de séjour
11'0" x 11'0"
~ 11'4"
Chambre à coucher
12'8" x 11'0"
~ 8'0"
Garde-robe
7'6" x 2'0"
~ 8'0"
Chambre à coucher
8'4" x 10'10"
~ 8'0"
Garde-robe
3'0" x 2'0"
~ 8'0"
Entrée ou vestibule
6'0" x 5'2"
~ 10'2"
Patio
8'0" x 4'0"
N/D
Perron
6'8" x 3'0"
N/D
Abri d'auto
0'0" x 0'0"
N/D

Sous-sol aménagé (Optionel $)

Pièces
Dimensions
Plafond
Chambre à coucher
10'4" x 9'8"
~ 8'0"
Garde-robe
8'0" x 2'0"
~ 8'0"
Salle de lavage
8'2" x 6'7"
~ 8'0"
Garde-robe
2'10" x 1'10"
~ 8'0"
Chambre à coucher
11'2" x 11'0"
~ 8'0"
Garde-robe
7'2" x 2'0"
~ 8'0"
Bureau à domicile
10'4" x 10'2"
~ 8'0"
Salle de bain
5'6" x 6'4"
~ 8'0"
Salle familiale
10'8" x 16'0"
~ 8'0"

Sous-sol aménageable

Magnifique maison aux accents campagne française proposant 2 à 4 chambres + possibilité d'un bureau!

.

Éléments distinctifs

Beau style architectural avec accent chaleureux en bois.
Magnifique fenêtre à arche à l'avant.
Possibilité de 4 chambres + bureaux, ou 5 chambres.
2 salons.
Coin déjeuner.
2 salles de bain.

*Sous sol aménagé (optionnel $):
2 chambres, bureau (ou chambre #5), salle familiale, salle de lavage, salle de douche et rangement.

*Si vous souhaitez acheter le plan du sous-sol aménagé, veuillez sélectionner cette option dans le panier d'achat, dans la section "Sélectionner votre fondation". Si vous ne sélectionnez pas cette option, vous recevrez le sous-sol non fini, sans frais additionnel.

Particularité(s) du plan

Bain et douche séparés, Plafond cathédrale, Ilôt, Bureau / Salle étude, Chute à linge, Banquette, Arche, Auto-Construction

Style(s) architectural du plan

Transitionnel, Anglais, Européen, Ranch, Champêtre

beneva
beneva

Offrir la meilleure expérience d’assurance au Canada grâce à notre simplicité inégalée.

Oceania
Oceania
Bain Rupert

Depuis notre fondation en 1995, Bains Oceania est engagé à offrir à ses clients une expérience unique et raffinée dans leur environnement spa résidentiel. Grâce à notre savoir-faire et à notre passion pour l’innovation, nous fabriquons ici, des produits de grande qualité, pour vous.

Plans similaires
Logo Dessins Drummond image Dessins Drummond
Le modèle Mayfair est protégé par la loi sur les droits d'auteur.

Les illustrations présentées peuvent différer du plan détaillé que vous recevrez, car ces derniers sont régulièrement ajustés afin de respecter les normes de construction en vigueur.

En savoir plus

Une question ou un commentaire sur ce plan ?

Information de contact

Votre demande

Ajouter vos images ou photos

Pour ajouter une ou des photos, veuillez cliquer ou glisser vos fichiers dans la zone ci-bas. Vous pouvez ajouter jusqu'à huit photos JPG ou JPEG. Cette opération n'est pas obligatoire.

Désolé, votre navigateur ne supporte pas l'envoi de fichier.