Vue avant - MODÈLE DE BASE - Plain-pied champêtre avec garage, 2 chambres, foyer, garde-manger et belle lumière naturelle - Somerset

Vue avant - MODÈLE DE BASE

Rez-de-chaussée - Plain-pied champêtre avec garage, 2 chambres, foyer, garde-manger et belle lumière naturelle - Somerset

Rez-de-chaussée

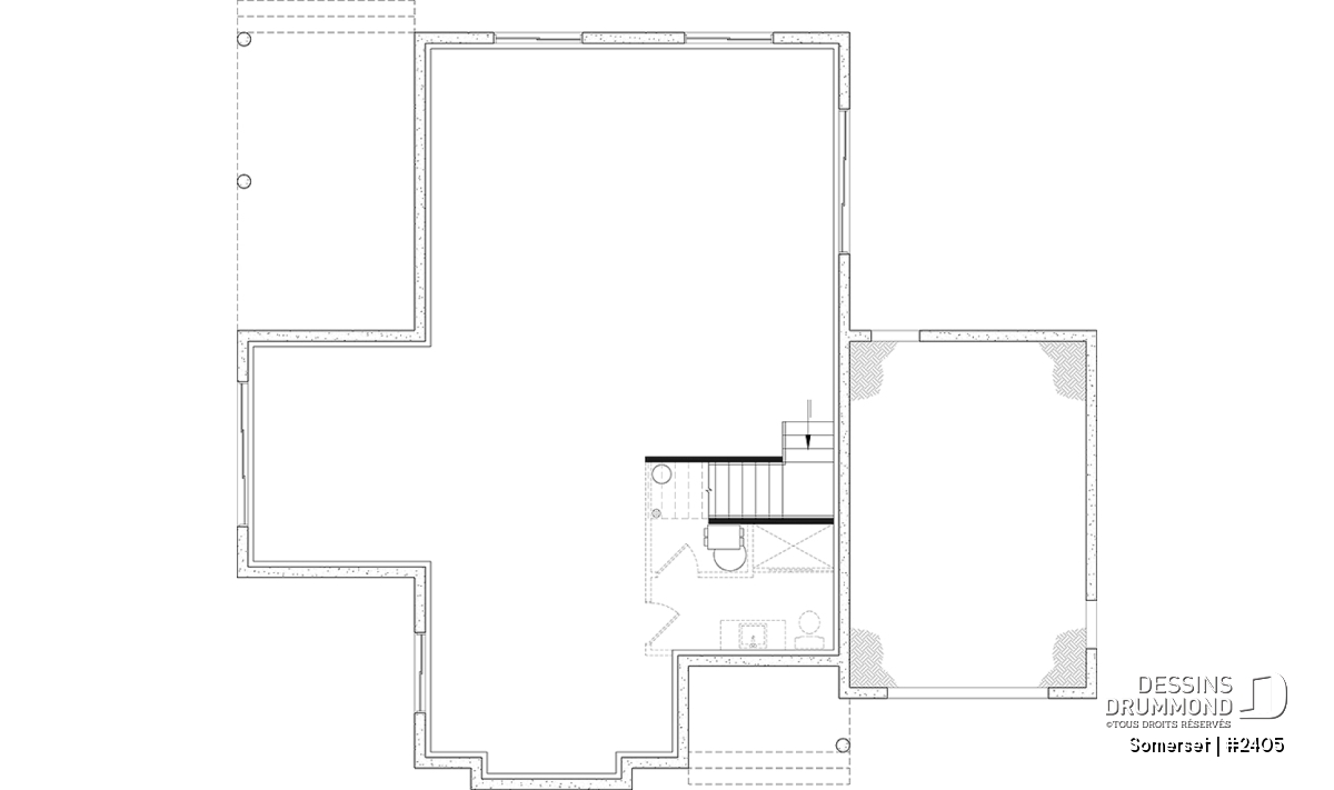
Sous-sol aménageable - Plain-pied champêtre avec garage, 2 chambres, foyer, garde-manger et belle lumière naturelle - Somerset

Sous-sol aménageable

Vue gauche - Somerset

Vue gauche

Élévation arrière - Somerset

Élévation arrière

Vue intérieure - Somerset

Vue intérieure

Somerset Plan de maison 2405

Plain-pied champêtre avec garage, 2 chambres, foyer, garde-manger et belle lumière naturelle

À partir de

1440$

Fiche technique sommaire Plan #2405
Estimation ($) 391,699$
Surface habitable 1352 pi² Chambre 2
Salle de Bain 1 Salle d'eau -
Fondation incluse Sous-sol aménageable Garage 1 voiture
Largeur 53'4" Profondeur 47'0"

Besoin d’aide ?

Nos experts vous guident dans votre projet grâce à plus de 30 bureaux au Québec.

Joignez-nous

Consultez notre guide utilisateur

Un outil conçu pour vous simplifier la vie.

Ouvrir le guide

Besoin d’une assurance habitation ?

Pour obtenir votre prix, c’est juste ici

Obtenir une soumission

Photos du plan Somerset

Les photos de cette maison peuvent différer du plan d'origine, duquel elles proviennent. Pour toute modification, veuillez contacter l’un de nos 30 bureaux.

Détails supplémentaires

Estimation

Spécifications générales

Surface aménagée totale
1352 pi²
Rez-de-chaussée
1352 pi²
Sous-sol aménageable
1352 pi²
Largeur
53'4"
Profondeur
47'0"
Hauteur dessus fondations au faite
22'5"
Murs extérieurs
2 X 6
Murs extérieurs
2 X 6
Sous-sol aménageable
Autres fondations disponibles (des frais peuvent s'appliquer)
Dalle flottante, Vide sanitaire, Dalle monolithique
Code Entrepreneur
C

Spécifications sur les pièces

Chambre(s)
2
Salle(s) de bain complète(s)
1
Demi Salle(s) de Bain
-
Type de garage
1 voiture (365 pi²)
Superficie balcon et/ou perron abrité
50 pi²

Rez-de-chaussée

Pièces
Dimensions
Plafond
Salle de bain complète
11'0" x 11'0"
~ 9'0"
Douche
6'0" x 3'0"
N/D
Lingerie
2'8" x 1'0"
N/D
Cuisine
10'6" x 13'6"
~ 9'0"
Garde-manger
4'0" x 4'4"
~ 9'0"
Îlot
8'0" x 3'2"
N/D
Salle à manger
11'0" x 14'0"
~ 12'7"
Salle de séjour
15'8" x 16'2"
~ 9'0"
Chambre à coucher
11'6" x 11'10"
~ 9'0"
Garde-robe
5'9" x 2'0"
~ 9'0"
Garage
14'8" x 21'6"
~ 9'4"
Perron abrité
9'10" x 5'4"
~ 9'4"
Entrée ou vestibule
9'8" x 8'2"
~ 9'0"
Garde-robe
2'0" x 3'8"
~ 8'0"
Terrasse abritée
11'0" x 18'6"
~ 9'4"
Lingerie
3'6" x 1'8"
~ 9'0"
Suite des maîtres
14'0" x 11'0"
~ 9'0"
Walk-in
6'2" x 4'4"
~ 9'0"

Sous-sol aménageable

Plan de plain-pied abordable de style farmhouse moderne proposant une grande terrasse abritée et un garage!

Le plan de maison SOMERSET (#2405) propose 1352 pi.ca. au rez-de-chaussée et la même chose au sous-sol qui est non-aménagé, à l'exception de la salle de lavage qui s'y trouve. Un garage de 365 pi.ca. est annexé à la maison et a un accès direct au vestibule, ce qui est pratique quand vous arriverez à la maison avec vos emplettes.

Tout le rez-de-chaussée offre des plafonds à 9' de hauteur et un plafond cathédrale de 12'7'' à la salle à manger. Cette dernière reçoit une belle lumière naturelle fournie par les deux grandes fenêtres et la porte-patio qui s'y trouvent. De plus la porte-patio de la salle à dîner mène directement à la terrasse abritée de format 11' x 18'6'', ce qui la rend suffisament grande pour y aménager un coin salle à manger et un petit salon.

La cuisine inclut un îlot de bon format ainsi qu'un garde-manger, et elle est ouverte sur la salle à manger d'un côté, et sur la salle de séjour de l'autre. Ce dernier propose un foyer et vous y retrouverez également une belle banquette aménagée sur la fenêtre avant, petit coin idéal pour vous perdre dans vos lectures du moment!

Les chambres sont localisées à l'arrière de la maison, Celle des parents possède une garde-robe de type walk-in ainsi qu'un accès privé à la salle de bain familiale. Celle-ci propose un coin baignoire relaxant face à la fenêtre arrière, une grande douche vitrée ainsi que deux lavabos séparés. La salle de lavage est prévue au sous-sol.

Le plan Somerset propose un joli plan de plancher bien pensé pour plusieurs types de familles... Elle plaira autant aux jeunes familles avec un seul enfant, à celles avec des ados qui pourront se loger au sous-sol aménagé (éventuellement), ainsi qu'aux couples cherchant à rapetisser le pied carré de leur maison tout en conservant les commodités si précieuses et recherchées de tous!


Éléments distinctifs

Joli maison de type plain-pied abordable avec garage et de style farmhouse moderne.
Perron avant abrité ouvrant sur le vestibule d'entrée.
Plafond à 9' sur tout le rez-de-chaussée, sauf à la salle à manger où il est à 12'7''.
Le salon est de bon format et offre un foyer.
Cuisine avec îlot central et garde-manger.
Salle à manger lumineuse et avec accès à la terrasse abritée.
La chambre des parents possède une garde-robe de type walk-in et un accès privé à la salle de bain.
La salle de bain offre un bain et une douche séparés, ainsi que deux lavabos.
La terrasse abritée offre près de 200 pi.ca.
Le garage a un accès à la maison directement dans le vestiaire.
La salle de lavage est aménagée au sous-sol.
D'autres types de fondation sont disponibles pour ce plan.

Particularité(s) du plan

Comptoir-lunch, Bain et douche séparés, Plafond cathédrale, Vestibule, Garde-manger, Plafond à plus de 8', Terrasse abritée, Arche, Foyer, Vue paronamique, Walk-in ch. maîtres, Lavabo double, Banquette, Tablettes, Meuble(s) encastré(s), Entrepreneur, Auto-Construction

Style(s) architectural du plan

Champêtre, Ranch, Farmhouse moderne, Américain, Traditionnelle, Tendance

Boiseries Raymond
Boiseries Raymond
Porte 555

Chef de file dans le préassemblage de portes intérieures au Québec. Cette force nous permet de vous fournir une variété de modèles préassemblées selon vos spécifications et selon le volume de production requis.

Boiseries Raymond
Boiseries Raymond
Porte 555

Chef de file dans le préassemblage de portes intérieures au Québec. Cette force nous permet de vous fournir une variété de modèles préassemblées selon vos spécifications et selon le volume de production requis.

Boiseries Raymond
Boiseries Raymond
Porte 555

Chef de file dans le préassemblage de portes intérieures au Québec. Cette force nous permet de vous fournir une variété de modèles préassemblées selon vos spécifications et selon le volume de production requis.

Plans similaires
Logo Dessins Drummond image Dessins Drummond
Le modèle Somerset est protégé par la loi sur les droits d'auteur.

Les illustrations présentées peuvent différer du plan détaillé que vous recevrez, car ces derniers sont régulièrement ajustés afin de respecter les normes de construction en vigueur.

En savoir plus

Une question ou un commentaire sur ce plan ?

Information de contact

Votre demande

Ajouter vos images ou photos

Pour ajouter une ou des photos, veuillez cliquer ou glisser vos fichiers dans la zone ci-bas. Vous pouvez ajouter jusqu'à huit photos JPG ou JPEG. Cette opération n'est pas obligatoire.

Désolé, votre navigateur ne supporte pas l'envoi de fichier.