Vue avant - MODÈLE DE BASE - Plan de maison Canadienne avec garage, 3 chambres, 2.5 s. bain, chambre des parents avec salle de bain privée - Delphine 2

Vue avant - MODÈLE DE BASE

Rez-de-chaussée - Plan de maison Canadienne avec garage, 3 chambres, 2.5 s. bain, chambre des parents avec salle de bain privée - Delphine 2

Rez-de-chaussée

Étage - Plan de maison Canadienne avec garage, 3 chambres, 2.5 s. bain, chambre des parents avec salle de bain privée - Delphine 2

Étage

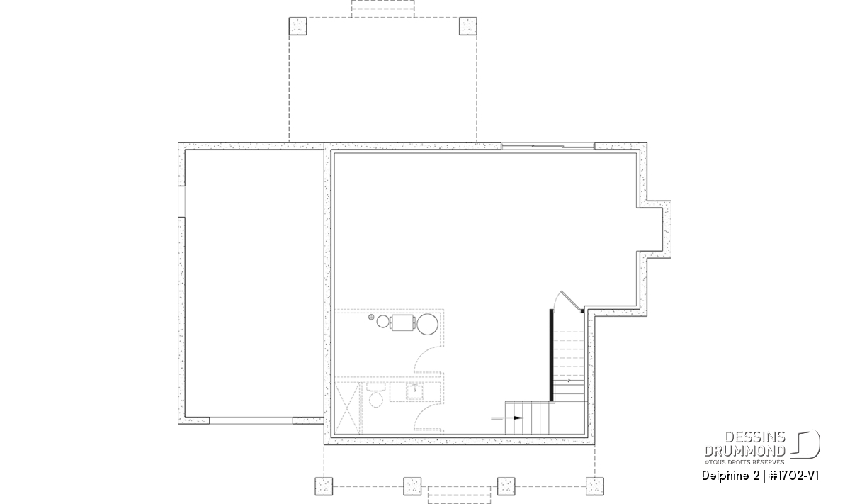
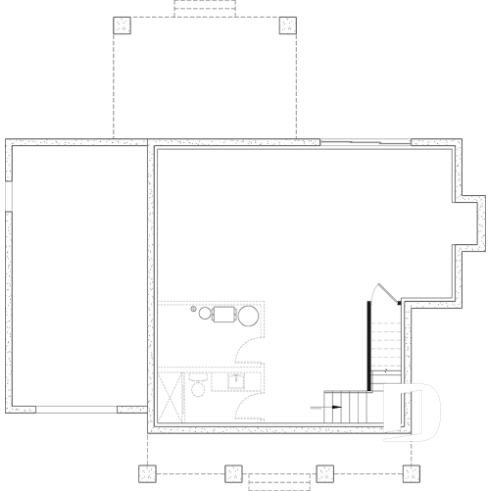
Sous-sol aménageable - Plan de maison Canadienne avec garage, 3 chambres, 2.5 s. bain, chambre des parents avec salle de bain privée - Delphine 2

Sous-sol aménageable

Élévation arrière - Delphine 2

Élévation arrière

Vue intérieure - Delphine 2

Vue intérieure

Vue intérieure - Delphine 2

Vue intérieure

Delphine 2 Plan de maison 1702-V1

Plan de maison Canadienne avec garage, 3 chambres, 2.5 s. bain, chambre des parents avec salle de bain privée

À partir de

1600$

Fiche technique sommaire Plan #1702-V1
Estimation ($) 460,182$
Surface habitable 1622 pi² Chambre 3
Salle de Bain 2 Salle d'eau 1
Fondation incluse Sous-sol aménageable Garage 1 voiture
Largeur 47'4" Profondeur 29'0"

Besoin d’aide ?

Nos experts vous guident dans votre projet grâce à plus de 30 bureaux au Québec.

Joignez-nous

Consultez notre guide utilisateur

Un outil conçu pour vous simplifier la vie.

Ouvrir le guide

Besoin d’une assurance habitation ?

Pour obtenir votre prix, c’est juste ici

Obtenir une soumission

Photos du plan Delphine 2

Les photos de cette maison peuvent différer du plan d'origine, duquel elles proviennent. Pour toute modification, veuillez contacter l’un de nos 30 bureaux.

Détails supplémentaires

Estimation

Spécifications générales

Surface aménagée totale
1622 pi²
Rez-de-chaussée
850 pi²
Étage
772 pi²
Sous-sol aménageable
850 pi²
Largeur
47'4"
Profondeur
29'0"
Hauteur dessus fondations au faite
27'1"
Murs extérieurs
2 X 6
Murs extérieurs
2 X 6
Sous-sol aménageable
Autres fondations disponibles (des frais peuvent s'appliquer)
Sous-sol aménagé, Dalle flottante, Vide sanitaire, Dalle monolithique
Code Entrepreneur
D

Spécifications sur les pièces

Chambre(s)
3
Salle(s) de bain complète(s)
2
Demi Salle(s) de Bain
1
Type de garage
1 voiture (396 pi²)
Superficie balcon et/ou perron abrité
104 pi²

Rez-de-chaussée

Pièces
Dimensions
Plafond
Garage
13'4" x 25'8"
~ 10'5"
Terrasse abritée
18'0" x 12'0"
~ 9'4"
Perron abrité
26'0" x 4'0"
~ 9'4"
Entrée ou vestibule
6'10" x 5'10"
~ 9'0"
Vestiaire
8'6" x 8'0"
~ 9'0"
Salle de lavage
6'6" x 8'0"
~ 9'0"
Coin toilette/lavabo
4'10" x 5'8"
~ 9'0"
Salle de séjour
14'0" x 15'4"
~ 9'0"
Salle à manger
8'0" x 15'4"
~ 9'0"
Cuisine
10'10" x 15'4"
~ 9'0"
Garde-manger
5'4" x 6'0"
~ 9'0"
Îlot
6'6" x 2'8"
N/D

Étage

Pièces
Dimensions
Plafond
Suite des maîtres
15'0" x 13'2"
~ 8'0"
Walk-in
5'8" x 8'8"
~ 6'0"
Salle de bain complète
10'4" x 5'6"
~ 8'0"
Douche
5'6" x 2'8"
N/D
Lingerie
1'10" x 1'0"
N/D
Chambre à coucher
9'8" x 12'8"
~ 8'0"
Garde-robe
4'8" x 2'4"
~ 8'0"
Chambre à coucher
11'6" x 10'6"
~ 8'0"
Garde-robe
4'2" x 2'0"
~ 8'0"
Salle de bain
5'6" x 12'8"
~ 8'0"
Lingerie
1'4" x 1'10"
N/D

Sous-sol aménageable

Magnifique maison Canadienne à étage avec grand balcon avant et terrasse arrière abrités!

Le plan de maison Delphine 2 (#1702-V1) propose 1622 pi.ca. aménagés sur deux étages. La fondation de base qui est incluse dans le plan est un sous-sol non-fini de 850 pi.ca. À noter que plusieurs autres types de fondation sont disponibles ($). De plus, un garage simple de 396 pi.ca, est suffisament grand pour y aménager un coin établi, qui fera l'affaire des bricoleurs!

Au rez-de-chaussée, nous retrouvons des plafonds de 9’ de hauteur, ce qui donne un effet d'amplitude à toutes les pièces s'y retrouvant. L'entrée avant propose un vestiaire, qui est accessible du garage, et qui inclut du mobilier intégré, ainsi qu'un banc, pratique pour y déposer les emplettes. La cuisine, avec garde-manger et îlot, est à aire ouverte sur la salle à dîner ainsi que sur la salle de séjour. Cette dernière a un foyer bien central avec mobiliers intégrés de chaque côté. L’accès à la terrasse abritée se fait de la salle à manger. Cet espace extérieur couvert permet l'aménagement d'un coin repas ainsi que d'un secteur salon. La salle de lavage et la salle d'eau se retrouvent aussi au rez-de-chaussée.

À l’étage, nous retrouvons 3 chambres, dont une chambre des maîtres avec un coin lecture fort appréciable. De plus, la chambre principale offre une garde-robe de type walk-in et une salle de bain privée avec deux lavabos et une douche de grand format. Les deux chambres secondaires se partagent une salle de bain, avec toilette et bain d'un côté, et vanité double de l'autre.

Bien que le plan Delphine 2 soit plutôt compact, son aménagement chaleureux et ses nombreuses commodités conviendront aux jeunes familles soucieuses de leur budget! Sans oublier que le sous-sol pourra éventuellement être fini pour les besoins futurs de la famille!

Éléments distinctifs

Maison à étage de style Canadienne, avec garage simple de bon format.
Plafond à 9' sur tout le rez-de-chaussée.
Vestiaire accessible du garage et de l'entrée avant de la maison.
Salle d'eau (toilette & lavabo) en retrait des aires communes.
Salle de lavage avec comptoir et cuve, au rez-de-chaussée.
Aire ouverte au secteur cuisine, salle à manger et salon.
Garde-manger et îlot à la cuisine.
Foyer à la salle de séjour, centré et visible de la cuisine et de la salle à manger. Mobiliers intégrés prévus de chaque côté du foyer.
Terrasse abritée de 18' x 12' assez grande pour y aménager un coin salle à dîner et coin détente.
Chambre des parents à l'étage avec coin lecture, garde-robe de type walk-in et salle de douche privée.
Les deux chambres secondaires se partagent une salle de bain, dont le bain et la toilette sont séparés du coin lavabo double.
Le sous-sol est non-fini, et pourra éventuellement être aménagé en chambres additionnelles, salle familiale, bureau et autres, selon les besoins de votre famille.

Particularité(s) du plan

Plafond en pente, Suite des maîtres à l'étage, Salle de lavage au rez-de-chaussée, Garde-manger, Foyer, Terrasse abritée, Vestiaire, Meuble(s) encastré(s), Lavabo double, Plafond à plus de 8', Entrepreneur, Auto-Construction, Walk-in ch. maîtres

Style(s) architectural du plan

Canadien, Rustique, Campagne Française, Champêtre, Traditionnelle, Colonial, Américain, Farmhouse

Willki
Willki

Les panneaux de pierre vissés Willki transforment vos projets en un clin d'œil. Faciles à installer, durables et écoresponsables, ils offrent le look naturel de la pierre pour une fraction du coût. *Peut nécessiter une modification au plan

Boiseries Raymond
Boiseries Raymond
Porte 151

Chef de file dans le préassemblage de portes intérieures au Québec. Cette force nous permet de vous fournir une variété de modèles préassemblées selon vos spécifications et selon le volume de production requis.

Boiseries Raymond
Boiseries Raymond
Porte 151

Chef de file dans le préassemblage de portes intérieures au Québec. Cette force nous permet de vous fournir une variété de modèles préassemblées selon vos spécifications et selon le volume de production requis.

Boiseries Raymond
Boiseries Raymond
Porte 151

Chef de file dans le préassemblage de portes intérieures au Québec. Cette force nous permet de vous fournir une variété de modèles préassemblées selon vos spécifications et selon le volume de production requis.

Boiseries Raymond
Boiseries Raymond
Porte 151

Chef de file dans le préassemblage de portes intérieures au Québec. Cette force nous permet de vous fournir une variété de modèles préassemblées selon vos spécifications et selon le volume de production requis.

Plans similaires
Logo Dessins Drummond image Dessins Drummond
Le modèle Delphine 2 est protégé par la loi sur les droits d'auteur.

Les illustrations présentées peuvent différer du plan détaillé que vous recevrez, car ces derniers sont régulièrement ajustés afin de respecter les normes de construction en vigueur.

En savoir plus

Une question ou un commentaire sur ce plan ?

Information de contact

Votre demande

Ajouter vos images ou photos

Pour ajouter une ou des photos, veuillez cliquer ou glisser vos fichiers dans la zone ci-bas. Vous pouvez ajouter jusqu'à huit photos JPG ou JPEG. Cette opération n'est pas obligatoire.

Désolé, votre navigateur ne supporte pas l'envoi de fichier.