Version couleur no. 3 - Vue avant - Plan de maison avec garage, 3 chambres, sous-sol non-fini à aménager, cuisine avec garde-manger - Fabien 2

Version couleur no. 3 - Vue avant

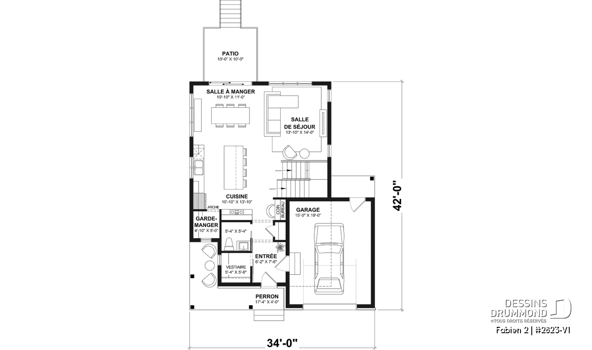
Rez-de-chaussée - Plan de maison avec garage, 3 chambres, sous-sol non-fini à aménager, cuisine avec garde-manger - Fabien 2

Rez-de-chaussée

Étage - Plan de maison avec garage, 3 chambres, sous-sol non-fini à aménager, cuisine avec garde-manger - Fabien 2

Étage

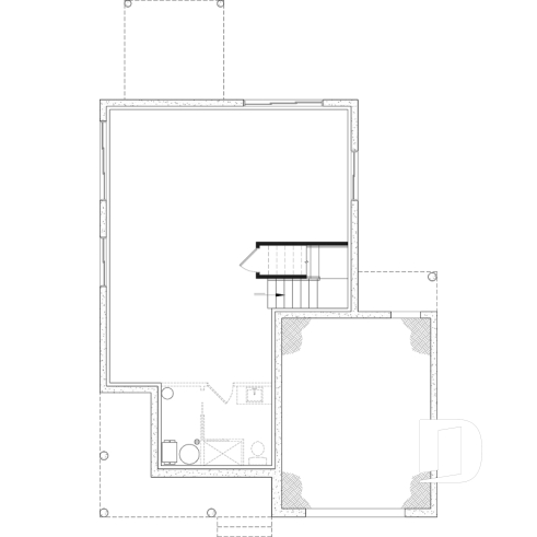
Sous-sol aménageable - Plan de maison avec garage, 3 chambres, sous-sol non-fini à aménager, cuisine avec garde-manger - Fabien 2

Sous-sol aménageable

Vue avant - MODÈLE DE BASE - Fabien 2

Vue avant - MODÈLE DE BASE

Vue avant - MODÈLE DE BASE - Fabien 2

Vue avant - MODÈLE DE BASE

Vue avant - MODÈLE DE BASE - Fabien 2

Vue avant - MODÈLE DE BASE

Élévation arrière - Fabien 2

Élévation arrière

Version couleur no. 2 - Vue avant - Fabien 2

Version couleur no. 2 - Vue avant

Fabien 2 Plan de maison 2823-V1

Plan de maison avec garage, 3 chambres, sous-sol non-fini à aménager, cuisine avec garde-manger

À partir de

1600$

Fiche technique sommaire Plan #2823-V1
Estimation ($) 490,467$
Surface habitable 1762 pi² Chambre 3
Salle de Bain 1 Salle d'eau 1
Fondation incluse Sous-sol aménageable Garage 1 voiture
Largeur 34'0" Profondeur 42'0"

Besoin d’aide ?

Nos experts vous guident dans votre projet grâce à plus de 30 bureaux au Québec.

Joignez-nous

Consultez notre guide utilisateur

Un outil conçu pour vous simplifier la vie.

Ouvrir le guide

Besoin d’une assurance habitation ?

Pour obtenir votre prix, c’est juste ici

Obtenir une soumission

Photos du plan Fabien 2

Les photos de cette maison peuvent différer du plan d'origine, duquel elles proviennent. Pour toute modification, veuillez contacter l’un de nos 30 bureaux.

Détails supplémentaires

Estimation

Spécifications générales

Surface aménagée totale
1762 pi²
Rez-de-chaussée
821 pi²
Étage
941 pi²
Sous-sol aménageable
821 pi²
Largeur
34'0"
Profondeur
42'0"
Hauteur dessus fondations au faite
29'7"
Murs extérieurs
2 X 6
Murs extérieurs
2 X 6
Sous-sol aménageable
Autres fondations disponibles (des frais peuvent s'appliquer)
Dalle flottante, Vide sanitaire, Dalle monolithique
Code Entrepreneur
D

Spécifications sur les pièces

Chambre(s)
3
Salle(s) de bain complète(s)
1
Demi Salle(s) de Bain
1
Type de garage
1 voiture (337 pi²)
Superficie balcon et/ou perron abrité
111 pi²

Rez-de-chaussée

Pièces
Dimensions
Plafond
Entrée ou vestibule
6'2" x 7'6"
~ 9'0"
Garage
15'0" x 19'0"
~ 10'8"
Coin toilette/lavabo
5'4" x 5'4"
~ 9'0"
Cuisine
10'10" x 13'10"
~ 9'0"
Îlot
8'0" x 3'6"
N/D
Garde-manger
4'10" x 5'0"
~ 9'0"
Patio
10'0" x 10'0"
N/D
Salle à manger
10'10" x 11'0"
~ 9'0"
Salle de séjour
13'10" x 14'0"
~ 9'0"
Perron abrité
17'4" x 4'0"
~ 9'4"
Vestiaire
5'4" x 5'6"
~ 9'0"
Garde-robe
3'4" x 2'0"
~ 9'0"
Perron abrité
5'2" x 8'6"
~ 9'4"

Sous-sol aménageable

Étage

Pièces
Dimensions
Plafond
Chambre à coucher
9'7" x 11'6"
~ 8'0"
Walk-in
4'10" x 3'4"
~ 6'0"
Chambre à coucher
0'7" x 11'6"
~ 8'0"
Walk-in
6'0" x 3'6"
~ 8'0"
Salle de bain complète
11'0" x 12'0"
~ 8'0"
Douche
5'6" x 3'0"
N/D
Toilette en cabine
5'2" x 2'8"
~ 8'0"
Lingerie
1'0" x 1'10"
N/D
Salle de lavage
8'0" x 7'4"
~ 8'0"
Lingerie
3'6" x 2'4"
~ 8'0"
Suite des maîtres
12'6" x 12'2"
~ 8'0"
Walk-in
11'10" x 5'10"
~ 8'0"

Plan de maison champêtre à étage avec garage et 3 chambres!

.

Éléments distinctifs

Plan de maison champêtre à étage, avec garage.
Plafond à 9' sur tout le rez-de-chaussée.
Vestiaire à l'entrée.
Petit coin bureau près de la cuisine.
Pratique salle d'eau au rez-de-chaussée.
Cuisine avec îlot et garde-manger.
Cuisine ouverte sur la salle à manger et la salle de séjour.
Chambre des parents avec garde-robe de type walk-in.
Salle de bain familiale avec bain et douche séparée, et toilette en cabine. Pratique pour les matins occupés.
Belle lumière naturelle à l'arrière de la maison.
Garage une voiture.
Sous-sol non-fini à aménager en chambres additionnelles, salle familiale, rangement ou autres, selon vos besoins.
Pour modifier ce plan, y apporter les changements souhaités, veuillez contacter l'un de nos bureaux au Québec.

Particularité(s) du plan

Arche, Coin bureau, Galerie 2-3 côtés, Garde-manger, Ilôt, Salle de lavage à l'étage, Suite des maîtres à l'étage, Vestiaire, Vue paronamique, Plafond à plus de 8', Walk-in ch. maîtres, Aire ouverte, Bain et douche séparés, Lavabo double

Style(s) architectural du plan

Moderne rustique, Nordique Moderne, Traditionnelle, Champêtre

Willki
Willki

Les panneaux de pierre vissés Willki transforment vos projets en un clin d'œil. Faciles à installer, durables et écoresponsables, ils offrent le look naturel de la pierre pour une fraction du coût. *Peut nécessiter une modification au plan

Boiseries Raymond
Boiseries Raymond
Porte 151

Chef de file dans le préassemblage de portes intérieures au Québec. Cette force nous permet de vous fournir une variété de modèles préassemblées selon vos spécifications et selon le volume de production requis.

Boiseries Raymond
Boiseries Raymond
Porte 151

Chef de file dans le préassemblage de portes intérieures au Québec. Cette force nous permet de vous fournir une variété de modèles préassemblées selon vos spécifications et selon le volume de production requis.

Boiseries Raymond
Boiseries Raymond
Porte 151

Chef de file dans le préassemblage de portes intérieures au Québec. Cette force nous permet de vous fournir une variété de modèles préassemblées selon vos spécifications et selon le volume de production requis.

Boiseries Raymond
Boiseries Raymond
Porte 151

Chef de file dans le préassemblage de portes intérieures au Québec. Cette force nous permet de vous fournir une variété de modèles préassemblées selon vos spécifications et selon le volume de production requis.

Plans similaires
Logo Dessins Drummond image Dessins Drummond
Le modèle Fabien 2 est protégé par la loi sur les droits d'auteur.

Les illustrations présentées peuvent différer du plan détaillé que vous recevrez, car ces derniers sont régulièrement ajustés afin de respecter les normes de construction en vigueur.

En savoir plus

Une question ou un commentaire sur ce plan ?

Information de contact

Votre demande

Ajouter vos images ou photos

Pour ajouter une ou des photos, veuillez cliquer ou glisser vos fichiers dans la zone ci-bas. Vous pouvez ajouter jusqu'à huit photos JPG ou JPEG. Cette opération n'est pas obligatoire.

Désolé, votre navigateur ne supporte pas l'envoi de fichier.