Vue avant - MODÈLE DE BASE - Farmhouse avec sous-sol fini (optionnel $), 2 à 5 chambres et 2 salles de séjour, parfaite pour familles - Beauséjour 5

Vue avant - MODÈLE DE BASE

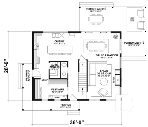
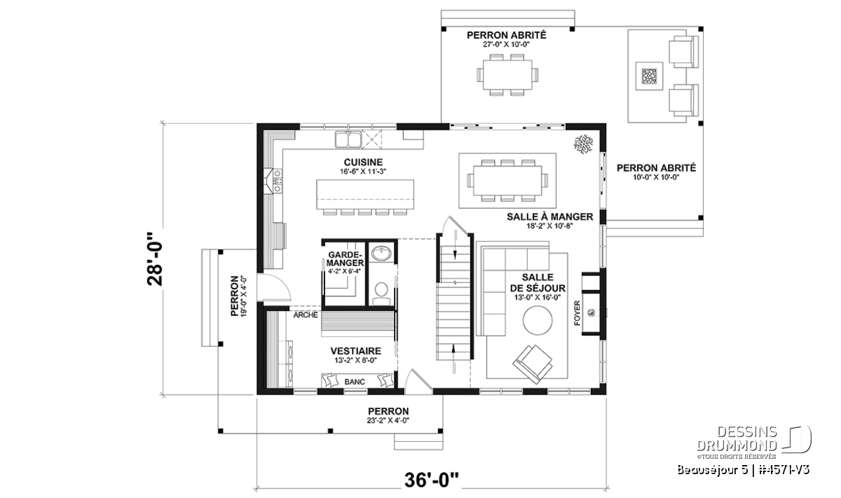
Rez-de-chaussée - Farmhouse avec sous-sol fini (optionnel $), 2 à 5 chambres et 2 salles de séjour, parfaite pour familles - Beauséjour 5

Rez-de-chaussée

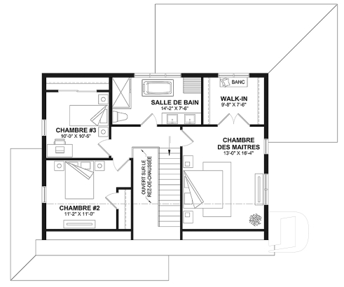
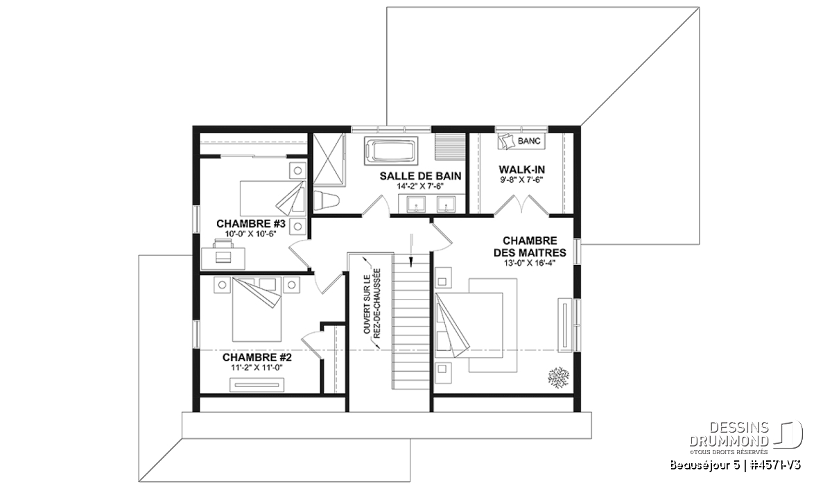
Étage - Farmhouse avec sous-sol fini (optionnel $), 2 à 5 chambres et 2 salles de séjour, parfaite pour familles - Beauséjour 5

Étage

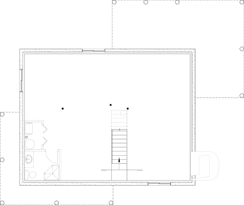
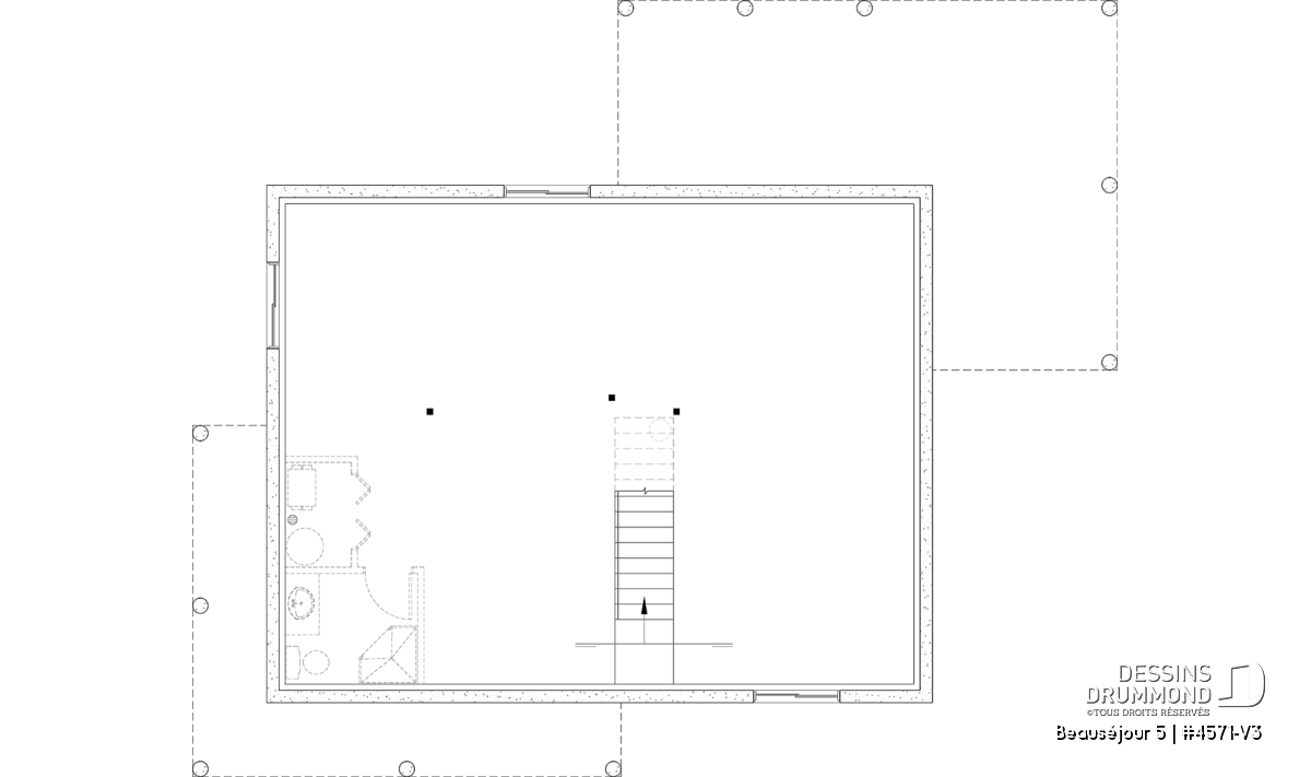
Sous-sol aménageable - Farmhouse avec sous-sol fini (optionnel $), 2 à 5 chambres et 2 salles de séjour, parfaite pour familles - Beauséjour 5

Sous-sol aménageable

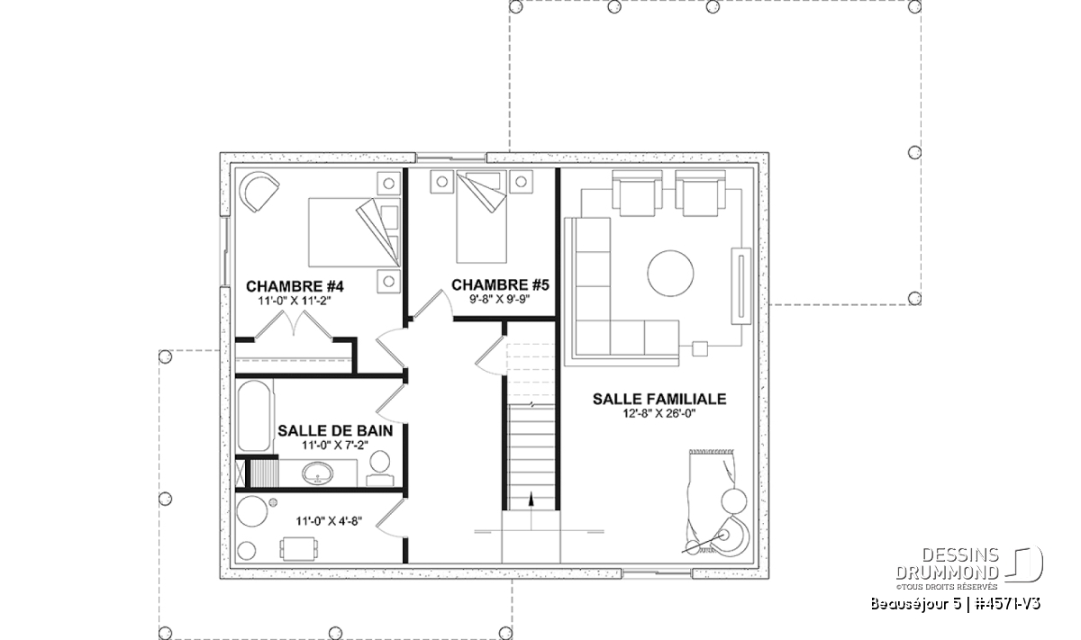
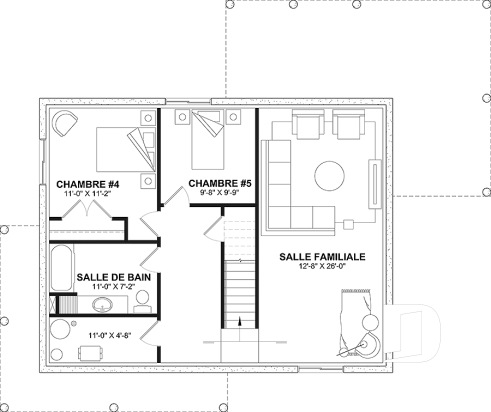
Sous-sol aménagé (Optionel $) - Farmhouse avec sous-sol fini (optionnel $), 2 à 5 chambres et 2 salles de séjour, parfaite pour familles - Beauséjour 5

Sous-sol aménagé (Optionel $)

Vue avant - MODÈLE DE BASE - Beauséjour 5

Vue avant - MODÈLE DE BASE

Vue avant - MODÈLE DE BASE - Beauséjour 5

Vue avant - MODÈLE DE BASE

Vue arrière - MODÈLE DE BASE - Beauséjour 5

Vue arrière - MODÈLE DE BASE

Vue arrière - MODÈLE DE BASE - Beauséjour 5

Vue arrière - MODÈLE DE BASE

Vue intérieure - Beauséjour 5

Vue intérieure

Vue intérieure - Beauséjour 5

Vue intérieure

Version couleur no. 1 - Vue avant - Beauséjour 5

Version couleur no. 1 - Vue avant

Version couleur no. 1 - Vue avant - Beauséjour 5

Version couleur no. 1 - Vue avant

Version couleur no. 1 - Vue avant - Beauséjour 5

Version couleur no. 1 - Vue avant

Version couleur no. 1 - Vue arrière - Beauséjour 5

Version couleur no. 1 - Vue arrière

Beauséjour 5 Plan de maison 4571-V3

Farmhouse avec sous-sol fini (optionnel $), 2 à 5 chambres et 2 salles de séjour, parfaite pour familles

À partir de

1655$

Fiche technique sommaire Plan #4571-V3
Estimation ($) 447,369$ (Sous-sol non-fini) | 480,087$ (Sous-sol fini)
Surface habitable 1818 pi² Chambre 2, 3, 4, 5
Salle de Bain 2 Salle d'eau 1
Fondation incluse Sous-sol aménageable Garage -
Largeur 36'0" Profondeur 28'0"

Besoin d’aide ?

Nos experts vous guident dans votre projet grâce à plus de 30 bureaux au Québec.

Joignez-nous

Consultez notre guide utilisateur

Un outil conçu pour vous simplifier la vie.

Ouvrir le guide

Un accompagnement sur mesure

De la modification de plans au design d’intérieur, nous vous guidons à chaque étape.

Découvrir nos services

Photos du plan Beauséjour 5

Les photos de cette maison peuvent différer du plan d'origine, duquel elles proviennent. Pour toute modification, veuillez contacter l’un de nos 30 bureaux.

Détails supplémentaires

Estimation

Spécifications générales

Surface aménagée totale
1818 pi²
Rez-de-chaussée
1008 pi²
Étage
810 pi²
Sous-sol aménageable
1008 pi²
Sous-sol aménagé (Optionel $)
1008 pi²
Largeur
36'0"
Profondeur
28'0"
Hauteur dessus fondations au faite
28'4"
Murs extérieurs
2 X 6
Murs extérieurs
2 X 6
Sous-sol aménageable
Autres fondations disponibles (des frais peuvent s'appliquer)
Sous-sol aménagé, Dalle flottante, Vide sanitaire, Dalle monolithique
Code Entrepreneur
E

Spécifications sur les pièces

Chambre(s)
2, 3, 4, 5
Salle(s) de bain complète(s)
2
Demi Salle(s) de Bain
1
Type de garage
-
Superficie balcon et/ou perron abrité
93 pi²

Sous-sol aménagé (Optionel $)

Pièces
Dimensions
Plafond
Chambre à coucher
11'0" x 11'2"
~ 8'0"
Garde-robe
7'8" x 2'0"
~ 8'0"
Chambre à coucher
9'8" x 9'9"
~ 8'0"
Salle de bain
11'0" x 7'2"
~ 8'0"
Lingerie
1'10" x 1'10"
N/D
Pièce de mécanique
11'0" x 4'8"
~ 8'0"
Salle familiale
12'8" x 26'0"
~ 8'0"

Rez-de-chaussée

Pièces
Dimensions
Plafond
Perron abrité
23'2" x 4'0"
~ 9'4"
Salle de séjour
13'0" x 16'0"
~ 9'0"
Salle à manger
18'2" x 10'8"
~ 9'0"
Cuisine
16'6" x 11'3"
~ 9'0"
Îlot
10'0" x 3'0"
N/D
Garde-manger
4'2" x 6'7"
~ 9'0"
Salle de bain
2'8" x 6'7"
~ 9'0"
Terrasse abritée
27'0" x 10'0"
~ 9'4"
Vestiaire
13'2" x 8'0"
~ 9'0"
Entrée ou vestibule
7'6" x 15'5"
~ 18'6"

Étage

Pièces
Dimensions
Plafond
Salle de bain
14'2" x 7'6"
~ 8'0"
Douche
3'0" x 5'0"
N/D
Lingerie
2'10" x 2'6"
N/D
Suite des maîtres
13'0" x 16'4"
~ 8'0"
Walk-in
9'8" x 7'6"
~ 8'0"
Chambre à coucher
10'0" x 10'6"
~ 8'0"
Garde-robe
10'0" x 2'0"
~ 8'0"
Chambre à coucher
11'2" x 11'0"
~ 8'0"
Garde-robe
2'0" x 6'4"
~ 8'0"

Sous-sol aménageable

Plan de maison familiale proposant jusqu'à 5 chambres!

Le plan de maison BEAUSÉJOUR 5 (#4571-V3) propose 2826 pieds carrés aménagés sur 3 planchers, incluant un *sous-sol aménagé optionnel ($). Il est à noter que tous les planchers du rez-de-chaussée sont à 9' de hauteur et qu'il y a des plafonds en pente à la chambre des maîtres et également à la chambre #2.

L'entrée avant de la maison s'ouvre sur 2 étages et face à un corridor dans lequel se trouve, en retrait des aires communes, une salle d'eau. Tout de suite à gauche un grand vestiaire est disponible pour le rangement des manteaux de la famille, mais également un banc et une portion salle de lavage est localisée dans ce grand espace.

La cuisine est au fond de la maison et possède un très grand îlot, pouvant recevoir aisément 4 à 5 personnes, en plus d'un garde-manger. Ce dernier est près de l'entrée latérale de la maison, pratique pour ranger rapidement les denrées, au retour de l'épicerie! La salle de séjour est ouverte sur la salle à manger, et propose un foyer.

L'Étage regroupe la chambres des maîtres et 2 chambres secondaires. La chambre des parents inclut une grande garde-robe de type walk-in. La salle de bain regroupe un bain et une douche séparés ainsi que 2 lavabos, plutôt pratique pour les matins animés!

Le *sous-sol aménagé (optionnel $) est idéal pour les grandes familles en proposant 2 chambres additionnelles, une salle de bain complète ainsi qu'une grande salle de séjour ou salle de jeux!

Cette maison est parfaite pour les familles de 2+ enfants (ou ados) avec ses 2 salles familiales et ses 5 chambres!!

*Si vous souhaitez acheter le plan du sous-sol aménagé, tel que présenté sur la page de ce plan, veuillez sélectionner cette option dans le panier d'achat, dans la section "Sélectionner votre fondation". Si vous ne sélectionnez pas cette option, vous recevrez le sous-sol non fini, sans frais additionnel.

Éléments distinctifs

Superbe maison champêtre proposant un *sous-sol aménagé (optionnel $)!
Entrée avant ouverte sur 2 étages.
Vestiaire de grand format incluant salle de lavage.
Cuisine avec très grand îlot et garde-manger.
Salle d'eau en retrait.
Salle de séjour avec foyer.
Grand perron abrité à l'arrière.
Chambre des maître à l'étage avec walk-in.
Grande salle de bain familiale à l'étage avec bain et douche séparés.

*Sous-sol aménagé (optionnel $):
2 chambres, salle de bain, une grande salle de séjour additionnelle et rangement.

*Si vous souhaitez acheter le plan du sous-sol aménagé, tel que présenté sur la page de ce plan, veuillez sélectionner cette option dans le panier d'achat, dans la section "Sélectionner votre fondation". Si vous ne sélectionnez pas cette option, vous recevrez le sous-sol non fini, sans frais additionnel.

Particularité(s) du plan

Chambres séparées, Entrée ouverte sur 2 étages, Galerie 2-3 côtés, Salle de lavage au rez-de-chaussée, Suite des maîtres à l'étage, Walk-in ch. maîtres, Vestiaire, Banquette, Garde-manger, Ilôt, Foyer, Plafond à plus de 8', Terrasse abritée, Bain et douche séparés, Lavabo double, Plafond en pente, Arche

Style(s) architectural du plan

Champêtre, Américain, Farmhouse, Canadien, Farmhouse moderne, Cape Cod, Traditionnelle, Moderne rustique, Rustique

Boiseries Raymond
Boiseries Raymond
Porte 151

Chef de file dans le préassemblage de portes intérieures au Québec. Cette force nous permet de vous fournir une variété de modèles préassemblées selon vos spécifications et selon le volume de production requis.

Boiseries Raymond
Boiseries Raymond
Porte 151

Chef de file dans le préassemblage de portes intérieures au Québec. Cette force nous permet de vous fournir une variété de modèles préassemblées selon vos spécifications et selon le volume de production requis.

Boiseries Raymond
Boiseries Raymond
Porte 151

Chef de file dans le préassemblage de portes intérieures au Québec. Cette force nous permet de vous fournir une variété de modèles préassemblées selon vos spécifications et selon le volume de production requis.

Boiseries Raymond
Boiseries Raymond
Porte 151

Chef de file dans le préassemblage de portes intérieures au Québec. Cette force nous permet de vous fournir une variété de modèles préassemblées selon vos spécifications et selon le volume de production requis.

Plans similaires
Logo Dessins Drummond image Dessins Drummond
Le modèle Beauséjour 5 est protégé par la loi sur les droits d'auteur.

Les illustrations présentées peuvent différer du plan détaillé que vous recevrez, car ces derniers sont régulièrement ajustés afin de respecter les normes de construction en vigueur.

En savoir plus

Une question ou un commentaire sur ce plan ?

Information de contact

Votre demande

Ajouter vos images ou photos

Pour ajouter une ou des photos, veuillez cliquer ou glisser vos fichiers dans la zone ci-bas. Vous pouvez ajouter jusqu'à huit photos JPG ou JPEG. Cette opération n'est pas obligatoire.

Désolé, votre navigateur ne supporte pas l'envoi de fichier.