Vue avant - MODÈLE DE BASE - Plan de plain-pied éco-responsable 3 chambres, vestiaire, aire ouverte au secteur activités, terrasse abritée - La Baie

Vue avant - MODÈLE DE BASE

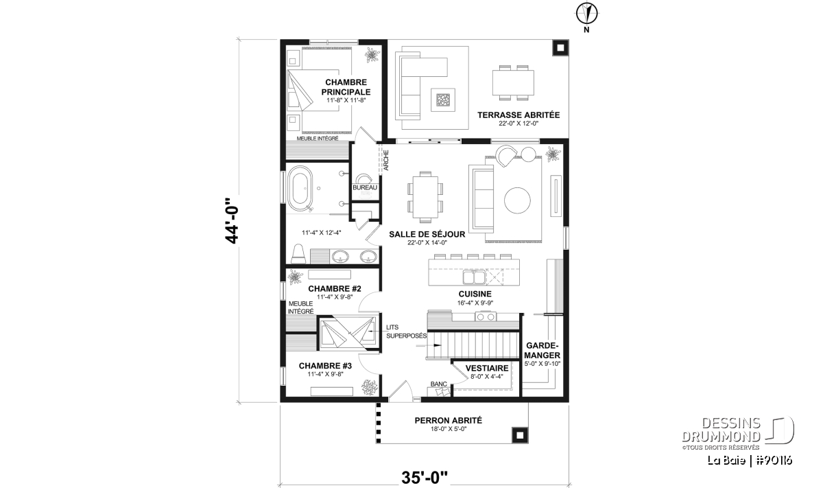
Rez-de-chaussée - Plan de plain-pied éco-responsable 3 chambres, vestiaire, aire ouverte au secteur activités, terrasse abritée - La Baie

Rez-de-chaussée

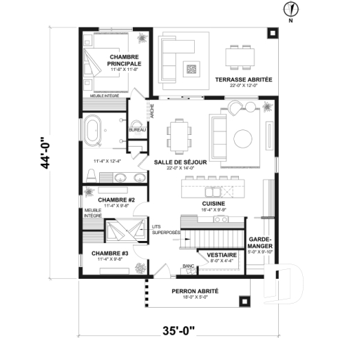
Rez-de-chaussée (Optionel $) - Plan de plain-pied éco-responsable 3 chambres, vestiaire, aire ouverte au secteur activités, terrasse abritée - La Baie

Rez-de-chaussée (Optionel $)

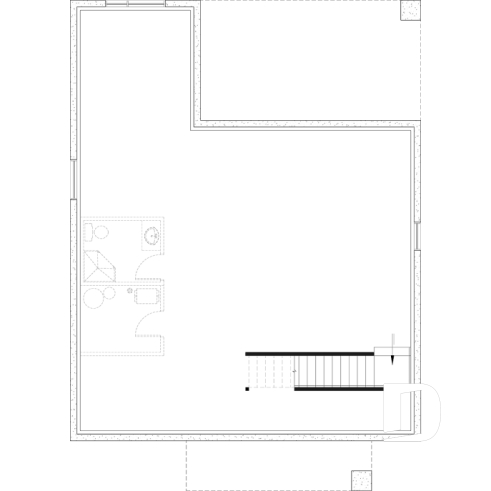
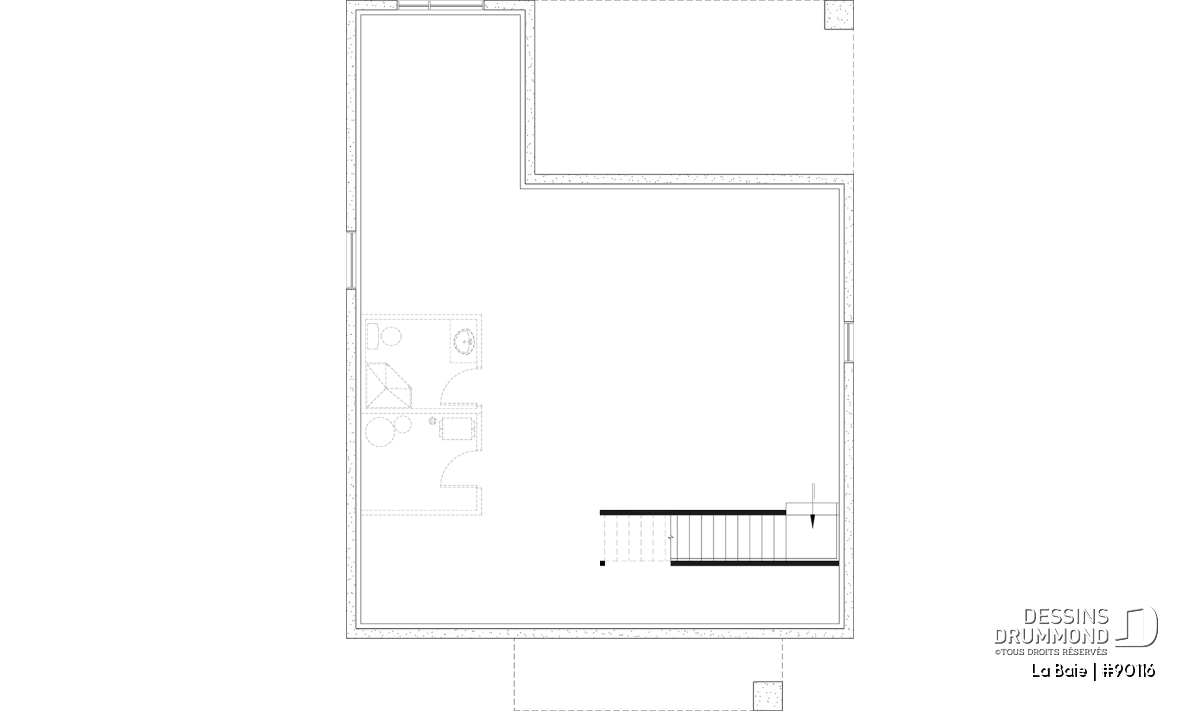
Sous-sol aménageable (Optionel $) - Plan de plain-pied éco-responsable 3 chambres, vestiaire, aire ouverte au secteur activités, terrasse abritée - La Baie

Sous-sol aménageable (Optionel $)

Vue arrière - MODÈLE DE BASE - La Baie

Vue arrière - MODÈLE DE BASE

Élévation arrière - La Baie

Élévation arrière

Version couleur no. 1 - Vue avant - La Baie

Version couleur no. 1 - Vue avant

Version couleur no. 2 - Vue avant - La Baie

Version couleur no. 2 - Vue avant

La Baie Plan de maison 90116

Plan de plain-pied éco-responsable 3 chambres, vestiaire, aire ouverte au secteur activités, terrasse abritée

À partir de

1440$

Fiche technique sommaire Plan #90116
Estimation ($) 307,899$
Surface habitable 1276 pi² Chambre 3
Salle de Bain 1 Salle d'eau -
Fondation incluse Dalle flottante Garage -
Largeur 35'0" Profondeur 44'0"

Besoin d’aide ?

Nos experts vous guident dans votre projet grâce à plus de 30 bureaux au Québec.

Joignez-nous

Consultez notre guide utilisateur

Un outil conçu pour vous simplifier la vie.

Ouvrir le guide

Besoin d’une assurance habitation ?

Pour obtenir votre prix, c’est juste ici

Obtenir une soumission

Les photos de cette maison peuvent différer du plan d'origine, duquel elles proviennent. Pour toute modification, veuillez contacter l’un de nos 30 bureaux.

Détails supplémentaires

Estimation

Spécifications générales

Surface aménagée totale
1276 pi²
Rez-de-chaussée
1276 pi²
Rez-de-chaussée (Optionel $)
1276 pi²
Sous-sol aménageable (Optionel $)
1276 pi²
Largeur
35'0"
Profondeur
44'0"
Hauteur dessus fondations au faite
20'2"
Murs extérieurs
2 X 6
Murs extérieurs
2 X 6
Autres fondations disponibles (des frais peuvent s'appliquer)
Sous-sol aménageable, Vide sanitaire, Dalle monolithique
Code Entrepreneur
C

Spécifications sur les pièces

Chambre(s)
3
Salle(s) de bain complète(s)
1
Demi Salle(s) de Bain
-
Type de garage
-
Superficie balcon et/ou perron abrité
93 pi²

Rez-de-chaussée

Pièces
Dimensions
Plafond
Terrasse abritée
22'0" x 12'0"
~ 8'8"
Chambre à coucher
11'8" x 11'8"
~ 9'0"
Secteur activités
22'0" x 14'0"
~ 9'0"
Cuisine
16'4" x 9'9"
~ 9'0"
Îlot
11'0" x 3'2"
N/D
Garde-manger
5'0" x 4'0"
N/D
Chambre à coucher
11'4" x 9'8"
~ 9'0"
Chambre à coucher
11'4" x 9'8"
~ 9'0"
Entrée ou vestibule
5'6" x 8'0"
~ 9'0"
Vestiaire
5'6" x 7'7"
~ 9'0"
Pièce de mécanique
5'0" x 5'5"
~ 9'0"
Perron abrité
18'6" x 5'0"
~ 8'8"
Salle de bain
11'4" x 12'4"
~ 9'0"
Lingerie
2'4" x 1'10"
N/D
Toilette en cabine
3'0" x 6'0"
~ 9'0"
Salle de douche
7'4" x 6'0"
~ 9'0"
Garde-robe
3'4" x 2'0"
~ 9'0"
Salle de lavage
5'0" x 7'7"
~ 9'0"

Sous-sol aménageable (Optionel $)

Rez-de-chaussée (Optionel $)

Désirez-vous vous sentir en vacances au quotidien? L’abondance de lumière naturelle, l’organisation des espaces optimale et la légèreté de cette maison éco-responsable vous procureront assurément ce sentiment!

Créé pour être sur un terrain dont le sud est situé à l’arrière, la maison La Baie (plan #90116) vous offre tout ce dont une famille a besoin dans un espace maximisé. Avec ses plafonds de 9’-0’’ de haut, vous ne vous sentirez jamais à l’étroit dans cette maison. À l’entrée, vous retrouverez sur votre droite le vestiaire qui comprend un espace pour la laveuse et la sécheuse. Au fond de cette pièce se trouve l’accès pour la salle mécanique. En vous dirigeant vers l’arrière de la maison, vous entrerez dans l’aire ouverte qui baignera dans la lumière naturelle. Un grand îlot vous permettra de recevoir votre famille et vos amis tout en étant un centre de l’action. À partir de la salle à manger, vous pouvez accéder à la grande terrasse couverte située à l’arrière de la maison.

Sur tout le côté gauche de la maison, donc à l’est, vous retrouverez les chambres ainsi que la salle de bain. Les deux chambres d’enfants ont une particularité assez intéressante puisqu’elles sont conçues pour avoir un lit superposé dont chacun des lits appartient à une chambre différente. Vous bénéficiez donc de tous les avantages du lit superposé tout en conservant l’intimité de chaque chambre. Ensuite, il y a la salle de bain qui est assez grande pour permettre à plusieurs personnes de l’utiliser en même temps. Et finalement, la chambre principale est située à l’arrière de la maison avec une grande fenêtre donnant sur la cour arrière.

Cette maison offre aussi la possibilité d’ajouter un garage éventuellement sur la droite de la maison. Il serait possible d’ajouter une porte à partir de la salle mécanique pour y accéder. Aussi, vous pourriez décider d’ajouter une serre adjacente au salon du côté droit de la maison. En remplaçant la fenêtre par une porte, vous pourriez accéder à la serre et profiter de légumes frais toute l’année.
---
*L'estimation du coût de construction n'inclut pas la toiture d'acier. Elle inclut l’utilisation de bardeaux d'asphalte.

Maison écologiquePLAN DE MAISON ÉCO-RESPONSABLE

Ce modèle fait partie de notre collection de "Plans éco-responsables" et voici ce qui distingue tous les plans inclus dans cette compilation:

Soleil: L'orientation de la maison planifiée en fonction de la course quotidienne du soleil, jumelée à la captation thermique des rayons du soleil par l'utilisation d'une fenestration optimale, afin de minimiser les frais de chauffage et maximiser la présence de la lumière naturelle.

Simplicité: Une maison aux volumes modestes assurant une construction simplifiée, tout en favorisant la maximisation des espaces intérieurs, afin de réduire le nombre de pied carrés et le coût de construction.

Saine: Une habitation pensée pour favoriser le bien-être et la santé de ses occupants en étant bien ventilée, en utilisant des matériaux durables (acier, bois, revêtement léger, fibrociment, entre autres) et non toxiques et en maximisant la luminosité naturelle.

Éléments distinctifs

**Maison éco-responsable de style scandinave avec plafond à 9' de hauteur sur tout le rez-de-chaussée.
La proposition d'orientation favorise l'entrée de lumière naturelle tout au long de la journée.
L'aménagement du vestiaire inclus une laveuse et sécheuse, ainsi qu'une cuve.
Les deux chambres secondaires, bien que compactes, proposent un aménagement original de lits simples superposés, où chacun des enfants a sa propre chambre.
Belle grande fenêtre à la chambre des parents.
L'organisation de la salle de bain est pratique pour une famille en proposant deux lavabos et un bain dans la douche.
La cuisine contient un garde manger de 5' par 4' de profondeur, ainsi qu'un îlot central de grand format.
La terrasse abritée est de bon format.
La fondation incluse au plan est une dalle flottante. D'autres types de *fondation sont disponibles pour ce plan.
Ce plan est pensé afin de recevoir éventuellement un garage et une serre, selon ce qui pourrait convenir aux besoins futurs de votre famille.
L'estimation du coût de construction n'inclut pas la toiture d'acier. Elle inclut l’utilisation de bardeaux d'asphalte.
--
*Sous sol aménageable (optionnel $):
Si vous souhaitez acheter l’option du plan de sous-sol aménageable (le plan de la maison vous sera livré avec un plan de sous-sol non fini), veuillez sélectionner cette option dans le panier d'achat, dans la section "Sélectionner votre fondation". Si vous ne sélectionnez pas cette option, vous recevrez une dalle flottante comme fondation.
--
**Ce modèle fait partie de notre collection de "Plans éco-responsables" et voici ce qui distingue tous les plans inclus dans cette compilation:
SOLEIL :
L’orientation de la maison planifiée en fonction de la course quotidienne du soleil, jumelée à la captation thermique des rayons du soleil par l’utilisation d’une fenestration optimale, afin de minimiser les frais de chauffage et maximiser la présence de la lumière naturelle.
SIMPLICITÉ :
Une maison aux volumes modestes assurant une construction simplifiée, tout en favorisant la maximisation des espaces intérieurs, afin de réduire le nombre de pied carrés et le coût de construction.
SAINE :
Une habitation pensée pour favoriser le bien-être et la santé de ses occupants en étant bien ventilée, en utilisant des matériaux durables (acier, bois, revêtement léger, fibrociment, entre autres) et non toxiques et en maximisant la luminosité naturelle.

Particularité(s) du plan

Meuble(s) encastré(s), Vestiaire, Aire ouverte, Terrasse abritée, Ilôt, Arche, Salle de lavage au rez-de-chaussée, Coin bureau, Bain dans la douche, Lavabo double, Garde-manger, Plafond à plus de 8', Auto-Construction, Entrepreneur

Style(s) architectural du plan

Scandinave, Contemporain / Zen, Chalet, Ranch, Moderne

Oceania
Oceania
Bain Mystic Strié

Depuis notre fondation en 1995, Bains Oceania est engagé à offrir à ses clients une expérience unique et raffinée dans leur environnement spa résidentiel. Grâce à notre savoir-faire et à notre passion pour l’innovation, nous fabriquons ici, des produits de grande qualité, pour vous.

Plans similaires
Logo Dessins Drummond image Dessins Drummond
Le modèle La Baie est protégé par la loi sur les droits d'auteur.

Les illustrations présentées peuvent différer du plan détaillé que vous recevrez, car ces derniers sont régulièrement ajustés afin de respecter les normes de construction en vigueur.

En savoir plus

Une question ou un commentaire sur ce plan ?

Information de contact

Votre demande

Ajouter vos images ou photos

Pour ajouter une ou des photos, veuillez cliquer ou glisser vos fichiers dans la zone ci-bas. Vous pouvez ajouter jusqu'à huit photos JPG ou JPEG. Cette opération n'est pas obligatoire.

Désolé, votre navigateur ne supporte pas l'envoi de fichier.