Alternative - Plan de plain-pied 2 chambres contemporain, cuisine et salon à l'arrière de la maison, belle fenestration - Aïka

Alternative

Rez-de-chaussée - Plan de plain-pied 2 chambres contemporain, cuisine et salon à l'arrière de la maison, belle fenestration - Aïka

Rez-de-chaussée

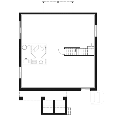
Sous-sol - Plan de plain-pied 2 chambres contemporain, cuisine et salon à l'arrière de la maison, belle fenestration - Aïka

Sous-sol

Élévation arrière - Aïka

Élévation arrière

Alternative - Aïka

Alternative

Aïka Plan de maison 6106

Plan de plain-pied 2 chambres contemporain, cuisine et salon à l'arrière de la maison, belle fenestration

À partir de

1380$

Fiche technique sommaire Plan #6106
Estimation ($) 307,108$
Surface habitable 1167 pi² Chambre 2
Salle de Bain 1 Salle d'eau -
Fondation incluse Sous-sol aménageable Garage -
Largeur 34'0" Profondeur 34'4"

Besoin d’aide ?

Nos experts vous guident dans votre projet grâce à plus de 30 bureaux au Québec.

Joignez-nous

Consultez notre guide utilisateur

Un outil conçu pour vous simplifier la vie.

Ouvrir le guide

Besoin d’une assurance habitation ?

Pour obtenir votre prix, c’est juste ici

Obtenir une soumission

Les photos de cette maison peuvent différer du plan d'origine, duquel elles proviennent. Pour toute modification, veuillez contacter l’un de nos 30 bureaux.

Détails supplémentaires

Estimation

Spécifications générales

Surface aménagée totale
1167 pi²
Rez-de-chaussée
1167 pi²
Sous-sol
1167 pi²
Largeur
34'0"
Profondeur
34'4"
Hauteur dessus fondations au faite
17'7"
Murs extérieurs
2 X 6
Murs extérieurs
2 X 6
Sous-sol aménageable
Autres fondations disponibles (des frais peuvent s'appliquer)
Dalle flottante, Vide sanitaire, Dalle monolithique
Code Entrepreneur
B

Spécifications sur les pièces

Chambre(s)
2
Salle(s) de bain complète(s)
1
Demi Salle(s) de Bain
-
Type de garage
-
Superficie balcon et/ou perron abrité
84 pi²

Sous-sol

Rez-de-chaussée

Pièces
Dimensions
Plafond
Chambre à coucher
13'6" x 12'0"
~ 9'0"
Garde-robe
11'4" x 2'0"
~ 9'0"
Chambre à coucher
10'0" x 10'0"
~ 9'0"
Garde-robe
3'6" x 2'0"
~ 9'0"
Cuisine
11'0" x 13'0"
~ 9'0"
Entrée ou vestibule
6'2" x 6'2"
~ 9'0"
Garde-robe
6'2" x 2'0"
~ 9'0"
Galerie
20'10" x 4'2"
N/D
Lingerie
1'10" x 2'0"
~ 9'0"
Patio
13'2" x 5'0"
N/D
Salle à manger
9'0" x 13'0"
~ 9'0"
Salle de bain/buanderie
13'6" x 8'8"
~ 9'0"
Douche
4'0" x 3'0"
~ 9'0"
Salle de séjour
12'8" x 14'8"
~ 9'0"

Superbe plain-pied moderne aux accents rustique, offrant 2 chambres et secteur cuisine salon tout en lumière

.

Éléments distinctifs

Plain-pied moderne rustique 2 chambres, abordable
Plafond à 9' sur tous le rez-de-chaussée.
Chambre des parents de bon format.
Grande salle de bain avec bain et douche séparés, deux lavabos et coin laveuse/sécheuse.
Cuisine, salle à manger et salon à aire ouverte et avec belle fenestration.
Sous-sol non fini inclut au plan.

Particularité(s) du plan

Aire ouverte, Salle de lavage au rez-de-chaussée, Bureau / Salle étude, Vue paronamique, Ilôt, Plafond à plus de 8', Terrain étroit, Vestiaire, Bain et douche séparés, Lavabo double

Style(s) architectural du plan

Contemporain / Zen, Nordique, Ranch, Mid-century, Transitionnel, Moderne, Moderne rustique

Willki
Willki

Les panneaux de pierre vissés Willki transforment vos projets en un clin d'œil. Faciles à installer, durables et écoresponsables, ils offrent le look naturel de la pierre pour une fraction du coût. *Peut nécessiter une modification au plan

Plans similaires
Logo Dessins Drummond image Dessins Drummond
Le modèle Aïka est protégé par la loi sur les droits d'auteur.

Les illustrations présentées peuvent différer du plan détaillé que vous recevrez, car ces derniers sont régulièrement ajustés afin de respecter les normes de construction en vigueur.

En savoir plus

Une question ou un commentaire sur ce plan ?

Information de contact

Votre demande

Ajouter vos images ou photos

Pour ajouter une ou des photos, veuillez cliquer ou glisser vos fichiers dans la zone ci-bas. Vous pouvez ajouter jusqu'à huit photos JPG ou JPEG. Cette opération n'est pas obligatoire.

Désolé, votre navigateur ne supporte pas l'envoi de fichier.