Connexion
À partir de 1440$
Vue avant - MODÈLE DE BASE
Rez-de-chaussée
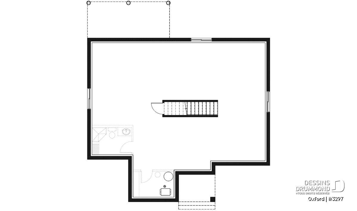
Sous-sol
Élévation arrière
Vue intérieure
Version couleur no. 1 - Vue avant
Version couleur no. 2 - Vue avant
Version couleur no. 3 - Vue avant
Version couleur no. 4 - Vue avant
Version couleur no. 5 - Vue avant
Plan de bungalow 1 chambre avec toit en pente de style contemporain rustique, aire ouverte, vestiaire
| Fiche technique sommaire | Plan #3297 | ||
|---|---|---|---|
| Estimation ($) | 321,995$ | ||
| Surface habitable | 1212 pi² | Chambre | 1 |
| Salle de Bain | 1 | Salle d'eau | 1 |
| Fondation incluse | Sous-sol aménageable | Garage | - |
| Largeur | 40'0" | Profondeur | 36'0" |
Nos experts vous guident dans votre projet grâce à plus de 30 bureaux au Québec.
Joignez-nousDe la modification de plans au design d’intérieur, nous vous guidons à chaque étape.
Découvrir nos servicesLes photos de cette maison peuvent différer du plan d'origine, duquel elles proviennent. Pour toute modification, veuillez contacter l’un de nos 30 bureaux.
Superbe plan de plain-pied de style Mid-Century très tendance et proposant des matériaux nobles et chaleureux à la fois.
Plancher principal aménagé avec une seule grande chambre au rez-de-chaussée. Cette dernière est avec salle de bain privative et 2 gardes-robes de type walk-in.
La cuisine est confortable et comporte un îlot central, un garde-manger et est ouverte sur le secteur salle à manger. Cette dernière est aussi à aire ouverte sur le salon.
Une buanderie et une salle d'eau sont également localisés près de la cuisine.
Le sous-sol est non-fini et à aménager. Nous contacter pour toute modification à ce plan comme par exemple pour l'addition d'un garage, la finition du sous-sol (chambres supplémentaires) ou autres.
Modèle de style moderne mid-century.
Plan de plancher avec une grande chambre.
Beaucoup de commodités.
Mobilier de rangement intégré dans l'entrée.
Cuisine avec îlot et garde-manger.
Salle à manger et salon à aire ouverte.
Suite chambre des maîtres avec 2 walk-ins et salle de couche privée.
Salle d'eau pour les invités (salle de toilette).
Petite buanderie près de la chambre principale.
Sous-sol à aménager éventuellement selon vos besoins avec chambre(s) invités ou autres.
Consultez-nous pour obtenir des changements à ce plan.
Aire ouverte, Salle de lavage au rez-de-chaussée, Comptoir-lunch, Garde-manger, Ilôt, Meuble(s) encastré(s), Suite des maîtres au rdc, Suite des maîtres à l'étage, Vestiaire, Walk-in double ch. maîtres, Bain et douche séparés
Mid-century, Contemporain / Zen, Nordique, Transitionnel, Moderne, Moderne rustique
Spécialiste des systèmes de revêtement
Spécialiste des systèmes de revêtement
Les illustrations présentées peuvent différer du plan détaillé que vous recevrez, car ces derniers sont régulièrement ajustés afin de respecter les normes de construction en vigueur.
En savoir plusNos estimations de coûts sont des moyennes provinciales, et sont là pour vous donner un "approximatif" de la valeur de nos modèles, construits avec un entrepreneur. Ce faisant, ils peuvent varier de +/- 30% selon votre région, votre entrepreneur et vos choix de matériaux.
Si vous choisissez l'auto-construction, vous pourrez économiser de 10% à 30% de notre estimation selon votre implication et compétence.
Comme nous ne construisons pas, nous nous dégageons de toutes responsabilités à l'égard des estimations indiquées. De plus, prendre note que nos estimations sont modifiées sans préavis, régulièrement. Il est donc de votre responsabilité de valider auprès d'entrepreneurs de votre région en les questionnant sur ses délais de livraison et coûts de construction réels versus nos estimations ce, avant l'achat d'un plan, car ce dernier n'est ni échangeable ni remboursable.
Avec un entrepreneur
Cette mention sur notre site signifie que nos estimations sont basées sur des constructions clé-en-main, donc gérés de A à Z par des entrepreneurs compétents et qualifiés. Elles incluent et excluent les éléments prévus au tableau ci-haut. Ne pouvant prédire les choix que vous ferez avec votre entrepreneur, nous considérons qu'il utilisera des matériaux de qualité courante (pas le plus cher, pas le moins cher).
Auto-Construction
Signifie que vous gérez vous-même votre projet tout en réalisant certains travaux comme la pose de l'isolant, du gypse, du pare-vapeur et l'application de la peinture, pour n'en nommer que quelques-uns. Selon votre degré d'implication, vous pourriez sauver jusqu'à 30% du coût total de construction, mais rarement plus, à moins que vous soyez un professionnel de la construction!
Extérieur
Ci-bas vous retrouverez les détails de ce qui est inclus et exclus dans nos estimations, en lien avec les images extérieures telles que présentées sur notre site.
Intérieur
Ci-bas vous retrouverez les détails de ce qui est inclus et exclus dans les estimations, en lien avec les images intérieures telles que présentées sur notre site.
Besoin d'aide?
Consultez l'un de nos 30 bureaux si vous souhaitez plus d'information sur nos estimations ou afin d'obtenir un prix plus précis selon vos besoins et votre région. Pour de plus ample information vous pouvez nous appeler ou écrire par courriel: 1-800-567-1413 ou [email protected]
Nos estimations de coûts sont des moyennes provinciales, et sont là pour vous donner un "approximatif" de la valeur de nos garages, construits avec un entrepreneur. Ce faisant, ils peuvent varier de +/- 30% selon votre région, votre entrepreneur et vos choix de matériaux.
Si vous choisissez l'auto-construction, vous pourrez économiser de 10% à 30% de notre estimation selon votre implication et compétence.
Comme nous ne construisons pas, nous nous dégageons de toutes responsabilités à l'égard des estimations indiquées. De plus, prendre note que nos estimations sont modifiées sans préavis, régulièrement. Il est donc de votre responsabilité de valider auprès d'entrepreneurs de votre région en les questionnant sur ses délais de livraison et coûts de construction réels versus nos estimations ce, avant l'achat d'un plan, car ce dernier n'est ni échangeable ni remboursable.
Avec un entrepreneur
Cette mention sur notre site signifie que nos estimations sont basées sur des constructions clé-en-main, donc gérés de A à Z par des entrepreneurs compétents et qualifiés. Elles incluent et excluent les éléments prévus au tableau ci-haut. Ne pouvant prédire les choix que vous ferez avec votre entrepreneur, nous considérons qu'il utilisera des matériaux de qualité courante (pas le plus cher, pas le moins cher).
Auto-Construction
Signifie que vous gérez vous-même votre projet tout en réalisant certains travaux comme la pose de l'isolant, du gypse, du pare-vapeur et l'application de la peinture, pour n'en nommer que quelques-uns. Selon votre degré d'implication, vous pourriez sauver jusqu'à 30% du coût total de construction, mais rarement plus, à moins que vous soyez un professionnel de la construction!
Extérieur
Ci-bas vous retrouverez les détails de ce qui est inclus et exclus dans nos estimations, en lien avec les images extérieures telles que présentées sur notre site.
Intérieur
Ci-bas vous retrouverez les détails de ce qui est inclus et exclus dans les estimations de nos plans de garage, tels que présentés sur notre site.
Besoin d'aide?
Consultez l'un de nos 30 bureaux si vous souhaitez plus d'information sur nos estimations ou afin d'obtenir un prix plus précis selon vos besoins et votre région.
Les coûts approximatifs des matériaux indiqués sur notre site internet sont des moyennes provinciales qui peuvent varier jusqu’à 30% et plus selon la région, la saison de construction et vos choix de matériaux. Ils sont basés sur l'utilisation de matériaux de qualité courante, que la plupart des entrepreneurs utilisent. De plus ils peuvent changer à tout moment, sans préavis, compte tenu de l’important fluctuation des prix des matériaux, depuis 2020.
Nos estimations excluent les taxes, les raccords municipaux, les frais reliés à l'électricité, le chauffage, la main d'œuvre, le terrain, l'excavation et la fondation (précisée dans la fiche détaillée du plan choisi à la ligne « Type de fondation »).
La fondation précisée à cette ligne est incluse dans le plan que vous recevrez, dans le prix du plan ainsi que dans l'estimation du coût de construction SAUF dans le cas d'un sous-sol aménagé. La finition d'un sous-sol aménagé n'est JAMAIS incluse dans notre estimation sauf si avis contraire précisé dans la description du plan et/ou dans la section élément distinctif, sur la page du plan. Un sous-sol aménageable est un sous-sol non-fini, à finir plus tard, selon vos besoins.
Veuillez noter que plusieurs types de fondation additionnels sont disponibles, certains moyennant un frais. Vous pourrez sélectionner le type de fondation désiré, dans le bon de commande en ligne.
Si le type de fondation que vous souhaitez ne se trouve pas dans la liste des autres fondations disponibles, veuillez contacter notre service à la clientèle afin d'obtenir un estimé de notre département de modification de plan, ou simplement compléter le formulaire de demande de modification suivant : https://dessinsdrummond.com/formulaire-modification-de-plan-en-ligne et vous recevrez votre estimation gratuite dans les 2 à 4 jours ouvrables, approx..
Le type de fondation précisé à cette ligne n'est pas inclus dans l'estimé des matériaux approximatif.
Veuillez noter que plusieurs types de fondation additionnels sont aussi disponibles. Vous pourrez sélectionner le type de fondation désiré, dans le bon de commande en ligne, ou nous joindre pour information.
Espace boni aménageable
L'espace boni aménageable est généralement prévu au-dessus du garage et il est accessible de la maison. Comme il est prévu aménageable, il pourra devenir un bureau, un espace buanderie, une salle de bain, un coin bibliothèque ou même une chambre additionnelle pour laquelle les propriétaires devront s'assurer d'avoir une fenêtre conforme aux normes en vigueur. De plus, la finition de cette espace boni est toujours INCLUSE dans nos estimation du coût de construction, sauf si avis contraire dans les sections « Description et/ou Éléments descriptifs » de la page du plan.
Rangement boni
Souvent localisé au-dessus du garage, le rangement boni est utilisé uniquement comme rangement et il est généralement accessible du garage via un escalier escamotable. De plus, la finition de ce rangement boni est toujours INCLUSE dans nos estimation du coût de construction, sauf si avis contraire dans les sections « Description et/ou Éléments descriptifs » de la page du plan.
Plan de bungalow 1 chambre avec toit en pente de style contemporain rustique, aire ouverte, vestiaire