Vue avant - MODÈLE DE BASE - Plan de jumelé contemporain, 3 à 4 chambres & 1.5 salles de bain par unité, grande cuisine - Charny

Vue avant - MODÈLE DE BASE

Rez-de-chaussée - Plan de jumelé contemporain, 3 à 4 chambres & 1.5 salles de bain par unité, grande cuisine - Charny

Rez-de-chaussée

Étage - Plan de jumelé contemporain, 3 à 4 chambres & 1.5 salles de bain par unité, grande cuisine - Charny

Étage

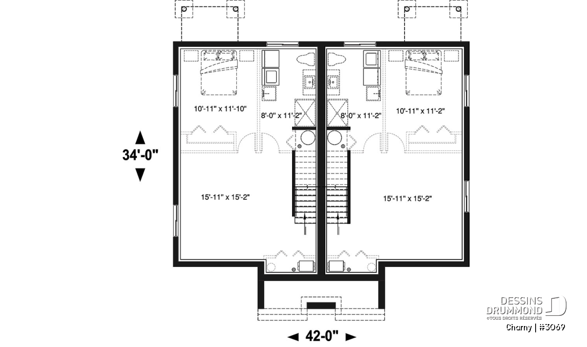
Sous-sol - Plan de jumelé contemporain, 3 à 4 chambres & 1.5 salles de bain par unité, grande cuisine - Charny

Sous-sol

Élévation arrière - Charny

Élévation arrière

Vue intérieure - Charny

Vue intérieure

Vue intérieure - Charny

Vue intérieure

Version couleur no. 1 - Vue avant - Charny

Version couleur no. 1 - Vue avant

Charny Plan de maison 3069

Plan de jumelé contemporain, 3 à 4 chambres & 1.5 salles de bain par unité, grande cuisine

À partir de

2175$

Fiche technique sommaire Plan #3069
Estimation ($) 703,069$
Surface habitable 2760 pi² Chambre 3, 4
Salle de Bain 1 Salle d'eau 1
Fondation incluse Sous-sol aménageable Garage -
Largeur 42'0" Profondeur 34'0"

Besoin d’aide ?

Nos experts vous guident dans votre projet grâce à plus de 30 bureaux au Québec.

Joignez-nous

Consultez notre guide utilisateur

Un outil conçu pour vous simplifier la vie.

Ouvrir le guide

Besoin d’une assurance habitation ?

Pour obtenir votre prix, c’est juste ici

Obtenir une soumission

Photos du plan Charny

Les photos de cette maison peuvent différer du plan d'origine, duquel elles proviennent. Pour toute modification, veuillez contacter l’un de nos 30 bureaux.

Détails supplémentaires

Estimation

Spécifications générales

Surface aménagée totale
2760 pi²
Rez-de-chaussée
1380 pi²
Étage
1380 pi²
Sous-sol
1380 pi²
Largeur
42'0"
Profondeur
34'0"
Hauteur dessus fondations au faite
27'6"
Murs extérieurs
2 X 6
Murs extérieurs
2 X 6
Sous-sol aménageable
Autres fondations disponibles (des frais peuvent s'appliquer)
Dalle flottante, Vide sanitaire, Dalle monolithique
Code Entrepreneur
MC

Spécifications sur les pièces

Chambre(s)
3, 4
Salle(s) de bain complète(s)
1
Demi Salle(s) de Bain
1
Type de garage
-
Superficie balcon et/ou perron abrité
-

Spécifications des unités

GAUCHE
DROIT
Surface aménagée totale
1380 pi²
1380 pi²
Rez-de-chaussée
690 pi²
690 pi²
Étage
690 pi²
690 pi²
Largeur
21' 0"
21' 0"
Profondeur
34' 0"
34' 0"
Hauteur dessus fondations au faite
27' 6"
27' 6"
Murs extérieurs
2 X 6
2 X 6
Type de fondation
Sous-sol aménageable
Sous-sol aménageable
Chambre(s)
3, 4, 5
3, 4, 5
Salle(s) de bain
1
1
Demi Salle(s) de Bain
1
1
Type de garage
-
-
Espace boni aménageable
-
-
Rangement boni
-
-

Sous-sol

Pièces
Dimensions
Plafond
Salle de bain/buanderie
8'0" x 11'2"
~ 8'0"
Salle de bain/buanderie
8'0" x 11'2"
~ 8'0"

Rez-de-chaussée

Pièces
Dimensions
Plafond
Salle à manger
10'3" x 15'2"
~ 8'0"
Salle à manger
10'3" x 15'2"
~ 8'0"
Cuisine
10'8" x 11'6"
~ 8'0"
Cuisine
10'8" x 11'6"
~ 8'0"
Salle de séjour
11'7" x 15'6"
~ 8'0"
Salle de séjour
11'7" x 15'6"
~ 8'0"
Entrée ou vestibule
7'9" x 8'2"
~ 8'0"
Garde-robe
4'4" x 2'0"
~ 8'0"
Entrée ou vestibule
7'9" x 8'2"
~ 8'0"
Garde-robe
4'4" x 2'0"
~ 8'0"
Salle de bain
4'2" x 8'2"
~ 8'0"
Salle de bain
4'2" x 8'2"
~ 8'0"

Étage

Pièces
Dimensions
Plafond
Chambre à coucher
11'0" x 12'0"
~ 8'0"
Walk-in
7'0" x 5'8"
~ 8'0"
Chambre à coucher
11'0" x 12'0"
~ 8'0"
Walk-in
7'0" x 5'8"
~ 8'0"
Chambre à coucher
10'4" x 10'0"
~ 8'0"
Garde-robe
6'0" x 2'0"
~ 8'0"
Chambre à coucher
10'4" x 10'0"
~ 8'0"
Garde-robe
6'0" x 2'0"
~ 8'0"
Chambre à coucher
9'1" x 9'2"
~ 8'0"
Garde-robe
4'9" x 2'0"
~ 8'0"
Chambre à coucher
9'1" x 9'2"
~ 8'0"
Garde-robe
4'11" x 2'0"
~ 8'0"
Salle de bain complète
8'3" x 13'8"
~ 8'0"
Salle de bain complète
8'3" x 13'8"
~ 8'0"

Plan d’un jumelé contemporain à étage avec possibilité de 4 chambres par unité

Avec son architecture contemporaine, ses fenêtres modernes aux formes originales et son plancher spacieux et ouvert, le nouveau plan de maisons jumelées no.3069 de Dessins Drummond, aussi nommé « Charny », saura plaire aux jeunes familles!

Les balcons abrités à l’avant, ainsi qu’un garde-robe d’entrée invite d’emblée au confort. Le salon et la salle manger sont en concept ouvert et reçoivent beaucoup de lumière naturelle grâce au format et au nombre de fenêtres dans ce secteur. La cuisine comporte un îlot central et pratique garde-manger, et elle est attenante à une salle d’eau. L’accès au sous-sol est localisé près de la cuisine, et la buanderie est au sous-sol.

Les trois chambres sont situées à l’étage, ce qui est pratique pour les familles avec de jeunes enfants. La chambre des maîtres propose une garde-robe de type walk-in. Deux chambres secondaires sont de format similaire et ont chacune une garde-robe. La salle de bain familiale possède un bain et une douche séparée. Le sous-sol est à aménager (non fini).

Éléments distinctifs

Plan de jumelé moderne très tendance.
Garde-robe à l'entrée.
Salle d'eau au rez-de-chaussée.
Grande cuisine avec îlot central et petit garde-manger.
Salle à dîner ouverte sur le salon.
Chambre des maîtres avec grande garde-robe de type walk-in.
Salle de bain à l'étage avec bain et douche séparée.
Sous-sol à aménager.
*Le coût de finition du sous-sol n'est PAS INCLUS dans notre estimation.

Particularité(s) du plan

Walk-in ch. maîtres, Aire ouverte, Ilôt, Entrepreneur

Style(s) architectural du plan

Contemporain / Zen, Moderne, Moderne rustique

beneva
beneva

Offrir la meilleure expérience d’assurance au Canada grâce à notre simplicité inégalée.

Boiseries Raymond
Boiseries Raymond
Porte 151

Chef de file dans le préassemblage de portes intérieures au Québec. Cette force nous permet de vous fournir une variété de modèles préassemblées selon vos spécifications et selon le volume de production requis.

Boiseries Raymond
Boiseries Raymond
Porte 151

Chef de file dans le préassemblage de portes intérieures au Québec. Cette force nous permet de vous fournir une variété de modèles préassemblées selon vos spécifications et selon le volume de production requis.

Boiseries Raymond
Boiseries Raymond
Porte 151

Chef de file dans le préassemblage de portes intérieures au Québec. Cette force nous permet de vous fournir une variété de modèles préassemblées selon vos spécifications et selon le volume de production requis.

Plans similaires
Logo Dessins Drummond image Dessins Drummond
Le modèle Charny est protégé par la loi sur les droits d'auteur.

Les illustrations présentées peuvent différer du plan détaillé que vous recevrez, car ces derniers sont régulièrement ajustés afin de respecter les normes de construction en vigueur.

En savoir plus

Une question ou un commentaire sur ce plan ?

Information de contact

Votre demande

Ajouter vos images ou photos

Pour ajouter une ou des photos, veuillez cliquer ou glisser vos fichiers dans la zone ci-bas. Vous pouvez ajouter jusqu'à huit photos JPG ou JPEG. Cette opération n'est pas obligatoire.

Désolé, votre navigateur ne supporte pas l'envoi de fichier.