Vue avant - MODÈLE DE BASE - Plan de maison moderne cubique à étage avec 3 chambres, buanderie, garde manger, grand îlot à la cuisine - Lavoisier

Vue avant - MODÈLE DE BASE

Rez-de-chaussée - Plan de maison moderne cubique à étage avec 3 chambres, buanderie, garde manger, grand îlot à la cuisine - Lavoisier

Rez-de-chaussée

Étage - Plan de maison moderne cubique à étage avec 3 chambres, buanderie, garde manger, grand îlot à la cuisine - Lavoisier

Étage

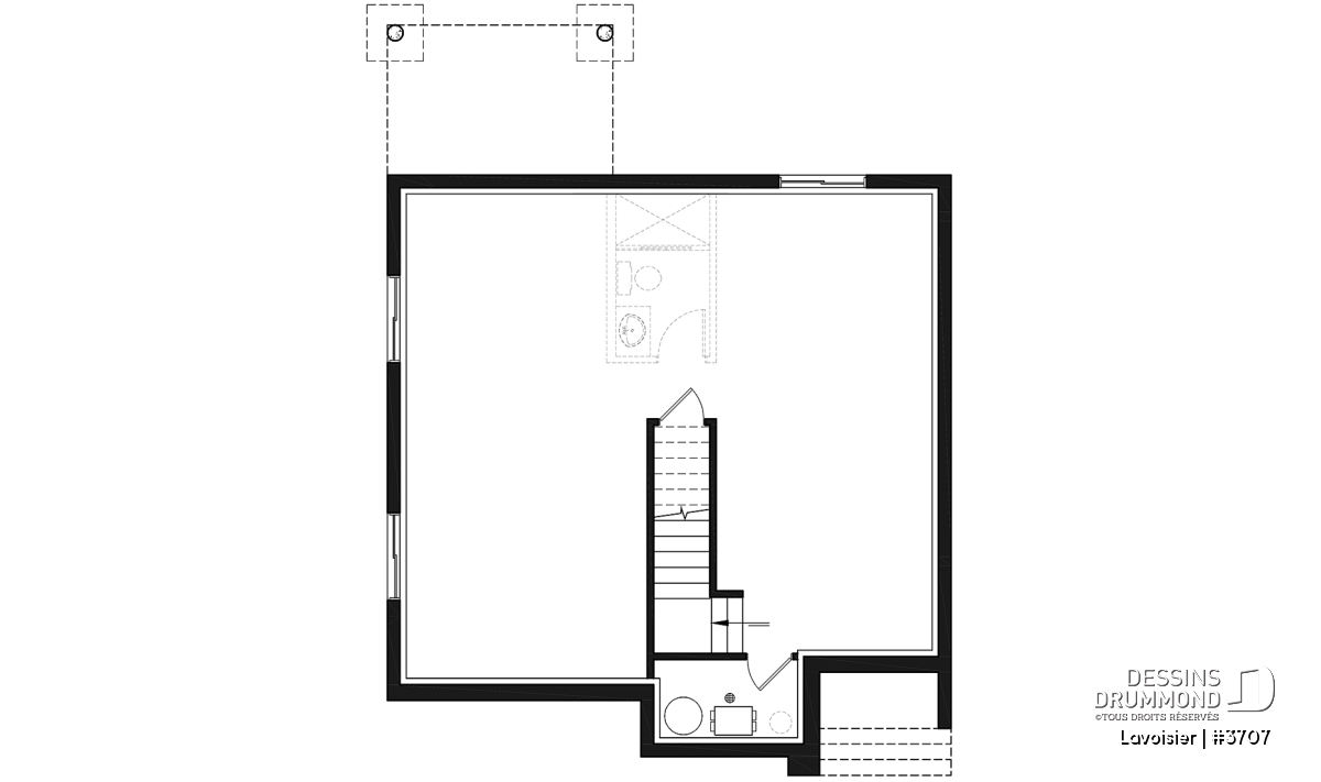
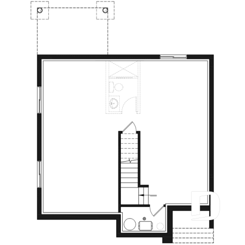
Sous-sol - Plan de maison moderne cubique à étage avec 3 chambres, buanderie, garde manger, grand îlot à la cuisine - Lavoisier

Sous-sol

Vue avant - MODÈLE DE BASE - Lavoisier

Vue avant - MODÈLE DE BASE

Élévation arrière - Lavoisier

Élévation arrière

Vue intérieure - Lavoisier

Vue intérieure

Lavoisier Plan de maison 3707

Plan de maison moderne cubique à étage avec 3 chambres, buanderie, garde manger, grand îlot à la cuisine

À partir de

1600$

Fiche technique sommaire Plan #3707
Estimation ($) 469,068$
Surface habitable 1680 pi² Chambre 3
Salle de Bain 1 Salle d'eau 1
Fondation incluse Sous-sol aménageable Garage -
Largeur 30'0" Profondeur 32'0"

Besoin d’aide ?

Nos experts vous guident dans votre projet grâce à plus de 30 bureaux au Québec.

Joignez-nous

Consultez notre guide utilisateur

Un outil conçu pour vous simplifier la vie.

Ouvrir le guide

Besoin d’une assurance habitation ?

Pour obtenir votre prix, c’est juste ici

Obtenir une soumission

Les photos de cette maison peuvent différer du plan d'origine, duquel elles proviennent. Pour toute modification, veuillez contacter l’un de nos 30 bureaux.

Détails supplémentaires

Estimation

Spécifications générales

Surface aménagée totale
1680 pi²
Rez-de-chaussée
858 pi²
Étage
822 pi²
Sous-sol
858 pi²
Largeur
30'0"
Profondeur
32'0"
Hauteur dessus fondations au faite
22'0"
Murs extérieurs
2 X 6
Murs extérieurs
2 X 6
Sous-sol aménageable
Autres fondations disponibles (des frais peuvent s'appliquer)
Dalle flottante, Vide sanitaire, Dalle monolithique
Code Entrepreneur
D

Spécifications sur les pièces

Chambre(s)
3
Salle(s) de bain complète(s)
1
Demi Salle(s) de Bain
1
Type de garage
-
Superficie balcon et/ou perron abrité
21 pi²

Sous-sol

Pièces
Dimensions
Plafond
Pièce de mécanique
7'4" x 4'2"
~ 8'0"

Rez-de-chaussée

Pièces
Dimensions
Plafond
Cuisine
12'4" x 12'4"
~ 8'0"
Garde-manger
5'0" x 6'6"
~ 8'0"
Salle de séjour
13'2" x 14'4"
~ 8'0"
Salle à manger
11'0" x 12'0"
~ 8'0"
Coin toilette/lavabo
7'10" x 4'6"
~ 8'0"
Salle de lavage
5'0" x 6'0"
~ 8'0"
Entrée ou vestibule
10'0" x 5'6"
~ 8'0"
Walk-in
3'5" x 5'8"
~ 8'0"
Patio
12'0" x 8'0"
N/D
Perron abrité
7'0" x 3'0"
N/D

Étage

Pièces
Dimensions
Plafond
Chambre à coucher
13'2" x 13'8"
~ 8'0"
Walk-in
4'6" x 10'2"
~ 8'0"
Chambre à coucher
10'8" x 12'2"
~ 8'0"
Garde-robe
6'2" x 2'0"
~ 8'0"
Chambre à coucher
11'6" x 9'0"
~ 8'0"
Garde-robe
4'10" x 3'0"
~ 8'0"
Salle de bain complète
12'0" x 9'0"
~ 8'0"
Lingerie
2'0" x 2'0"
~ 8'0"

Plan de maison à étage de style moderne cubique avec 3 chambres et superbe cuisine

Le plan de maison moderne de style cubique # 3707 de Dessins Drummond (aussi nommé Lavoisier) a été conçu par notre agence Dessins Drummond de Lévis. Ce modèle contemporain à étage comporte un total de 1680 pieds carrés aménagés, un sous-sol à aménager éventuellement et propose trois chambres à l’étage.

Au rez-de-chaussée, l’entrée offre une grande garde-robe de type walk-in et est adjacente à une pratique buanderie. Une salle d’eau est en retrait des airs communs. La cuisine possède beaucoup d’espace comptoir, un grand îlot central pouvant asseoir 3 à 4 convives ainsi qu’un pratique garde-manger avec beaucoup d’espace. La cuisine est ouverte sur la salle à manger, et cette dernière est adjacente à la salle familiale. Une porte-patio est aménagée à la salle à manger et mène à une galerie arrière, tout en offrant beaucoup de lumière naturelle à ce secteur.

À l’étage, la chambre des maîtres est de grand format et peut facilement loger un lit de format king et des meubles d’appoint. De plus elle possède une grande garde-robe de type walk-in. L’une des chambre secondaire offre aussi un walk-in et l’autre chambre a un bureau de travail intégré. Une lingerie est localisée près de la grande salle de bain familiale. Cette dernière offre une grand douche et un bain séparés.

Le sous-sol est non-fini et permettra éventuellement, au moment opportun, d’y aménager des chambres supplémentaires, une salle de jeux ou tout autre pièce requise au confort de votre famille.

Vous souhaitez effectuer des ajustements au plancher de ce modèle, contactez-nous afin d'obtenir votre estimation gratuite pour la modification du plan.

Éléments distinctifs

Plan de maison à étage 3 chambres, de style moderne cubique.
Hall d'entrée avec grande garde-robe de style walk-in.
Buanderie pratique au rez-de-chaussée.
Cuisine de grand format avec plusieurs comptoirs, garde-manger et îlot pouvant recevoir 4 personnes aisément.
Cuisine, salle à manger et salon à aire ouverte.
Chambre des parents pouvant aisément recevoir un lit king. Et comportant un garde-robe walk-in.
L'une des 2 chambres secondaires avec walk-in et l'autre avec coin bureau.
Lingerie dans le corridor près de la salle de bain.
Salle de bain familiale avec grande douche et bain séparé.
Sous-sol à aménager éventuellement pour des chambres additionnelles, salle familiale, salle de jeux ou autres.

Particularité(s) du plan

Salle de lavage au rez-de-chaussée, Ilôt, Garde-manger, Aire ouverte, Vestiaire, Walk-in ch. maîtres, Bain et douche séparés

Style(s) architectural du plan

Contemporain / Zen, Moderne, Transitionnel, Moderne rustique

Ventilation Maximum
Ventilation Maximum
Anti-rafale

Entreprise manufacturière qui vends des ventilateurs de toiture, des clapets muraux et des entrées d'air.

Plans similaires
Logo Dessins Drummond image Dessins Drummond
Le modèle Lavoisier est protégé par la loi sur les droits d'auteur.

Les illustrations présentées peuvent différer du plan détaillé que vous recevrez, car ces derniers sont régulièrement ajustés afin de respecter les normes de construction en vigueur.

En savoir plus

Une question ou un commentaire sur ce plan ?

Information de contact

Votre demande

Ajouter vos images ou photos

Pour ajouter une ou des photos, veuillez cliquer ou glisser vos fichiers dans la zone ci-bas. Vous pouvez ajouter jusqu'à huit photos JPG ou JPEG. Cette opération n'est pas obligatoire.

Désolé, votre navigateur ne supporte pas l'envoi de fichier.