Vue avant - MODÈLE DE BASE - Plan à étage de style moderne, 3 chambres, walk-in, foyer, buanderie, îlot et garde-manger - Lévis

Vue avant - MODÈLE DE BASE

Rez-de-chaussée - Plan à étage de style moderne, 3 chambres, walk-in, foyer, buanderie, îlot et garde-manger - Lévis

Rez-de-chaussée

Étage - Plan à étage de style moderne, 3 chambres, walk-in, foyer, buanderie, îlot et garde-manger - Lévis

Étage

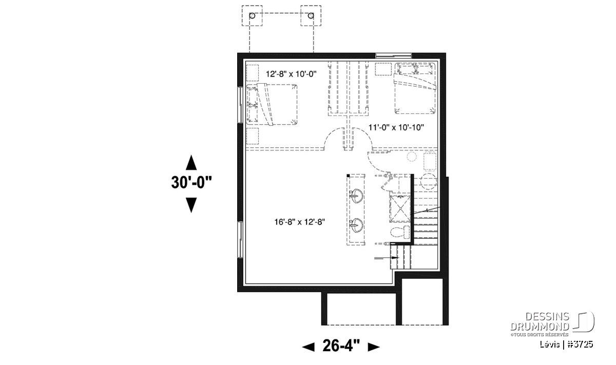
Sous-sol - Plan à étage de style moderne, 3 chambres, walk-in, foyer, buanderie, îlot et garde-manger - Lévis

Sous-sol

Élévation arrière - Lévis

Élévation arrière

Lévis Plan de maison 3725

Plan à étage de style moderne, 3 chambres, walk-in, foyer, buanderie, îlot et garde-manger

À partir de

1600$

Fiche technique sommaire Plan #3725
Estimation ($) 383,120$
Surface habitable 1525 pi² Chambre 3
Salle de Bain 1 Salle d'eau 1
Fondation incluse Sous-sol aménageable Garage -
Largeur 26'4" Profondeur 30'0"

Besoin d’aide ?

Nos experts vous guident dans votre projet grâce à plus de 30 bureaux au Québec.

Joignez-nous

Consultez notre guide utilisateur

Un outil conçu pour vous simplifier la vie.

Ouvrir le guide

Besoin d’une assurance habitation ?

Pour obtenir votre prix, c’est juste ici

Obtenir une soumission

Détails supplémentaires

Estimation

Spécifications générales

Surface aménagée totale
1525 pi²
Rez-de-chaussée
771 pi²
Étage
754 pi²
Sous-sol
771 pi²
Largeur
26'4"
Profondeur
30'0"
Hauteur dessus fondations au faite
25'10"
Murs extérieurs
2 X 6
Murs extérieurs
2 X 6
Sous-sol aménageable
Autres fondations disponibles (des frais peuvent s'appliquer)
Dalle flottante, Vide sanitaire, Dalle monolithique
Code Entrepreneur
D

Spécifications sur les pièces

Chambre(s)
3
Salle(s) de bain complète(s)
1
Demi Salle(s) de Bain
1
Type de garage
-
Superficie balcon et/ou perron abrité
120 pi²

Sous-sol

Pièces
Dimensions
Plafond

Rez-de-chaussée

Pièces
Dimensions
Plafond
Cuisine
9'4" x 11'2"
~ 8'0"
Salle de séjour
13'0" x 14'0"
~ 8'0"
Salle à manger
9'2" x 11'6"
~ 8'0"
Salle de lavage
5'8" x 5'2"
~ 8'0"
Garde-robe
6'4" x 2'2"
~ 8'0"
Demie salle de bain ou coin toilette
5'8" x 5'8"
~ 8'0"
Perron
8'0" x 5'0"
N/D
Perron abrité
15'10" x 5'8"
N/D

Étage

Pièces
Dimensions
Plafond
Chambre à coucher
11'6" x 12'0"
~ 8'0"
Walk-in
7'6" x 5'4"
~ 8'0"
Chambre à coucher
11'0" x 10'4"
~ 8'0"
Garde-robe
5'4" x 2'0"
~ 8'0"
Salle de bain complète
8'4" x 14'0"
~ 8'0"
Chambre à coucher
11'0" x 10'4"
~ 8'0"
Garde-robe
4'8" x 2'0"
~ 8'0"
Lingerie
2'8" x 2'0"
~ 8'0"

Maison à étage de style moderne offrant beaucoup de confort

D’approche contemporaine avec ses espaces communs à aire ouverte, ce cottage, maison à étage no. 3725 de Dessins Drummond, conçu par notre notre agence de Lévis, se veut lumineux avec son intérieur décloisonné laissant voyager la lumière naturelle sur l’ensemble du rez-de-chaussée, dans l’escalier ainsi qu’à l’étage.

Au rez-de-chaussée, on note d’abord une entrée dégagée avec garde-robe fort logeable de plus de 6’4’’pi x 2’2’’pi. Une salle d’eau et buanderie sont localisées tout près de la cuisine. Puis, le secteur activités s’ouvre entièrement à nous avec de beaux espaces dont cette salle de séjour partageant un foyer trois faces avec une salle à manger dotée d’une porte-patio. C’est aussi une remarquable cuisine avec excellent rangement, îlot-lunch central et fenêtre au-dessus de l’évier pour une maximisation de l’éclairage naturel.

À l’étage, on est agréablement surpris par le format des trois chambres alors que les deux plus petites font 11pi x 10’4’’pi et que dire des garde-robes qui y sont rattachées comme ce grand walk-in à la chambre des maîtres. On constate de plus une salle de bain complète avec douche indépendante, large vanité à deux éviers et bain sous la fenêtre avant.

Éléments distinctifs

Plan de maison à étage de style moderne. et abordable.
Entrée avant avec accès à une grande garde-robe.
Salle de séjour et salle à dîner séparées par un foyer trois faces. grand îlot et garde-manger à la cuisine.
Salle d'eau attenante à la cuisine.
Buanderie au rez-de-chaussée.
Chambre des maîtres avec grand walk-in.
Salle de bain familiale avec deux lavabos, grande douche et bain (séparé de la douche).
Sous-sol à aménager mais pouvant facilement loger 2 chambres et salle familiale, au besoin.

Particularité(s) du plan

Salle de lavage au rez-de-chaussée, Foyer, Ilôt, Walk-in ch. maîtres, Aire ouverte, Bain et douche séparés, Lavabo double

Style(s) architectural du plan

Transitionnel, Contemporain / Zen, Moderne, Mid-century

Plans similaires
Logo Dessins Drummond image Dessins Drummond
Le modèle Lévis est protégé par la loi sur les droits d'auteur.

Les illustrations présentées peuvent différer du plan détaillé que vous recevrez, car ces derniers sont régulièrement ajustés afin de respecter les normes de construction en vigueur.

En savoir plus

Une question ou un commentaire sur ce plan ?

Information de contact

Votre demande

Ajouter vos images ou photos

Pour ajouter une ou des photos, veuillez cliquer ou glisser vos fichiers dans la zone ci-bas. Vous pouvez ajouter jusqu'à huit photos JPG ou JPEG. Cette opération n'est pas obligatoire.

Désolé, votre navigateur ne supporte pas l'envoi de fichier.