Vue avant - MODÈLE DE BASE - Plan de maison nordique 2 chambres, avec garage, garde-manger, vestiaire, chute à linge - Urban Valley 3

Vue avant - MODÈLE DE BASE

Rez-de-chaussée - Plan de maison nordique 2 chambres, avec garage, garde-manger, vestiaire, chute à linge - Urban Valley 3

Rez-de-chaussée

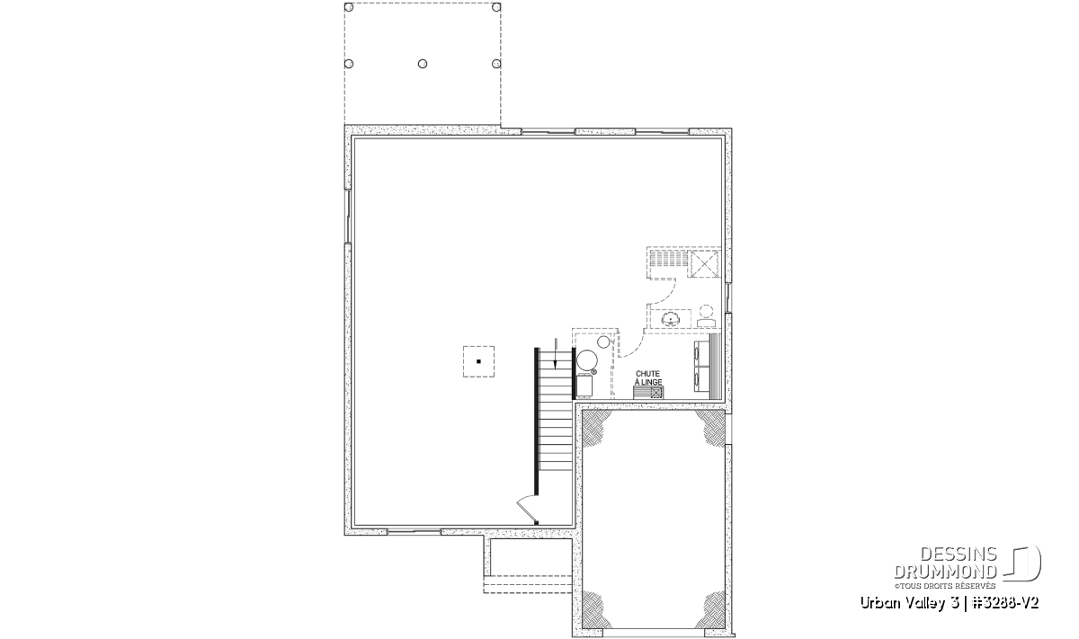
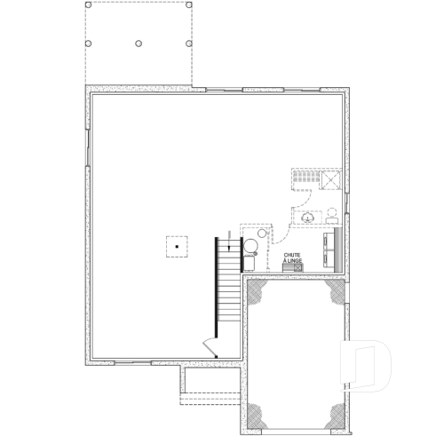
Sous-sol - Plan de maison nordique 2 chambres, avec garage, garde-manger, vestiaire, chute à linge - Urban Valley 3

Sous-sol

Vue avant - MODÈLE DE BASE - Urban Valley 3

Vue avant - MODÈLE DE BASE

Vue arrière - MODÈLE DE BASE - Urban Valley 3

Vue arrière - MODÈLE DE BASE

Vue arrière - MODÈLE DE BASE - Urban Valley 3

Vue arrière - MODÈLE DE BASE

Vue arrière - MODÈLE DE BASE - Urban Valley 3

Vue arrière - MODÈLE DE BASE

Vue intérieure - Urban Valley 3

Vue intérieure

Urban Valley 3 Plan de maison 3288-V2

Plan de maison nordique 2 chambres, avec garage, garde-manger, vestiaire, chute à linge

À partir de

1440$

Fiche technique sommaire Plan #3288-V2
Estimation ($) 390,160$
Surface habitable 1339 pi² Chambre 2
Salle de Bain 1 Salle d'eau -
Fondation incluse Sous-sol aménageable Garage 1 voiture
Largeur 38'0" Profondeur 50'0"

Besoin d’aide ?

Nos experts vous guident dans votre projet grâce à plus de 30 bureaux au Québec.

Joignez-nous

Consultez notre guide utilisateur

Un outil conçu pour vous simplifier la vie.

Ouvrir le guide

Un accompagnement sur mesure

De la modification de plans au design d’intérieur, nous vous guidons à chaque étape.

Découvrir nos services

Photos du plan Urban Valley 3

Les photos de cette maison peuvent différer du plan d'origine, duquel elles proviennent. Pour toute modification, veuillez contacter l’un de nos 30 bureaux.

Détails supplémentaires

Estimation

Spécifications générales

Surface aménagée totale
1339 pi²
Rez-de-chaussée
1339 pi²
Sous-sol
1339 pi²
Largeur
38'0"
Profondeur
50'0"
Hauteur dessus fondations au faite
21'6"
Murs extérieurs
2 X 6
Murs extérieurs
2 X 6
Sous-sol aménageable
Autres fondations disponibles (des frais peuvent s'appliquer)
Dalle flottante, Vide sanitaire, Dalle monolithique
Code Entrepreneur
C

Spécifications sur les pièces

Chambre(s)
2
Salle(s) de bain complète(s)
1
Demi Salle(s) de Bain
-
Type de garage
1 voiture (338 pi²)
Superficie balcon et/ou perron abrité
35 pi²

Sous-sol

Rez-de-chaussée

Pièces
Dimensions
Plafond
Chambre à coucher
9'0" x 12'4"
~ 9'0"
Garde-robe
3'8" x 2'0"
~ 9'0"
Chambre à coucher
12'4" x 12'4"
~ 9'0"
Walk-in
8'6" x 6'0"
~ 9'0"
Salle à manger
11'0" x 15'0"
~ 9'0"
Terrasse abritée
15'4" x 12'0"
~ 9'0"
Cuisine
13'4" x 11'0"
~ 9'0"
Garde-manger
3'6" x 6'0"
~ 9'0"
Îlot
8'0" x 3'4"
N/D
Vestiaire
4'0" x 6'8"
~ 9'0"
Entrée ou vestibule
8'0" x 12'4"
~ 13'2"
Garage
14'0" x 21'4"
~ 11'0"
Perron
8'8" x 4'0"
~ 9'0"
Lingerie
4'0" x 1'8"
~ 9'0"
Salle de bain complète
14'2" x 7'4"
~ 9'0"

Magnifique plan de plain-pied de style Nordique, avec garage et 2 chambres.

Le plan de maison URBAN VALLEY 3 (#3288-V2) propose 1339 pieds carrés aménagés au rez-de-chaussée. Un sous-sol est prévu et inclus au plan, mais n'est pas aménagé.

Le plancher regroupe 2 chambres, dont la chambre des parents avec un walk-in ainsi qu'un accès privé à la salle de bain. La chambre secondaire pourrait aussi servir de bureau, de chambre de couture ou de lecture.

La salle de bain propose 2 lavabos, ainsi qu'un bain et une douche séparés et une chute à linge (vers le sous-sol).

À l'entrée de la maison on retrouve un vestiaire et l'accès au garage.

La cuisine est bien aménagée avec son garde-manger de bon format et îlot suffisamment grand pour recevoir 4 convives.

Le secteur cuisine, salle à manger et salon est à aire ouverte et donne sur une grande terrasse couverte de 15'4'' x 12'.

Le sous-sol est non-fini, à aménager selon vos besoins actuels ou futurs.

Éléments distinctifs

Maison de style Craftsman (Nordique) au look très chaleureux.
2 Chambres.
Sous-sol à aménager.
Entrée avec vestiaire.
Cuisine avec garde-manger et îlot.
Aire ouverte à la cuisine, salle à manger et salon.
Terrasse abritée.
Plusieurs options de fondation sont disponibles pour ce plan.

Particularité(s) du plan

Garde-manger, Vestiaire, Aire ouverte, Plafond à plus de 8', Terrasse abritée, Bain et douche séparés, Lavabo double, Chute à linge, Walk-in ch. maîtres, Ilôt, Entrepreneur, Auto-Construction

Style(s) architectural du plan

Nordique Moderne, En montagne, Rustique, Farmhouse moderne, Transitionnel, Champêtre, Nordique

Maibec
Maibec
Planche & couvre-joint
À partir de 6,25$/pi².

Spécialiste des systèmes de revêtement

Plans similaires
Logo Dessins Drummond image Dessins Drummond
Le modèle Urban Valley 3 est protégé par la loi sur les droits d'auteur.

Les illustrations présentées peuvent différer du plan détaillé que vous recevrez, car ces derniers sont régulièrement ajustés afin de respecter les normes de construction en vigueur.

En savoir plus

Une question ou un commentaire sur ce plan ?

Information de contact

Votre demande

Ajouter vos images ou photos

Pour ajouter une ou des photos, veuillez cliquer ou glisser vos fichiers dans la zone ci-bas. Vous pouvez ajouter jusqu'à huit photos JPG ou JPEG. Cette opération n'est pas obligatoire.

Désolé, votre navigateur ne supporte pas l'envoi de fichier.