Alternative - Plan de petite maison moderne 2 chambres + bureau, cuisine compacte avec îlot et garde-manger, grande terrace - Joshua 3

Alternative

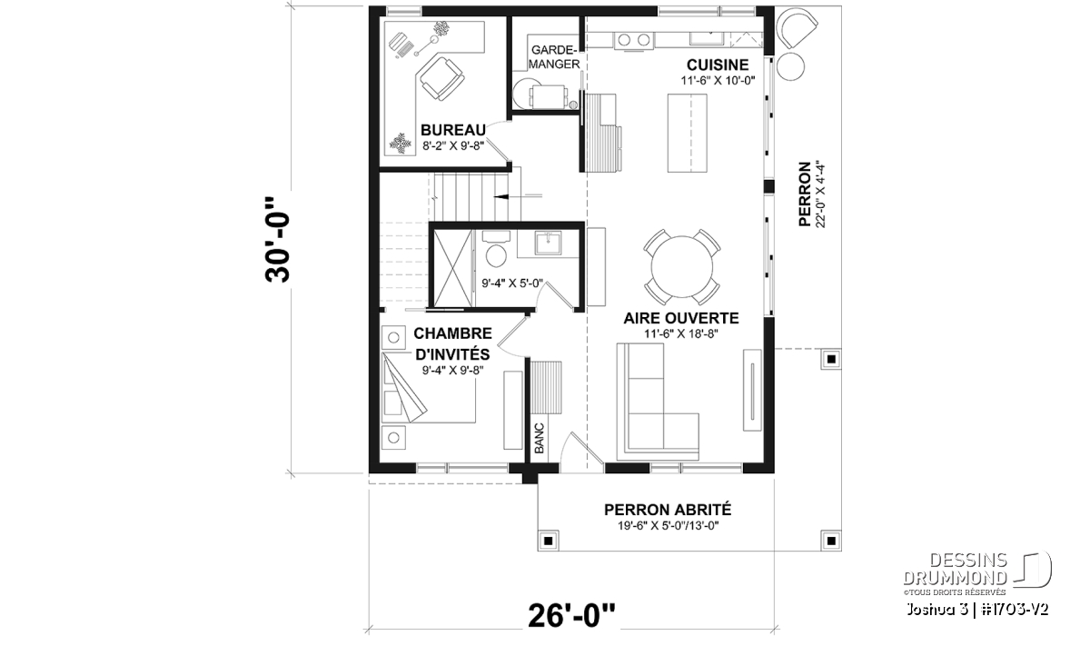
Rez-de-chaussée - Plan de petite maison moderne 2 chambres + bureau, cuisine compacte avec îlot et garde-manger, grande terrace - Joshua 3

Rez-de-chaussée

Étage - Plan de petite maison moderne 2 chambres + bureau, cuisine compacte avec îlot et garde-manger, grande terrace - Joshua 3

Étage

Vue droite - Joshua 3

Vue droite

Vue avant - MODÈLE DE BASE - Joshua 3

Vue avant - MODÈLE DE BASE

Vue avant - MODÈLE DE BASE - Joshua 3

Vue avant - MODÈLE DE BASE

Élévation arrière - Joshua 3

Élévation arrière

Alternative - Joshua 3

Alternative

Vue intérieure - Joshua 3

Vue intérieure

Vue intérieure - Joshua 3

Vue intérieure

Joshua 3 Plan de maison 1703-V2

Plan de petite maison moderne 2 chambres + bureau, cuisine compacte avec îlot et garde-manger, grande terrace

À partir de

1440$

Fiche technique sommaire Plan #1703-V2
Estimation ($) 338,767$
Surface habitable 1200 pi² Chambre 2, 3
Salle de Bain 2 Salle d'eau -
Fondation incluse Dalle flottante Garage -
Largeur 26'0" Profondeur 30'0"

Besoin d’aide ?

Nos experts vous guident dans votre projet grâce à plus de 30 bureaux au Québec.

Joignez-nous

Consultez notre guide utilisateur

Un outil conçu pour vous simplifier la vie.

Ouvrir le guide

Besoin d’une assurance habitation ?

Pour obtenir votre prix, c’est juste ici

Obtenir une soumission

Photos du plan Joshua 3

Les photos de cette maison peuvent différer du plan d'origine, duquel elles proviennent. Pour toute modification, veuillez contacter l’un de nos 30 bureaux.

Détails supplémentaires

Estimation

Spécifications générales

Surface aménagée totale
1200 pi²
Rez-de-chaussée
780 pi²
Étage
420 pi²
Largeur
26'0"
Profondeur
30'0"
Hauteur dessus fondations au faite
21'2"
Murs extérieurs
2 X 6
Murs extérieurs
2 X 6
Autres fondations disponibles (des frais peuvent s'appliquer)
Vide sanitaire, Dalle monolithique
Code Entrepreneur
C

Spécifications sur les pièces

Chambre(s)
2, 3
Salle(s) de bain complète(s)
2
Demi Salle(s) de Bain
-
Type de garage
-
Superficie balcon et/ou perron abrité
218 pi²

Rez-de-chaussée

Pièces
Dimensions
Plafond
Chambre à coucher
9'4" x 9'8"
~ 8'0"
Garde-robe
3'2" x 2'0"
~ 8'0"
Salle de bain
9'4" x 5'0"
~ 8'0"
Douche
5'0" x 2'8"
N/D
Bureau à domicile
8'2" x 9'8"
~ 8'0"
Cuisine
11'6" x 10'0"
~ 8'0"
Îlot
5'0" x 2'6"
N/D
Perron
22'0" x 4'4"
N/D
Perron abrité
19'6" x 5'0"
~ 7'6"
Perron abrité
8'0" x 4'4"
~ 7'6"
Garde-manger
4'4" x 6'0"
~ 8'0"
Salle de séjour/salle à manger
11'6" x 18'8"
~ 8'0"

Étage

Pièces
Dimensions
Plafond
Terrasse
12'0" x 30'0"
N/D
Suite des maîtres
12'8" x 10'6"
~ 8'0"
Walk-in
4'8" x 9'4"
~ 8'0"
Salle de bain complète
7'8" x 9'8"
~ 8'0"
Douche
4'6" x 3'0"
N/D
Lingerie
1'6" x 1'6"
N/D

Plan de maison moderne compacte de 2 à 3 chambres, salles de bain et grande terrasse privée à l'étage!

Le plan de maison Joshua 3 (1703-V2) propose une surface habitable de 1200pi2. La hauteur de tous les plafonds est de 8pi. La fondation prévue est une dalle flottante, bien que d'autres options de fondation sont disponibles.

Le balcon avant est abritée, et la balcon latérale sur la droite est partiellement abritée. Selon l'orientation du votre maison, prévoir cette portion sur le sud, question de profiter au maximum de l'ensoleillement dans le secteur cuisine, salle à dîner et salon.

*PRENDRE NOTE: Tous nos plans sont disponibles en version "inversée" afin de vous permettre de profiter d'un maximum de lumière naturelle, selon l'orientation de votre terrain.

En entrant dans cette maison moderne, un banc et une commode se trouvent sur la gauche. Sur la doite on y aperçoit la salle de séjour, la cuisine et la salle à manger qui sont à aire ouverte. Ce secteur reçoit amplement de lumière naturelle via 2 porte-patios distinctes qui y sont aménagées.

La cuisine offre un îlot ainsi qu’un garde-manger de style walk-in. Une chambre d'invités, un bureau (ou chambre #3) ainsi qu'une salle de douche complètent le rez-de-chaussée.

A l’étage, se trouve la suite des parents. Cette dernière est pensée pour assurer de bons moments de détente, avec son coin bar à café et lecture, ainsi qu'un accès privé à la belle et grande terrasse de 360 pi.ca. (soit 12' x 30'). De plus, elle possède une salle de bain privative avec bain et douche séparés, et une garde-robe de type walk-in avec laveuse et sécheuse superposées.

Comme résidence secondaire ou maison principale, cette splendide et compacte maison contemporaine a tout pour plaire avec ses tonnes de commodités!

Éléments distinctifs

Maison moderne compacte avec plancher efficace et grande terrasse à l'étage.
Perron avant et latéral partiellement abitée.
Beaucoup de lumière naturelle à la cuisine et salle à manger via 2 porte-patios distinctes. Ces dernières donnent sur une portion non-abritée du balcon latéral.
Entrée avec banc et garde-robe (style commode).
Rez-de-chaussée à aire ouverte.
Grand garde-manger de type walk-in et îlot à la cuisine.
Chambre #2 prévue au rez-de-chaussée.
Espace versatile de la chambre #3 qui peut être utilisée en bureau ou salle de jeux.
Superbe chambre des parents à l'étage avec salle de bain complète privée et garde-robe de type walk-in. Ce dernier prévoit l'espace pour y ajouter une laveuse-sécheuse superposées.
Un coin bar à café est également prévu dans la chambre des parents, ainsi qu'un espace lecture.
Grande terrasse non-abritée à l'étage de 12' x 30'.

Particularité(s) du plan

Vue paronamique, Balcon à l'étage, Suite des maîtres à l'étage, Walk-in ch. maîtres, Bain et douche séparés, Garde-manger, Ilôt, Salle de lavage à l'étage, Banquette, Aire ouverte, Bar à café, Galerie 2-3 côtés

Style(s) architectural du plan

Contemporain / Zen, Chalet, Chalet de ski, Chalet récréatif, Mid-century, Moderne, Vacances, bordure de lac, Moderne rustique

Oceania
Oceania
Base et porte de douche

Depuis notre fondation en 1995, Bains Oceania est engagé à offrir à ses clients une expérience unique et raffinée dans leur environnement spa résidentiel. Grâce à notre savoir-faire et à notre passion pour l’innovation, nous fabriquons ici, des produits de grande qualité, pour vous.

Oceania
Oceania
Base et porte de douche

Depuis notre fondation en 1995, Bains Oceania est engagé à offrir à ses clients une expérience unique et raffinée dans leur environnement spa résidentiel. Grâce à notre savoir-faire et à notre passion pour l’innovation, nous fabriquons ici, des produits de grande qualité, pour vous.

Boiseries Raymond
Boiseries Raymond
Porte 333

Chef de file dans le préassemblage de portes intérieures au Québec. Cette force nous permet de vous fournir une variété de modèles préassemblées selon vos spécifications et selon le volume de production requis.

Boiseries Raymond
Boiseries Raymond
Porte 333

Chef de file dans le préassemblage de portes intérieures au Québec. Cette force nous permet de vous fournir une variété de modèles préassemblées selon vos spécifications et selon le volume de production requis.

Boiseries Raymond
Boiseries Raymond

Chef de file dans le préassemblage de portes intérieures au Québec. Cette force nous permet de vous fournir une variété de modèles préassemblées selon vos spécifications et selon le volume de production requis.

Boiseries Raymond
Boiseries Raymond
Porte 333

Chef de file dans le préassemblage de portes intérieures au Québec. Cette force nous permet de vous fournir une variété de modèles préassemblées selon vos spécifications et selon le volume de production requis.

Plans similaires
Logo Dessins Drummond image Dessins Drummond
Le modèle Joshua 3 est protégé par la loi sur les droits d'auteur.

Les illustrations présentées peuvent différer du plan détaillé que vous recevrez, car ces derniers sont régulièrement ajustés afin de respecter les normes de construction en vigueur.

En savoir plus

Une question ou un commentaire sur ce plan ?

Information de contact

Votre demande

Ajouter vos images ou photos

Pour ajouter une ou des photos, veuillez cliquer ou glisser vos fichiers dans la zone ci-bas. Vous pouvez ajouter jusqu'à huit photos JPG ou JPEG. Cette opération n'est pas obligatoire.

Désolé, votre navigateur ne supporte pas l'envoi de fichier.