Vue avant - MODÈLE DE BASE - Plan de petit chalet remarquable offrant 2 chambres et beaucoup de lumière naturelle! - Rifugio

Vue avant - MODÈLE DE BASE

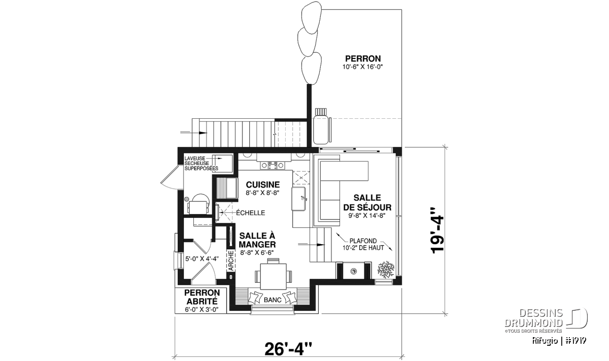
Rez-de-chaussée - Plan de petit chalet remarquable offrant 2 chambres et beaucoup de lumière naturelle! - Rifugio

Rez-de-chaussée

Étage - Plan de petit chalet remarquable offrant 2 chambres et beaucoup de lumière naturelle! - Rifugio

Étage

Vue avant - MODÈLE DE BASE - Rifugio

Vue avant - MODÈLE DE BASE

Vue arrière - MODÈLE DE BASE - Rifugio

Vue arrière - MODÈLE DE BASE

Élévation arrière - Rifugio

Élévation arrière

Vue intérieure - Rifugio

Vue intérieure

Vue intérieure - Rifugio

Vue intérieure

Rifugio Plan de maison 1919

Plan de petit chalet remarquable offrant 2 chambres et beaucoup de lumière naturelle!

À partir de

1160$

Fiche technique sommaire Plan #1919
Estimation ($) 276,168$
Surface habitable 741 pi² Chambre 1, 2
Salle de Bain 1 Salle d'eau -
Fondation incluse Dalle flottante Garage -
Largeur 26'4" Profondeur 19'4"

Besoin d’aide ?

Nos experts vous guident dans votre projet grâce à plus de 30 bureaux au Québec.

Joignez-nous

Consultez notre guide utilisateur

Un outil conçu pour vous simplifier la vie.

Ouvrir le guide

Besoin d’une assurance habitation ?

Pour obtenir votre prix, c’est juste ici

Obtenir une soumission

Les photos de cette maison peuvent différer du plan d'origine, duquel elles proviennent. Pour toute modification, veuillez contacter l’un de nos 30 bureaux.

Détails supplémentaires

Estimation

Spécifications générales

Surface aménagée totale
741 pi²
Rez-de-chaussée
455 pi²
Étage
286 pi²
Largeur
26'4"
Profondeur
19'4"
Hauteur dessus fondations au faite
25'10"
Murs extérieurs
2 X 6
Murs extérieurs
2 X 6
Autres fondations disponibles (des frais peuvent s'appliquer)
Vide sanitaire, Dalle monolithique
Code Entrepreneur
AA

Spécifications sur les pièces

Chambre(s)
1, 2
Salle(s) de bain complète(s)
1
Demi Salle(s) de Bain
-
Type de garage
-
Superficie balcon et/ou perron abrité
18 pi²

Rez-de-chaussée

Pièces
Dimensions
Plafond
Entrée ou vestibule
5'0" x 4'4"
~ 8'0"
Garde-robe
3'4" x 2'6"
~ 8'0"
Perron abrité
6'0" x 3'0"
~ 8'0"
Cuisine
8'8" x 8'8"
~ 8'0"
Salle à manger
8'8" x 6'6"
~ 8'0"
Salle de séjour
9'8" x 14'8"
~ 10'2"
Patio
10'6" x 16'0"
N/D
Pièce de mécanique
3'4" x 7'2"
~ 8'0"

Étage

Pièces
Dimensions
Plafond
Terrasse
19'4" x 10'0"
N/D
Chambre à coucher
8'8" x 14'4"
~ 8'0"
Salle de bain
12'6" x 3'0"
~ 8'0"
Douche
5'8" x 3'0"
N/D
Chambre à coucher
5'8" x 6'2"
~ 8'0"

Chalet lumineux de luxe qui fera le bonheur d'une famille, le temps d'une belle vacance à la campagne ou en forêt!

Ce chalet est disponible à la location : https://www.instagram.com/lerifugio/

Le plan de chalet Rifugio (#1919) propose 741 pi.ca., judicieusement aménagés sur 2 étages. Malgré son format compact, il offre plusieurs attraits qui sauront plaire à une petite famille ou à deux couples en vacances. Il a d'ailleurs été conçu avec une pensée de location éventuelle. Son look extérieur de pierre et de bois s'harmonise parfaitement à un décor en forêt et offre d'emblée la perspective d'un séjour de repos, zen et sans tracas!

Le perron avant est abrité et il mène à une entrée avec garde-robe de type petit walk-in. Tout de suite à droite un mur de pierre avec arche donne le ton rustique et chaleureux que l'on retrouve un peu partout à l'intérieur. La cuisine est de bon format et possède tous les attributs recherchés pour y faire de bons plats. La salle à manger est assez grande pour recevoir confortablement 4 invités avec sa banquette et chaises. Le salon, en contrebas, a un plafond à plus de 10' de hauteur ainsi qu'un foyer et une fenestration offrant une vue imprenable sur l'extérieur. Il est à noter que l'achat d'un sofa-lit au salon pourrait permettre de recevoir 2 personnes additionnelles.

L'étage est accessible par un escalier extérieur et aussi par une amusante échelle, judicieusement localisée en retrait de la cuisine, loin du salon pour plus de quiétude. Sur ce niveau, on retrouve la chambre principale qui a sa propre terrasse et par le fait même, une superbe vue panoramique sur l'extérieur. De plus, une chambre secondaire avec lits superposés fera le bonheur de vos enfants, ou de vos invités! Et finalement, une salle de douche complète cette étage.

La salle de lavage est située sur le côté gauche de la maison et on l'accède de l'extérieur. De plus, elle comporte une petite section permettant le rangement d'accessoires de jardinage, par exemple. La fondation prévue pour ce plan est une dalle flottante. Pour obtenir un autre type de fondation ou pour des modifications à ce plan, veuillez contacter notre service à la clientèle.

Ce magnifique petit chalet versatile et tout en lumière a tout ce qu'il faut pour vous procurer de bons moments en famille ou entre amis, peu importe la saison!!

Éléments distinctifs

Plan de chalet compact tout en lumière proposant de l'espace pour 4 personnes.
Style rustique moderne, chaleureux et très fenestré.
Salle à manger avec banquette.
Salle de séjour avec foyer, plancher en contrebas et plafond à 10'2''.
Au besoin, acheter un sofa-lit pour la salle de séjour et vous aurez un espace additionnel pour les invités!
Accès à l'étage par une échelle située dans la cuisine, et aussi par une escalier à l'extérieur du chalet.
Salle de lavage située sur le côté de la maison et accessible de l'extérieur.
Chambre principale à l'étage propose une grande banquette de lecture et l'accès à la grande terrasse de19'4'' x 10'.
Chambre additionnelle à l'étage avec lits superposés, idéale pour enfants ou invités de dernière minute.
La fondation est une dalle flottante.

Particularité(s) du plan

Salon en contrebas, Vue paronamique, Banquette, Foyer, Arche

Style(s) architectural du plan

Chalet, Nordique Moderne, En montagne, Européen, Rustique, Français Moderne, Chalet de ski, Chalet récréatif, Vacances, bordure de lac, Anglais, Tendance

Ventilation Maximum
Ventilation Maximum

Entreprise manufacturière qui vends des ventilateurs de toiture, des clapets muraux et des entrées d'air.

Boiseries Raymond
Boiseries Raymond
Porte 151

Chef de file dans le préassemblage de portes intérieures au Québec. Cette force nous permet de vous fournir une variété de modèles préassemblées selon vos spécifications et selon le volume de production requis.

Boiseries Raymond
Boiseries Raymond
Porte 151

Chef de file dans le préassemblage de portes intérieures au Québec. Cette force nous permet de vous fournir une variété de modèles préassemblées selon vos spécifications et selon le volume de production requis.

Plans similaires
Logo Dessins Drummond image Dessins Drummond
Le modèle Rifugio est protégé par la loi sur les droits d'auteur.

Les illustrations présentées peuvent différer du plan détaillé que vous recevrez, car ces derniers sont régulièrement ajustés afin de respecter les normes de construction en vigueur.

En savoir plus

Une question ou un commentaire sur ce plan ?

Information de contact

Votre demande

Ajouter vos images ou photos

Pour ajouter une ou des photos, veuillez cliquer ou glisser vos fichiers dans la zone ci-bas. Vous pouvez ajouter jusqu'à huit photos JPG ou JPEG. Cette opération n'est pas obligatoire.

Désolé, votre navigateur ne supporte pas l'envoi de fichier.