Version couleur no. 2 - Vue avant - Plan de maison contemporaine lumineuse, petit budget, 3 chambres, garde-manger, grande douche - Phénix

Version couleur no. 2 - Vue avant

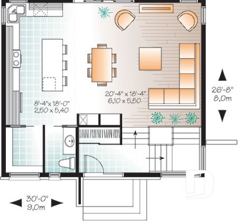
Rez-de-chaussée - Plan de maison contemporaine lumineuse, petit budget, 3 chambres, garde-manger, grande douche - Phénix

Rez-de-chaussée

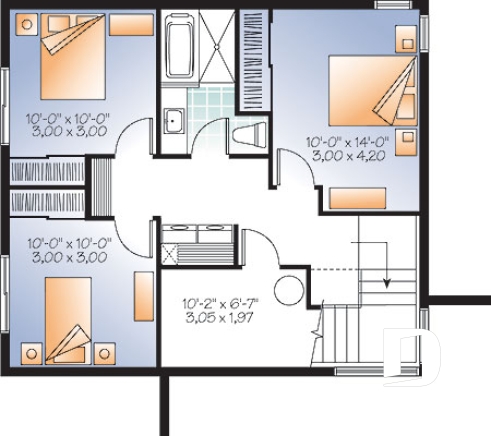
Sous-sol - Plan de maison contemporaine lumineuse, petit budget, 3 chambres, garde-manger, grande douche - Phénix

Sous-sol

Vue avant – Modèle ORIGINAL - Phénix

Vue avant – Modèle ORIGINAL

Vue avant - MODÈLE DE BASE - Phénix

Vue avant - MODÈLE DE BASE

Élévation arrière - Phénix

Élévation arrière

Version couleur no. 1 - Vue avant - Phénix

Version couleur no. 1 - Vue avant

Phénix Plan de maison 3320

Plan de maison contemporaine lumineuse, petit budget, 3 chambres, garde-manger, grande douche

À partir de

1600$

Fiche technique sommaire Plan #3320
Estimation ($) 242,942$
Surface habitable 1587 pi² Chambre 3
Salle de Bain 1 Salle d'eau 1
Fondation incluse Sous-sol aménagé Garage -
Largeur 30'0" Profondeur 26'8"

Besoin d’aide ?

Nos experts vous guident dans votre projet grâce à plus de 30 bureaux au Québec.

Joignez-nous

Consultez notre guide utilisateur

Un outil conçu pour vous simplifier la vie.

Ouvrir le guide

Un accompagnement sur mesure

De la modification de plans au design d’intérieur, nous vous guidons à chaque étape.

Découvrir nos services

Détails supplémentaires

Estimation

Spécifications générales

Surface aménagée totale
1587 pi²
Rez-de-chaussée
789 pi²
Sous-sol
798 pi²
Largeur
30'0"
Profondeur
26'8"
Hauteur dessus fondations au faite
18'9"
Murs extérieurs
2 X 6
Murs extérieurs
2 X 6
Code Entrepreneur
D

Spécifications sur les pièces

Chambre(s)
3
Salle(s) de bain complète(s)
1
Demi Salle(s) de Bain
1
Type de garage
-
Superficie balcon et/ou perron abrité
29 pi²

Sous-sol

Pièces
Dimensions
Plafond
Chambre à coucher
10'0" x 10'0"
~ 8'0"
Garde-robe
5'0" x 2'0"
~ 8'0"
Chambre à coucher
10'0" x 10'0"
~ 8'0"
Garde-robe
5'0" x 2'0"
~ 8'0"
Chambre à coucher
10'0" x 14'0"
~ 8'0"
Garde-robe
2'0" x 7'0"
~ 8'0"
Salle de bain complète
5'2" x 10'0"
~ 8'0"
Salle de lavage
5'1" x 3'5"
~ 8'0"
Rangement
10'2" x 6'7"
~ 5'8"
Lingerie
1'4" x 4'0"
~ 8'0"

Rez-de-chaussée

Pièces
Dimensions
Plafond
Cuisine/dinette
8'4" x 18'0"
~ 8'0"
Garde-manger
2'0" x 2'0"
N/D
Salle de séjour/salle à manger
20'4" x 18'4"
~ 8'0"
Rangement
5'5" x 6'8"
~ 8'0"
Demie salle de bain ou coin toilette
4'6" x 6'8"
~ 8'0"
Entrée ou vestibule
10'4" x 4'2"
~ 10'7"
Garde-robe
6'0" x 2'5"
~ 6'8"
Perron
7'4" x 4'0"
N/D
Terrasse
10'0" x 5'0"
N/D

Plan maison moderne 3 chambres, abordable et spacieuse

Conçu d’abord et avant tout dans une pensée économique visant à maximiser les pi2 par l’usage entier du sous-sol, ce concept à entrée à palier se veut aussi une approche contemporaine fort attrayante pour des acheteurs à la recherche d’une maison intemporelle à la fois vivante et lumineuse.

À l’extérieur, l’usage de bloc architectural, de brique et de bois torréfié, jumelé à des lignes simples quant à la toiture, aux murs et à l’entrée principale, confèrent à la maison une sobriété qui saura traverser les années.

À l’intérieur, une percée de lumière naturelle et spectaculaire retient d’abord notre attention alors qu’on apprécie une garde-robe d’entrée de 6’ de largeur et un palier permettant l’accès à quelques personnes en simultané. Par la suite, on constate un secteur activités entièrement ouvert avec cuisine fort logeable, îlot-lunch de tout près de 8’ x 3’, rangement attenant et/ou garde-manger walk-in et coin toilette. Au sous-sol, passablement sorti du sol pour l’obtention de fenêtres appréciables, on remarque trois chambres de beau format, un coin buanderie, un rangement et une salle de bain complète avec combo douche/bain de 5’ x 5’.


Éléments distinctifs

Maison contemporaine à bas prix offrant 3 chambres.
Secteur activités entièrement ouvert au rez-de-chaussée et abondamment fenêtré.
Cuisine remarquable avec îlot-lunch de tout près de 8'x3' et garde-manger attenant.
Salle de bain avec combo douche/bain intégré de 5'x5'.
Approche solaire passive envisageable avec ce coin fenêtré orienté vers le sud.

Particularité(s) du plan

Chute à linge, Meuble(s) encastré(s), Ilôt, Bain et douche séparés, Garage spacieux

Style(s) architectural du plan

Contemporain / Zen, Moderne, Moderne rustique

Plans similaires
Logo Dessins Drummond image Dessins Drummond
Le modèle Phénix est protégé par la loi sur les droits d'auteur.

Les illustrations présentées peuvent différer du plan détaillé que vous recevrez, car ces derniers sont régulièrement ajustés afin de respecter les normes de construction en vigueur.

En savoir plus

Une question ou un commentaire sur ce plan ?

Information de contact

Votre demande

Ajouter vos images ou photos

Pour ajouter une ou des photos, veuillez cliquer ou glisser vos fichiers dans la zone ci-bas. Vous pouvez ajouter jusqu'à huit photos JPG ou JPEG. Cette opération n'est pas obligatoire.

Désolé, votre navigateur ne supporte pas l'envoi de fichier.