Vue avant - MODÈLE DE BASE - Plan de maison 2 chambres, plafond cathédral, grande terrasse abritée, Scandinave, sous-sol non fini - Bergen 2

Vue avant - MODÈLE DE BASE

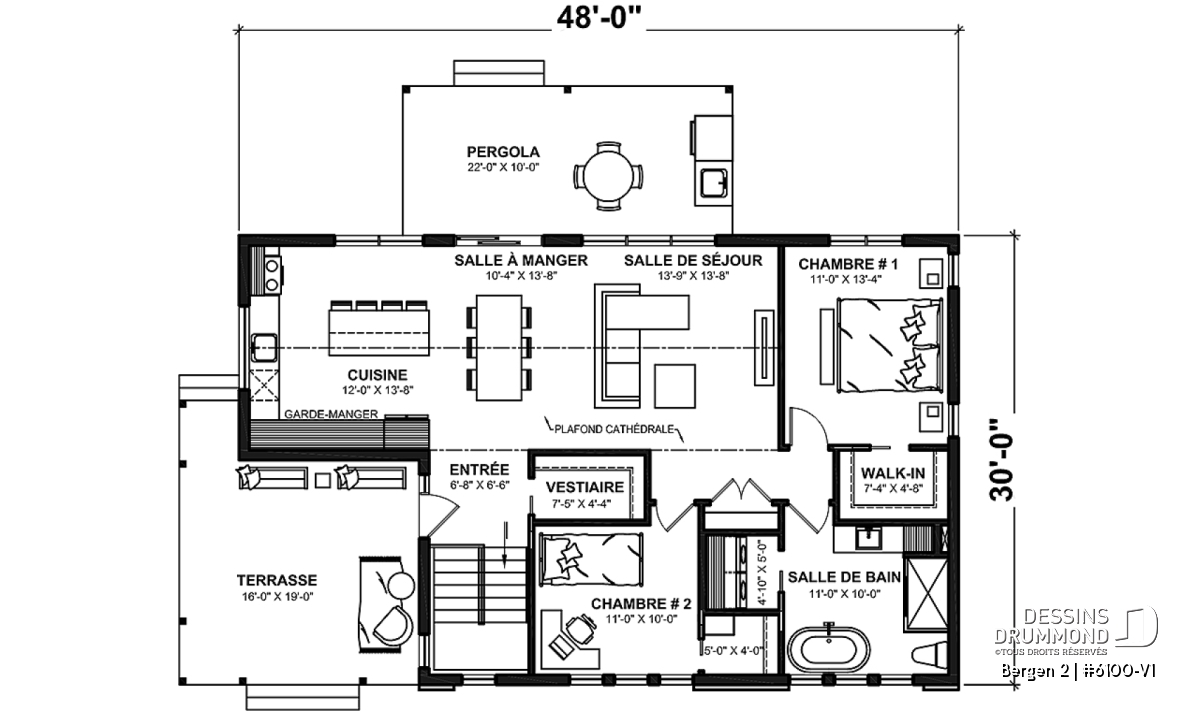
Rez-de-chaussée - Plan de maison 2 chambres, plafond cathédral, grande terrasse abritée, Scandinave, sous-sol non fini - Bergen 2

Rez-de-chaussée

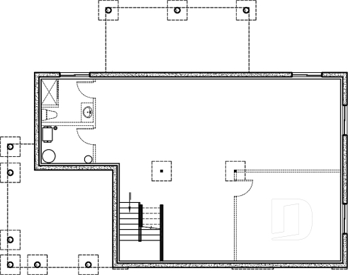
Sous-sol - Plan de maison 2 chambres, plafond cathédral, grande terrasse abritée, Scandinave, sous-sol non fini - Bergen 2

Sous-sol

Vue avant - MODÈLE DE BASE - Bergen 2

Vue avant - MODÈLE DE BASE

Élévation arrière - Bergen 2

Élévation arrière

Vue intérieure - Bergen 2

Vue intérieure

Bergen 2 Plan de maison 6100-V1

Plan de maison 2 chambres, plafond cathédral, grande terrasse abritée, Scandinave, sous-sol non fini

À partir de

1440$

Fiche technique sommaire Plan #6100-V1
Estimation ($) 351,366$
Surface habitable 1260 pi² Chambre 2
Salle de Bain 1 Salle d'eau -
Fondation incluse Sous-sol aménageable Garage -
Largeur 48'0" Profondeur 30'0"

Besoin d’aide ?

Nos experts vous guident dans votre projet grâce à plus de 30 bureaux au Québec.

Joignez-nous

Consultez notre guide utilisateur

Un outil conçu pour vous simplifier la vie.

Ouvrir le guide

Un accompagnement sur mesure

De la modification de plans au design d’intérieur, nous vous guidons à chaque étape.

Découvrir nos services

Les photos de cette maison peuvent différer du plan d'origine, duquel elles proviennent. Pour toute modification, veuillez contacter l’un de nos 30 bureaux.

Détails supplémentaires

Estimation

Spécifications générales

Surface aménagée totale
1260 pi²
Rez-de-chaussée
1260 pi²
Sous-sol
1260 pi²
Largeur
48'0"
Profondeur
30'0"
Hauteur dessus fondations au faite
27'3"
Murs extérieurs
2 X 6
Murs extérieurs
2 X 6
Sous-sol aménageable
Autres fondations disponibles (des frais peuvent s'appliquer)
Dalle flottante, Vide sanitaire, Dalle monolithique
Code Entrepreneur
C

Spécifications sur les pièces

Chambre(s)
2
Salle(s) de bain complète(s)
1
Demi Salle(s) de Bain
-
Type de garage
-
Superficie balcon et/ou perron abrité
-

Rez-de-chaussée

Pièces
Dimensions
Plafond
Terrasse abritée
16'0" x 19'0"
~ 8'0"
Chambre à coucher
11'0" x 10'0"
~ 8'0"
Walk-in
5'0" x 4'0"
~ 8'0"
Salle de bain complète
11'0" x 10'0"
~ 8'0"
Douche
3'0" x 5'0"
N/D
Lingerie
1'10" x 2'0"
N/D
Chambre à coucher
11'0" x 13'4"
~ 8'0"
Walk-in
7'4" x 4'8"
~ 8'0"
Salle à manger
10'4" x 13'8"
~ 17'0"
Salle de séjour
13'9" x 13'8"
~ 17'0"
Rangement
5'0" x 1'8"
~ 8'0"
Cuisine
12'0" x 13'8"
~ 17'0"
Îlot
6'8" x 3'0"
N/D
Garde-manger
7'0" x 2'0"
N/D
Pergola
22'0" x 10'0"
~ 8'4"
Entrée ou vestibule
6'8" x 6'6"
~ 8'0"
Walk-in
7'5" x 4'4"
~ 8'0"
Salle de lavage
4'10" x 5'0"
~ 8'0"
Rangement
5'0" x 1'8"
~ 8'0"

Sous-sol

Plan de maison scandinave avec 2 chambres avec superbe aménagement intérieur!

Le plan de maison Bergen 2 (#6100-V1) propose 1260 pi.ca. aménagés sur un seul plancher, excluant le sous-sol qui est non-fini. Cette maison de style Scandinave est une version légèrement retravaillée de son modèle de base, Bergen (#6100).

En effet la cuisine a été réaménagée et agrandie, le salle de lavage a disparu pour laisser place à un coin salle de lavage dans la salle de bain, et les chambres ont été repositionnées.

Une grande terrasse abritée accueil les propriétaires et les visiteurs, sous-entendant la possibilité d'un terrain avec vue à l'avant de la maison. À l'entrée se retrouve un grand vestiaire. Puis on découvre une cuisine avec grand îlot, une salle à manger de bon format ainsi qu'une salle de séjour à aire ouverte. Ce secteur reçoit aussi beaucoup de lumière naturelle ainsi qu'un plafond cathédral.

La chambre des parents possède une grande garde-robe de type walk-in et est séparée de l'autre chambre par une grande salle de bain. Cette dernière regroupe une grande douche et un bain séparés, ainsi qu'un coin salle de lavage. La chambre #2 pourrait aussi aisément se transformer en bureau pour télétravail.

Le sous-sol est non-fini, et vous pourrez l'aménager comme bon vous semble, au moment opportun.

Éléments distinctifs

L'estimation du coût de construction n'inclut pas la toiture de tôle.
Superbe maison moderne et rustique à la fois.
Grande chambre des maîtres avec garde-robe walk-in.
Chambre secondaire pouvant aisément se convertir en bureau.
Beau grand vestiaire à l'entrée.
Plafond cathédrale au secteur cuisine, salle à manger et salon.
Belle grande terrasse abritée à l'avant.
Beaucoup de lumière naturelle.
Sous-sol non fini, à aménager selon vos besoins immédiats ou futurs.

Particularité(s) du plan

Aire ouverte, Pergola, Salle de lavage au rez-de-chaussée, Terrasse abritée, Vestiaire, Ilôt, Walk-in ch. maîtres, Bain et douche séparés, Plafond cathédrale

Style(s) architectural du plan

Scandinave, En montagne, Rustique, Moderne, Moderne rustique, Vacances, bordure de lac, Contemporain / Zen, Transitionnel

beneva
beneva

Offrir la meilleure expérience d’assurance au Canada grâce à notre simplicité inégalée.

Oceania
Oceania
Porte de douche Marelia

Depuis notre fondation en 1995, Bains Oceania est engagé à offrir à ses clients une expérience unique et raffinée dans leur environnement spa résidentiel. Grâce à notre savoir-faire et à notre passion pour l’innovation, nous fabriquons ici, des produits de grande qualité, pour vous.

Oceania
Oceania
Porte de douche Marelia

Depuis notre fondation en 1995, Bains Oceania est engagé à offrir à ses clients une expérience unique et raffinée dans leur environnement spa résidentiel. Grâce à notre savoir-faire et à notre passion pour l’innovation, nous fabriquons ici, des produits de grande qualité, pour vous.

Plans similaires
Logo Dessins Drummond image Dessins Drummond
Le modèle Bergen 2 est protégé par la loi sur les droits d'auteur.

Les illustrations présentées peuvent différer du plan détaillé que vous recevrez, car ces derniers sont régulièrement ajustés afin de respecter les normes de construction en vigueur.

En savoir plus

Une question ou un commentaire sur ce plan ?

Information de contact

Votre demande

Ajouter vos images ou photos

Pour ajouter une ou des photos, veuillez cliquer ou glisser vos fichiers dans la zone ci-bas. Vous pouvez ajouter jusqu'à huit photos JPG ou JPEG. Cette opération n'est pas obligatoire.

Désolé, votre navigateur ne supporte pas l'envoi de fichier.