Vue avant - MODÈLE DE BASE - Plan de plain-pied scandinave, 2 chambres, grande cuisine, garde-manger, vestiaire et terrasse abritée - Tahoe 2

Vue avant - MODÈLE DE BASE

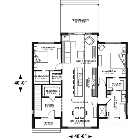
Rez-de-chaussée - Plan de plain-pied scandinave, 2 chambres, grande cuisine, garde-manger, vestiaire et terrasse abritée - Tahoe 2

Rez-de-chaussée

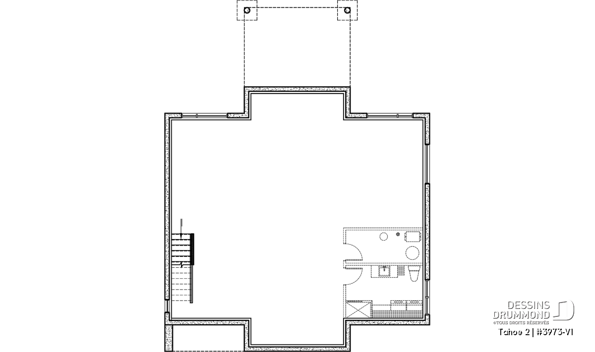
Sous-sol - Plan de plain-pied scandinave, 2 chambres, grande cuisine, garde-manger, vestiaire et terrasse abritée - Tahoe 2

Sous-sol

Vue avant - MODÈLE DE BASE - Tahoe 2

Vue avant - MODÈLE DE BASE

Vue arrière - MODÈLE DE BASE - Tahoe 2

Vue arrière - MODÈLE DE BASE

Vue intérieure - Tahoe 2

Vue intérieure

Tahoe 2 Plan de maison 3973-V1

Plan de plain-pied scandinave, 2 chambres, grande cuisine, garde-manger, vestiaire et terrasse abritée

À partir de

1440$

Fiche technique sommaire Plan #3973-V1
Estimation ($) 365,542$
Surface habitable 1408 pi² Chambre 1, 2
Salle de Bain 1 Salle d'eau -
Fondation incluse Sous-sol aménageable Garage -
Largeur 40'0" Profondeur 40'0"

Besoin d’aide ?

Nos experts vous guident dans votre projet grâce à plus de 30 bureaux au Québec.

Joignez-nous

Consultez notre guide utilisateur

Un outil conçu pour vous simplifier la vie.

Ouvrir le guide

Un accompagnement sur mesure

De la modification de plans au design d’intérieur, nous vous guidons à chaque étape.

Découvrir nos services

Les photos de cette maison peuvent différer du plan d'origine, duquel elles proviennent. Pour toute modification, veuillez contacter l’un de nos 30 bureaux.

Détails supplémentaires

Estimation

Spécifications générales

Surface aménagée totale
1408 pi²
Rez-de-chaussée
1408 pi²
Sous-sol
1408 pi²
Largeur
40'0"
Profondeur
40'0"
Hauteur dessus fondations au faite
23'0"
Murs extérieurs
2 X 6
Murs extérieurs
2 X 6
Sous-sol aménageable
Autres fondations disponibles (des frais peuvent s'appliquer)
Sous-sol aménageable + sortie extérieure (Rez-de-jardin), Dalle flottante, Vide sanitaire, Dalle monolithique
Code Entrepreneur
C

Spécifications sur les pièces

Chambre(s)
1, 2
Salle(s) de bain complète(s)
1
Demi Salle(s) de Bain
-
Type de garage
-
Superficie balcon et/ou perron abrité
39 pi²

Rez-de-chaussée

Pièces
Dimensions
Plafond
Entrée ou vestibule
8'4" x 8'7"
~ 9'0"
Walk-in
8'0" x 5'0"
~ 9'0"
Salle à manger
13'8" x 12'8"
~ 12'6"
Cuisine
13'8" x 12'0"
~ 12'6"
Îlot
12'0" x 3'4"
N/D
Garde-manger
4'10" x 5'5"
N/D
Salle de séjour
14'8" x 15'6"
~ 12'6"
Chambre à coucher
11'8" x 11'0"
~ 9'0"
Garde-robe
6'6" x 5'5"
N/D
Suite des maîtres
11'8" x 14'0"
~ 9'0"
Walk-in
8'0" x 5'0"
~ 9'0"
Salle de bain complète
8'0" x 11'0"
~ 9'0"
Douche
3'0" x 5'0"
N/D
Lingerie
1'6" x 1'10"
N/D
Terrasse abritée
16'0" x 12'0"
~ 12'0"
Perron abrité
9'8" x 4'0"
~ 8'0"

Sous-sol

Plain-pied de style Scandinave avec 2 chambres et grande terrasse abritée

Le plan de maison TAHOE 2 (#3973-v2) de type plain-pied et d'inspiration moderne scandinave propose 1408 pi. carré au rez-de-chaussée. Il est une version légèrement rapetisser du plan TAHOE (#3973). En plus d'une diminution de 39 pi.ca., les différences majeures résident à la laveuse-sécheuse qui ont été descendues au sous-sol, et à l'escalier (vers le sous-sol) qui a été déplacée afin d'être moins central.

L'entrée de la maison s'ouvre sur un grand vestiaire puis sur la salle à manger. La salle à manger est adjacente à la cuisine qui elle possède un grande îlot central pouvant accueillir aisément 5 convives. De plus, un grand garde-manger se retrouve près de la cuisine. Cette dernière est aussi ouverte sur la salle de séjour. Tout ce secteur central (salle à manger, cuisine et salle de séjour) reçoit un plafond cathédral. Une grande terrasse couverte est accessible du salon.

La chambre principale #1 offre une garde-robe de type walk-in d'approx. 40 pi.ca. en plus d'un accès direct à la salle de bain. Cette dernière propose un ban et un douche séparés. La chambre #2 peut devenir un espace versatile selon vos besoins, et possède aussi une garde-robe walk-in.

La fondation de BASE de ce plan inclut un sous-sol non-fini, à aménager. Il est important de noter que plusieurs types de fondation sont disponibles pour chacun de nos plans. Le coût approx. de construction inclut toujours la fondation de BASE précisée sur la fiche du plan.

Éléments distinctifs

Maison d'inspiration Scandinave.
Plain-pied 2 chambres.
Superbe terrasse abritée à l'arrière (inclus dans l'estimation du coût de construction).
Chambre des maîtres avec garde-robe de type walk-in, et accès privée à la salle de bain.
Cette dernière propose bain et douche séparés.
Secteur cuisine ouvert sur la salle à manger d'un côté et salon de l'autre.
Grand garde-manger et grand îlot à la cuisine.
Vestiaire à l'entrée avant.
Chambre #2 avec garde-robe walk-in. Cette chambre peut aussi être un bureau, ou un espace gym.
Le sous-sol est aménageable, donc inclus au plan, mais non-fini. D'autres types de fondation telle dalle monolithique, vide sanitaire, etc. sont disponibles pour TOUS nos plans.

Particularité(s) du plan

Bain et douche séparés, Garde-manger, Ilôt, Plafond à plus de 8', Aire ouverte, Plafond cathédrale, Salle de bain communicante, Vestiaire, Walk-in ch. maîtres, Bar à café

Style(s) architectural du plan

Scandinave, Moderne, Contemporain / Zen, Chalet, Chalet de ski

Ventilation Maximum
Ventilation Maximum

Entreprise manufacturière qui vends des ventilateurs de toiture, des clapets muraux et des entrées d'air.

Plans similaires
Logo Dessins Drummond image Dessins Drummond
Le modèle Tahoe 2 est protégé par la loi sur les droits d'auteur.

Les illustrations présentées peuvent différer du plan détaillé que vous recevrez, car ces derniers sont régulièrement ajustés afin de respecter les normes de construction en vigueur.

En savoir plus

Une question ou un commentaire sur ce plan ?

Information de contact

Votre demande

Ajouter vos images ou photos

Pour ajouter une ou des photos, veuillez cliquer ou glisser vos fichiers dans la zone ci-bas. Vous pouvez ajouter jusqu'à huit photos JPG ou JPEG. Cette opération n'est pas obligatoire.

Désolé, votre navigateur ne supporte pas l'envoi de fichier.