Vue avant - MODÈLE DE BASE - Maison d'inspiration scandinave de 2 à 4 chambres, vestiaire, garde-manger, sous-sol aménagé (optionnel $) - Uppsala

Vue avant - MODÈLE DE BASE

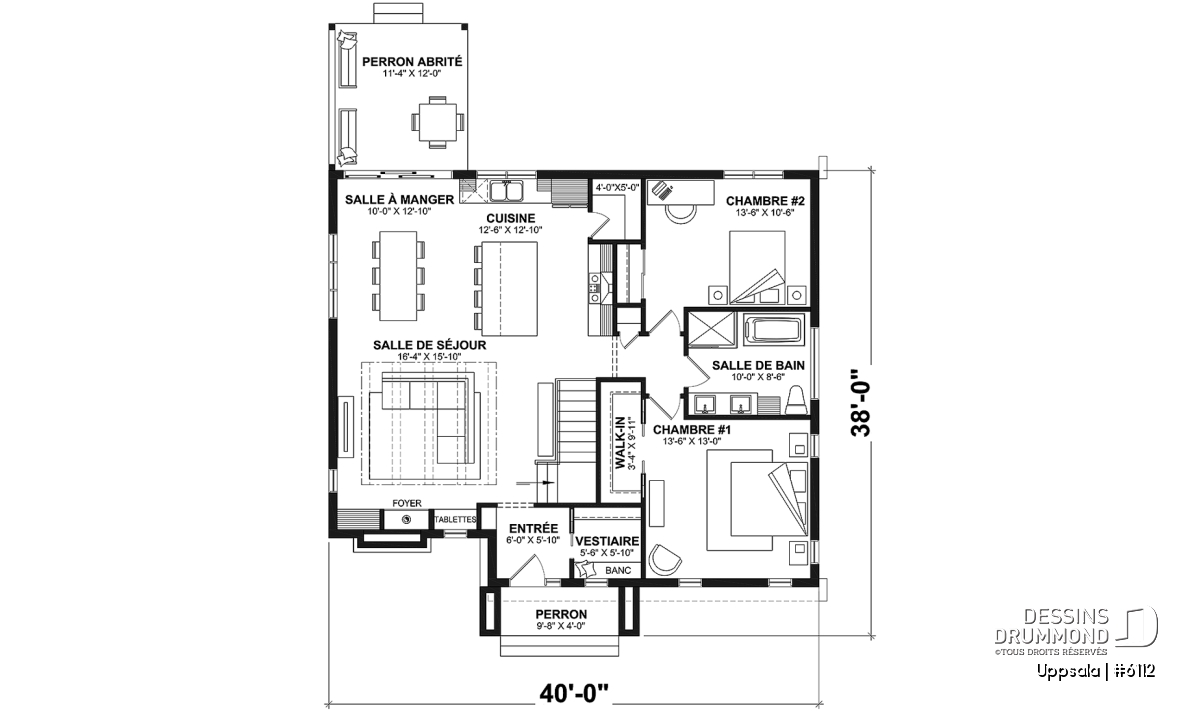
Rez-de-chaussée - Maison d'inspiration scandinave de 2 à 4 chambres, vestiaire, garde-manger, sous-sol aménagé (optionnel $) - Uppsala

Rez-de-chaussée

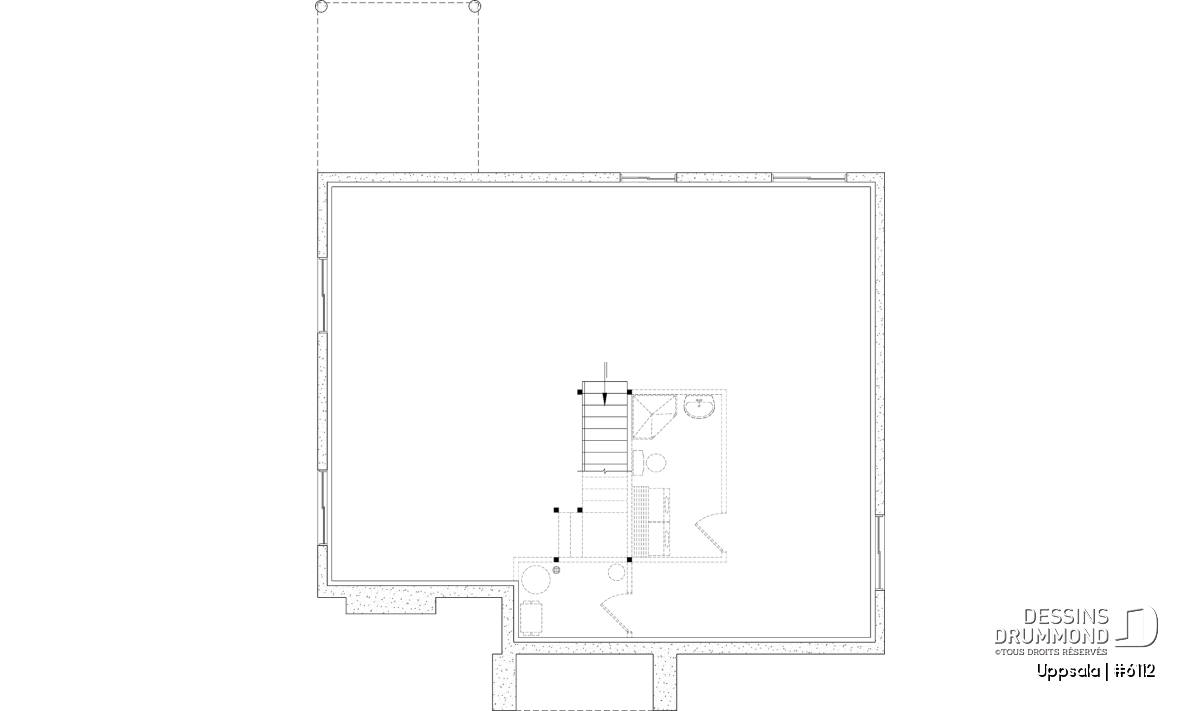
Sous-sol aménageable - Maison d'inspiration scandinave de 2 à 4 chambres, vestiaire, garde-manger, sous-sol aménagé (optionnel $) - Uppsala

Sous-sol aménageable

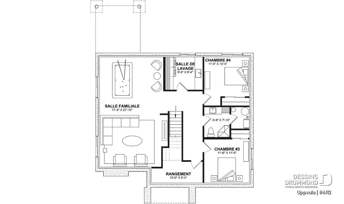
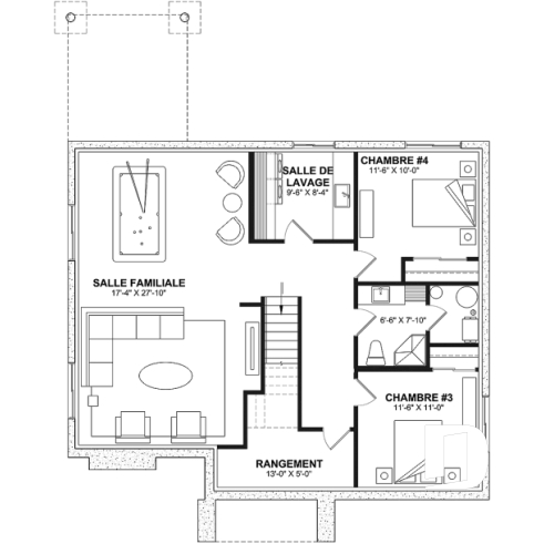
Sous-sol aménagé (Optionel $) - Maison d'inspiration scandinave de 2 à 4 chambres, vestiaire, garde-manger, sous-sol aménagé (optionnel $) - Uppsala

Sous-sol aménagé (Optionel $)

Vue avant - MODÈLE DE BASE - Uppsala

Vue avant - MODÈLE DE BASE

Vue avant - MODÈLE DE BASE - Uppsala

Vue avant - MODÈLE DE BASE

Élévation arrière - Uppsala

Élévation arrière

Vue intérieure - Uppsala

Vue intérieure

Uppsala Plan de maison 6112

Maison d'inspiration scandinave de 2 à 4 chambres, vestiaire, garde-manger, sous-sol aménagé (optionnel $)

À partir de

1440$

Fiche technique sommaire Plan #6112
Estimation ($) 358,798$ (Sous-sol non-fini) | 397,733$ (Sous-sol fini)
Surface habitable 1315 pi² Chambre 2, 3, 4
Salle de Bain 2 Salle d'eau -
Fondation incluse Sous-sol aménageable Garage -
Largeur 40'0" Profondeur 38'0"

Besoin d’aide ?

Nos experts vous guident dans votre projet grâce à plus de 30 bureaux au Québec.

Joignez-nous

Consultez notre guide utilisateur

Un outil conçu pour vous simplifier la vie.

Ouvrir le guide

Un accompagnement sur mesure

De la modification de plans au design d’intérieur, nous vous guidons à chaque étape.

Découvrir nos services

Photos du plan Uppsala

Les photos de cette maison peuvent différer du plan d'origine, duquel elles proviennent. Pour toute modification, veuillez contacter l’un de nos 30 bureaux.

Détails supplémentaires

Estimation

Spécifications générales

Surface aménagée totale
1315 pi²
Rez-de-chaussée
1315 pi²
Sous-sol aménageable
1315 pi²
Sous-sol aménagé (Optionel $)
1315 pi²
Largeur
40'0"
Profondeur
38'0"
Hauteur dessus fondations au faite
23'8"
Murs extérieurs
2 X 6
Murs extérieurs
2 X 6
Sous-sol aménageable
Autres fondations disponibles (des frais peuvent s'appliquer)
Sous-sol aménagé, Dalle flottante, Vide sanitaire, Dalle monolithique
Code Entrepreneur
C

Spécifications sur les pièces

Chambre(s)
2, 3, 4
Salle(s) de bain complète(s)
2
Demi Salle(s) de Bain
-
Type de garage
-
Superficie balcon et/ou perron abrité
175 pi²

Rez-de-chaussée

Pièces
Dimensions
Plafond
Perron
9'8" x 4'0"
N/D
Perron abrité
11'4" x 12'0"
~ 9'4"
Salle à manger
10'0" x 12'10"
~ 9'0"
Cuisine
12'6" x 12'10"
~ 9'0"
Îlot
4'6" x 7'8"
N/D
Garde-manger
4'0" x 5'0"
~ 9'0"
Entrée ou vestibule
6'0" x 5'10"
~ 9'0"
Vestiaire
5'6" x 5'10"
~ 9'0"
Chambre à coucher
13'6" x 13'0"
~ 9'0"
Walk-in
3'4" x 9'11"
~ 9'0"
Salle de bain
10'0" x 8'6"
~ 9'0"
Douche
4'0" x 3'0"
N/D
Lingerie
1'10" x 1'6"
N/D
Chambre à coucher
13'6" x 10'6"
~ 9'0"
Garde-robe
2'0" x 4'10"
~ 9'0"
Rangement
2'0" x 2'0"
~ 9'0"
Salle de séjour
16'4" x 15'10"
~ 10'0"

Sous-sol aménagé (Optionel $)

Pièces
Dimensions
Plafond
Chambre à coucher
11'6" x 11'0"
~ 8'0"
Garde-robe
2'0" x 5'0"
~ 8'0"
Rangement
13'0" x 5'0"
~ 8'0"
Chambre à coucher
11'6" x 10'0"
~ 8'0"
Garde-robe
7'0" x 2'0"
~ 8'0"
Salle de lavage
9'6" x 8'4"
~ 8'0"
Îlot
8'4" x 1'2"
N/D
Lingerie
8'4" x 1'2"
N/D
Salle de bain
6'6" x 7'10"
~ 8'0"
Lingerie
2'0" x 1'6"
N/D
Douche
3'0" x 3'0"
N/D
Pièce de mécanique
4'8" x 5'6"
~ 8'0"
Salle familiale
17'4" x 27'10"
~ 8'0"

Sous-sol aménageable

Nouvel extérieur pour un plancher intérieur très populaire!

En effet, ce nouveau plan UPPSALA (#6112) propose un extérieur d'inspiration Scandinave tout en intégrant l'aménagement intérieur de notre très populaire plan BARRINGTON 4 (#3153-v3). Ce dernier, propose un style davantage nordique, farmhouse.

Le plan dont il est question ici, UPPSALA (#6112) regroupe tous les éléments recherchés par les familles avec 2+ enfants ou adolescents. En entrée, vous vous retrouvez dans un vestibule fermé avec vestiaire de style walk-in et banc.

Puis vous accédez à l'espace à aire ouverte regroupant cuisine, salle à manger et salon. Un garde-manger et un grand îlot sont localisés à la cuisine. La salle de séjour a un plafond surélevé à plus de 10' avec fausses poutres décoratives (coûts des poutres non inclus dans notre estimation).

Tous le rez-de-chaussée, autre que le salon, offre un plafond à 9'. La chambre des parents dispose d'une grande garde-robe de type walk-in et est adjacente à une grande salle de bain familiale. Cette dernière inclut un bain et douche séparés ainsi que 2 lavabos. Une chambre secondaire est également localisée au plancher principal pour un total de 2 chambres à ce niveau. De plus, une belle terrasse abritée de 11'4'' x 12'0'' est accessible de la salle à manger, pratique pour prendre les repas à l'extérieur le beau temps venu!

L'aménagement du sous-sol est prévu dans le plan que vous recevrez et propose ce qui suit: 2 chambres additionnelles, pour un total de 4 en tout, ainsi qu'une salle de lavage, salle familiale, salle de douche ainsi que des espaces de rangement additionnel.

Pour les familles recherchant le confort des maisons champêtres mais un look extérieur avant-gardiste, le plan UPPSALA sera un coup de coeur assuré!!

Éléments distinctifs

Plan de maison de style épuré Scandinave, avec sous-sol aménagé (optionnel $).
Total possible de 4 chambres possibles, 2 salles de bain et 2 salons.
Plafond à 9' sur tout le rez-de-chaussée sauf au salon où il est à plus de 10'. Noter que le coût des poutres aménagées au salon n'est pas inclus dans notre estimation de coût de construction pour ce modèle.
Cuisine avec grand îlot central et garde-manger.
Foyer au salon avec aménagement de tablettes.
Walk-in à la chambre des parents.
Grande salle de bain familiale avec bain et douche séparés, et 2 lavabos.

*Sous-sol complètement aménagé incluant un grand espace familial, la salle de lavage, une salle de bain et 2 chambres additionnelles.

*Si vous souhaitez acheter le plan du sous-sol aménagé, tel que présenté sur la page de ce plan, veuillez sélectionner cette option dans le panier d'achat, dans la section "Sélectionner votre fondation". Si vous ne sélectionnez pas cette option, vous recevrez le sous-sol non fini, sans frais additionnel.

Particularité(s) du plan

Aire ouverte, Garde-manger, Ilôt, Plafond avec fausses poutres, Terrasse abritée, Walk-in ch. maîtres, Vestiaire, Banquette, Bain et douche séparés, Lavabo double, Plafond à plus de 8', Tablettes, Foyer, Salle de jeux, Meuble(s) encastré(s), Entrepreneur, Auto-Construction

Style(s) architectural du plan

Scandinave, Ranch, Moderne, Contemporain / Zen, Transitionnel

beneva
beneva

Offrir la meilleure expérience d’assurance au Canada grâce à notre simplicité inégalée.

Ventilation Maximum
Ventilation Maximum

Entreprise manufacturière qui vends des ventilateurs de toiture, des clapets muraux et des entrées d'air.

Oceania
Oceania
Bain Primrose

Depuis notre fondation en 1995, Bains Oceania est engagé à offrir à ses clients une expérience unique et raffinée dans leur environnement spa résidentiel. Grâce à notre savoir-faire et à notre passion pour l’innovation, nous fabriquons ici, des produits de grande qualité, pour vous.

Willki
Willki

Les panneaux de pierre vissés Willki transforment vos projets en un clin d'œil. Faciles à installer, durables et écoresponsables, ils offrent le look naturel de la pierre pour une fraction du coût. *Peut nécessiter une modification au plan

Boiseries Raymond
Boiseries Raymond
Porte 151

Chef de file dans le préassemblage de portes intérieures au Québec. Cette force nous permet de vous fournir une variété de modèles préassemblées selon vos spécifications et selon le volume de production requis.

Boiseries Raymond
Boiseries Raymond
Porte 151

Chef de file dans le préassemblage de portes intérieures au Québec. Cette force nous permet de vous fournir une variété de modèles préassemblées selon vos spécifications et selon le volume de production requis.

Boiseries Raymond
Boiseries Raymond
Porte 151

Chef de file dans le préassemblage de portes intérieures au Québec. Cette force nous permet de vous fournir une variété de modèles préassemblées selon vos spécifications et selon le volume de production requis.

Plans similaires
Logo Dessins Drummond image Dessins Drummond
Le modèle Uppsala est protégé par la loi sur les droits d'auteur.

Les illustrations présentées peuvent différer du plan détaillé que vous recevrez, car ces derniers sont régulièrement ajustés afin de respecter les normes de construction en vigueur.

En savoir plus

Une question ou un commentaire sur ce plan ?

Information de contact

Votre demande

Ajouter vos images ou photos

Pour ajouter une ou des photos, veuillez cliquer ou glisser vos fichiers dans la zone ci-bas. Vous pouvez ajouter jusqu'à huit photos JPG ou JPEG. Cette opération n'est pas obligatoire.

Désolé, votre navigateur ne supporte pas l'envoi de fichier.