Version couleur no. 2 - Vue avant - Plan de maisons jumelées 2 à 4 chambres par unité, 2 salons, grand îlot, 2 salles de bain, buanderie - Sanford

Version couleur no. 2 - Vue avant

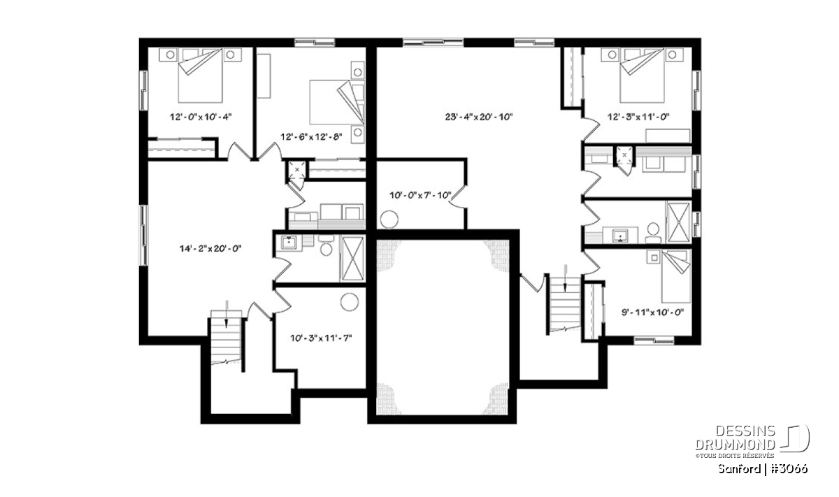
Rez-de-chaussée - Plan de maisons jumelées 2 à 4 chambres par unité, 2 salons, grand îlot, 2 salles de bain, buanderie - Sanford

Rez-de-chaussée

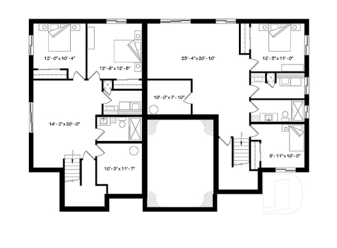
Sous-sol - Plan de maisons jumelées 2 à 4 chambres par unité, 2 salons, grand îlot, 2 salles de bain, buanderie - Sanford

Sous-sol

Vue avant - MODÈLE DE BASE - Sanford

Vue avant - MODÈLE DE BASE

Élévation arrière - Sanford

Élévation arrière

Version couleur no. 1 - Vue avant - Sanford

Version couleur no. 1 - Vue avant

Version couleur no. 4 - Vue avant - Sanford

Version couleur no. 4 - Vue avant

Version couleur no. 5 - Vue avant - Sanford

Version couleur no. 5 - Vue avant

Sanford Plan de maison 3066

Plan de maisons jumelées 2 à 4 chambres par unité, 2 salons, grand îlot, 2 salles de bain, buanderie

À partir de

2810$

Fiche technique sommaire Plan #3066
Estimation ($) - (Sous-sol non-fini) | 750,897$ (Sous-sol fini)
Surface habitable 4522 pi² Chambre 2, 3, 4
Salle de Bain 2 Salle d'eau -
Fondation incluse Sous-sol aménagé Garage 1 voiture
Largeur 64'0" Profondeur 44'0"

Besoin d’aide ?

Nos experts vous guident dans votre projet grâce à plus de 30 bureaux au Québec.

Joignez-nous

Consultez notre guide utilisateur

Un outil conçu pour vous simplifier la vie.

Ouvrir le guide

Un accompagnement sur mesure

De la modification de plans au design d’intérieur, nous vous guidons à chaque étape.

Découvrir nos services

Détails supplémentaires

Estimation

Spécifications générales

Surface aménagée totale
4522 pi²
Rez-de-chaussée
2261 pi²
Sous-sol
2261 pi²
Largeur
64'0"
Profondeur
44'0"
Hauteur dessus fondations au faite
21'2"
Murs extérieurs
2 X 6
Murs extérieurs
2 X 6
Code Entrepreneur
MG

Spécifications sur les pièces

Chambre(s)
2, 3, 4
Salle(s) de bain complète(s)
2
Demi Salle(s) de Bain
-
Type de garage
1 voiture (331 pi²)
Superficie balcon et/ou perron abrité
95 pi²

Spécifications des unités

Gauche
Droite
Surface aménagée totale
2152 pi²
2370 pi²
Sous-sol
1076 pi²
1185 pi²
Rez-de-chaussée
1076 pi²
1185 pi²
Largeur
26' 0"
38' 0"
Profondeur
44' 0"
44' 0"
Hauteur dessus fondations au faite
21' 2"
21' 2"
Murs extérieurs
2 X 6
2 X 6
Type de fondation
Sous-sol aménagé
Sous-sol aménagé
Chambre(s)
4
4
Salle(s) de bain
2
2
Demi Salle(s) de Bain
-
-
Type de garage
-
1 voiture (331 pi2)
Espace boni aménageable
-
-
Rangement boni
-
-

Rez-de-chaussée

Pièces
Dimensions
Plafond
Cuisine
12'10" x 10'2"
~ 9'0"
Salle à manger
12'10" x 9'6"
~ 9'0"
Salle de séjour
14'7" x 14'0"
~ 9'0"
Chambre à coucher
12'0" x 13'0"
~ 9'0"
Garde-robe
6'6" x 2'0"
~ 9'0"
Chambre à coucher
10'4" x 12'0"
~ 9'0"
Garde-robe
4'10" x 2'0"
~ 9'0"
Salle de bain complète
8'2" x 9'2"
~ 9'0"
Entrée ou vestibule
7'2" x 5'3"
~ 10'8"
Douche
2'0" x 4'10"
~ 10'8"
Garde-robe
2'0" x 4'10"
~ 8'0"
Cuisine
12'0" x 8'6"
~ 9'0"
Garde-manger
3'4" x 8'0"
~ 9'0"
Salle de séjour
13'0" x 13'4"
~ 9'0"
Salle à manger
10'0" x 13'4"
~ 9'0"
Chambre à coucher
13'0" x 12'0"
~ 9'0"
Garde-robe
7'4" x 2'0"
~ 9'0"
Salle de bain complète
13'0" x 8'0"
~ 9'0"
Chambre à coucher
10'4" x 10'4"
~ 9'0"
Garde-robe
2'0" x 6'4"
~ 9'0"
Garage
14'11" x 20'0"
~ 13'0"
Entrée ou vestibule
7'8" x 5'4"
~ 8'0"
Garde-robe
2'0" x 4'7"
~ 8'0"
Perron abrité
10'4" x 4'0"
N/D
Patio
10'0" x 8'0"
N/D
Patio
10'0" x 8'0"
N/D
Perron abrité
6'0" x 9'0"
N/D

Sous-sol

Pièces
Dimensions
Plafond
Chambre à coucher
12'0" x 10'4"
~ 8'0"
Garde-robe
7'8" x 2'0"
~ 8'0"
Chambre à coucher
12'6" x 12'8"
~ 8'0"
Garde-robe
6'6" x 2'0"
~ 8'0"
Salle familiale
14'2" x 10'0"
~ 8'0"
Salle de lavage
8'10" x 5'6"
~ 8'0"
Salle de bain
10'3" x 5'6"
~ 8'0"
Pièce de mécanique
10'3" x 11'7"
~ 8'0"
Salle familiale
23'4" x 20'10"
~ 8'0"
Pièce de mécanique
10'0" x 7'10"
~ 8'0"
Chambre à coucher
9'11" x 10'0"
~ 8'0"
Garde-robe
2'0" x 6'4"
~ 2'0"
Chambre à coucher
12'3" x 11'0"
~ 8'0"
Garde-robe
2'0" x 6'9"
~ 8'0"
Salle de lavage
12'3" x 5'10"
~ 8'0"
Salle de bain
12'3" x 5'0"
~ 8'0"

Jumelé contemporain offrant deux planchers différents dont l’un avec garage

Vous êtes à la recherche d’un plan de jumelé qui saura rejoindre 2 types de clientèle différente ?

Découvrez ce nouveau modèle de maison jumelée pour famille nombreuse, l’une des unités offrant un garage, dont le caractère « familial » propose une possibilité de 4 à 5 chambres par unité, ainsi que deux salles de séjour, ou un salon et une salle de jeux, à votre convenance!

Alors que l’extérieur suggère une façade principale avec différentes nuances comme tant apprécié des propriétaires d’un jumelé, l’intérieur propose quant à lui une unité de gauche de plus petit format, et une unité de droite plus spacieuse avec garage simple.

Au sous-sol aménagé, pour chacune des unités retrouvez 2 chambres, une salle de bain complète, une grande pièce de rangement, une buanderie avec une pratique chute à linge provenant du rez-de-chaussée, ainsi qu’un grande salle familiale pouvant facilement se convertir en chambre #4 ou salle de jeux, ou même en espace devoirs pour les enfants.

Au rez-de-chaussée, pour chaque unité, on retrouve un secteur activités entièrement ouvert avec cuisine remarquable dotée d’un îlot central. Pour l’unité de droite, les espaces sont plus confortables et on y retrouve aussi un garde-manger de bon format. Dans les 2 unités on apprécie deux belles chambres au rez-de-chaussée ainsi qu’une salle de bain complète avec douche de bon format et une chute à linge. Sans oublier une entrée principale avec large garde-robe et plafond à plus de 10’ ainsi qu’une porte en provenance du garage, pour l’unité de droite.

Intéressés par un plan de maisons jumelées versatile et différent, voilà le vôtre!

Éléments distinctifs

Plan de maisons jumelées dont l'une des unité possède un garage simple.
Plafond à 9' au rez-de-chaussée.
Entrée split avec plafond à plus de 10'.
Possibilité de 5 chambres par unité si la salle de jeux du sous-sol est convertie en chambre.
Deux unités de formats différents offrant des planchers différents.
La cuisine de l'unité de droite comporte un grand garde-manger.
Planchers à aire ouverte.
Chute à linge dans les 2 unités.
Deux salles familiales par unité.

Particularité(s) du plan

Garde-manger, Chute à linge, Ilôt, Aire ouverte, Plafond à plus de 8', Lavabo double

Style(s) architectural du plan

Contemporain / Zen, Moderne, Moderne rustique

Plans similaires
Logo Dessins Drummond image Dessins Drummond
Le modèle Sanford est protégé par la loi sur les droits d'auteur.

Les illustrations présentées peuvent différer du plan détaillé que vous recevrez, car ces derniers sont régulièrement ajustés afin de respecter les normes de construction en vigueur.

En savoir plus

Une question ou un commentaire sur ce plan ?

Information de contact

Votre demande

Ajouter vos images ou photos

Pour ajouter une ou des photos, veuillez cliquer ou glisser vos fichiers dans la zone ci-bas. Vous pouvez ajouter jusqu'à huit photos JPG ou JPEG. Cette opération n'est pas obligatoire.

Désolé, votre navigateur ne supporte pas l'envoi de fichier.