Vue avant - MODÈLE DE BASE - Plan de maison jumelée à entrée split, 3 chambres, 1.5 salles de bain par unité, grand balcon avant, poêle - Aspen Lodge

Vue avant - MODÈLE DE BASE

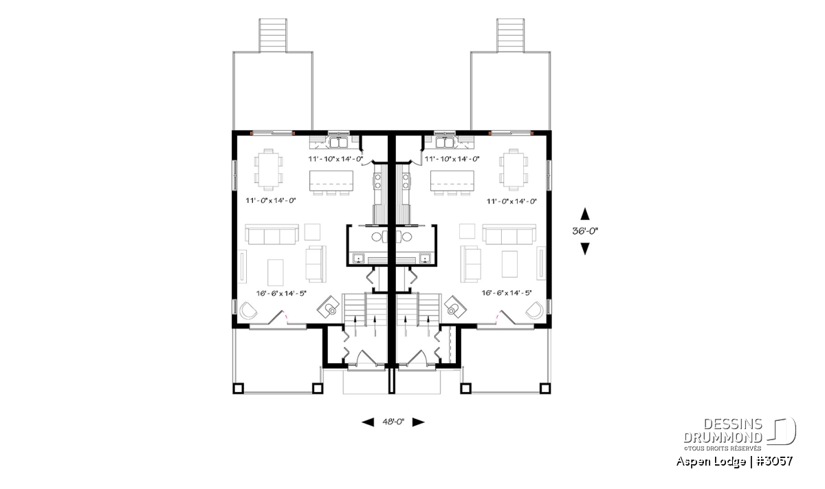
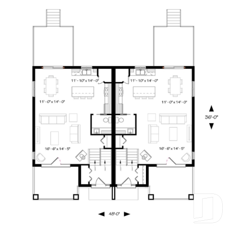
Rez-de-chaussée - Plan de maison jumelée à entrée split, 3 chambres, 1.5 salles de bain par unité, grand balcon avant, poêle - Aspen Lodge

Rez-de-chaussée

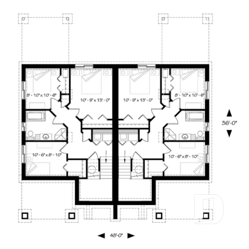
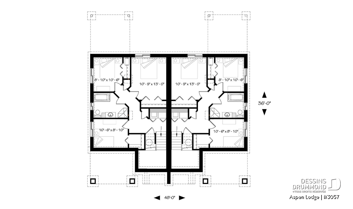
Sous-sol - Plan de maison jumelée à entrée split, 3 chambres, 1.5 salles de bain par unité, grand balcon avant, poêle - Aspen Lodge

Sous-sol

Élévation arrière - Aspen Lodge

Élévation arrière

Aspen Lodge Plan de maison 3057

Plan de maison jumelée à entrée split, 3 chambres, 1.5 salles de bain par unité, grand balcon avant, poêle

À partir de

2300$

Fiche technique sommaire Plan #3057
Estimation ($) - (Sous-sol non-fini) | 596,017$ (Sous-sol fini)
Surface habitable 3112 pi² Chambre 2, 3
Salle de Bain 1 Salle d'eau 1
Fondation incluse Sous-sol aménagé Garage -
Largeur 48'0" Profondeur 36'0"

Besoin d’aide ?

Nos experts vous guident dans votre projet grâce à plus de 30 bureaux au Québec.

Joignez-nous

Consultez notre guide utilisateur

Un outil conçu pour vous simplifier la vie.

Ouvrir le guide

Un accompagnement sur mesure

De la modification de plans au design d’intérieur, nous vous guidons à chaque étape.

Découvrir nos services

Détails supplémentaires

Estimation

Spécifications générales

Surface aménagée totale
3112 pi²
Rez-de-chaussée
1556 pi²
Sous-sol
1556 pi²
Largeur
48'0"
Profondeur
36'0"
Hauteur dessus fondations au faite
24'4"
Murs extérieurs
2 X 6
Murs extérieurs
2 X 6
Conception pour l'entrepreneur
Code Entrepreneur
MD

Spécifications sur les pièces

Chambre(s)
2, 3
Salle(s) de bain complète(s)
1
Demi Salle(s) de Bain
1
Type de garage
-
Superficie balcon et/ou perron abrité
-

Spécifications des unités

LOGEMENT 1 (GAUCHE)
LOGEMENT 2 (DROITE)
Surface aménagée totale
1556 pi²
1556 pi²
Sous-sol
778 pi²
778 pi²
Rez-de-chaussée
778 pi²
778 pi²
Largeur
24' 0"
24' 0"
Profondeur
35' 8"
35' 0"
Hauteur dessus fondations au faite
24' 4"
24' 4"
Murs extérieurs
2 X 6
2 X 6
Type de fondation
Sous-sol aménagé
Sous-sol aménagé
Chambre(s)
3
3
Salle(s) de bain
1
1
Demi Salle(s) de Bain
1
1
Type de garage
-
-
Espace boni aménageable
-
-
Rangement boni
-
-

Sous-sol

Pièces
Dimensions
Plafond
Chambre à coucher
10'9" x 13'0"
~ 8'0"
Garde-robe
7'9" x 2'0"
~ 8'0"
Chambre à coucher
8'10" x 10'6"
~ 8'0"
Garde-robe
6'5" x 2'0"
~ 8'0"
Chambre à coucher
10'6" x 8'10"
~ 8'0"
Garde-robe
4'6" x 4'8"
~ 8'0"
Salle de bain complète
10'6" x 7'8"
~ 8'0"
Chambre à coucher
0'9" x 13'0"
~ 8'0"
Garde-robe
7'9" x 2'0"
~ 8'0"
Chambre à coucher
8'10" x 10'6"
~ 8'0"
Garde-robe
6'5" x 2'0"
~ 8'0"
Chambre à coucher
10'6" x 8'10"
~ 8'0"
Garde-robe
4'6" x 4'8"
~ 8'0"
Salle de bain complète
10'6" x 7'8"
~ 8'0"
Salle de lavage
5'0" x 3'3"
~ 8'0"
Salle de lavage
5'0" x 3'3"
~ 8'0"
Rangement
2'8" x 2'4"
~ 8'0"
Rangement
2'8" x 2'4"
~ 8'0"

Rez-de-chaussée

Pièces
Dimensions
Plafond
Cuisine
11'10" x 14'0"
~ 8'0"
Garde-manger
4'0" x 4'0"
~ 8'0"
Cuisine
11'10" x 14'0"
~ 8'0"
Garde-manger
4'0" x 4'0"
~ 8'0"
Salle à manger
11'0" x 14'0"
~ 8'0"
Salle à manger
11'0" x 14'0"
~ 8'0"
Salle de séjour
16'6" x 14'5"
~ 8'0"
Garde-robe
3'9" x 2'0"
~ 8'0"
Salle de séjour
16'6" x 14'5"
~ 8'0"
Garde-robe
3'9" x 2'0"
~ 8'0"
Salle de bain
5'11" x 5'8"
~ 8'0"
Salle de bain
5'11" x 5'8"
~ 8'0"
Entrée ou vestibule
6'7" x 5'6"
~ 12'6"
Garde-robe
5'8" x 2'0"
~ 12'6"
Entrée ou vestibule
6'7" x 5'6"
~ 12'6"
Garde-robe
5'8" x 2'0"
~ 12'6"
Douche
0'0" x 0'0"
N/D

Modèle de maisons jumelées aux allures rustiques, avec superbes balcons avant abrités!

L'élément qui attire d'abord notre attention est incontestablement les magnifiques balcons avant abrités, permettant ainsi aux occupants de venir admirer le paysage en sirotant un cocktail ou café du matin, à l’abri des intempéries. Le nouveau plan de maison jumelée no. 3057, aussi nommé Aspen Lodge de Dessins Drummond, propose un aménagement intérieur des plus audacieux de par la localisation de ses 3 chambres (par unité).

Une fois passé l'entrée split proposant une garde-robe et plafond à 12 pieds, un escalier vous amène au sous-sol qui est ressorti de terre, maximisant ainsi la lumière naturelle. Vous y retrouvez 3 chambres dont l'une avec garde-robe de type walk-in. Une salle de bain complète y est aménagée avec bain et douche séparés pour plus de confort. Une garde-robe avec laveuse-sécheuse est aussi localisée au sous-sol. Deux pratiques espaces rangements complètent ce secteur de la maison.

Le rez-de-chaussée est entièrement à aire ouverte à l'exception, bien entendu, de la salle d'eau. Cette dernière est localisée adjacente à la cuisine. Le salon (ou salle de séjour) est de bon format et offre un accès direct au balcon abrité sur l’avant de la maison. Bien bel endroit permettant de profiter du panorama tout en confort.

La cuisine propose un pratique garde-manger ainsi qu’un îlot pouvant recevoir de 3 à 4 invités. Elle est ouverte à la salle à manger avec porte-patio ainsi qu’au salon. Ce dernier est de bon format permettant d’asseoir confortablement 6 personnes, selon l’aménagement de l’espace.

N’hésitez pas à communiquer avec l’une de nos 22 agences si vous souhaitez modifier ce modèle afin de mieux refléter les besoins de votre famille, ou futurs locataires!

Éléments distinctifs

Maison jumelée de style chalet de ski rustic
Entrée split avec garde-robe et plafond à plus de 12'.
3 chambres au sous-sol recevant beaucoup de lumière naturelle.
Rez-de-chaussée entièrement à aire ouverte.
Grand garde-manger et îlot à la cuisine.
Accès à un balcon abrité via le salon, idéal pour y prendre l'apéro.
Pratique salle d'eau près de la cuisine.

Particularité(s) du plan

Ilôt, Aire ouverte, Poêle à bois, Garde-manger, Terrasse abritée, Bain et douche séparés, Planchers inversés

Style(s) architectural du plan

Moderne rustique, Américain, Rustique, Chalet, Transitionnel, Chalet de ski, Vacances, bordure de lac, Champêtre, En montagne

Plans similaires
Logo Dessins Drummond image Dessins Drummond
Le modèle Aspen Lodge est protégé par la loi sur les droits d'auteur.

Les illustrations présentées peuvent différer du plan détaillé que vous recevrez, car ces derniers sont régulièrement ajustés afin de respecter les normes de construction en vigueur.

En savoir plus

Une question ou un commentaire sur ce plan ?

Information de contact

Votre demande

Ajouter vos images ou photos

Pour ajouter une ou des photos, veuillez cliquer ou glisser vos fichiers dans la zone ci-bas. Vous pouvez ajouter jusqu'à huit photos JPG ou JPEG. Cette opération n'est pas obligatoire.

Désolé, votre navigateur ne supporte pas l'envoi de fichier.