Vue avant - MODÈLE DE BASE - Plan de maison jumelée contemporaine mid-century, 2 chambres, îlot à la cuisine, sous-sol aménageable - Ambrose 3

Vue avant - MODÈLE DE BASE

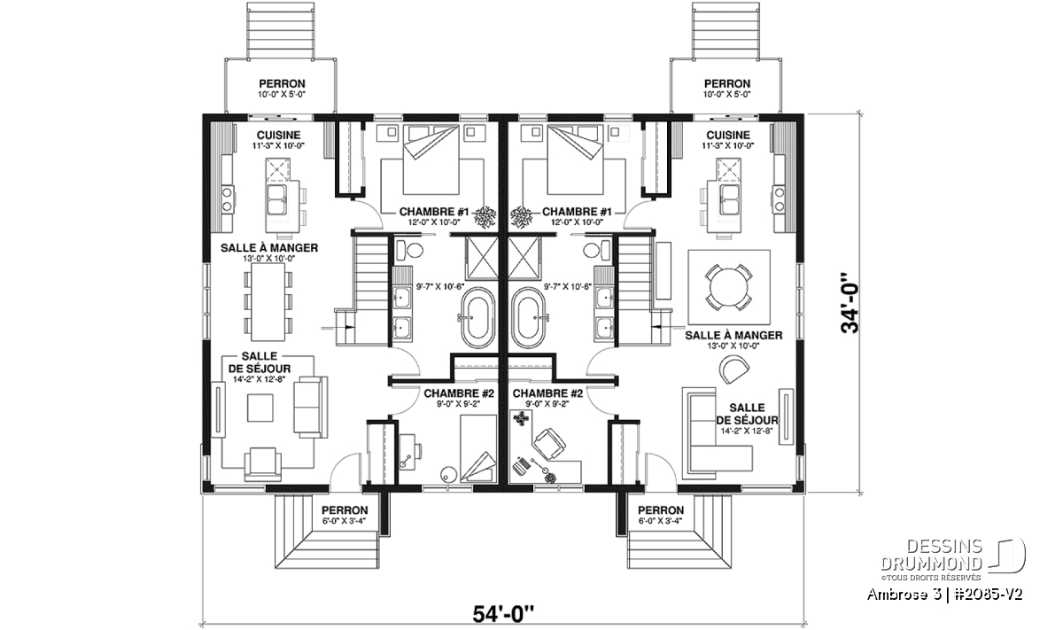
Rez-de-chaussée - Plan de maison jumelée contemporaine mid-century, 2 chambres, îlot à la cuisine, sous-sol aménageable - Ambrose 3

Rez-de-chaussée

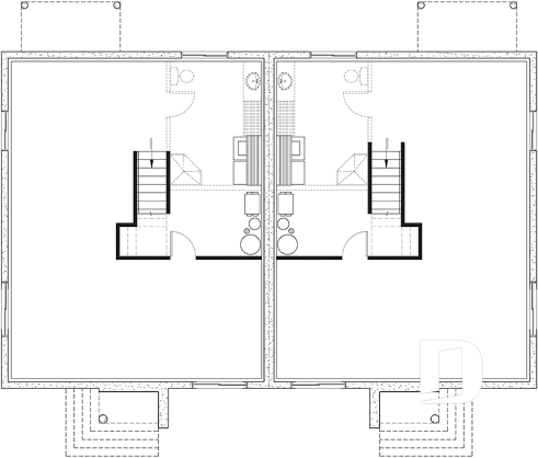
Sous-sol - Plan de maison jumelée contemporaine mid-century, 2 chambres, îlot à la cuisine, sous-sol aménageable - Ambrose 3

Sous-sol

Élévation arrière - Ambrose 3

Élévation arrière

Ambrose 3 Plan de maison 2085-V2

Plan de maison jumelée contemporaine mid-century, 2 chambres, îlot à la cuisine, sous-sol aménageable

À partir de

1895$

Fiche technique sommaire Plan #2085-V2
Estimation ($) 554,092$
Surface habitable 1836 pi² Chambre 2
Salle de Bain 1 Salle d'eau -
Fondation incluse Sous-sol aménageable Garage -
Largeur 54'0" Profondeur 34'0"

Besoin d’aide ?

Nos experts vous guident dans votre projet grâce à plus de 30 bureaux au Québec.

Joignez-nous

Consultez notre guide utilisateur

Un outil conçu pour vous simplifier la vie.

Ouvrir le guide

Besoin d’une assurance habitation ?

Pour obtenir votre prix, c’est juste ici

Obtenir une soumission

Photos du plan Ambrose 3

Les photos de cette maison peuvent différer du plan d'origine, duquel elles proviennent. Pour toute modification, veuillez contacter l’un de nos 30 bureaux.

Détails supplémentaires

Estimation

Spécifications générales

Surface aménagée totale
1836 pi²
Rez-de-chaussée
1836 pi²
Sous-sol
1836 pi²
Largeur
54'0"
Profondeur
34'0"
Hauteur dessus fondations au faite
19'11"
Murs extérieurs
2 X 6
Murs extérieurs
2 X 6
Sous-sol aménageable
Autres fondations disponibles (des frais peuvent s'appliquer)
Dalle flottante, Vide sanitaire, Dalle monolithique
Code Entrepreneur
MA

Spécifications sur les pièces

Chambre(s)
2
Salle(s) de bain complète(s)
1
Demi Salle(s) de Bain
-
Type de garage
-
Superficie balcon et/ou perron abrité
36 pi²

Spécifications des unités

Unité de gauche
Unité de droite
Surface aménagée totale
884 pi²
884 pi²
Rez-de-chaussée
884 pi²
884 pi²
Largeur
26' 0"
26' 0"
Profondeur
34' 0"
34' 0"
Hauteur dessus fondations au faite
19' 11"
19' 11"
Murs extérieurs
2 X 6
2 X 6
Type de fondation
Sous-sol aménageable
Sous-sol aménageable
Chambre(s)
2
2
Salle(s) de bain
1
1
Demi Salle(s) de Bain
-
-
Type de garage
-
-
Espace boni aménageable
-
-
Rangement boni
-
-

Rez-de-chaussée

Pièces
Dimensions
Plafond
Salle de séjour
14'2" x 12'8"
~ 8'0"
Garde-robe
2'2" x 5'6"
~ 8'0"
Salle de bain complète
9'7" x 10'6"
~ 8'0"
Salle à manger
13'0" x 10'0"
~ 8'0"
Chambre à coucher
9'0" x 9'2"
~ 8'0"
Garde-robe
4'0" x 2'0"
~ 8'0"
Chambre à coucher
12'0" x 10'0"
~ 8'0"
Garde-robe
2'0" x 6'6"
~ 8'0"
Salle à manger
13'0" x 10'0"
~ 8'0"
Salle de séjour
14'2" x 12'8"
~ 8'0"
Garde-robe
2'2" x 5'6"
~ 8'0"
Cuisine/dinette
11'3" x 10'0"
~ 8'0"
Garde-manger
1'0" x 3'4"
N/D
Cuisine/dinette
11'3" x 10'0"
~ 8'0"
Garde-manger
1'0" x 3'4"
N/D
Chambre à coucher
9'0" x 9'2"
~ 8'0"
Garde-robe
4'0" x 2'0"
~ 8'0"
Chambre à coucher
12'0" x 10'0"
~ 8'0"
Garde-robe
2'0" x 6'6"
~ 8'0"
Salle de bain complète
9'7" x 10'6"
~ 8'0"
Perron
6'0" x 3'4"
N/D
Terrasse
10'0" x 5'0"
N/D
Perron
6'0" x 3'4"
N/D
Terrasse
10'0" x 5'0"
N/D

Sous-sol

Plan de maison jumelé contemporaine avec superbe plancher

Avec la popularité sans cesse grandissante de ce type de construction, Dessins Drummond vous suggère ici un modèle jumelé de style contemporain à la fois distinctif et plutôt simple à ériger afin d’offrir ce logis à un prix de vente fort attrayant pour la clientèle intéressée.

Alors que l’extérieur nous accroche l’œil avec ses portes et fenêtres de teinte foncée jumelées à un parement horizontal de simili-bois et un bloc architectural de teinte pâle, l’intérieur se veut lui aussi contemporain dans son approche et par le biais de secteurs activités ( cuisine/dînette, salle à manger et salle de séjour ) entièrement ouverts avec îlot-lunch aux cuisines et escalier aménagé en ligne droite, sans marches d’angle, vers le sous-sol. Notons d’ailleurs l’aménagement de deux salles de bain avec douche indépendante et accès de la chambre des maîtres ainsi qu’une option avec coin buanderie intégré pour ceux qui préfèrent leur coin laveuse/sécheuse au rez-de-chaussée.

Découvrez le 2085-V1 ou jumelé similaire de style « craftsman » pour un extérieur véritablement différent et un aménagement intérieur offrant d’autres options de cuisines et salles de bains.

Éléments distinctifs

Maison jumelée très tendance de style contemporain.
Entrée avant avec garde-robe.
Espace conviviale à aire ouverte de la cuisine jusqu'au séjour.
Cuisine avec comptoir lunch et porte patio.
2 options différentes pour la salle de bain qui sera aménagée avec, ou sans, coin laveuse/sécheuse.

Particularité(s) du plan

Ilôt, Aire ouverte

Style(s) architectural du plan

Contemporain / Zen, Moderne, Mid-century

Plans similaires
Logo Dessins Drummond image Dessins Drummond
Le modèle Ambrose 3 est protégé par la loi sur les droits d'auteur.

Les illustrations présentées peuvent différer du plan détaillé que vous recevrez, car ces derniers sont régulièrement ajustés afin de respecter les normes de construction en vigueur.

En savoir plus

Une question ou un commentaire sur ce plan ?

Information de contact

Votre demande

Ajouter vos images ou photos

Pour ajouter une ou des photos, veuillez cliquer ou glisser vos fichiers dans la zone ci-bas. Vous pouvez ajouter jusqu'à huit photos JPG ou JPEG. Cette opération n'est pas obligatoire.

Désolé, votre navigateur ne supporte pas l'envoi de fichier.