Vue avant - MODÈLE DE BASE - Plan de maison intergénérationnelle, 2 grands logements, entrée commune, beau style champêtre - Doremi

Vue avant - MODÈLE DE BASE

Rez-de-chaussée - Plan de maison intergénérationnelle, 2 grands logements, entrée commune, beau style champêtre - Doremi

Rez-de-chaussée

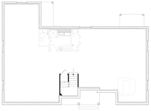
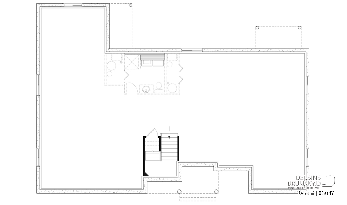
Sous-sol - Plan de maison intergénérationnelle, 2 grands logements, entrée commune, beau style champêtre - Doremi

Sous-sol

Élévation arrière - Doremi

Élévation arrière

Doremi Plan de maison 3047

Plan de maison intergénérationnelle, 2 grands logements, entrée commune, beau style champêtre

À partir de

1895$

Fiche technique sommaire Plan #3047
Estimation ($) 599,474$
Surface habitable 1979 pi² Chambre 2, 3
Salle de Bain 2 Salle d'eau -
Fondation incluse Sous-sol aménageable Garage -
Largeur 60'0" Profondeur 42'0"

Besoin d’aide ?

Nos experts vous guident dans votre projet grâce à plus de 30 bureaux au Québec.

Joignez-nous

Consultez notre guide utilisateur

Un outil conçu pour vous simplifier la vie.

Ouvrir le guide

Un accompagnement sur mesure

De la modification de plans au design d’intérieur, nous vous guidons à chaque étape.

Découvrir nos services

Détails supplémentaires

Estimation

Spécifications générales

Surface aménagée totale
1979 pi²
Rez-de-chaussée
1979 pi²
Sous-sol
1979 pi²
Largeur
60'0"
Profondeur
42'0"
Hauteur dessus fondations au faite
21'6"
Murs extérieurs
2 X 6
Murs extérieurs
2 X 6
Sous-sol aménageable
Autres fondations disponibles (des frais peuvent s'appliquer)
Dalle flottante, Vide sanitaire, Dalle monolithique
Code Entrepreneur
MA

Spécifications sur les pièces

Chambre(s)
2, 3
Salle(s) de bain complète(s)
2
Demi Salle(s) de Bain
-
Type de garage
-
Superficie balcon et/ou perron abrité
78 pi²

Spécifications des unités

LOGEMENT 1 (PRINCIPALE)
LOGEMENT 2 (SECONDAIRE)
Surface aménagée totale
1181 pi²
798 pi²
Rez-de-chaussée
1181 pi²
798 pi²
Largeur
39' 8"
32' 0"
Profondeur
42' 0"
32' 0"
Hauteur dessus fondations au faite
21' 6"
21' 6"
Murs extérieurs
2 X 6
2 X 6
Type de fondation
Sous-sol aménageable
Sous-sol aménageable
Chambre(s)
2
1
Salle(s) de bain
1
1
Demi Salle(s) de Bain
-
-
Type de garage
-
-
Espace boni aménageable
-
-
Rangement boni
-
-

Rez-de-chaussée

Pièces
Dimensions
Plafond
Salle de séjour
14'8" x 14'0"
~ 8'0"
Salle de séjour
12'0" x 13'0"
~ 8'0"
Cuisine/salle à manger
20'0" x 11'0"
~ 8'0"
Chambre à coucher
11'0" x 15'0"
~ 8'0"
Chambre à coucher
9'0" x 10'0"
~ 8'0"
Salle de bain complète
7'0" x 11'2"
~ 8'0"
Terrasse
5'0" x 10'0"
N/D
Terrasse
10'0" x 5'0"
N/D
Perron abrité
15'8" x 5'0"
N/D
Chambre à coucher
11'0" x 12'8"
~ 8'0"
Cuisine
12'0" x 9'4"
~ 8'0"
Salle à manger
13'0" x 10'0"
~ 8'0"
Salle de lavage
6'0" x 2'10"
~ 8'0"
Entrée ou vestibule
15'4" x 8'8"
~ 8'0"
Salle de bain complète
7'0" x 9'0"
~ 8'0"
Entrée ou vestibule
4'8" x 9'2"
~ 8'0"
Garde-robe
2'0" x 5'2"
~ 8'0"
Garde-robe
5'2" x 2'4"
~ 8'0"

Sous-sol

Plan de maison bi-génération proposant 2 grands logements et sous-sol non-fini à aménager

.

Éléments distinctifs

Vestibule commun de bien beau format et recevant l'escalier vers le sous-sol. Secteur activités ouvert et passablement en lumière pour chacun des logements. Îlot-lunch à chacune des cuisines. Coin buanderie prévu au rez-de-chaussée du logement des grand-parents.

Particularité(s) du plan

Bain et douche séparés, Ilôt, Aire ouverte, Ilôt, Salle de lavage au rez-de-chaussée

Style(s) architectural du plan

Champêtre, Européen, Ranch, Nordique

Plans similaires
Logo Dessins Drummond image Dessins Drummond
Le modèle Doremi est protégé par la loi sur les droits d'auteur.

Les illustrations présentées peuvent différer du plan détaillé que vous recevrez, car ces derniers sont régulièrement ajustés afin de respecter les normes de construction en vigueur.

En savoir plus

Une question ou un commentaire sur ce plan ?

Information de contact

Votre demande

Ajouter vos images ou photos

Pour ajouter une ou des photos, veuillez cliquer ou glisser vos fichiers dans la zone ci-bas. Vous pouvez ajouter jusqu'à huit photos JPG ou JPEG. Cette opération n'est pas obligatoire.

Désolé, votre navigateur ne supporte pas l'envoi de fichier.