Vue avant - MODÈLE DE BASE - Plan de maison de plain-pied avec sous-sol aménagé optionnel ($), 1 à 4 chambres, superbe chambre des parents - Ripley 2

Vue avant - MODÈLE DE BASE

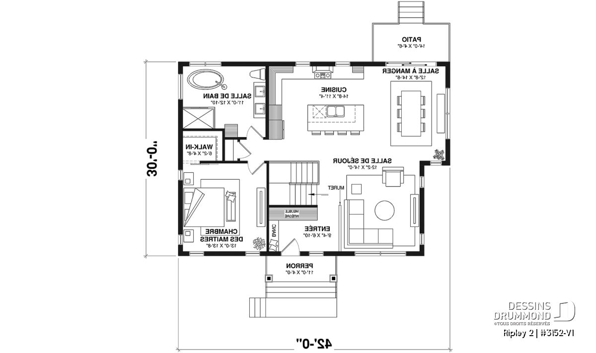
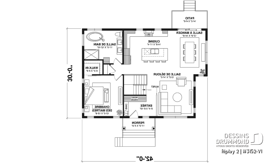
Rez-de-chaussée - Plan de maison de plain-pied avec sous-sol aménagé optionnel ($), 1 à 4 chambres, superbe chambre des parents - Ripley 2

Rez-de-chaussée

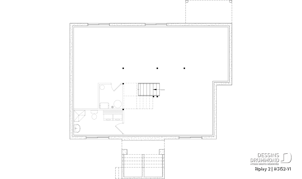
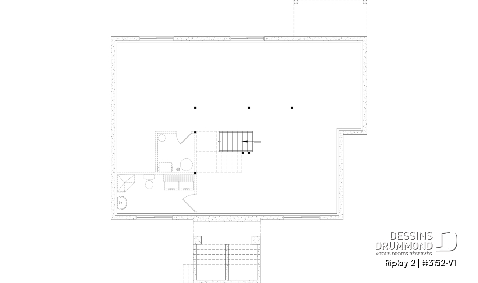
Sous-sol aménageable - Plan de maison de plain-pied avec sous-sol aménagé optionnel ($), 1 à 4 chambres, superbe chambre des parents - Ripley 2

Sous-sol aménageable

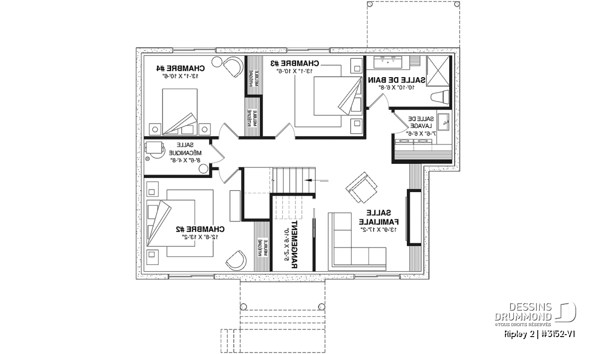
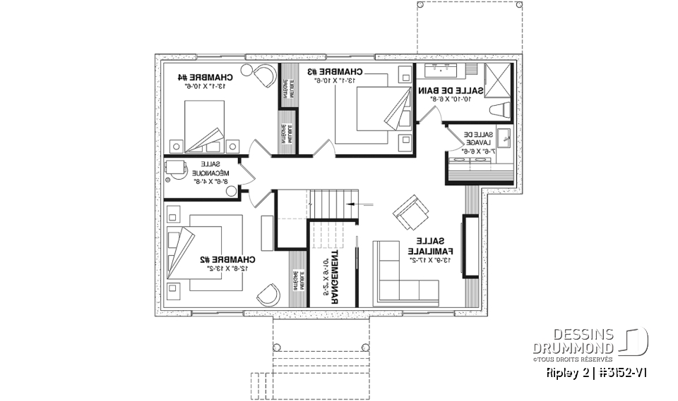
Sous-sol aménagé (Optionel $) - Plan de maison de plain-pied avec sous-sol aménagé optionnel ($), 1 à 4 chambres, superbe chambre des parents - Ripley 2

Sous-sol aménagé (Optionel $)

Vue avant - MODÈLE DE BASE - Ripley 2

Vue avant - MODÈLE DE BASE

Vue avant - MODÈLE DE BASE - Ripley 2

Vue avant - MODÈLE DE BASE

Élévation arrière - Ripley 2

Élévation arrière

Vue intérieure - Ripley 2

Vue intérieure

Vue intérieure - Ripley 2

Vue intérieure

Ripley 2 Plan de maison 3152-V1

Plan de maison de plain-pied avec sous-sol aménagé optionnel ($), 1 à 4 chambres, superbe chambre des parents

À partir de

1440$

Fiche technique sommaire Plan #3152-V1
Estimation ($) 300,023$ (Sous-sol non-fini) | 336,711$ (Sous-sol fini)
Surface habitable 1204 pi² Chambre 1, 2, 3, 4
Salle de Bain 2 Salle d'eau -
Fondation incluse Sous-sol aménageable Garage -
Largeur 42'0" Profondeur 30'0"

Besoin d’aide ?

Nos experts vous guident dans votre projet grâce à plus de 30 bureaux au Québec.

Joignez-nous

Consultez notre guide utilisateur

Un outil conçu pour vous simplifier la vie.

Ouvrir le guide

Besoin d’une assurance habitation ?

Pour obtenir votre prix, c’est juste ici

Obtenir une soumission

Les photos de cette maison peuvent différer du plan d'origine, duquel elles proviennent. Pour toute modification, veuillez contacter l’un de nos 30 bureaux.

Détails supplémentaires

Estimation

Spécifications générales

Surface aménagée totale
1204 pi²
Rez-de-chaussée
1204 pi²
Sous-sol aménageable
1204 pi²
Sous-sol aménagé (Optionel $)
1204 pi²
Largeur
42'0"
Profondeur
30'0"
Hauteur dessus fondations au faite
23'11"
Murs extérieurs
2 X 6
Murs extérieurs
2 X 6
Sous-sol aménageable
Autres fondations disponibles (des frais peuvent s'appliquer)
Sous-sol aménagé, Dalle flottante, Vide sanitaire, Dalle monolithique
Code Entrepreneur
C

Spécifications sur les pièces

Chambre(s)
1, 2, 3, 4
Salle(s) de bain complète(s)
2
Demi Salle(s) de Bain
-
Type de garage
-
Superficie balcon et/ou perron abrité
44 pi²

Sous-sol aménagé (Optionel $)

Pièces
Dimensions
Plafond
Chambre à coucher
12'8" x 13'2"
~ 8'0"
Garde-robe
6'6" x 2'0"
~ 8'0"
Pièce de mécanique
8'6" x 4'8"
~ 8'0"
Chambre à coucher
13'1" x 10'6"
~ 8'0"
Garde-robe
5'1" x 2'0"
~ 8'0"
Chambre à coucher
13'1" x 10'6"
~ 8'0"
Garde-robe
5'1" x 2'0"
~ 8'0"
Salle de bain
10'10" x 6'8"
~ 8'0"
Douche
4'0" x 3'0"
N/D
Lingerie
1'4" x 1'4"
N/D
Salle de lavage
7'6" x 6'6"
~ 8'0"
Salle familiale
13'9" x 17'2"
~ 8'0"
Rangement
9'10" x 5'2"
~ 8'0"

Rez-de-chaussée

Pièces
Dimensions
Plafond
Perron abrité
11'0" x 4'0"
~ 13'10"
Entrée ou vestibule
9'4" x 6'10"
~ 9'0"
Salle de séjour
12'2" x 14'0"
~ 9'0"
Salle à manger
12'8" x 14'8"
~ 9'0"
Patio
14'0" x 4'6"
N/D
Cuisine
14'8" x 11'4"
~ 9'0"
Îlot
8'8" x 4'0"
N/D
Salle de bain complète
11'0" x 12'10"
~ 9'0"
Douche
5'0" x 3'4"
N/D
Lingerie
2'0" x 2'0"
N/D
Rangement
3'4" x 2'0"
~ 9'0"
Chambre à coucher
13'0" x 13'8"
~ 9'0"
Walk-in
6'2" x 4'8"
~ 9'0"

Sous-sol aménageable

Maison familiale de style farmhouse moderne, de petit format, propose jusqu'à 4 chambres, 2 salles de bain et 2 salons!

Le plan de maison Ripley 2 (3152-V1) propose 1204 pi.ca. aménagés sur chacun des planchers. Il s'agit en fait d'une version réaménagée et agrandie du plan d'origine Ripley (3152-BH) qui n'offrait que 2 chambres versus 4 pour celui-ci, si vous optez pour le sous-sol aménagé (optionnel $).

Le rez-de-chaussée s'ouvre sur une belle entrée proposant un meuble intégré faisant office de garde-robe, ainsi que d'un banc, pratique pour y déposer les paquets ou s'y asseoir! Un muret sépare l'entrée de la salle de séjour créant ainsi un coin permettant l'aménagement d'un fauteuil modulaire ou en L.

Tout le secteur gauche de la maison est à aire ouverte faisant de ce modèle, le set-up idéal pour recevoir famille et amis. À noter que le secteur cuisine et salle à manger sont largement lumineux et serait parfait pour une orientation sud-est, sinon... le plan se vend également en version "inversée", vous permettant ainsi de profiter d'un maximum d'ensoleillement.

Le sous-sol, entièrement aménagé (*optionnel) et sorti de terre, sera parfait pour vos enfants et adolescents. On y retrouve 3 chambres lumineuses qui se partagent une salle de douche. De plus, une salle familiale, idéale pour "gamer", est centralement localisée et de bon format. Ce plancher est complété d'une salle de lavage avec cuve ainsi que d'une salle mécanique et d'un rangement.

L'aménagement versatile des 2 planchers de cette maison vous permettront d'y voir grandir vos enfants, lors des différentes étapes de leur vie!
---
*Si vous souhaitez acheter le plan du sous-sol aménagé tel que proposé sur la page du ce plan, veuillez sélectionner cette option dans le panier d'achat, dans la section "Sélectionner votre fondation". Si vous ne sélectionnez pas cette option, vous recevrez le sous-sol non fini, sans frais additionnel.

Éléments distinctifs

Plain pied de style Farmhouse moderne avec *sous-sol aménagé (optionnel $).
Entrée avec meuble intégré ainsi qu'un banc.
4 chambres au total, si vous choisissez d'aménager le sous-sol, idéal pour les familles avec enfants plus âgés, car 3 des chambres sont au sous-sol sorti de terre.
Chambre des parents au plancher principal et avec accès à une grande salle de bain complète regroupant 2 lavabos, en plus d'un bain et une douche séparés.
Salle de lavage au sous-sol.
Salle familiale au sous-sol, pratique pour les jeunes.
Salle à manger ouverte sur la cuisine et le salon.
Plan versatile permettant l'aménagement d'un bureau ou d'un gym, en utilisant l'une des 4 chambres, par exemple.
---
*Si vous souhaitez acheter le plan du sous-sol aménagé tel que proposé sur la page du ce plan, veuillez sélectionner cette option dans le panier d'achat, dans la section "Sélectionner votre fondation". Si vous ne sélectionnez pas cette option, vous recevrez le sous-sol non fini, sans frais additionnel.

Particularité(s) du plan

Aire ouverte, Bain et douche séparés, Ilôt, Meuble(s) encastré(s), Vestibule, Walk-in ch. maîtres, Banquette, Lavabo double, Entrepreneur, Auto-Construction, Plafond à plus de 8'

Style(s) architectural du plan

Transitionnel, Nordique, Farmhouse moderne, Champêtre, Moderne rustique, Ranch, Rustique, Américain

Boiseries Raymond
Boiseries Raymond
Porte Masonite 650

Chef de file dans le préassemblage de portes intérieures au Québec. Cette force nous permet de vous fournir une variété de modèles préassemblées selon vos spécifications et selon le volume de production requis.

Boiseries Raymond
Boiseries Raymond
Porte Masonite 650

Chef de file dans le préassemblage de portes intérieures au Québec. Cette force nous permet de vous fournir une variété de modèles préassemblées selon vos spécifications et selon le volume de production requis.

Boiseries Raymond
Boiseries Raymond
Porte Masonite 650

Chef de file dans le préassemblage de portes intérieures au Québec. Cette force nous permet de vous fournir une variété de modèles préassemblées selon vos spécifications et selon le volume de production requis.

Plans similaires
Logo Dessins Drummond image Dessins Drummond
Le modèle Ripley 2 est protégé par la loi sur les droits d'auteur.

Les illustrations présentées peuvent différer du plan détaillé que vous recevrez, car ces derniers sont régulièrement ajustés afin de respecter les normes de construction en vigueur.

En savoir plus

Une question ou un commentaire sur ce plan ?

Information de contact

Votre demande

Ajouter vos images ou photos

Pour ajouter une ou des photos, veuillez cliquer ou glisser vos fichiers dans la zone ci-bas. Vous pouvez ajouter jusqu'à huit photos JPG ou JPEG. Cette opération n'est pas obligatoire.

Désolé, votre navigateur ne supporte pas l'envoi de fichier.