Vue avant - MODÈLE DE BASE - Plan maison éco-responsable 1 à 4 chambres, bureau, foyer, mezzanine, vestiaire, s-sol aménagé optionnel ($) - Intervalle

Vue avant - MODÈLE DE BASE

Rez-de-chaussée - Plan maison éco-responsable 1 à 4 chambres, bureau, foyer, mezzanine, vestiaire, s-sol aménagé optionnel ($) - Intervalle

Rez-de-chaussée

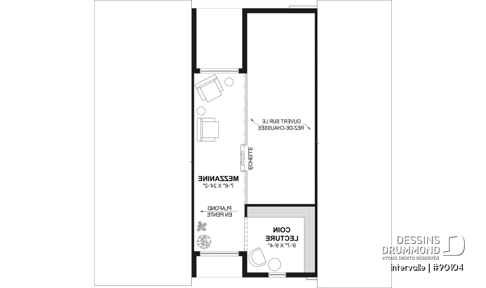
Espace boni - Plan maison éco-responsable 1 à 4 chambres, bureau, foyer, mezzanine, vestiaire, s-sol aménagé optionnel ($) - Intervalle

Espace boni

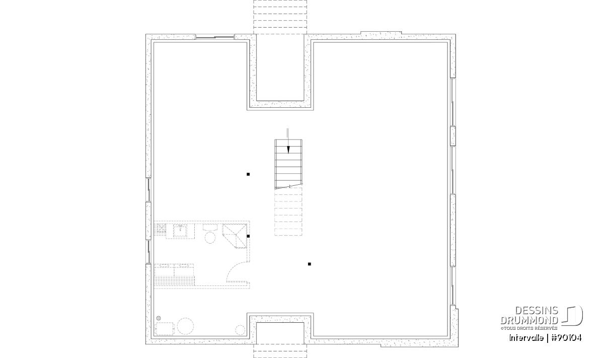
Sous-sol aménageable - Plan maison éco-responsable 1 à 4 chambres, bureau, foyer, mezzanine, vestiaire, s-sol aménagé optionnel ($) - Intervalle

Sous-sol aménageable

Sous-sol aménagé (Optionel $) - Plan maison éco-responsable 1 à 4 chambres, bureau, foyer, mezzanine, vestiaire, s-sol aménagé optionnel ($) - Intervalle

Sous-sol aménagé (Optionel $)

Vue gauche - Intervalle

Vue gauche

Vue droite - Intervalle

Vue droite

Vue arrière - MODÈLE DE BASE - Intervalle

Vue arrière - MODÈLE DE BASE

Vue arrière - MODÈLE DE BASE - Intervalle

Vue arrière - MODÈLE DE BASE

Intervalle Plan de maison 90104

Plan maison éco-responsable 1 à 4 chambres, bureau, foyer, mezzanine, vestiaire, s-sol aménagé optionnel ($)

À partir de

1600$

Fiche technique sommaire Plan #90104
Estimation ($) 402,864$ (Sous-sol non-fini) | 430,607$ (Sous-sol fini)
Surface habitable 1670 pi² Chambre 1, 2, 3, 4
Salle de Bain 2 Salle d'eau -
Fondation incluse Sous-sol aménageable Garage -
Largeur 38'4" Profondeur 38'8"

Besoin d’aide ?

Nos experts vous guident dans votre projet grâce à plus de 30 bureaux au Québec.

Joignez-nous

Consultez notre guide utilisateur

Un outil conçu pour vous simplifier la vie.

Ouvrir le guide

Un accompagnement sur mesure

De la modification de plans au design d’intérieur, nous vous guidons à chaque étape.

Découvrir nos services

Détails supplémentaires

Estimation

Spécifications générales

Surface aménagée totale
1670 pi²
Rez-de-chaussée
1370 pi²
Espace boni
300 pi²
Sous-sol aménageable
1370 pi²
Sous-sol aménagé (Optionel $)
1370 pi²
Largeur
38'4"
Profondeur
38'8"
Hauteur dessus fondations au faite
21'0"
Murs extérieurs
2 X 6
Murs extérieurs
2 X 6
Sous-sol aménageable
Autres fondations disponibles (des frais peuvent s'appliquer)
Sous-sol aménagé
Code Entrepreneur
D

Spécifications sur les pièces

Chambre(s)
1, 2, 3, 4
Salle(s) de bain complète(s)
2
Demi Salle(s) de Bain
-
Type de garage
-
Superficie balcon et/ou perron abrité
20 pi²

Rez-de-chaussée

Pièces
Dimensions
Plafond
Entrée ou vestibule
7'0" x 9'8"
~ 8'0"
Rangement
6'2" x 1'10"
N/D
Lingerie
3'0" x 1'10"
N/D
Rangement
3'0" x 1'10"
N/D
Bureau à domicile
12'0" x 9'0"
~ 8'0"
Garde-robe
5'8" x 3'0"
~ 8'0"
Salle de bain complète
12'0" x 11'4"
~ 8'0"
Toilette en cabine
5'0" x 3'0"
~ 8'0"
Douche
6'6" x 3'0"
N/D
Lingerie
3'0" x 1'8"
N/D
Salle de séjour
17'0" x 12'2"
~ 13'3"
Patio
6'6" x 8'6"
N/D
Chambre à coucher
12'0" x 13'4"
~ 8'0"
Garde-robe
11'8" x 2'0"
~ 8'0"
Garde-robe
8'5" x 2'0"
~ 8'0"
Perron
6'6" x 3'0"
N/D
Cuisine/salle à manger
17'10" x 17'10"
~ 13'3"
Garde-manger
9'0" x 6'4"
~ 8'0"
Îlot
10'0" x 3'0"
N/D
Vestiaire
7'7" x 6'4"
~ 8'0"

Sous-sol aménagé (Optionel $)

Pièces
Dimensions
Plafond
Salle familiale
16'5" x 24'4"
~ 8'0"
Chambre à coucher
11'5" x 12'4"
~ 8'0"
Garde-robe
5'8" x 3'0"
~ 8'0"
Rangement
7'2" x 5'10"
~ 8'0"
Salle de lavage
11'5" x 7'6"
~ 8'0"
Rangement
10'9" x 5'7"
~ 8'0"
Salle de bain
11'5" x 5'10"
~ 8'0"
Douche
3'0" x 3'4"
N/D
Toilette en cabine
5'3" x 3'0"
~ 8'0"
Lingerie
2'0" x 1'10"
N/D
Chambre à coucher
14'0" x 11'4"
~ 8'0"
Garde-robe
8'8" x 2'5"
~ 8'0"
Pièce de mécanique
11'5" x 5'10"
~ 8'0"

Espace boni

Pièces
Dimensions
Plafond
Coin lecture
9'7" x 9'4"
~ 5'6"
Mezzanine
7'6" x 24'2"
~ 8'0"

Sous-sol aménageable

Simple et majestueuse à la fois!

Le plan de maison éco-responsable INTERVALLE (#90102)) est parfait pour les terrains dont la façade se trouve à l’est. Ses grands espaces de vie surplombés d’une mezzanine permettront à tous les membres de la famille de profiter d’une ambiance chaleureuse sans se piler sur les pieds. Il y a même un petit boudoir intime sur la mezzanine. Vous imaginez vous y faire une séance de yoga par exemple?

En entrant dans cette maison, en plus d’avoir un grand « mudroom » lumineux, la vue traversante jusqu’à l’arrière de la maison permet une ouverture sur la nature. Les espaces de vie se trouvent directement au sud. La cuisine est parfaite pour recevoir avec son îlot de 10 pieds ainsi que son arrière-cuisine qui optimise le rangement. Les amateurs de bons vins seront servis avec le grand cellier adjacent à la salle à manger. De plus, le salon a été pensé pour admirer les couchers de soleil aux lueurs du foyer. Au-dessus de ces pièces de vie, la toiture pourrait facilement recevoir des panneaux solaires puisqu’elle est du côté sud.

Pour ce qui est des espaces privés du rez-de-chaussée, on y retrouve la chambre des maîtres, un bureau qui pourrait facilement devenir un atelier, ainsi qu’une salle de bain complète. Cette dernière permet d’être plus intime avec sa toilette isolée.

*Sous-sol aménagé (optionnel $):
En bas, la pièce familiale au sud est baignée par une belle lumière même si elle se trouve au sous-sol. De plus, il y a deux autres chambres isolées l’une de l’autre par la salle de bain complète, une grande salle de lavage muni d’une chute à linge et beaucoup de rangement.

Intervalle a été conçu pour mettre en valeur les pièces communes tout en donnant l’intimité nécessaire aux espaces privés avec son lieu de transition lumineux traversant la maison de l’avant à l’arrière. De l’extérieur, ce silence dans les façades, créées des seuils couverts très majestueux. Quoi de plus invitant pour vos invités?

*Si vous souhaitez acheter le plan du sous-sol aménagé, tel que présenté sur la page de ce plan, veuillez sélectionner cette option dans le panier d'achat, dans la section "Sélectionner votre fondation". Si vous ne sélectionnez pas cette option, vous recevrez le sous-sol non fini, sans frais additionnel.

Maison écologiquePLAN DE MAISON ÉCO-RESPONSABLE

Ce modèle fait partie de notre collection de "Plans éco-responsables" et voici ce qui distingue tous les plans inclus dans cette compilation:

Soleil: L'orientation de la maison planifiée en fonction de la course quotidienne du soleil, jumelée à la captation thermique des rayons du soleil par l'utilisation d'une fenestration optimale, afin de minimiser les frais de chauffage et maximiser la présence de la lumière naturelle.

Simplicité: Une maison aux volumes modestes assurant une construction simplifiée, tout en favorisant la maximisation des espaces intérieurs, afin de réduire le nombre de pied carrés et le coût de construction.

Saine: Une habitation pensée pour favoriser le bien-être et la santé de ses occupants en étant bien ventilée, en utilisant des matériaux durables (acier, bois, revêtement léger, fibrociment, entre autres) et non toxiques et en maximisant la luminosité naturelle.

Éléments distinctifs

**Plan de maison éco-responsable proposant de 1 à 4 chambres selon la finition du sous-sol (optionnel $).
Joli style contemporain & scandinave.
Plafond en pente à la cuisine et salon.
Plafond de 8' en pente à la mezzanine et de 5'6'' au coin lecture.
Cellier et grand garde-manger à la cuisine.
Foyer au salon.
Bureau prévu au rez-de-chaussée.
Coin lecture original en mezzanine ainsi qu'un petit boudoir surplombant la cuisine et le salon, accessible via une échelle.
Chute à linge prévue vers la salle de lavage, qui est située au sous-sol.

*Sous-sol aménagé (optionnel $):
2 chambres, salle mécanique, rangement, salle de bain, salle de lavage, salle familiale (ou chambre #4) et salle de jeux.

---
*Si vous souhaitez acheter le plan du sous-sol aménagé, veuillez sélectionner cette option dans le panier d'achat, dans la section "Sélectionner votre fondation". Si vous ne sélectionnez pas cette option, vous recevrez le sous-sol non fini, sans frais additionnel.
---
**Ce modèle fait partie de notre collection de "Plans éco-responsables" et voici ce qui distingue tous les plans inclus dans cette compilation:
SOLEIL :
L’orientation de la maison planifiée en fonction de la course quotidienne du soleil, jumelée à la captation thermique des rayons du soleil par l’utilisation d’une fenestration optimale, afin de minimiser les frais de chauffage et maximiser la présence de la lumière naturelle.
SIMPLICITÉ :
Une maison aux volumes modestes assurant une construction simplifiée, tout en favorisant la maximisation des espaces intérieurs, afin de réduire le nombre de pied carrés et le coût de construction.
SAINE :
Une habitation pensée pour favoriser le bien-être et la santé de ses occupants en étant bien ventilée, en utilisant des matériaux durables (acier, bois, revêtement léger, fibrociment, entre autres) et non toxiques et en maximisant la luminosité naturelle.

Particularité(s) du plan

Cellier, Mezzanine, Vestiaire, Garde-manger, Foyer, Bureau / Salle étude, Bain et douche séparés, Aire ouverte, Ilôt, Chute à linge

Style(s) architectural du plan

Scandinave, Contemporain / Zen, Ranch, Moderne rustique, Moderne

Willki
Willki

Les panneaux de pierre vissés Willki transforment vos projets en un clin d'œil. Faciles à installer, durables et écoresponsables, ils offrent le look naturel de la pierre pour une fraction du coût. *Peut nécessiter une modification au plan

Plans similaires
Logo Dessins Drummond image Dessins Drummond
Le modèle Intervalle est protégé par la loi sur les droits d'auteur.

Les illustrations présentées peuvent différer du plan détaillé que vous recevrez, car ces derniers sont régulièrement ajustés afin de respecter les normes de construction en vigueur.

En savoir plus

Une question ou un commentaire sur ce plan ?

Information de contact

Votre demande

Ajouter vos images ou photos

Pour ajouter une ou des photos, veuillez cliquer ou glisser vos fichiers dans la zone ci-bas. Vous pouvez ajouter jusqu'à huit photos JPG ou JPEG. Cette opération n'est pas obligatoire.

Désolé, votre navigateur ne supporte pas l'envoi de fichier.