Version couleur no. 3 - Vue gauche - Plain-pied 2 à 3 chambres avec garage, style moderne scandinave, plafond à 9', garde-manger et plus! - Chardonnay 2

Version couleur no. 3 - Vue gauche

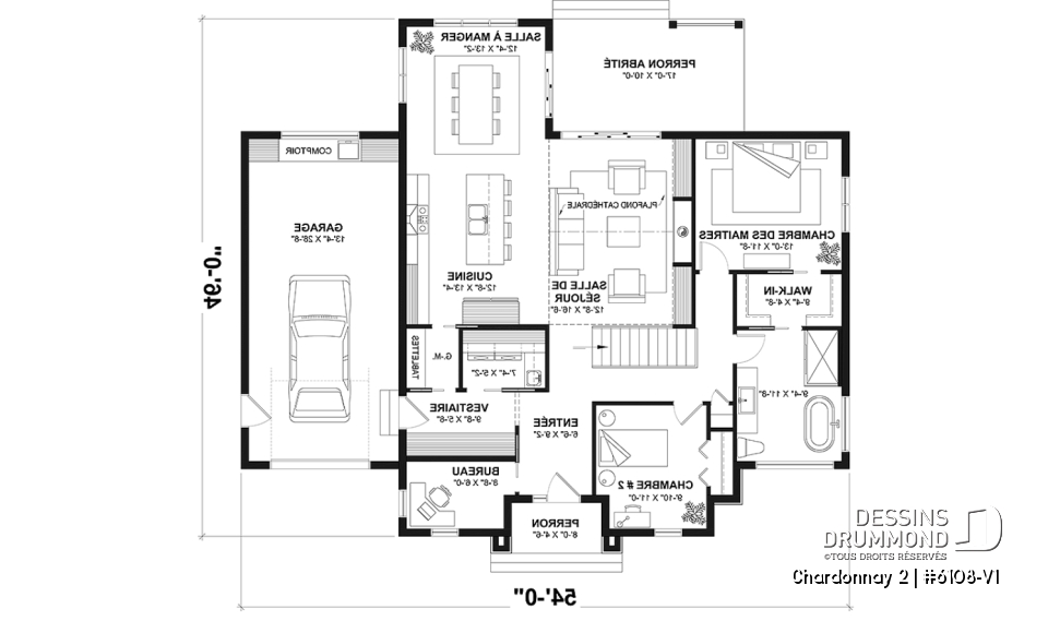
Rez-de-chaussée - Plain-pied 2 à 3 chambres avec garage, style moderne scandinave, plafond à 9', garde-manger et plus! - Chardonnay 2

Rez-de-chaussée

Sous-sol - Plain-pied 2 à 3 chambres avec garage, style moderne scandinave, plafond à 9', garde-manger et plus! - Chardonnay 2

Sous-sol

Vue avant - MODÈLE DE BASE - Chardonnay 2

Vue avant - MODÈLE DE BASE

Vue avant - MODÈLE DE BASE - Chardonnay 2

Vue avant - MODÈLE DE BASE

Vue arrière - MODÈLE DE BASE - Chardonnay 2

Vue arrière - MODÈLE DE BASE

Élévation arrière - Chardonnay 2

Élévation arrière

Vue intérieure - Chardonnay 2

Vue intérieure

Vue intérieure - Chardonnay 2

Vue intérieure

Version couleur no. 2 - Vue avant - Chardonnay 2

Version couleur no. 2 - Vue avant

Version couleur no. 3 - Vue avant - Chardonnay 2

Version couleur no. 3 - Vue avant

Chardonnay 2 Plan de maison 6108-V1

Plain-pied 2 à 3 chambres avec garage, style moderne scandinave, plafond à 9', garde-manger et plus!

À partir de

1440$

Fiche technique sommaire Plan #6108-V1
Estimation ($) 423,712$
Surface habitable 1487 pi² Chambre 2
Salle de Bain 1 Salle d'eau -
Fondation incluse Sous-sol aménageable Garage 1 voiture
Largeur 54'0" Profondeur 46'0"

Besoin d’aide ?

Nos experts vous guident dans votre projet grâce à plus de 30 bureaux au Québec.

Joignez-nous

Consultez notre guide utilisateur

Un outil conçu pour vous simplifier la vie.

Ouvrir le guide

Un accompagnement sur mesure

De la modification de plans au design d’intérieur, nous vous guidons à chaque étape.

Découvrir nos services

Les photos de cette maison peuvent différer du plan d'origine, duquel elles proviennent. Pour toute modification, veuillez contacter l’un de nos 30 bureaux.

Détails supplémentaires

Estimation

Spécifications générales

Surface aménagée totale
1487 pi²
Rez-de-chaussée
1487 pi²
Sous-sol
1487 pi²
Largeur
54'0"
Profondeur
46'0"
Hauteur dessus fondations au faite
0'0"
Murs extérieurs
2 X 6
Murs extérieurs
2 X 6
Sous-sol aménageable
Autres fondations disponibles (des frais peuvent s'appliquer)
Dalle flottante, Vide sanitaire, Dalle monolithique
Code Entrepreneur
C

Spécifications sur les pièces

Chambre(s)
2
Salle(s) de bain complète(s)
1
Demi Salle(s) de Bain
-
Type de garage
1 voiture (420 pi²)
Superficie balcon et/ou perron abrité
33 pi²

Sous-sol

Rez-de-chaussée

Pièces
Dimensions
Plafond
Salle de lavage
7'4" x 5'2"
~ 9'0"
Bureau à domicile
8'8" x 6'0"
~ 9'0"
Chambre à coucher
9'10" x 11'0"
~ 9'0"
Garde-robe
5'8" x 2'0"
~ 9'0"
Cuisine
12'8" x 13'4"
~ 9'0"
Garde-manger
4'8" x 5'4"
~ 9'0"
Îlot
8'0" x 3'4"
N/D
Entrée ou vestibule
6'6" x 9'2"
~ 9'0"
Perron abrité
8'0" x 4'6"
~ 9'4"
Salle à manger
12'4" x 13'2"
~ 9'0"
Salle de bain complète
9'4" x 11'8"
~ 9'0"
Douche
3'0" x 5'0"
N/D
Salle de séjour
12'8" x 16'6"
~ 13'9"
Suite des maîtres
13'0" x 11'8"
~ 9'0"
Walk-in
9'4" x 4'8"
~ 9'0"
Terrasse
17'0" x 10'0"
~ 8'8"
Vestiaire
9'8" x 5'8"
~ 9'0"
Garage
13'4" x 28'8"
~ 10'4"

Plan de plain-pied 2 chambres avec bureau à domicile et garage spacieux

Le plan de maison Chardonnay 2 (#6108-V1) propose 1487 pi.ca. aménagés sur un seul plancher. Ce plan de type plain-pied avec garage de style Moderne Scandinave propose un look épuré tout en maximisant les espaces intérieurs et extérieurs, tel le balcon avant et la terrasse arrière qui sont tous les deux abrités.

Un bureau (ou chambre #3) est localisé à droite/ tout près de l'entrée principale, permettant une séparation entre l'espace travail et le reste de la maison. À noter que tous les plafonds sont à 9' et qu'il y a un plafond cathédrale à la salle de séjour.

Le vestiaire et la salle de lavage, avec coin lavabo, sont communicants. L’accès du garage est aussi dans ce secteur ainsi qu’une porte vers le garde-manger. Aspect bien pratique pour circuler les sacs d’épicerie du garage vers la cuisine directement!

Puis la suite des parents et une autre chambre se trouvent dans la section gauche de la maison. La chambre des parents possède un grand walk-in et un accès privé à la salle de bain familiale. La salle de bain propose un bain et douche séparés.

La cuisine a un garde-manger qui offre aussi un accès vers le garage, comme mentionné précédemment. De plus, un imposant îlot pouvant loger aisément 4 convives, est situé à la cuisine. Cette pièce est ouverte autant sur la salle de séjour que sur la salle à dîner. La salle de séjour jouit d’un plafond cathédrale en plus d'un foyer et meubles encastrés. La salle à dîner reçoit de la belle lumière naturelle via des portes patios et des fenêtres sur les 2 autres pans de mur.

Cette magnifique maison propose aussi un garage avec coin atelier, ainsi que d’un sous-sol à aménager selon vos besoins familiaux, mais noter que d'autres types de fondation sont également disponibles. Ce plan est aussi disponible sans garage, voir le plan Chardonnay (# 6108) qui propose un garage en plus de quelques modifications intérieures.

Éléments distinctifs

Plan de maison scandinave moderne, proposant 2 chambres, dont une suite des parents.
Plafond cathédrale à la salle de séjour et à 9' partout ailleurs.
Perron avant abritée.
Bureau près de l'entrée (ou chambre #3).
Vestiaire et salle de lavage communicants.
Cuisine avec grand îlot et garde manger.
Foyer au salon.
Salle à dîner très lumineuse.
Suite des parents avec walk-in double et accès à la salle de bain familiale.
Belle terrasse arrière couverte.

Particularité(s) du plan

Plafond cathédrale, Salle de lavage au rez-de-chaussée, Suite des maîtres au rdc, Vestiaire, Meuble(s) encastré(s), Terrasse abritée, Garage spacieux, Garde-manger, Ilôt, Walk-in double ch. maîtres, Plafond à plus de 8', Bureau / Salle étude, Bain et douche séparés, Foyer, Aire ouverte

Style(s) architectural du plan

Scandinave, Transitionnel, Moderne, Moderne rustique, Contemporain / Zen, En forme de L, Nordique Moderne, Ranch

Maibec
Maibec
UltraPlank
À partir de 2,75$/pi².

Spécialiste des systèmes de revêtement

Oceania
Oceania
Bain Romy

Depuis notre fondation en 1995, Bains Oceania est engagé à offrir à ses clients une expérience unique et raffinée dans leur environnement spa résidentiel. Grâce à notre savoir-faire et à notre passion pour l’innovation, nous fabriquons ici, des produits de grande qualité, pour vous.

Willki
Willki

Les panneaux de pierre vissés Willki transforment vos projets en un clin d'œil. Faciles à installer, durables et écoresponsables, ils offrent le look naturel de la pierre pour une fraction du coût. *Peut nécessiter une modification au plan

Plans similaires
Logo Dessins Drummond image Dessins Drummond
Le modèle Chardonnay 2 est protégé par la loi sur les droits d'auteur.

Les illustrations présentées peuvent différer du plan détaillé que vous recevrez, car ces derniers sont régulièrement ajustés afin de respecter les normes de construction en vigueur.

En savoir plus

Une question ou un commentaire sur ce plan ?

Information de contact

Votre demande

Ajouter vos images ou photos

Pour ajouter une ou des photos, veuillez cliquer ou glisser vos fichiers dans la zone ci-bas. Vous pouvez ajouter jusqu'à huit photos JPG ou JPEG. Cette opération n'est pas obligatoire.

Désolé, votre navigateur ne supporte pas l'envoi de fichier.