Vue avant - MODÈLE DE BASE - Maison de style Normand ancestral, 4 chambres, espace ouvert, 2 séjours, foyer central - Philibert

Vue avant - MODÈLE DE BASE

Rez-de-chaussée - Maison de style Normand ancestral, 4 chambres, espace ouvert, 2 séjours, foyer central - Philibert

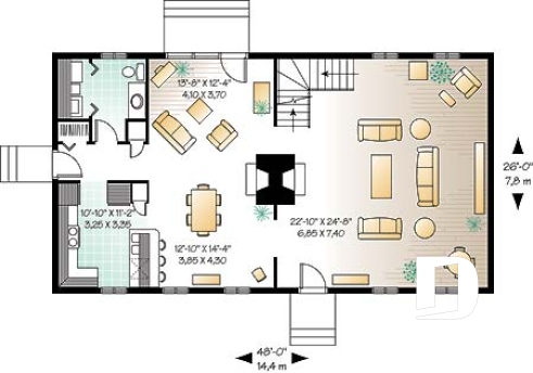
Rez-de-chaussée

Étage - Maison de style Normand ancestral, 4 chambres, espace ouvert, 2 séjours, foyer central - Philibert

Étage

Élévation arrière - Philibert

Élévation arrière

Philibert Plan de maison 2554

Maison de style Normand ancestral, 4 chambres, espace ouvert, 2 séjours, foyer central

À partir de

1765$

Fiche technique sommaire Plan #2554
Estimation ($) 622,459$
Surface habitable 2496 pi² Chambre 4
Salle de Bain 1 Salle d'eau 1
Fondation incluse Sous-sol aménageable Garage -
Largeur 48'0" Profondeur 26'0"

Besoin d’aide ?

Nos experts vous guident dans votre projet grâce à plus de 30 bureaux au Québec.

Joignez-nous

Consultez notre guide utilisateur

Un outil conçu pour vous simplifier la vie.

Ouvrir le guide

Un accompagnement sur mesure

De la modification de plans au design d’intérieur, nous vous guidons à chaque étape.

Découvrir nos services

Détails supplémentaires

Estimation

Spécifications générales

Surface aménagée totale
2496 pi²
Rez-de-chaussée
1248 pi²
Étage
1248 pi²
Largeur
48'0"
Profondeur
26'0"
Hauteur dessus fondations au faite
30'1"
Murs extérieurs
2 X 6
Murs extérieurs
2 X 6
Sous-sol aménageable
Autres fondations disponibles (des frais peuvent s'appliquer)
Dalle flottante, Vide sanitaire, Dalle monolithique
Code Entrepreneur
F

Spécifications sur les pièces

Chambre(s)
4
Salle(s) de bain complète(s)
1
Demi Salle(s) de Bain
1
Type de garage
-
Superficie balcon et/ou perron abrité
36 pi²

Rez-de-chaussée

Pièces
Dimensions
Plafond
Cuisine
9'8" x 11'0"
~ 8'0"
Garde-manger
2'0" x 2'0"
N/D
Salle à manger
12'8" x 24'8"
~ 8'0"
Lingerie
1'10" x 2'0"
~ 8'0"
Coin toilette/buanderie
9'4" x 6'6"
~ 8'0"
Garde-robe
3'4" x 2'0"
~ 8'0"
Perron
5'0" x 4'0"
N/D
Terrasse
10'0" x 4'0"
N/D
Salle de séjour
22'10" x 24'8"
~ 8'0"
Perron
4'0" x 4'0"
N/D

Étage

Pièces
Dimensions
Plafond
Salle de bain complète
14'2" x 9'0"
~ 8'0"
Chambre à coucher
14'2" x 15'4"
~ 8'0"
Chambre à coucher
11'0" x 10'8"
~ 8'0"
Chambre à coucher
13'10" x 13'0"
~ 8'0"
Chambre à coucher
13'10" x 9'0"
~ 8'0"
Petit salon
9'6" x 10'0"
~ 8'0"

Superbe maison à étage d'inspiration normande avec 4 chambres et superbe foyer central

.

Éléments distinctifs

Foyer transparent central, lucarnes, persiennes, fenestration abondante, éviers double dans la salle de bain à l'étage.

Particularité(s) du plan

Vue paronamique, Coin bureau, Foyer, Salle de lavage au rez-de-chaussée, Comptoir-lunch, Boudoir / Vivoir, Plafond en pente, Bain et douche séparés, Lavabo double

Style(s) architectural du plan

Européen, Traditionnelle, Champêtre, Rustique, Canadien, Campagne Française

Plans similaires
Logo Dessins Drummond image Dessins Drummond
Le modèle Philibert est protégé par la loi sur les droits d'auteur.

Les illustrations présentées peuvent différer du plan détaillé que vous recevrez, car ces derniers sont régulièrement ajustés afin de respecter les normes de construction en vigueur.

En savoir plus

Une question ou un commentaire sur ce plan ?

Information de contact

Votre demande

Ajouter vos images ou photos

Pour ajouter une ou des photos, veuillez cliquer ou glisser vos fichiers dans la zone ci-bas. Vous pouvez ajouter jusqu'à huit photos JPG ou JPEG. Cette opération n'est pas obligatoire.

Désolé, votre navigateur ne supporte pas l'envoi de fichier.