Vue avant - MODÈLE DE BASE - Plan de plain-pied 3 chambres au rez-de-chaussée, garage, bureau, vestiaire, suite des maîtres - Hygge 3

Vue avant - MODÈLE DE BASE

Rez-de-chaussée - Plan de plain-pied 3 chambres au rez-de-chaussée, garage, bureau, vestiaire, suite des maîtres - Hygge 3

Rez-de-chaussée

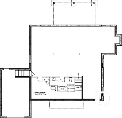
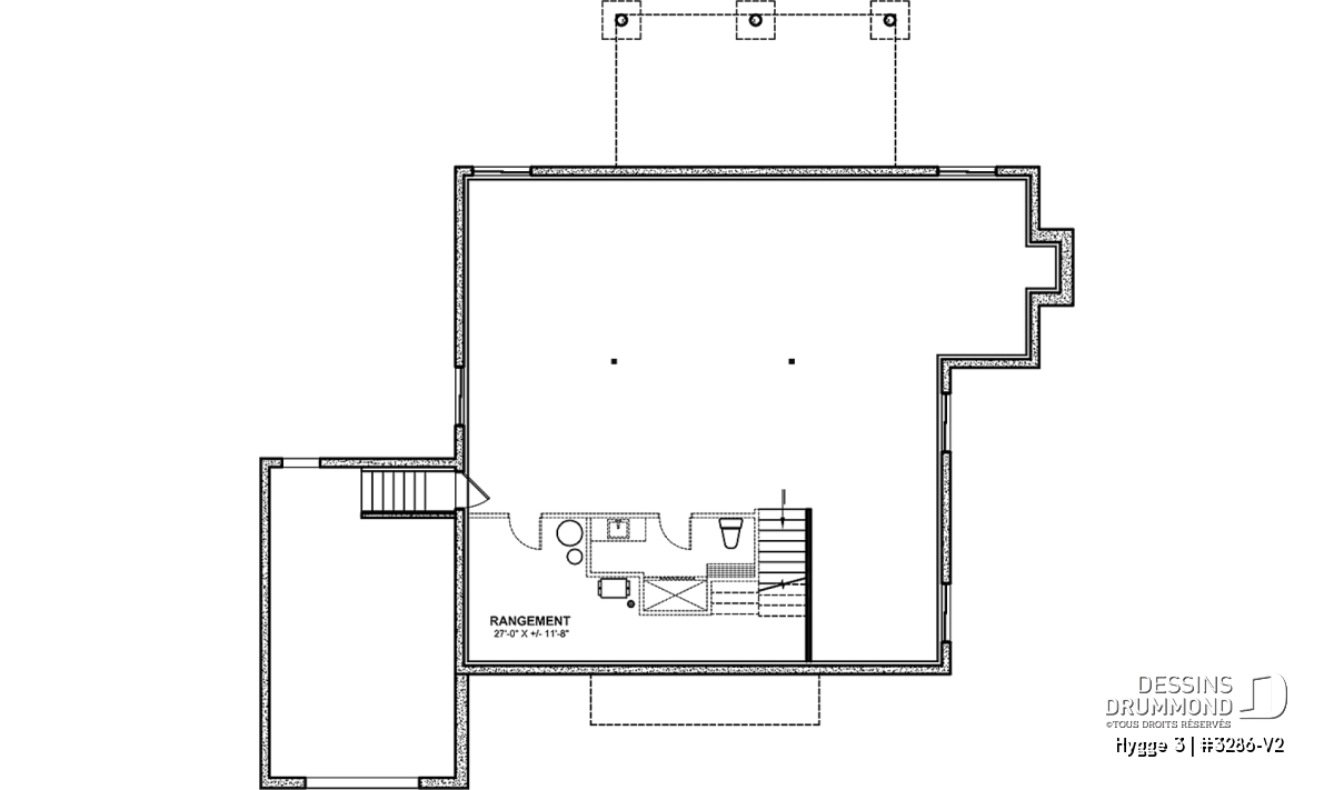
Sous-sol - Plan de plain-pied 3 chambres au rez-de-chaussée, garage, bureau, vestiaire, suite des maîtres - Hygge 3

Sous-sol

Élévation arrière - Hygge 3

Élévation arrière

Hygge 3 Plan de maison 3286-V2

Plan de plain-pied 3 chambres au rez-de-chaussée, garage, bureau, vestiaire, suite des maîtres

À partir de

1600$

Fiche technique sommaire Plan #3286-V2
Estimation ($) 484,905$
Surface habitable 1686 pi² Chambre 3
Salle de Bain 2 Salle d'eau -
Fondation incluse Sous-sol aménageable Garage 1 voiture
Largeur 64'0" Profondeur 49'0"

Besoin d’aide ?

Nos experts vous guident dans votre projet grâce à plus de 30 bureaux au Québec.

Joignez-nous

Consultez notre guide utilisateur

Un outil conçu pour vous simplifier la vie.

Ouvrir le guide

Un accompagnement sur mesure

De la modification de plans au design d’intérieur, nous vous guidons à chaque étape.

Découvrir nos services

Photos du plan Hygge 3

Les photos de cette maison peuvent différer du plan d'origine, duquel elles proviennent. Pour toute modification, veuillez contacter l’un de nos 30 bureaux.

Détails supplémentaires

Estimation

Spécifications générales

Surface aménagée totale
1686 pi²
Rez-de-chaussée
1686 pi²
Sous-sol
1686 pi²
Largeur
64'0"
Profondeur
49'0"
Hauteur dessus fondations au faite
31'2"
Murs extérieurs
2 X 6
Murs extérieurs
2 X 6
Sous-sol aménageable
Autres fondations disponibles (des frais peuvent s'appliquer)
Dalle flottante, Vide sanitaire
Code Entrepreneur
D

Spécifications sur les pièces

Chambre(s)
3
Salle(s) de bain complète(s)
2
Demi Salle(s) de Bain
-
Type de garage
1 voiture (410 pi²)
Superficie balcon et/ou perron abrité
53 pi²

Rez-de-chaussée

Pièces
Dimensions
Plafond
Suite des maîtres
12'4" x 14'10"
~ 9'0"
Walk-in
6'6" x 8'2"
~ 9'0"
Salle de bain complète
12'4" x 11'6"
~ 9'0"
Douche
3'0" x 5'0"
N/D
Lingerie
1'10" x 1'10"
N/D
Terrasse
22'0" x 12'0"
N/D
Bureau à domicile
6'0" x 6'8"
~ 11'9"
Salle de bain/buanderie
5'0" x 7'4"
~ 9'0"
Douche
4'0" x 3'0"
N/D
Chambre à coucher
10'4" x 11'2"
~ 9'0"
Walk-in
6'8" x 3'0"
~ 9'0"
Rangement
2'0" x 2'0"
~ 9'0"
Chambre à coucher
10'4" x 9'0"
~ 9'0"
Garde-robe
6'8" x 2'0"
~ 9'0"
Cuisine
12'0" x 14'6"
~ 9'0"
Garde-manger
5'10" x 6'2"
~ 9'0"
Îlot
7'0" x 4'4"
N/D
Salle à manger
10'0" x 14'6"
~ 9'0"
Salle de séjour
10'0" x 14'6"
~ 9'0"
Garage
14'8" x 20'4"
~ 13'10"
Perron
13'3" x 4'0"
N/D
Vestiaire
7'6" x 6'8"
~ 11'9"
Entrée ou vestibule
13'2" x 4'0"
~ 11'9"

Sous-sol

Plan de maison avec superbe suite des maîtres, proposant 3 chambres au rez-de-chaussée

Le plan de maison d'inspiration Scandinave Hygge 3 (#3286-V2) propose 1686 pi.ca. aménagés sur un plancher, ainsi qu'un garage attaché avec plafond à 13'10'' et un sous-sol non fini, à aménager.

L'entrée split level regroupe un vestiaire de type walk-in ainsi qu'un coin bureau. Ce secteur a des plafond à 11'9'' qui donne un effet de grandeur.

Le plancher principal propose 3 chambres à coucher dont une très grande suite des maîtres. Celle-ci possède une garde-robe de type walk-in ainsi qu'une salle de bain privée avec bain et douche séparés et deux lavabos. Une deuxième salle de bain est disponible pour les 2 chambres secondaires et inclut un pratique coin laveuse/sécheuse.

La cuisine propose un grand îlot et un grand garde-manger de type walk-in. Ce secteur est à aire ouverte ainsi tous les membres de la famille peuvent interagir pendant la préparation des repas. Le salon a un foyer.

Éléments distinctifs

Plan de maison d'inspiration scandinave & contemporaine à la fois.
Entrée split avec plafond à 11'9''.
Vestiaire et coin bureau aussi avec plafond à 11'9''.
Plafond à 9' partout ailleurs.
Grande suite des maîtres avec garde-robe de type walk-in et salle de bain privée.
2 chambres secondaires se partagent une salle de douche.
Salle de lavage au rez-de-chaussée.
Cuisine avec grand îlot et garde-manger.
Foyer au salon.
Accès au sous-sol du garage.

Particularité(s) du plan

Salle de lavage au rez-de-chaussée, Suite des maîtres au rdc, Accès au sous-sol du garage, Bureau / Salle étude, Garde-manger, Plafond avec fausses poutres, Foyer, Lavabo double, Walk-in ch. maîtres, Plafond à plus de 8', Ilôt, Vestiaire, Bain et douche séparés, Banquette, Tablettes

Style(s) architectural du plan

Scandinave, Nordique Moderne, Moderne rustique, Ranch, Farmhouse moderne

Willki
Willki

Les panneaux de pierre vissés Willki transforment vos projets en un clin d'œil. Faciles à installer, durables et écoresponsables, ils offrent le look naturel de la pierre pour une fraction du coût. *Peut nécessiter une modification au plan

Plans similaires
Logo Dessins Drummond image Dessins Drummond
Le modèle Hygge 3 est protégé par la loi sur les droits d'auteur.

Les illustrations présentées peuvent différer du plan détaillé que vous recevrez, car ces derniers sont régulièrement ajustés afin de respecter les normes de construction en vigueur.

En savoir plus

Une question ou un commentaire sur ce plan ?

Information de contact

Votre demande

Ajouter vos images ou photos

Pour ajouter une ou des photos, veuillez cliquer ou glisser vos fichiers dans la zone ci-bas. Vous pouvez ajouter jusqu'à huit photos JPG ou JPEG. Cette opération n'est pas obligatoire.

Désolé, votre navigateur ne supporte pas l'envoi de fichier.