Vue avant - MODÈLE DE BASE - Maison plain-pied scandinave avec abri d'auto, superbe aire ouverte, terrasse abritée + abri moustiquaire - Alta

Vue avant - MODÈLE DE BASE

Rez-de-chaussée - Maison plain-pied scandinave avec abri d'auto, superbe aire ouverte, terrasse abritée + abri moustiquaire - Alta

Rez-de-chaussée

Sous-sol - Maison plain-pied scandinave avec abri d'auto, superbe aire ouverte, terrasse abritée + abri moustiquaire - Alta

Sous-sol

Vue avant - MODÈLE DE BASE - Alta

Vue avant - MODÈLE DE BASE

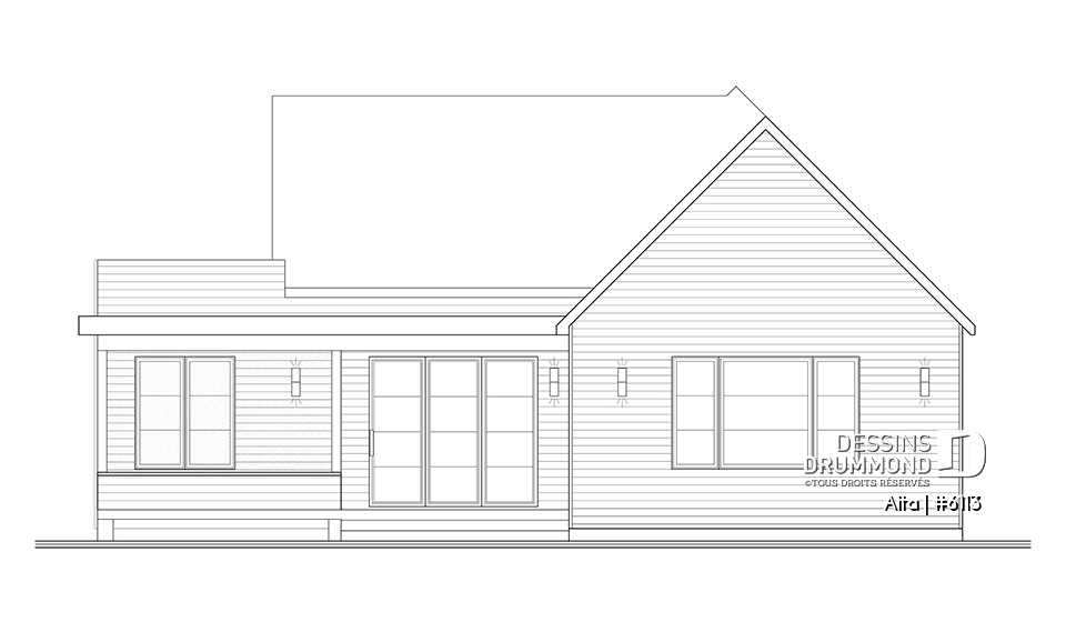
Vue arrière - MODÈLE DE BASE - Alta

Vue arrière - MODÈLE DE BASE

Vue arrière - MODÈLE DE BASE - Alta

Vue arrière - MODÈLE DE BASE

Vue intérieure - Alta

Vue intérieure

Version couleur no. 1 - Vue avant - Alta

Version couleur no. 1 - Vue avant

Version couleur no. 1 - Vue arrière - Alta

Version couleur no. 1 - Vue arrière

Alta Plan de maison 6113

Maison plain-pied scandinave avec abri d'auto, superbe aire ouverte, terrasse abritée + abri moustiquaire

À partir de

1600$

Fiche technique sommaire Plan #6113
Estimation ($) 437,885$
Surface habitable 1555 pi² Chambre 2
Salle de Bain 1 Salle d'eau -
Fondation incluse Sous-sol aménageable Garage -
Largeur 46'2" Profondeur 47'2"

Besoin d’aide ?

Nos experts vous guident dans votre projet grâce à plus de 30 bureaux au Québec.

Joignez-nous

Consultez notre guide utilisateur

Un outil conçu pour vous simplifier la vie.

Ouvrir le guide

Un accompagnement sur mesure

De la modification de plans au design d’intérieur, nous vous guidons à chaque étape.

Découvrir nos services

Photos du plan Alta

Les photos de cette maison peuvent différer du plan d'origine, duquel elles proviennent. Pour toute modification, veuillez contacter l’un de nos 30 bureaux.

Détails supplémentaires

Estimation

Spécifications générales

Surface aménagée totale
1555 pi²
Rez-de-chaussée
1555 pi²
Sous-sol
1555 pi²
Largeur
46'2"
Profondeur
47'2"
Hauteur dessus fondations au faite
23'7"
Murs extérieurs
2 X 6
Murs extérieurs
2 X 6
Sous-sol aménageable
Autres fondations disponibles (des frais peuvent s'appliquer)
Dalle flottante, Vide sanitaire, Dalle monolithique
Code Entrepreneur
D

Spécifications sur les pièces

Chambre(s)
2
Salle(s) de bain complète(s)
1
Demi Salle(s) de Bain
-
Type de garage
-
Superficie balcon et/ou perron abrité
30 pi²

Rez-de-chaussée

Pièces
Dimensions
Plafond
Abri d'auto
14'0" x 21'2"
~ 10'0"
Perron
10'0" x 3'0"
N/D
Chambre à coucher
9'4" x 11'8"
~ 9'0"
Garde-robe
2'0" x 4'8"
~ 9'0"
Entrée ou vestibule
9'8" x 6'0"
~ 9'0"
Vestiaire
9'8" x 7'0"
~ 9'0"
Salle de lavage
7'2" x 7'0"
~ 9'0"
Cuisine
17'6" x 10'8"
~ 9'0"
Îlot
10'0" x 3'4"
N/D
Rangement
2'0" x 3'2"
~ 9'0"
Salle de bain complète
12'0" x 9'2"
~ 9'0"
Douche
5'0" x 3'0"
N/D
Lingerie
1'4" x 1'10"
N/D
Suite des maîtres
12'0" x 14'10"
~ 9'0"
Salle à manger
12'10" x 12'8"
~ 9'0"
Salle de séjour
19'8" x 14'0"
~ 9'0"
Terrasse abritée
12'2" x 14'0"
~ 9'4"
Abri moustiquaire
13'0" x 14'0"
N/D

Sous-sol

SUPERBE TERRASSE + ABRI MOUSTIQUAIRE

Le plan de maison d'inspiration Scandinave ALTA (#6113) propose 1555 pi.ca. au plancher principal et pareil au sous-sol. De plus il offre des plafonds de 9' de hauteur, partout au rez-de-chaussée.

L'entrée s'ouvre sur un vestiaire, attenant à la salle de lavage. À droite vous retrouvez les 2 chambres ainsi qu'un salle de bain complète, avec bain et douche séparés.

Les pièces communes sont à l'arrière de la maison et baignées de lumière naturelle provenant d'une fenestration abondante à ce secteur. De plus des portes patios sont aménagées à la salle à manger et à la salle de séjour, menant vers la terrasse couverte. Cette dernière propose une section abri moustiquaire.

Le sous-sol est non fini, à aménager selon les besoins de votre famille.

Éléments distinctifs

Plain-pied d'inspiration scandinave proposant des plafonds à 9' partout.
Vestiaire attenant à la salle de lavage.
Grande salle de bain familiale avec bain et douche séparés, et 2 lavabos.
Cuisine ouverte sur la salle à manger et le salon.
Beaucoup de lumière naturelle au secteur arrière de la maison.
Terrasse couverte avec section abri moustiquaire.
Carport à l'avant.
Sous-sol non fini, à aménager.

Particularité(s) du plan

Aire ouverte, Vestiaire, Lavabo double, Bain et douche séparés, Terrasse abritée, Salle de lavage au rez-de-chaussée, Ilôt, Plafond à plus de 8', Banquette, Abri moustiquaire

Style(s) architectural du plan

Scandinave, Moderne, Contemporain / Zen, Tendance

Maibec
Maibec
Modèle Kathrine
À partir de 15$/pi².

Spécialiste des systèmes de revêtement

Maibec
Maibec
Modèle Kathrine
À partir de 15$/pi².

Spécialiste des systèmes de revêtement

Ventilation Maximum
Ventilation Maximum

Entreprise manufacturière qui vends des ventilateurs de toiture, des clapets muraux et des entrées d'air.

Oceania
Oceania
Bain Chilko

Depuis notre fondation en 1995, Bains Oceania est engagé à offrir à ses clients une expérience unique et raffinée dans leur environnement spa résidentiel. Grâce à notre savoir-faire et à notre passion pour l’innovation, nous fabriquons ici, des produits de grande qualité, pour vous.

Boiseries Raymond
Boiseries Raymond
Porte Héritage

Chef de file dans le préassemblage de portes intérieures au Québec. Cette force nous permet de vous fournir une variété de modèles préassemblées selon vos spécifications et selon le volume de production requis.

Boiseries Raymond
Boiseries Raymond
Porte Héritage

Chef de file dans le préassemblage de portes intérieures au Québec. Cette force nous permet de vous fournir une variété de modèles préassemblées selon vos spécifications et selon le volume de production requis.

Boiseries Raymond
Boiseries Raymond
Porte Héritage

Chef de file dans le préassemblage de portes intérieures au Québec. Cette force nous permet de vous fournir une variété de modèles préassemblées selon vos spécifications et selon le volume de production requis.

Boiseries Raymond
Boiseries Raymond
Porte Héritage

Chef de file dans le préassemblage de portes intérieures au Québec. Cette force nous permet de vous fournir une variété de modèles préassemblées selon vos spécifications et selon le volume de production requis.

Maibec
Maibec
VStyle
À partir de 2,75$/pi².

Spécialiste des systèmes de revêtement

Maibec
Maibec
Modèle Kathrine Moorecrest
À partir de 15$/pi².

Spécialiste des systèmes de revêtement

Maibec
Maibec
CanExel VStyle Tundra
À partir de 2,75$/pi².

Spécialiste des systèmes de revêtement

Plans similaires
Logo Dessins Drummond image Dessins Drummond
Le modèle Alta est protégé par la loi sur les droits d'auteur.

Les illustrations présentées peuvent différer du plan détaillé que vous recevrez, car ces derniers sont régulièrement ajustés afin de respecter les normes de construction en vigueur.

En savoir plus

Une question ou un commentaire sur ce plan ?

Information de contact

Votre demande

Ajouter vos images ou photos

Pour ajouter une ou des photos, veuillez cliquer ou glisser vos fichiers dans la zone ci-bas. Vous pouvez ajouter jusqu'à huit photos JPG ou JPEG. Cette opération n'est pas obligatoire.

Désolé, votre navigateur ne supporte pas l'envoi de fichier.