Vue avant - MODÈLE DE BASE - Plain-pied à entrée split, petit budget, plafond cathédrale, foyer central, cuisine avec îlot - Gauloise

Vue avant - MODÈLE DE BASE

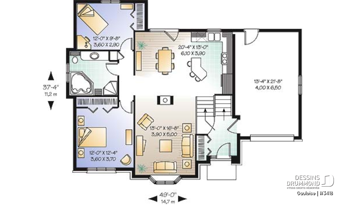
Rez-de-chaussée - Plain-pied à entrée split, petit budget, plafond cathédrale, foyer central, cuisine avec îlot - Gauloise

Rez-de-chaussée

Vue avant - MODÈLE DE BASE - Gauloise

Vue avant - MODÈLE DE BASE

Élévation arrière - Gauloise

Élévation arrière

Gauloise Plan de maison 3418

Plain-pied à entrée split, petit budget, plafond cathédrale, foyer central, cuisine avec îlot

À partir de

1380$

Fiche technique sommaire Plan #3418
Estimation ($) 345,779$
Surface habitable 1129 pi² Chambre 2
Salle de Bain 1 Salle d'eau -
Fondation incluse Sous-sol aménageable Garage 1 voiture
Largeur 49'0" Profondeur 37'4"

Besoin d’aide ?

Nos experts vous guident dans votre projet grâce à plus de 30 bureaux au Québec.

Joignez-nous

Consultez notre guide utilisateur

Un outil conçu pour vous simplifier la vie.

Ouvrir le guide

Un accompagnement sur mesure

De la modification de plans au design d’intérieur, nous vous guidons à chaque étape.

Découvrir nos services

Photos du plan Gauloise

Les photos de cette maison peuvent différer du plan d'origine, duquel elles proviennent. Pour toute modification, veuillez contacter l’un de nos 30 bureaux.

Détails supplémentaires

Estimation

Spécifications générales

Surface aménagée totale
1129 pi²
Rez-de-chaussée
1129 pi²
Largeur
49'0"
Profondeur
37'4"
Hauteur dessus fondations au faite
29'8"
Murs extérieurs
2 X 6
Murs extérieurs
2 X 6
Sous-sol aménageable
Code Entrepreneur
B

Spécifications sur les pièces

Chambre(s)
2
Salle(s) de bain complète(s)
1
Demi Salle(s) de Bain
-
Type de garage
1 voiture (317 pi²)
Superficie balcon et/ou perron abrité
24 pi²

Rez-de-chaussée

Pièces
Dimensions
Plafond
Salle de bain complète
10'0" x 9'2"
~ 8'0"
Cuisine/salle à manger
20'2" x 13'0"
~ 8'0"
Salle de séjour
12'6" x 16'6"
~ 8'0"
Chambre à coucher
11'10" x 12'4"
~ 8'0"
Chambre à coucher
11'10" x 9'8"
~ 8'0"
Lingerie
1'6" x 1'10"
~ 8'0"
Entrée ou vestibule
6'0" x 8'2"
~ 12'4"
Garage
13'2" x 21'8"
~ 9'6"
Perron
6'0" x 4'0"
~ 8'0"
Terrasse
8'0" x 6'0"
~ 8'0"

Maison à entrée dénivelée genre manoir

Dotée de volumes bien balancés, d’une fenestration plutôt remarquable et de briques en façade principale, cette maison ne laisse absolument pas indifférent. Ces deux volumes centraux, à pignons accentués, lui confèrent une réelle élégance tout en permettant un rapprochement du style manoir, encore passablement en demande.

Ici, la lumière naturelle est au rendez-vous. Fenêtre en baie à la salle de séjour, imposte significative au-dessus de la porte d’entrée, portes-fenêtres à la salle à manger et fenêtres élargies pour les pièces du sous-sol où celles-ci assurent un éclairage véritablement remarquable.

De plus, une cuisine avec îlot, une salle de bain dégagée, une entrée à palier faisant office de vestibule et un bien bel espace salle à manger/salle de séjour agrémenté d’un foyer central procurent à cette maison des critères à la fois très recherchés et tout à fait indéniables.

Sans oublier ce garage de bonnes dimensions avec accès direct au palier de l’entrée principale et à sa garde-robe fort logeable.

Éléments distinctifs

Plafond à plus de 12 pieds à l'entrée principale. Foyer mitoyen à la salle de séjour et la salle à manger. Cuisine avec îlot-lunch central.

Particularité(s) du plan

Foyer, Bain et douche séparés, Comptoir-lunch

Style(s) architectural du plan

Européen, Traditionnelle

Plans similaires
Logo Dessins Drummond image Dessins Drummond
Le modèle Gauloise est protégé par la loi sur les droits d'auteur.

Les illustrations présentées peuvent différer du plan détaillé que vous recevrez, car ces derniers sont régulièrement ajustés afin de respecter les normes de construction en vigueur.

En savoir plus

Une question ou un commentaire sur ce plan ?

Information de contact

Votre demande

Ajouter vos images ou photos

Pour ajouter une ou des photos, veuillez cliquer ou glisser vos fichiers dans la zone ci-bas. Vous pouvez ajouter jusqu'à huit photos JPG ou JPEG. Cette opération n'est pas obligatoire.

Désolé, votre navigateur ne supporte pas l'envoi de fichier.