Vue avant - MODÈLE DE BASE - Plan de maison à entrée split, économique, garage avec rangement, 2 à 4 chambres, s-sol aménagé optionnel ($) - Madeline

Vue avant - MODÈLE DE BASE

Rez-de-chaussée - Plan de maison à entrée split, économique, garage avec rangement, 2 à 4 chambres, s-sol aménagé optionnel ($) - Madeline

Rez-de-chaussée

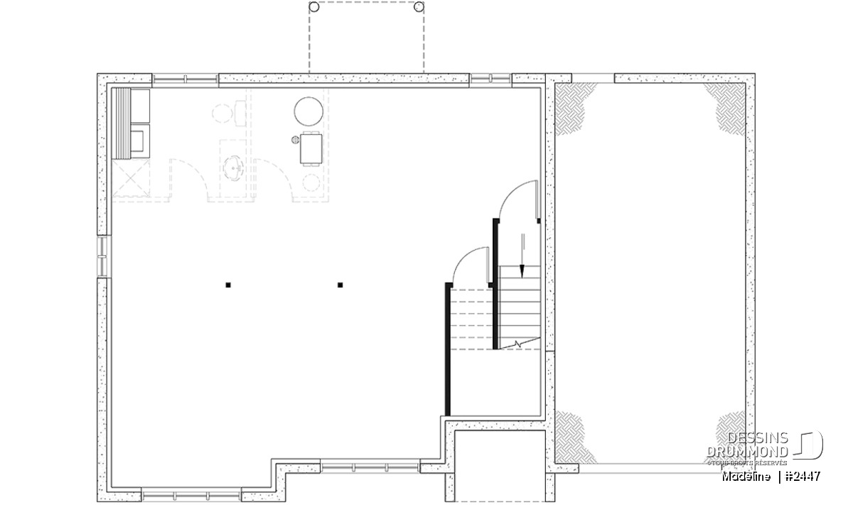
Sous-sol aménageable - Plan de maison à entrée split, économique, garage avec rangement, 2 à 4 chambres, s-sol aménagé optionnel ($) - Madeline

Sous-sol aménageable

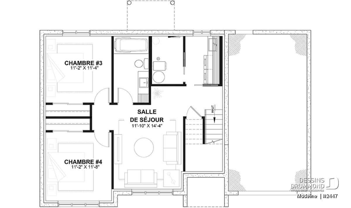
Sous-sol aménagé (Optionel $) - Plan de maison à entrée split, économique, garage avec rangement, 2 à 4 chambres, s-sol aménagé optionnel ($) - Madeline

Sous-sol aménagé (Optionel $)

Élévation arrière - Madeline

Élévation arrière

Madeline  Plan de maison 2447

Plan de maison à entrée split, économique, garage avec rangement, 2 à 4 chambres, s-sol aménagé optionnel ($)

À partir de

1215$

Fiche technique sommaire Plan #2447
Estimation ($) 279,618$ (Sous-sol non-fini) | 310,169$ (Sous-sol fini)
Surface habitable 901 pi² Chambre 2, 3, 4
Salle de Bain 2 Salle d'eau -
Fondation incluse Sous-sol aménageable Garage 1 voiture
Largeur 46'0" Profondeur 30'0"

Besoin d’aide ?

Nos experts vous guident dans votre projet grâce à plus de 30 bureaux au Québec.

Joignez-nous

Consultez notre guide utilisateur

Un outil conçu pour vous simplifier la vie.

Ouvrir le guide

Un accompagnement sur mesure

De la modification de plans au design d’intérieur, nous vous guidons à chaque étape.

Découvrir nos services

Photos du plan Madeline

Les photos de cette maison peuvent différer du plan d'origine, duquel elles proviennent. Pour toute modification, veuillez contacter l’un de nos 30 bureaux.

Détails supplémentaires

Estimation

Spécifications générales

Surface aménagée totale
901 pi²
Rez-de-chaussée
901 pi²
Sous-sol aménageable
901 pi²
Sous-sol aménagé (Optionel $)
901 pi²
Largeur
46'0"
Profondeur
30'0"
Hauteur dessus fondations au faite
20'4"
Murs extérieurs
2 X 6
Murs extérieurs
2 X 6
Sous-sol aménageable
Autres fondations disponibles (des frais peuvent s'appliquer)
Sous-sol aménagé
Code Entrepreneur
A

Spécifications sur les pièces

Chambre(s)
2, 3, 4
Salle(s) de bain complète(s)
2
Demi Salle(s) de Bain
-
Type de garage
1 voiture (394 pi²)
Superficie balcon et/ou perron abrité
32 pi²

Rez-de-chaussée

Pièces
Dimensions
Plafond
Salle de bain complète
13'4" x 5'6"
~ 8'0"
Cuisine/salle à manger
17'0" x 11'0"
~ 8'0"
Garde-manger
1'6" x 2'0"
N/D
Salle de séjour
12'0" x 15'0"
~ 8'0"
Chambre à coucher
11'0" x 11'0"
~ 8'0"
Garde-robe
7'9" x 2'0"
~ 8'0"
Chambre à coucher
11'0" x 9'0"
~ 8'0"
Garde-robe
2'0" x 7'0"
~ 8'0"
Garage
13'4" x 26'8"
~ 8'10"
Perron
6'4" x 5'0"
N/D
Terrasse
8'0" x 5'0"
N/D
Entrée ou vestibule
6'8" x 5'2"
~ 8'0"
Garde-robe
2'6" x 2'10"
~ 8'0"

Sous-sol aménagé (Optionel $)

Pièces
Dimensions
Plafond
Chambre à coucher
11'2" x 11'4"
~ 8'0"
Chambre à coucher
11'2" x 11'8"
~ 8'0"
Salle de bain
6'0" x 11'4"
~ 8'0"
Pièce de mécanique
5'4" x 8'2"
~ 8'0"
Salle de lavage
5'10" x 8'2"
~ 8'0"
Salle familiale
11'10" x 14'4"
~ 8'0"

Sous-sol aménageable

Plan de maison à entrée split offrant de 2 à 4 chambres, selon la finition du sous-sol!

Découvrez une maison au charme américain, pensée pour combiner confort, fonctionnalité et convivialité. Son entrée split accueille chaleureusement les occupants et les invités, avec une garde-robe pratique à proximité pour organiser manteaux et chaussures dès l’arrivée.

Au cœur de la maison, la cuisine fonctionnelle séduit par son petit îlot pratique qui facilite la préparation des repas tout en permettant de jaser avec la famille ou les amis. Ouverte sur la salle de séjour lumineuse, elle crée une ambiance accueillante et décontractée, parfaite pour partager les moments du quotidien.

Le coin salle à dîner devient un espace unique grâce à sa jolie banquette intégrée, à la fois esthétique et pratique, idéale pour les repas en famille ou les brunchs du dimanche. Une arche décorative guide élégamment le regard vers la chambre principale et la salle de bain complète, qui se distingue par son bain relaxant et sa douche séparée, offrant une véritable zone de détente après une longue journée. La luminosité naturelle baigne la chambre principale et la salle de séjour, créant une atmosphère apaisante et chaleureuse.

*Sous-sol aménagé (optionnel $)
En choisissant l’aménagement du sous-sol, vous transformez votre maison en un véritable espace familial polyvalent. Il comprend deux chambres additionnelles, parfaites pour les adolescents, les invités ou un bureau à domicile. S’ajoutent une salle de bain complète, une salle mécanique, une salle de lavage pratique et une grande salle de séjour, idéale pour les soirées cinéma, la salle de jeux ou un espace détente pour toute la famille.

Ce plan de maison au style américain offre un équilibre parfait entre charme, confort moderne et espaces bien pensés, répondant aux besoins d’une vie familiale harmonieuse tout en permettant de recevoir avec aisance.
---
*Si vous souhaitez acheter le plan du sous-sol aménagé, tel que présenté sur la page de ce plan, veuillez sélectionner cette option dans le panier d'achat, dans la section "Sélectionner votre fondation". Si vous ne sélectionnez pas cette option, vous recevrez le sous-sol non fini, sans frais additionnel.

Éléments distinctifs

Plan de maison avec garage au style américain.
Entrée split accueillante avec garde-robe à proximité.
Cuisine fonctionnelle avec petit îlot, ouverte sur la salle de séjour pour plus de convivialité.
Coin repas chaleureux agrémenté d’une jolie banquette intégrée.
Arche décorative menant à la chambre principale et à la salle de bain, équipée d’un bain et d’une douche séparée.
Belle luminosité naturelle dans la chambre principale et la salle de séjour, créant une ambiance lumineuse et agréable.

*Sous-sol aménagé (optionnel $) :
Deux chambres supplémentaires, salle de bain complète, salle mécanique, salle de lavage et grande salle de séjour pour recevoir ou se détendre.
---
*Si vous souhaitez acheter le plan du sous-sol aménagé, tel que présenté sur la page de ce plan, veuillez sélectionner cette option dans le panier d'achat, dans la section "Sélectionner votre fondation". Si vous ne sélectionnez pas cette option, vous recevrez le sous-sol non fini, sans frais additionnel.

Particularité(s) du plan

Bain et douche séparés, Aire ouverte, Ilôt, Banquette, Arche, Entrepreneur, Auto-Construction

Style(s) architectural du plan

Champêtre, Traditionnelle, Ranch, Farmhouse moderne, Américain, Farmhouse

Plans similaires
Logo Dessins Drummond image Dessins Drummond
Le modèle Madeline est protégé par la loi sur les droits d'auteur.

Les illustrations présentées peuvent différer du plan détaillé que vous recevrez, car ces derniers sont régulièrement ajustés afin de respecter les normes de construction en vigueur.

En savoir plus

Une question ou un commentaire sur ce plan ?

Information de contact

Votre demande

Ajouter vos images ou photos

Pour ajouter une ou des photos, veuillez cliquer ou glisser vos fichiers dans la zone ci-bas. Vous pouvez ajouter jusqu'à huit photos JPG ou JPEG. Cette opération n'est pas obligatoire.

Désolé, votre navigateur ne supporte pas l'envoi de fichier.