Vue avant - MODÈLE DE BASE - Plan de triplex, 2 chambres, 1 salle de bain, terrasse, aire ouverte et garde-manger à chaque logement - Herstal

Vue avant - MODÈLE DE BASE

Rez-de-chaussée - Plan de triplex, 2 chambres, 1 salle de bain, terrasse, aire ouverte et garde-manger à chaque logement - Herstal

Rez-de-chaussée

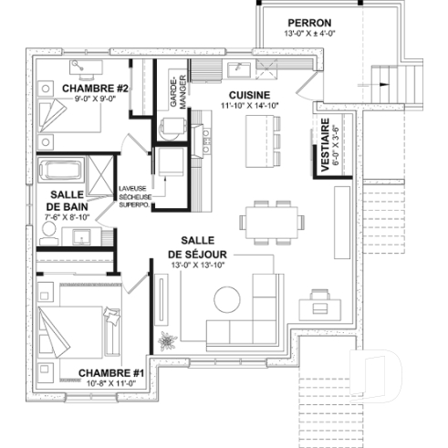
Étage - Plan de triplex, 2 chambres, 1 salle de bain, terrasse, aire ouverte et garde-manger à chaque logement - Herstal

Étage

Sous-sol - Plan de triplex, 2 chambres, 1 salle de bain, terrasse, aire ouverte et garde-manger à chaque logement - Herstal

Sous-sol

Vue avant - MODÈLE DE BASE - Herstal

Vue avant - MODÈLE DE BASE

Vue avant - MODÈLE DE BASE - Herstal

Vue avant - MODÈLE DE BASE

Élévation arrière - Herstal

Élévation arrière

Alternative - Herstal

Alternative

Herstal Plan de maison 3033

Plan de triplex, 2 chambres, 1 salle de bain, terrasse, aire ouverte et garde-manger à chaque logement

À partir de

2300$

Fiche technique sommaire Plan #3033
Estimation ($) - (Sous-sol non-fini) | 653,250$ (Sous-sol fini)
Surface habitable 3011 pi² Chambre 2
Salle de Bain 1 Salle d'eau -
Fondation incluse Sous-sol aménagé Garage -
Largeur 32'8" Profondeur 34'0"

Besoin d’aide ?

Nos experts vous guident dans votre projet grâce à plus de 30 bureaux au Québec.

Joignez-nous

Consultez notre guide utilisateur

Un outil conçu pour vous simplifier la vie.

Ouvrir le guide

Besoin d’une assurance habitation ?

Pour obtenir votre prix, c’est juste ici

Obtenir une soumission

Photos du plan Herstal

Les photos de cette maison peuvent différer du plan d'origine, duquel elles proviennent. Pour toute modification, veuillez contacter l’un de nos 30 bureaux.

Détails supplémentaires

Estimation

Spécifications générales

Surface aménagée totale
3011 pi²
Rez-de-chaussée
1010 pi²
Étage
991 pi²
Sous-sol
1010 pi²
Largeur
32'8"
Profondeur
34'0"
Hauteur dessus fondations au faite
35'3"
Murs extérieurs
2 X 6
Murs extérieurs
2 X 6
Code Entrepreneur
MD

Spécifications sur les pièces

Chambre(s)
2
Salle(s) de bain complète(s)
1
Demi Salle(s) de Bain
-
Type de garage
-
Superficie balcon et/ou perron abrité
152 pi²

Spécifications des unités

LOGEMENT 1
LOGEMENT 2
LOGEMENT 3
Surface aménagée totale
1005 pi²
1005 pi²
1005 pi²
Sous-sol
1005 pi²
Rez-de-chaussée
1005 pi²
Étage
1005 pi²
Largeur
32' 8"
32' 8"
32' 8"
Profondeur
34' 0"
34' 0"
34' 0"
Hauteur dessus fondations au faite
35' 3"
35' 3"
35' 3"
Murs extérieurs
2 X 6
2 X 6
2 X 6
Type de fondation
Sous-sol aménagé
Sous-sol aménagé
Sous-sol aménagé
Chambre(s)
2
2
2
Salle(s) de bain
1
1
1
Demi Salle(s) de Bain
-
-
-
Type de garage
-
-
-
Espace boni aménageable
-
-
-
Rangement boni
-
-
-

Sous-sol

Pièces
Dimensions
Plafond
Salle de bain complète
7'6" x 8'10"
~ 8'0"
Douche
2'8" x 4'0"
N/D
Lingerie
1'2" x 1'6"
N/D
Cuisine/salle à manger
11'10" x 14'10"
~ 8'0"
Garde-robe
3'5" x 2'0"
~ 8'0"
Garde-manger
3'0" x 8'0"
~ 8'0"
Îlot
5'0" x 2'8"
N/D
Salle de séjour
13'0" x 13'10"
~ 8'0"
Chambre à coucher
10'8" x 11'0"
~ 8'0"
Chambre à coucher
9'0" x 9'0"
~ 8'0"
Salle de lavage
3'2" x 6'0"
~ 8'0"
Vestiaire
6'0" x 3'6"
~ 8'0"
Perron abrité
13'0" x 4'0"
~ 8'4"

Rez-de-chaussée

Pièces
Dimensions
Plafond
Salle de bain complète
7'10" x 8'10"
~ 8'0"
Douche
2'8" x 4'0"
N/D
Lingerie
1'2" x 1'6"
N/D
Cuisine/salle à manger
12'2" x 15'2"
~ 8'0"
Garde-manger
2'0" x 2'7"
N/D
Garde-manger
8'4" x 3'0"
~ 8'0"
Îlot
5'0" x 2'8"
N/D
Salle de séjour
13'4" x 14'2"
~ 8'0"
Chambre à coucher
11'4" x 11'4"
~ 8'0"
Entrée ou vestibule
6'4" x 6'6"
~ 8'0"
Garde-robe
3'4" x 2'0"
~ 8'0"
Perron abrité
6'4" x 4'4"
~ 8'4"
Chambre à coucher
9'4" x 9'4"
~ 8'0"
Salle de lavage
3'2" x 6'0"
~ 8'0"
Perron abrité
8'0" x 4'0"
~ 8'4"
Perron abrité
10'4" x 4'8"
~ 8'4"
Garde-robe
3'4" x 2'0"
~ 8'0"

Étage

Pièces
Dimensions
Plafond
Cuisine/salle à manger
12'2" x 15'2"
~ 8'0"
Garde-manger
3'0" x 8'4"
~ 8'0"
Îlot
5'0" x 2'8"
N/D
Salle de séjour
13'4" x 14'2"
~ 8'0"
Garde-robe
2'0" x 5'8"
~ 8'0"
Chambre à coucher
11'4" x 11'4"
~ 8'0"
Chambre à coucher
9'4" x 9'4"
~ 8'0"
Garde-robe
5'10" x 2'0"
~ 8'0"
Salle de bain complète
7'10" x 8'10"
~ 8'0"
Douche
2'8" x 4'0"
N/D
Lingerie
1'2" x 1'6"
N/D
Salle de lavage
3'2" x 6'0"
~ 8'0"
Balcon
10'4" x 4'8"
~ 8'4"
Garde-robe
3'6" x 2'0"
~ 8'0"

Plan de triplex lumineux, de style moderne rustique, proposant 2 chambres par logement et une superbe cuisine!

.

Éléments distinctifs

Magnifique triplex de styles moderne rustique.
Matériaux nobles et teintes chaleureuses.
Entrée privée à chaque logement.
Belle lumière naturelle à la salle de séjour ainsi qu'à la chambre principale.
Une garde-robe ou vestiaire est prévu à proximité de chacune des entrées.
Coin bureau aménagé au logement 3 (sous-sol) et logement 2 (étage).
Cuisine avec îlot et garde-manger à chaque unité.
Salle de lavage pour laveuse-sécheuse superposées près des chambres.
Salle de bain avec bain et douche séparés.
Petite terrasse abritée à chaque unité.



Particularité(s) du plan

Aire ouverte, Ilôt, Garde-manger, Bain et douche séparés, Coin bureau, Coin bureau, Vestiaire

Style(s) architectural du plan

Moderne rustique, Champêtre, Nordique, Anglais, Européen, Classique, Nordique Moderne, Traditionnelle

beneva
beneva

Offrir la meilleure expérience d’assurance au Canada grâce à notre simplicité inégalée.

Maibec
Maibec
VStyle
À partir de 2,75$/pi².

Spécialiste des systèmes de revêtement

Oceania
Oceania
Concept Optimale

Depuis notre fondation en 1995, Bains Oceania est engagé à offrir à ses clients une expérience unique et raffinée dans leur environnement spa résidentiel. Grâce à notre savoir-faire et à notre passion pour l’innovation, nous fabriquons ici, des produits de grande qualité, pour vous.

Boiseries Raymond
Boiseries Raymond
Porte 555

Chef de file dans le préassemblage de portes intérieures au Québec. Cette force nous permet de vous fournir une variété de modèles préassemblées selon vos spécifications et selon le volume de production requis.

Boiseries Raymond
Boiseries Raymond
Porte 555

Chef de file dans le préassemblage de portes intérieures au Québec. Cette force nous permet de vous fournir une variété de modèles préassemblées selon vos spécifications et selon le volume de production requis.

Boiseries Raymond
Boiseries Raymond
Porte 555

Chef de file dans le préassemblage de portes intérieures au Québec. Cette force nous permet de vous fournir une variété de modèles préassemblées selon vos spécifications et selon le volume de production requis.

Boiseries Raymond
Boiseries Raymond
Porte 151

Chef de file dans le préassemblage de portes intérieures au Québec. Cette force nous permet de vous fournir une variété de modèles préassemblées selon vos spécifications et selon le volume de production requis.

Plans similaires
Logo Dessins Drummond image Dessins Drummond
Le modèle Herstal est protégé par la loi sur les droits d'auteur.

Les illustrations présentées peuvent différer du plan détaillé que vous recevrez, car ces derniers sont régulièrement ajustés afin de respecter les normes de construction en vigueur.

En savoir plus

Une question ou un commentaire sur ce plan ?

Information de contact

Votre demande

Ajouter vos images ou photos

Pour ajouter une ou des photos, veuillez cliquer ou glisser vos fichiers dans la zone ci-bas. Vous pouvez ajouter jusqu'à huit photos JPG ou JPEG. Cette opération n'est pas obligatoire.

Désolé, votre navigateur ne supporte pas l'envoi de fichier.