Vue avant - MODÈLE DE BASE - Bungalow style rustique, 3 chambres, garage avec espace boni au-dessus - Creole 2

Vue avant - MODÈLE DE BASE

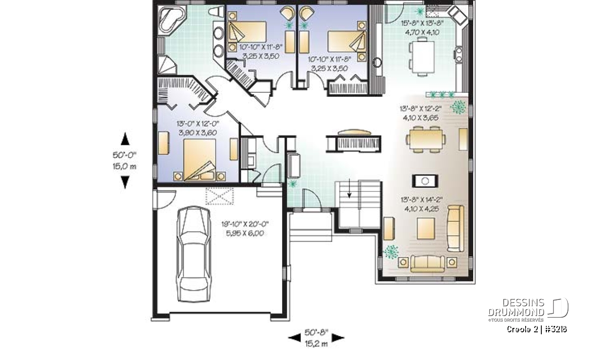
Rez-de-chaussée - Bungalow style rustique, 3 chambres, garage avec espace boni au-dessus - Creole 2

Rez-de-chaussée

Rangement boni - Bungalow style rustique, 3 chambres, garage avec espace boni au-dessus - Creole 2

Rangement boni

Élévation arrière - Creole 2

Élévation arrière

Creole 2 Plan de maison 3218

Bungalow style rustique, 3 chambres, garage avec espace boni au-dessus

À partir de

1600$

Fiche technique sommaire Plan #3218
Estimation ($) 498,511$
Surface habitable 1795 pi² Chambre 3
Salle de Bain 1 Salle d'eau -
Fondation incluse Sous-sol aménageable Garage 2 voitures
Largeur 50'8" Profondeur 50'0"

Besoin d’aide ?

Nos experts vous guident dans votre projet grâce à plus de 30 bureaux au Québec.

Joignez-nous

Consultez notre guide utilisateur

Un outil conçu pour vous simplifier la vie.

Ouvrir le guide

Un accompagnement sur mesure

De la modification de plans au design d’intérieur, nous vous guidons à chaque étape.

Découvrir nos services

Détails supplémentaires

Estimation

Spécifications générales

Surface aménagée totale
1795 pi²
Rez-de-chaussée
1795 pi²
Rangement boni
0 pi²
Largeur
50'8"
Profondeur
50'0"
Hauteur dessus fondations au faite
26'0"
Murs extérieurs
2 X 6
Murs extérieurs
2 X 6
Sous-sol aménageable
Autres fondations disponibles (des frais peuvent s'appliquer)
Dalle flottante, Vide sanitaire, Dalle monolithique
Code Entrepreneur
D

Spécifications sur les pièces

Chambre(s)
3
Salle(s) de bain complète(s)
1
Demi Salle(s) de Bain
-
Type de garage
2 voitures (448 pi²)
256 pi²
Superficie balcon et/ou perron abrité
14 pi²

Rez-de-chaussée

Pièces
Dimensions
Plafond
Salle de bain complète
10'8" x 11'0"
~ 8'0"
Cuisine
15'8" x 13'8"
~ 8'0"
Garde-manger
2'0" x 2'10"
N/D
Salle à manger
13'8" x 12'2"
~ 8'0"
Salle de séjour
13'8" x 14'2"
~ 8'0"
Chambre à coucher
13'0" x 12'0"
~ 8'0"
Walk-in
8'8" x 4'0"
~ 8'0"
Chambre à coucher
10'10" x 11'8"
~ 8'0"
Garde-robe
5'4" x 2'0"
~ 8'0"
Chambre à coucher
10'10" x 11'8"
~ 8'0"
Garde-robe
6'0" x 2'0"
~ 8'0"
Lingerie
3'6" x 2'0"
~ 8'0"
Entrée ou vestibule
7'7" x 8'8"
~ 8'0"
Garde-robe
6'6" x 2'0"
~ 8'0"
Salle utilitaire (buanderie +)
7'0" x 6'10"
~ 8'0"
Garage
19'10" x 20'0"
~ 9'8"
Perron
6'8" x 2'6"
N/D

Rangement boni

Pièces
Dimensions
Plafond
Rangement boni
12'0" x 20'0"
~ 8'0"

Extérieur et intérieur remarquables

de 2 ou 3 chambres

Voici un plain-pied des plus remarquables avec garage double et version deux ( 3217 ) ou trois ( 3218 ) chambres.

Qu’il s’agisse du deux ou du trois chambres, l’intérieur demeure des plus fonctionnel tout en suggérant, dans chacun des cas, un plafond cathédrale au secteur salle à manger et salle de séjour. On y apprécie en plus, un foyer mitoyen tout à fait élégant dans ce bel espace ouvert et en hauteur.

Une fois de plus, dans chacun des modèles, la cuisine se veut des plus fonctionnelle avec suffisamment de rangement, un îlot central et un espace dînette tout en lumière. Dans chacun des plans, la salle de bain demeure dégagée en proposant une douche en coin alors qu’un espace buanderie indépendant se retrouve tout près.

En plus d’apprécier le garage double proposé, les nouveaux propriétaires seront comblés par l’espace rangement aménagé dans l’attique situé juste au-dessus.

Éléments distinctifs

Plafond cathédrale à la salle de séjour et à la salle à manger. Foyer mitoyen à ces deux salles. Vaste cuisine intégrant un îlot/lunch remarquable et plein de rangement. Belle chambre 1 avec garde-robe adéquate. Espace rangement au-dessus du garage.

Particularité(s) du plan

Foyer, Bain et douche séparés, Lavabo double, Plafond cathédrale, Ilôt, Salle de lavage au rez-de-chaussée, Walk-in ch. maîtres

Style(s) architectural du plan

Américain, Nordique, Champêtre, Moderne rustique, Rustique, Cape Cod

Plans similaires
Logo Dessins Drummond image Dessins Drummond
Le modèle Creole 2 est protégé par la loi sur les droits d'auteur.

Les illustrations présentées peuvent différer du plan détaillé que vous recevrez, car ces derniers sont régulièrement ajustés afin de respecter les normes de construction en vigueur.

En savoir plus

Une question ou un commentaire sur ce plan ?

Information de contact

Votre demande

Ajouter vos images ou photos

Pour ajouter une ou des photos, veuillez cliquer ou glisser vos fichiers dans la zone ci-bas. Vous pouvez ajouter jusqu'à huit photos JPG ou JPEG. Cette opération n'est pas obligatoire.

Désolé, votre navigateur ne supporte pas l'envoi de fichier.