Vue avant - MODÈLE DE BASE - Maison avec salon spectaculaire, cuisine avec grand îlot, foyer, bureau, 3 à 4 chambres, grande suite parents - Roberval

Vue avant - MODÈLE DE BASE

Rez-de-chaussée - Maison avec salon spectaculaire, cuisine avec grand îlot, foyer, bureau, 3 à 4 chambres, grande suite parents - Roberval

Rez-de-chaussée

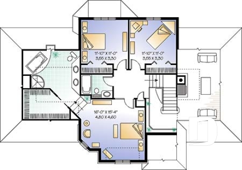
Étage - Maison avec salon spectaculaire, cuisine avec grand îlot, foyer, bureau, 3 à 4 chambres, grande suite parents - Roberval

Étage

Vue avant - MODÈLE DE BASE - Roberval

Vue avant - MODÈLE DE BASE

Élévation arrière - Roberval

Élévation arrière

Roberval Plan de maison 2891

Maison avec salon spectaculaire, cuisine avec grand îlot, foyer, bureau, 3 à 4 chambres, grande suite parents

À partir de

1765$

Fiche technique sommaire Plan #2891
Estimation ($) 691,244$
Surface habitable 2281 pi² Chambre 3
Salle de Bain 2 Salle d'eau 1
Fondation incluse Sous-sol aménageable Garage 2 voitures
Largeur 58'0" Profondeur 40'0"

Besoin d’aide ?

Nos experts vous guident dans votre projet grâce à plus de 30 bureaux au Québec.

Joignez-nous

Consultez notre guide utilisateur

Un outil conçu pour vous simplifier la vie.

Ouvrir le guide

Un accompagnement sur mesure

De la modification de plans au design d’intérieur, nous vous guidons à chaque étape.

Découvrir nos services

Les photos de cette maison peuvent différer du plan d'origine, duquel elles proviennent. Pour toute modification, veuillez contacter l’un de nos 30 bureaux.

Détails supplémentaires

Estimation

Spécifications générales

Surface aménagée totale
2281 pi²
Rez-de-chaussée
1243 pi²
Étage
1038 pi²
Largeur
58'0"
Profondeur
40'0"
Hauteur dessus fondations au faite
39'10"
Murs extérieurs
2 X 6
Murs extérieurs
2 X 6
Sous-sol aménageable
Autres fondations disponibles (des frais peuvent s'appliquer)
Dalle flottante, Vide sanitaire
Code Entrepreneur
F

Spécifications sur les pièces

Chambre(s)
3
Salle(s) de bain complète(s)
2
Demi Salle(s) de Bain
1
Type de garage
2 voitures (535 pi²)
Superficie balcon et/ou perron abrité
21 pi²

Rez-de-chaussée

Pièces
Dimensions
Plafond
Cuisine
12'0" x 13'4"
~ 8'0"
Salle à manger
12'0" x 14'4"
~ 8'0"
Salle de séjour
13'8" x 24'0"
~ 17'2"
Bureau à domicile
14'4" x 11'0"
~ 8'0"
Entrée ou vestibule
7'0" x 4'8"
~ 12'9"
Salle utilitaire (buanderie +)
8'6" x 8'2"
~ 8'0"
Garage
20'0" x 24'0"
~ 10'6"
Perron
7'0" x 3'0"
N/D
Patio
7'0" x 6'0"
N/D
Demie salle de bain ou coin toilette
2'10" x 5'10"
~ 8'0"
Lingerie
3'2" x 2'0"
~ 8'0"

Étage

Pièces
Dimensions
Plafond
Salle de bain complète
7'8" x 5'10"
~ 8'0"
Chambre à coucher
11'10" x 11'0"
~ 8'0"
Chambre à coucher
11'10" x 11'0"
~ 8'0"
Lingerie
2'0" x 2'0"
~ 8'0"
Suite des maîtres
16'0" x 15'4"
~ 8'0"
Balcon
0'0" x 0'0"
N/D

Cottage noble et confortable

Des lignes remarquables, des volumes attrayants et bien balancés, une fenestration abondante et des matériaux extérieurs tout à fait adéquats procurent à cette maison toute la noblesse recherchée lors de la conception.

À l’intérieur, une fois le vestibule franchi, ce sont des espaces confortables qui s’organisent stratégiquement autour de l’escalier permettant ainsi une minimisation des corridors. On remarque d’abord une vaste salle de séjour, agrémentée d’un foyer et d’un plafond cathédrale, indispensable pour un tel espace, et, par la suite, une cuisine/dînette avec îlot central pratique, un espace salle à manger bien fenêtré et de volume original, une assez grande buanderie indépendante et un espace bureau des plus enviables occupant, avec un espace lecture ou divertissement, la tour située à l’avant.

À l’étage, ce sont trois belles chambres qui composent le plancher. La chambre des maîtres bénéficie, pour sa part, d’une très grande garde-robe ainsi que d’une grande salle de bain alors que les deux autres chambres, suffisamment confortables, se partagent une seconde salle de bain toujours des plus appréciées des familles avec adolescents.

Éléments distinctifs

Fenestration abondante et spéciale, faux balcon à l''étage, bureau ou chambre #4, bain en coin et éviers double dans la salle de bain des maîtres, plafond cathédrale dans la salle familiale, rangements intégrés, garage surdimensionné, jeux de volume au plafond.

Particularité(s) du plan

Foyer, Plafond cathédrale, Bureau / Salle étude, Entrée ouverte sur 2 étages, Salle de lavage au rez-de-chaussée, Ilôt, Plafond en pente, Bain et douche séparés, Walk-in ch. maîtres, Suite des maîtres à l'étage

Style(s) architectural du plan

Européen, Manoirs et châteaux

Plans similaires
Logo Dessins Drummond image Dessins Drummond
Le modèle Roberval est protégé par la loi sur les droits d'auteur.

Les illustrations présentées peuvent différer du plan détaillé que vous recevrez, car ces derniers sont régulièrement ajustés afin de respecter les normes de construction en vigueur.

En savoir plus

Une question ou un commentaire sur ce plan ?

Information de contact

Votre demande

Ajouter vos images ou photos

Pour ajouter une ou des photos, veuillez cliquer ou glisser vos fichiers dans la zone ci-bas. Vous pouvez ajouter jusqu'à huit photos JPG ou JPEG. Cette opération n'est pas obligatoire.

Désolé, votre navigateur ne supporte pas l'envoi de fichier.