Vue avant - MODÈLE DE BASE - Plan de maison Farmhouse à étage, 3 chambres, 2.5 s.bain, bureau, garage double, terrasse abritée - Sunny Haven 2

Vue avant - MODÈLE DE BASE

Rez-de-chaussée - Plan de maison Farmhouse à étage, 3 chambres, 2.5 s.bain, bureau, garage double, terrasse abritée - Sunny Haven 2

Rez-de-chaussée

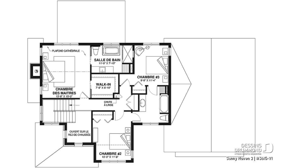
Étage - Plan de maison Farmhouse à étage, 3 chambres, 2.5 s.bain, bureau, garage double, terrasse abritée - Sunny Haven 2

Étage

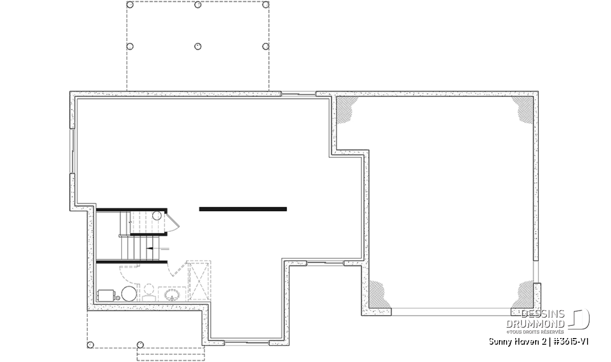
Sous-sol aménageable - Plan de maison Farmhouse à étage, 3 chambres, 2.5 s.bain, bureau, garage double, terrasse abritée - Sunny Haven 2

Sous-sol aménageable

Vue avant - MODÈLE DE BASE - Sunny Haven 2

Vue avant - MODÈLE DE BASE

Élévation arrière - Sunny Haven 2

Élévation arrière

Vue intérieure - Sunny Haven 2

Vue intérieure

Vue intérieure - Sunny Haven 2

Vue intérieure

Sunny Haven 2 Plan de maison 3615-V1

Plan de maison Farmhouse à étage, 3 chambres, 2.5 s.bain, bureau, garage double, terrasse abritée

À partir de

1655$

Fiche technique sommaire Plan #3615-V1
Estimation ($) 675,580$
Surface habitable 2153 pi² Chambre 3
Salle de Bain 2 Salle d'eau 1
Fondation incluse Sous-sol aménageable Garage 2 voitures
Largeur 62'8" Profondeur 34'0"

Besoin d’aide ?

Nos experts vous guident dans votre projet grâce à plus de 30 bureaux au Québec.

Joignez-nous

Consultez notre guide utilisateur

Un outil conçu pour vous simplifier la vie.

Ouvrir le guide

Un accompagnement sur mesure

De la modification de plans au design d’intérieur, nous vous guidons à chaque étape.

Découvrir nos services

Les photos de cette maison peuvent différer du plan d'origine, duquel elles proviennent. Pour toute modification, veuillez contacter l’un de nos 30 bureaux.

Détails supplémentaires

Estimation

Spécifications générales

Surface aménagée totale
2153 pi²
Rez-de-chaussée
1098 pi²
Étage
1055 pi²
Sous-sol aménageable
1098 pi²
Largeur
62'8"
Profondeur
34'0"
Hauteur dessus fondations au faite
33'6"
Murs extérieurs
2 X 6
Murs extérieurs
2 X 6
Sous-sol aménageable
Autres fondations disponibles (des frais peuvent s'appliquer)
Dalle flottante, Vide sanitaire, Dalle monolithique
Code Entrepreneur
E

Spécifications sur les pièces

Chambre(s)
3
Salle(s) de bain complète(s)
2
Demi Salle(s) de Bain
1
Type de garage
2 voitures (722 pi²)
Superficie balcon et/ou perron abrité
78 pi²

Rez-de-chaussée

Pièces
Dimensions
Plafond
Perron abrité
15'8" x 5'0"
~ 8'6"
Bureau à domicile
10'0" x 9'0"
~ 9'0"
Entrée ou vestibule
6'0" x 9'0"
~ 9'0"
Walk-in
7'8" x 5'4"
~ 9'0"
Salle de bain
4'0" x 7'8"
~ 9'0"
Salle de lavage
6'8" x 7'6"
~ 9'0"
Salle de séjour
13'8" x 15'4"
~ 9'0"
Salle à manger
10'6" x 15'4"
~ 9'0"
Cuisine
12'0" x 15'4"
~ 9'0"
Îlot
7'0" x 3'8"
N/D
Garde-manger
6'0" x 9'10"
~ 9'0"
Terrasse abritée
12'0" x 19'0"
~ 9'0"
Garage
22'0" x 28'4"
~ 10'0"

Étage

Pièces
Dimensions
Plafond
Chambre à coucher
10'0" x 11'6"
~ 8'0"
Garde-robe
2'0" x 4'8"
~ 8'0"
Chambre à coucher
9'9" x 11'4"
~ 8'0"
Garde-robe
2'0" x 3'10"
~ 8'0"
Salle de bain communicante
8'0" x 8'0"
~ 8'0"
Lingerie
2'0" x 1'10"
~ 8'0"
Suite des maîtres
13'8" x 15'0"
~ 10'0"
Salle de bain complète
11'9" x 7'10"
~ 8'0"
Douche
3'0" x 5'0"
~ 8'0"
Lingerie
2'6" x 2'0"
~ 8'0"
Walk-in
7'8" x 6'10"
~ 8'0"

Sous-sol aménageable

Plan de maison Farmhouse 3 chambres, garage double et bureau à la maison!

Le plan de maison SUNNY HAVEN 2 (#3615-V1), est un version agrandie de son plan de base #3615. Cette nouvelle version offre 543 pieds carrés de plus que du modèle qu'il origine, et un garage double au lieu d'un simple.

À l'avant, au rez-de-chaussée, se retrouve un grand vestiaire d'un côté et un bureau à domicile de l'autre. Puis une salle d'eau et une salle de lavage spacieuse avec chute à linge provenant de l'étage et un espace comptoir. La cuisine a un grand îlot ainsi qu'un garde-manger, et elle est ouverte sur la salle à manger et la salle de séjour. Un foyer s'y retrouve, et il est à noté que tous les plafonds du premier sont à 9' de hauteur. Un grand perron abrité de plus de 12' x 19' est accessible de ce secteur.

À l'étage on retrouve la suite des parents avec walk-in, salle de bain privée et plafond cathédral. Deux chambres d'enfants (ou secondaires) se partage une salle de bain privée.

Le sous-sol est non-fini et à aménager selon vos besoins futurs.

Éléments distinctifs

Superbe plan de maison Farmhouse Moderne.
Grande terrasse abritée à l'arrière.
Entrée avant ouverte sur 2 étages.
Bureau à domicile.
Grand vestiaire à l'entrée.
Plafond à 9' au rez-de-chaussée et 8' à l'étage, sauf à la suite des parents qui a un plafond cathédral.
Grand garde-manger et îlot à la cuisine.
Salle de lavage au rez-de-chaussée avec chute à linge.
Terrasse abritée à l'arrière et belle grande galerie couverte à l'avant.
Suite des parents avec plafond cathédral, salle de bain privée, et garde-robe de type walk-in.
Chute à linge dans le corridor de l'étage pour facilité d'accès par tous les membres de la famille.
Sous-sol à aménager selon vos besoins futurs.
Garage double.

Particularité(s) du plan

Aire ouverte, Entrée ouverte sur 2 étages, Salle de lavage au rez-de-chaussée, Suite des maîtres à l'étage, Ilôt, Garde-manger, Vestiaire, Bureau / Salle étude, Foyer, Walk-in ch. maîtres, Salle de bain communicante, Plafond à plus de 8', Plafond cathédrale, Bain et douche séparés, Bar à café, Garage spacieux, Mezzanine, Terrasse abritée, Chute à linge, Porte(s) de grange, Banquette

Style(s) architectural du plan

Farmhouse moderne, Nordique Moderne, Américain, En montagne, Farmhouse, Transitionnel, Champêtre, Moderne rustique, Nordique

Maibec
Maibec
Planche & couvre-joint
À partir de 6,25$/pi².

Spécialiste des systèmes de revêtement

Willki
Willki

Les panneaux de pierre vissés Willki transforment vos projets en un clin d'œil. Faciles à installer, durables et écoresponsables, ils offrent le look naturel de la pierre pour une fraction du coût. *Peut nécessiter une modification au plan

Plans similaires
Logo Dessins Drummond image Dessins Drummond
Le modèle Sunny Haven 2 est protégé par la loi sur les droits d'auteur.

Les illustrations présentées peuvent différer du plan détaillé que vous recevrez, car ces derniers sont régulièrement ajustés afin de respecter les normes de construction en vigueur.

En savoir plus

Une question ou un commentaire sur ce plan ?

Information de contact

Votre demande

Ajouter vos images ou photos

Pour ajouter une ou des photos, veuillez cliquer ou glisser vos fichiers dans la zone ci-bas. Vous pouvez ajouter jusqu'à huit photos JPG ou JPEG. Cette opération n'est pas obligatoire.

Désolé, votre navigateur ne supporte pas l'envoi de fichier.