Alternative - 3 chambres 2 salles de bain, maison contemporaine, terrasses couvertes, suite des maîtres, garage double - Liana

Alternative

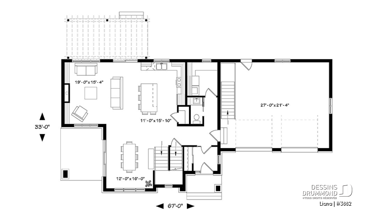
Rez-de-chaussée - 3 chambres 2 salles de bain, maison contemporaine, terrasses couvertes, suite des maîtres, garage double - Liana

Rez-de-chaussée

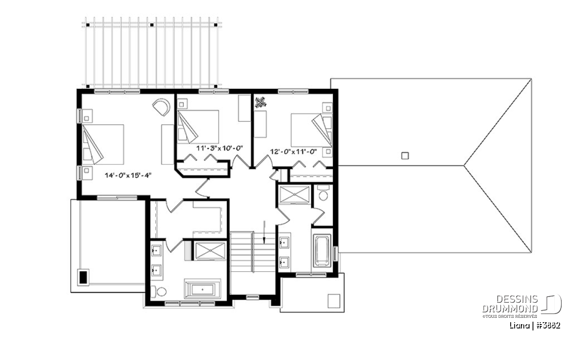
Étage - 3 chambres 2 salles de bain, maison contemporaine, terrasses couvertes, suite des maîtres, garage double - Liana

Étage

Vue avant - MODÈLE DE BASE - Liana

Vue avant - MODÈLE DE BASE

Vue avant - MODÈLE DE BASE - Liana

Vue avant - MODÈLE DE BASE

Élévation arrière - Liana

Élévation arrière

Version couleur no. 1 - Vue avant - Liana

Version couleur no. 1 - Vue avant

Version couleur no. 2 - Vue avant - Liana

Version couleur no. 2 - Vue avant

Version couleur no. 3 - Vue avant - Liana

Version couleur no. 3 - Vue avant

Version couleur no. 4 - Vue avant - Liana

Version couleur no. 4 - Vue avant

Version couleur no. 5 - Vue avant - Liana

Version couleur no. 5 - Vue avant

Version couleur no. 7 - Vue avant - Liana

Version couleur no. 7 - Vue avant

Liana Plan de maison 3882

3 chambres 2 salles de bain, maison contemporaine, terrasses couvertes, suite des maîtres, garage double

À partir de

1655$

Fiche technique sommaire Plan #3882
Estimation ($) 693,587$
Surface habitable 2164 pi² Chambre 3
Salle de Bain 2 Salle d'eau 1
Fondation incluse Sous-sol aménageable Garage 2 voitures
Largeur 67'0" Profondeur 33'0"

Besoin d’aide ?

Nos experts vous guident dans votre projet grâce à plus de 30 bureaux au Québec.

Joignez-nous

Consultez notre guide utilisateur

Un outil conçu pour vous simplifier la vie.

Ouvrir le guide

Besoin d’une assurance habitation ?

Pour obtenir votre prix, c’est juste ici

Obtenir une soumission

Les photos de cette maison peuvent différer du plan d'origine, duquel elles proviennent. Pour toute modification, veuillez contacter l’un de nos 30 bureaux.

Détails supplémentaires

Estimation

Spécifications générales

Surface aménagée totale
2164 pi²
Rez-de-chaussée
1092 pi²
Étage
1072 pi²
Largeur
67'0"
Profondeur
33'0"
Hauteur dessus fondations au faite
29'5"
Murs extérieurs
2 X 6
Murs extérieurs
2 X 6
Sous-sol aménageable
Autres fondations disponibles (des frais peuvent s'appliquer)
Dalle flottante, Vide sanitaire, Dalle monolithique
Code Entrepreneur
E

Spécifications sur les pièces

Chambre(s)
3
Salle(s) de bain complète(s)
2
Demi Salle(s) de Bain
1
Type de garage
2 voitures (638 pi²)
Superficie balcon et/ou perron abrité
264 pi²

Rez-de-chaussée

Pièces
Dimensions
Plafond
Salle à manger
12'0" x 16'0"
~ 9'0"
Salle de séjour
19'0" x 15'4"
~ 9'0"
Entrée ou vestibule
6'0" x 6'0"
~ 9'0"
Garde-robe
2'0" x 6'0"
~ 9'0"
Cuisine
11'0" x 15'10"
~ 9'0"
Garde-manger
2'8" x 4'4"
~ 9'0"
Garage
27'0" x 21'4"
~ 10'10"
Perron abrité
10'4" x 13'0"
N/D
Coin toilette/lavabo
3'0" x 6'8"
~ 9'0"
Salle de lavage
7'6" x 8'4"
~ 9'0"
Pergola
20'0" x 10'0"
N/D

Étage

Pièces
Dimensions
Plafond
Suite des maîtres
14'0" x 15'4"
~ 8'0"
Walk-in
11'7" x 5'8"
~ 8'0"
Salle de bain complète
11'7" x 9'2"
~ 8'0"
Chambre à coucher
11'3" x 10'0"
~ 8'0"
Garde-robe
7'9" x 2'0"
~ 8'0"
Chambre à coucher
12'0" x 11'0"
~ 8'0"
Garde-robe
6'6" x 2'0"
~ 8'0"
Salle de bain complète
8'4" x 13'4"
~ 8'0"
Perron abrité
10'0" x 13'0"
N/D
Lingerie
1'5" x 2'0"
~ 8'0"

Plan de grande maison contemporaine garage double, 3 chambres et 3 terrasses couvertes!

Voici une maison contemporaine avec garage double conçue dans une véritable pensée contemporaine pour ses occupants, c’est-à-dire avec ses lignes passablement simplifiées et ses matériaux très en demandes à l’extérieur ainsi qu’un aménagement intérieur à la fois très ouvert, fonctionnel et très tendance! Entrons-y donc sans plus tarder !

C’est une fois le vestibule franchi que l’on constate la présence pratique d’une buanderie et d’une salle d’eau, localisées près de l’accès garage et de la cuisine. La salle de séjour de grand format est toute en lumière et agrémentée d’un foyer proposant du mobilier intégré de chaque côté. Attenant à celle-ci, on remarque à l’extérieure une belle terrasse avec pergola qui est accessible de la cuisine. Cette dernière propose un grand îlot central pouvant recevoir aisément 5 convives pour l’apéro ainsi qu’un garde-manger fort pratique. L’espace salle à dîner est annexé à une terrasse abritée.

À l’étage, une suite des maîtres jouit d’une grande garde-robe de type walk-in ainsi que d’une grande salle de bain avec vanité double, bain et douche séparés. De plus, cette dernière possède aussi un balcon abrité, endroit tranquille pour la lecture ou le café du matin, loin des brouhahas familiaux du matin. Deux chambre secondaires de bon format se partage une grande salle de bain avec toilette en cabine, vanité double, ainsi qu’un bain.

Éléments distinctifs

Maison contemporaine très lumineuse.
Plancher à aire ouverte au rez-de-chaussée.
Cuisine avec grand îlot, garde-manger et accès à une grande terrasse arrière couverte.
Salle de séjour avec foyer et rangement intégré de chaque côté du foyer.
Grande buanderie avec comptoir près de la cuisine.
Suite des maîtres à l'étage avec grand walk-in, salle de bain privée et accès à un balcon privé.
Salle de bain secondaire avec toilette en cabine.

Particularité(s) du plan

Salle de lavage au rez-de-chaussée, Accès au sous-sol du garage, Foyer, Garde-manger, Plafond à plus de 8', Suite des maîtres à l'étage, Walk-in ch. maîtres, Terrasse abritée, Ilôt, Balcon à l'étage, Aire ouverte, Meuble(s) encastré(s), Vestibule, Lavabo double, Bain et douche séparés, Pergola

Style(s) architectural du plan

Contemporain / Zen, Moderne, Américain, Moderne rustique, Vacances, bordure de lac, Transitionnel, Farmhouse moderne

Maibec
Maibec
Moderne
À partir de 6,25$/pi².

Spécialiste des systèmes de revêtement

Maibec
Maibec
Moderne
À partir de 6,25$/pi².

Spécialiste des systèmes de revêtement

Plans similaires
Logo Dessins Drummond image Dessins Drummond
Le modèle Liana est protégé par la loi sur les droits d'auteur.

Les illustrations présentées peuvent différer du plan détaillé que vous recevrez, car ces derniers sont régulièrement ajustés afin de respecter les normes de construction en vigueur.

En savoir plus

Une question ou un commentaire sur ce plan ?

Information de contact

Votre demande

Ajouter vos images ou photos

Pour ajouter une ou des photos, veuillez cliquer ou glisser vos fichiers dans la zone ci-bas. Vous pouvez ajouter jusqu'à huit photos JPG ou JPEG. Cette opération n'est pas obligatoire.

Désolé, votre navigateur ne supporte pas l'envoi de fichier.